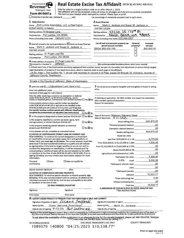
Property
Account |
| Property ID: | 30702 | Abbreviated Legal Description: | HILLERS WF TR 9 INC TL |
| Parcel # / Geo ID: | 960300006 | Agent Code: | |
| Type: | Real | | |
| Tax Area: | 0211 - 1-49F1E1H2L1 | Land Use Code | 11 |
| Open Space: | N | DFL | N |
| Historic Property: | N | Remodel Property: | N |
| Multi-Family Redevelopment: | N | | |
| Township: | 29N | Section: | 7 |
| Range: | 1E |
Location |
| Address: | 101 HILLER DR PORT HADLOCK, WA 98339 | Mapsco: | 032/035 |
| Neighborhood: | HILLER'S WATERFRONT TRACTS & TAYLOR'S TERRACE | Map ID: | |
| Neighborhood CD: | 4645 |
Owner |
| Name: | JOE S THOMPSON | Owner ID: | 28884 |
| Mailing Address: | 101 HILLER DR PORT HADLOCK, WA 98339-9718 | % Ownership: | 100.0000000000% |
| | | Exemptions: | |
Pay Tax Due
There is currently No Amount Due on this property.
Taxes and Assessment Details
Property Tax Information as of
10/24/2025
Click on "Statement Details" to expand or collapse a tax statement.
* Please enter a valid date ** Please enter a valid date *
Statement Details |
| | TOTAL: | $0.00 | $0.00 | $0.00 | $0.00 | $0.00 | $0.00 |
|
| | $0.00 | $0.00 | $0.00 | $0.00 | $0.00 | $0.00 |
Values
| (+) Improvement Homesite Value: | + | $335,487 | |
| (+) Improvement Non-Homesite Value: | + | $0 | |
| (+) Land Homesite Value: | + | $241,500 | |
| (+) Land Non-Homesite Value: | + | $0 | |
| (+) Curr Use (HS): | + | $0 | $0 |
| (+) Curr Use (NHS): | + | $0 | $0 |
| | | -------------------------- | |
| (=) Market Value: | = | $576,987 | |
| (–) Productivity Loss: | – | $0 | |
| | | -------------------------- | |
| (=) Subtotal: | = | $576,987 | |
| (+) Senior Appraised Value: | + | $0 | |
| (+) Non-Senior Appraised Value: | + | $576,987 | |
| | | -------------------------- | |
| (=) Total Appraised Value: | = | $576,987 | |
| (–) Senior Exemption Loss: | – | $0 | |
| (–) Exemption Loss: | – | $0 | |
| | | -------------------------- | |
| (=) Taxable Value: | = | $576,987 | |
Taxing Jurisdiction
| Owner: | JOE S THOMPSON | | |
| % Ownership: | 100.0000000000% | | |
| Total Value: | N/A | | |
| Tax Area: | 0211 - 1-49F1E1H2L1 |
| CE | COUNTY CURRENT EXPENSE | N/A | N/A | N/A | N/A | | |
| CNTYDD | DEVELOPMENTAL DISABILITIES | N/A | N/A | N/A | N/A | | |
| CNTYVET | VETERANS RELIEF | N/A | N/A | N/A | N/A | | |
| MENTAL | MENTAL HEALTH | N/A | N/A | N/A | N/A | | |
| ROADS | COUNTY ROADS | N/A | N/A | N/A | N/A | | |
| ROADSCU | COUNTY ROADS TO CUR EXP | N/A | N/A | N/A | N/A | | |
| HOSP2CASH | HOSP DIST #2 GENERAL | N/A | N/A | N/A | N/A | | |
| SCH49CP | SCHOOL DIST #49 CAP PROJ | N/A | N/A | N/A | N/A | | |
| SCH49MO | SCHOOL DIST #49 EP & O | N/A | N/A | N/A | N/A | | |
| CONSERVE | CONSERVATION FUTURES | N/A | N/A | N/A | N/A | | |
| EMS1 | FIRE DIST #1 EMS | N/A | N/A | N/A | N/A | | |
| FD1 | FIRE DIST #1 GENERAL | N/A | N/A | N/A | N/A | | |
| LIB1 | LIBRARY DIST #1 GENERAL | N/A | N/A | N/A | N/A | | |
| PORTPT | PORT OF PT GENERAL | N/A | N/A | N/A | N/A | | |
| PORTPTIDD | PORT OF PT IDD 2019 | N/A | N/A | N/A | N/A | | |
| PUD1 | PUD #1 GENERAL | N/A | N/A | N/A | N/A | | |
| STATE | STATE SCHOOL PART 1 | N/A | N/A | N/A | N/A | | |
| STATE2 | STATE SCHOOL PART 2 | N/A | N/A | N/A | N/A | | |
| | Total Tax Rate: | N/A | | | | | |
| | | | | Taxes w/Current Exemptions: | N/A | | |
| | | | | Taxes w/o Exemptions: | N/A | | |
Improvement / Building
| Improvement #1: | Residential Bldg | State Code: | 11 | 1560.0 sqft | Value: | $335,487 |
| Bathrooms (#): | 2 (FULL) | Bedrooms (#): | 1 | | Exterior Wall: | SI/ST | Fireplace: | WD ST-GOOD | | Floor Construction: | FRAME | Foundation: | CONPR | | Heating/Cooling: | ELBB | Inside Verify: | YES-FIX | | Roof Cover: | COMP |   |   |
|
| | Type | Description | Class CD | Sub Class CD | Year Built | Area |
| | MA | Main Area | 4 | 2S | 1968 | 1128.0 |
| | MA2 | Second Floor Main Area | 4 | 2S | 1968 | 432.0 |
| | PATIO | House Patio | 4 | 2S | 1968 | 388.0 |
| | HWPOR | House Wood Porch | 4 | 2S | 1968 | 20.0 |
| | HDECK | House Deck | 4 | 2S | 1968 | 149.0 |
| | CARPTF | Carport W/Floor | 4 | 2S | 1968 | 240.0 |
| | OTHER | Other | 4 | 2S | 1968 | 0.0 |
Sketch
Property Image
Land
| 1 | 4645-1113S | Waterfront Sites in Hillers inc/Tidelands | 0.0000 | 0.00 | 0.00 | 0.00 | 1.00 | $241,500 | $0 |
Roll Value History
| 2025 | N/A | N/A | N/A | N/A | N/A |
| 2024 | $335,487 | $241,500 | $0 | $576,987 | $576,987 |
| 2023 | $320,237 | $225,000 | $0 | $545,237 | $545,237 |
| 2022 | $261,317 | $210,000 | $0 | $471,317 | $123,856 |
| 2021 | $207,394 | $189,750 | $0 | $397,144 | $123,856 |
Deed and Sales History
| 1 | 10/25/1999 | QCD | Quit Claim Deed | THOMPSON, PATRICIA EST O | THOMPSON, JOE S | 0 | 0 | $0.00 | 88235 | 0 |
| 2 | 07/07/1997 | QCD | Quit Claim Deed | YOURA, DANIEL G | THOMPSON, PATRICIA J | 0 | 0 | $0.00 | 82305 | 0 |
Payout Agreement
| No payout information available.. |