Property
Account |
| Property ID: | 30732 | Abbreviated Legal Description: | HUSSEY'S ADDITION BLK 1 LOTS 5,6,7 & 8 BND BY CITY LETTER LUP18-041 |
| Parcel # / Geo ID: | 961200103 | Agent Code: | |
| Type: | Real | | |
| Tax Area: | 0110 - C-50F1E1H2 | Land Use Code | 11 |
| Open Space: | N | DFL | N |
| Historic Property: | N | Remodel Property: | N |
| Multi-Family Redevelopment: | N | | |
| Township: | 30N | Section: | 3 |
| Range: | 1W |
Location |
| Address: | 1525 25TH ST PORT TOWNSEND, WA 98368 | Mapsco: | 068/024 |
| Neighborhood: | COLUMBIA//HUSSEY/WEYMOUNT-DYER/WOODLAND LP-ACREAGE; CEMETERY | Map ID: | |
| Neighborhood CD: | 6120 |
Owner |
| Name: | AUDREY & BRIAN MORFORD | Owner ID: | 101207 |
| Mailing Address: | 1525 25TH ST PORT TOWNSEND, WA 98368-7021 | % Ownership: | 100.0000000000% |
| | | Exemptions: | |
Pay Tax Due
There is currently No Amount Due on this property.
Taxes and Assessment Details
Property Tax Information as of
10/24/2025
Click on "Statement Details" to expand or collapse a tax statement.
* Please enter a valid date ** Please enter a valid date *
Statement Details |
| | TOTAL: | $0.00 | $0.00 | $0.00 | $0.00 | $0.00 | $0.00 |
|
| | $0.00 | $0.00 | $0.00 | $0.00 | $0.00 | $0.00 |
Values
| (+) Improvement Homesite Value: | + | $0 | |
| (+) Improvement Non-Homesite Value: | + | $281,927 | |
| (+) Land Homesite Value: | + | $0 | |
| (+) Land Non-Homesite Value: | + | $235,000 | |
| (+) Curr Use (HS): | + | $0 | $0 |
| (+) Curr Use (NHS): | + | $0 | $0 |
| | | -------------------------- | |
| (=) Market Value: | = | $516,927 | |
| (–) Productivity Loss: | – | $0 | |
| | | -------------------------- | |
| (=) Subtotal: | = | $516,927 | |
| (+) Senior Appraised Value: | + | $0 | |
| (+) Non-Senior Appraised Value: | + | $516,927 | |
| | | -------------------------- | |
| (=) Total Appraised Value: | = | $516,927 | |
| (–) Senior Exemption Loss: | – | $0 | |
| (–) Exemption Loss: | – | $0 | |
| | | -------------------------- | |
| (=) Taxable Value: | = | $516,927 | |
Taxing Jurisdiction
| Owner: | AUDREY & BRIAN MORFORD | | |
| % Ownership: | 100.0000000000% | | |
| Total Value: | N/A | | |
| Tax Area: | 0110 - C-50F1E1H2 |
| CE | COUNTY CURRENT EXPENSE | N/A | N/A | N/A | N/A | | |
| CNTYDD | DEVELOPMENTAL DISABILITIES | N/A | N/A | N/A | N/A | | |
| CNTYVET | VETERANS RELIEF | N/A | N/A | N/A | N/A | | |
| MENTAL | MENTAL HEALTH | N/A | N/A | N/A | N/A | | |
| PTGEN | CITY OF PT GENERAL | N/A | N/A | N/A | N/A | | |
| PTLLL | CITY OF PT - LIBRARY LID LIFT | N/A | N/A | N/A | N/A | | |
| PTMVBOND | CITY OF PT MV BOND | N/A | N/A | N/A | N/A | | |
| HOSP2CASH | HOSP DIST #2 GENERAL | N/A | N/A | N/A | N/A | | |
| SCH50BOND | SCHOOL DIST #50 BOND 2016 | N/A | N/A | N/A | N/A | | |
| SCH50CP | SCHOOL DIST #50 CAP PROJ | N/A | N/A | N/A | N/A | | |
| SCH50MO | SCHOOL DIST #50 EP & O | N/A | N/A | N/A | N/A | | |
| CONSERVE | CONSERVATION FUTURES | N/A | N/A | N/A | N/A | | |
| EMS1 | FIRE DIST #1 EMS | N/A | N/A | N/A | N/A | | |
| FD1 | FIRE DIST #1 GENERAL | N/A | N/A | N/A | N/A | | |
| PORTPT | PORT OF PT GENERAL | N/A | N/A | N/A | N/A | | |
| PORTPTIDD | PORT OF PT IDD 2019 | N/A | N/A | N/A | N/A | | |
| PUD1 | PUD #1 GENERAL | N/A | N/A | N/A | N/A | | |
| STATE | STATE SCHOOL PART 1 | N/A | N/A | N/A | N/A | | |
| STATE2 | STATE SCHOOL PART 2 | N/A | N/A | N/A | N/A | | |
| | Total Tax Rate: | N/A | | | | | |
| | | | | Taxes w/Current Exemptions: | N/A | | |
| | | | | Taxes w/o Exemptions: | N/A | | |
Improvement / Building
| Improvement #1: | Residential Bldg | State Code: | 11 | 1000.0 sqft | Value: | $281,927 |
| Bathrooms (#): | 1 (FULL) | Bedrooms (#): | 2 | | Exterior Wall: | SI/ST | Floor Construction: | FRAME | | Foundation: | CONBL | Heating/Cooling: | ELBB | | Roof Cover: | METAL |   |   |
|
| | Type | Description | Class CD | Sub Class CD | Year Built | Area |
| | MA | Main Area | 4+ | 1S | 0 | 1000.0 |
| | HWPOR | House Wood Porch | 4 | * | 0 | 68.0 |
| | SHED | Shed (Table Not Dep) | 4 | * | 0 | 192.0 |
Sketch
Property Image
Land
| 1 | 6120-1178L | Multiple Lot Site (2+/-) w/Fair/No Terr Views | 0.0000 | 0.00 | 0.00 | 0.00 | 1.00 | $55,000 | $0 |
| 2 | 6120-1176L | Multiple Lot Site (2+/-) with Access/Utilities | 0.0000 | 0.00 | 0.00 | 0.00 | 2.00 | $180,000 | $0 |
Roll Value History
| 2025 | N/A | N/A | N/A | N/A | N/A |
| 2024 | $281,807 | $231,000 | $0 | $512,807 | $512,807 |
| 2023 | $281,807 | $225,750 | $0 | $507,557 | $507,557 |
| 2022 | $258,323 | $210,000 | $0 | $468,323 | $468,323 |
| 2021 | $220,789 | $186,750 | $0 | $407,539 | $407,539 |
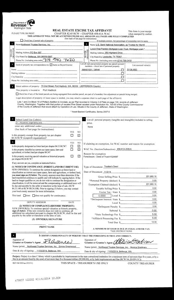
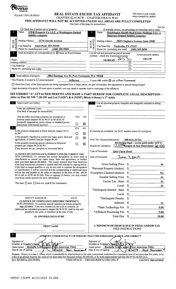
Deed and Sales History
| 1 | 06/13/2019 | SWD | Statutory Warranty Deed | JULIE & DAVID PREWETT | AUDREY & BRIAN MORFORD | | | $340,000.00 | 132573 | |
| 2 | 11/22/2017 | SWD | Statutory Warranty Deed | MAYA M BEWIG | JULIE & DAVID PREWETT | | | $290,000.00 | 129089 | |
| 3 | 11/16/2015 | QCD | Quit Claim Deed | | | | | | 124439 | |
| 4 | 06/05/2009 | SWD | Statutory Warranty Deed | TAYLOR, MARTA | BEWIG, MAYA/ROGER | | | $210,000.00 | 113037 | 0 |
| 5 | 06/05/2009 | QCD | Quit Claim Deed | BEWIG, THERESA | BEWIG, ROGER | | | $0.00 | 113038 | 0 |
| 6 | 09/28/2007 | SWD | Statutory Warranty Deed | GRACE, ABIGALE ADA | TAYLOR, MARTA | 0 | 0 | $280,000.00 | 110115 | 0 |
| 7 | 09/19/2001 | SWD | Statutory Warranty Deed | BURTZ, DONALD L/NORMA L | GRACE, ABIGALE ADA | 0 | 0 | $149,500.00 | 93110 | 0 |
Payout Agreement
| No payout information available.. |