Property
Account |
| Property ID: | 30795 | Abbreviated Legal Description: | INGERSOLL'S ADDITION BLK 2, LOTS 1 THRU 6 LESS PTN LOTS 4&5, INC PTN S/VAC STS ADJ |
| Parcel # / Geo ID: | 961500201 | Agent Code: | |
| Type: | Real | | |
| Tax Area: | 0111 - 1-50F1E1H2L1 | Land Use Code | 11 |
| Open Space: | N | DFL | N |
| Historic Property: | N | Remodel Property: | N |
| Multi-Family Redevelopment: | N | | |
| Township: | 30N | Section: | 18 |
| Range: | 1W |
Location |
| Address: | 31 MAXWELL AVE PORT TOWNSEND, WA 98368 | Mapsco: | 033/072 |
| Neighborhood: | CAPE GEORGE VILLAGE DIV 5 & 7 (HIGHLANDS) & INGERSOLL'S ADDN | Map ID: | |
| Neighborhood CD: | 5530 |
Owner |
| Name: | JACQUES THIRY & COLLEEN RANDLE | Owner ID: | 98638 |
| Mailing Address: | 31 MAXWELL AVE PORT TOWNSEND, WA 98368-9487 | % Ownership: | 100.0000000000% |
| | | Exemptions: | SNR/DSBL |
Pay Tax Due
There is currently No Amount Due on this property.
Taxes and Assessment Details
Property Tax Information as of
10/24/2025
Click on "Statement Details" to expand or collapse a tax statement.
* Please enter a valid date ** Please enter a valid date *
Statement Details |
| | TOTAL: | $0.00 | $0.00 | $0.00 | $0.00 | $0.00 | $0.00 |
|
| | $0.00 | $0.00 | $0.00 | $0.00 | $0.00 | $0.00 |
Values
| (+) Improvement Homesite Value: | + | $85,186 | |
| (+) Improvement Non-Homesite Value: | + | $0 | |
| (+) Land Homesite Value: | + | $153,340 | |
| (+) Land Non-Homesite Value: | + | $0 | |
| (+) Curr Use (HS): | + | $0 | $0 |
| (+) Curr Use (NHS): | + | $0 | $0 |
| | | -------------------------- | |
| (=) Market Value: | = | $238,526 | |
| (–) Productivity Loss: | – | $0 | |
| | | -------------------------- | |
| (=) Subtotal: | = | $238,526 | |
| (+) Senior Appraised Value: | + | $126,543 | |
| (+) Non-Senior Appraised Value: | + | $0 | |
| | | -------------------------- | |
| (=) Total Appraised Value: | = | $126,543 | |
| (–) Senior Exemption Loss: | – | $50,000 | |
| (–) Exemption Loss: | – | $0 | |
| | | -------------------------- | |
| (=) Taxable Value: | = | $76,543 | |
Taxing Jurisdiction
| Owner: | JACQUES THIRY & COLLEEN RANDLE | | |
| % Ownership: | 100.0000000000% | | |
| Total Value: | N/A | | |
| Tax Area: | 0111 - 1-50F1E1H2L1 |
| CE | COUNTY CURRENT EXPENSE | N/A | N/A | N/A | N/A | | |
| CNTYDD | DEVELOPMENTAL DISABILITIES | N/A | N/A | N/A | N/A | | |
| CNTYVET | VETERANS RELIEF | N/A | N/A | N/A | N/A | | |
| MENTAL | MENTAL HEALTH | N/A | N/A | N/A | N/A | | |
| ROADS | COUNTY ROADS | N/A | N/A | N/A | N/A | | |
| ROADSCU | COUNTY ROADS TO CUR EXP | N/A | N/A | N/A | N/A | | |
| HOSP2CASH | HOSP DIST #2 GENERAL | N/A | N/A | N/A | N/A | | |
| SCH50BOND | SCHOOL DIST #50 BOND 2016 | N/A | N/A | N/A | N/A | | |
| SCH50CP | SCHOOL DIST #50 CAP PROJ | N/A | N/A | N/A | N/A | | |
| SCH50MO | SCHOOL DIST #50 EP & O | N/A | N/A | N/A | N/A | | |
| CONSERVE | CONSERVATION FUTURES | N/A | N/A | N/A | N/A | | |
| EMS1 | FIRE DIST #1 EMS | N/A | N/A | N/A | N/A | | |
| FD1 | FIRE DIST #1 GENERAL | N/A | N/A | N/A | N/A | | |
| LIB1 | LIBRARY DIST #1 GENERAL | N/A | N/A | N/A | N/A | | |
| PORTPT | PORT OF PT GENERAL | N/A | N/A | N/A | N/A | | |
| PORTPTIDD | PORT OF PT IDD 2019 | N/A | N/A | N/A | N/A | | |
| PUD1 | PUD #1 GENERAL | N/A | N/A | N/A | N/A | | |
| STATE | STATE SCHOOL PART 1 | N/A | N/A | N/A | N/A | | |
| STATE2 | STATE SCHOOL PART 2 | N/A | N/A | N/A | N/A | | |
| | Total Tax Rate: | N/A | | | | | |
| | | | | Taxes w/Current Exemptions: | N/A | | |
| | | | | Taxes w/o Exemptions: | N/A | | |
Improvement / Building
| Improvement #1: | Manufactured Home | State Code: | 11 | 672.0 sqft | Value: | $85,186 |
| Bathrooms (#): | 1 (FULL) | Bathrooms (#): | 1 (HALF) | | Bedrooms (#): | 2 | Exterior Wall: | PL/T1 | | Fireplace: | WD ST-GOOD | Floor Construction: | FRAME | | Foundation: | CONBL | Heating/Cooling: | F/A | | Roof Cover: | COMP |   |   |
|
| | Type | Description | Class CD | Sub Class CD | Year Built | Area |
| | MA | Main Area | 3 | MSG | 1974 | 672.0 |
| | MDET | MH Detached Garage | 3 | MSG | 1974 | 375.0 |
| | CARPTN | Carport W/O Floor | 3 | * | 1974 | 475.0 |
| | SHED | Shed (Table Not Dep) | 3 | * | 1974 | 192.0 |
| | MADDN | MH Addition | 3 | * | 1974 | 178.0 |
| | MCPOR | MH Concrete Porch | 3 | * | 1974 | 128.0 |
| | MENCL | MH Enclosure | 3 | * | 1974 | 120.0 |
Sketch
Property Image
Land
| 1 | 5530-1183L | Ingersolls Addition - First 2 Lots | 0.0000 | 0.00 | 0.00 | 0.00 | 2.00 | $77,000 | $0 |
| 2 | 5530-1185L | Ingersolls Addition - Addn Lots 5+ | 0.0000 | 0.00 | 0.00 | 0.00 | 1.00 | $43,340 | $0 |
| 3 | 5530-1184L | Ingersolls Addition - Addn Lots 3 & 4 | 0.0000 | 0.00 | 0.00 | 0.00 | 2.00 | $33,000 | $0 |
Roll Value History
| 2025 | N/A | N/A | N/A | N/A | N/A |
| 2024 | $85,186 | $153,340 | $0 | $238,526 | $76,543 |
| 2023 | $40,945 | $134,400 | $0 | $175,345 | $50,617 |
| 2022 | $40,945 | $129,400 | $0 | $170,345 | $50,617 |
| 2021 | $32,756 | $110,372 | $0 | $143,128 | $50,617 |
Deed and Sales History
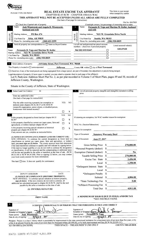
| 1 | 01/24/2018 | SWD | Statutory Warranty Deed | KEN SPICER | JACQUES THIRY & COLLEEN RANDLE | | | $129,000.00 | 129501 | |
|   | |
| 2 | 07/13/2007 | SWD | Statutory Warranty Deed | SUNDBOM, FRANS J | SPICER, KEN | | | $170,000.00 | 109699 | 0 |
Payout Agreement
| No payout information available.. |