Property
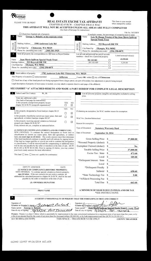
Account |
| Property ID: | 30802 | Abbreviated Legal Description: | INGERSOLL'S ADDITION BLK 6, LOTS 1(LS N30'),2,3,4 & 5(ALL) SUBJ/REST COVT #532478 |
| Parcel # / Geo ID: | 961500601 | Agent Code: | |
| Type: | Real | | |
| Tax Area: | 0111 - 1-50F1E1H2L1 | Land Use Code | 11 |
| Open Space: | N | DFL | N |
| Historic Property: | N | Remodel Property: | N |
| Multi-Family Redevelopment: | N | | |
| Township: | 30N | Section: | 18 |
| Range: | 1W |
Location |
| Address: | 100 JOHNSON AVE PORT TOWNSEND, WA 98368 | Mapsco: | 033/079 |
| Neighborhood: | CAPE GEORGE VILLAGE DIV 5 & 7 (HIGHLANDS) & INGERSOLL'S ADDN | Map ID: | |
| Neighborhood CD: | 5530 |
Owner |
| Name: | JESSE B BRIDGES | Owner ID: | 109629 |
| Mailing Address: | NATTIYA PHAKDEE 100 JOHNSON AVE PORT TOWNSEND, WA 98368-9419 | % Ownership: | 100.0000000000% |
| | | Exemptions: | |
Pay Tax Due
There is currently No Amount Due on this property.
Taxes and Assessment Details
Property Tax Information as of
10/24/2025
Click on "Statement Details" to expand or collapse a tax statement.
* Please enter a valid date ** Please enter a valid date *
Statement Details |
| | TOTAL: | $0.00 | $0.00 | $0.00 | $0.00 | $0.00 | $0.00 |
|
| | $0.00 | $0.00 | $0.00 | $0.00 | $0.00 | $0.00 |
Values
| (+) Improvement Homesite Value: | + | $0 | |
| (+) Improvement Non-Homesite Value: | + | $508,930 | |
| (+) Land Homesite Value: | + | $0 | |
| (+) Land Non-Homesite Value: | + | $119,240 | |
| (+) Curr Use (HS): | + | $0 | $0 |
| (+) Curr Use (NHS): | + | $0 | $0 |
| | | -------------------------- | |
| (=) Market Value: | = | $628,170 | |
| (–) Productivity Loss: | – | $0 | |
| | | -------------------------- | |
| (=) Subtotal: | = | $628,170 | |
| (+) Senior Appraised Value: | + | $0 | |
| (+) Non-Senior Appraised Value: | + | $628,170 | |
| | | -------------------------- | |
| (=) Total Appraised Value: | = | $628,170 | |
| (–) Senior Exemption Loss: | – | $0 | |
| (–) Exemption Loss: | – | $0 | |
| | | -------------------------- | |
| (=) Taxable Value: | = | $628,170 | |
Taxing Jurisdiction
| Owner: | JESSE B BRIDGES | | |
| % Ownership: | 100.0000000000% | | |
| Total Value: | N/A | | |
| Tax Area: | 0111 - 1-50F1E1H2L1 |
| CE | COUNTY CURRENT EXPENSE | N/A | N/A | N/A | N/A | | |
| CNTYDD | DEVELOPMENTAL DISABILITIES | N/A | N/A | N/A | N/A | | |
| CNTYVET | VETERANS RELIEF | N/A | N/A | N/A | N/A | | |
| MENTAL | MENTAL HEALTH | N/A | N/A | N/A | N/A | | |
| ROADS | COUNTY ROADS | N/A | N/A | N/A | N/A | | |
| ROADSCU | COUNTY ROADS TO CUR EXP | N/A | N/A | N/A | N/A | | |
| HOSP2CASH | HOSP DIST #2 GENERAL | N/A | N/A | N/A | N/A | | |
| SCH50BOND | SCHOOL DIST #50 BOND 2016 | N/A | N/A | N/A | N/A | | |
| SCH50CP | SCHOOL DIST #50 CAP PROJ | N/A | N/A | N/A | N/A | | |
| SCH50MO | SCHOOL DIST #50 EP & O | N/A | N/A | N/A | N/A | | |
| CONSERVE | CONSERVATION FUTURES | N/A | N/A | N/A | N/A | | |
| EMS1 | FIRE DIST #1 EMS | N/A | N/A | N/A | N/A | | |
| FD1 | FIRE DIST #1 GENERAL | N/A | N/A | N/A | N/A | | |
| LIB1 | LIBRARY DIST #1 GENERAL | N/A | N/A | N/A | N/A | | |
| PORTPT | PORT OF PT GENERAL | N/A | N/A | N/A | N/A | | |
| PORTPTIDD | PORT OF PT IDD 2019 | N/A | N/A | N/A | N/A | | |
| PUD1 | PUD #1 GENERAL | N/A | N/A | N/A | N/A | | |
| STATE | STATE SCHOOL PART 1 | N/A | N/A | N/A | N/A | | |
| STATE2 | STATE SCHOOL PART 2 | N/A | N/A | N/A | N/A | | |
| | Total Tax Rate: | N/A | | | | | |
| | | | | Taxes w/Current Exemptions: | N/A | | |
| | | | | Taxes w/o Exemptions: | N/A | | |
Improvement / Building
| Improvement #1: | Residential Bldg | State Code: | 11 | 2152.0 sqft | Value: | $508,930 |
| Bathrooms (#): | 2 (FULL) | Bedrooms (#): | 3 | | Exterior Wall: | SI/ST | Fireplace: | WD ST-GOOD | | Floor Construction: | FRAME | Foundation: | CONPR | | Heating/Cooling: | ELBB | Roof Cover: | COMP |
|
| | Type | Description | Class CD | Sub Class CD | Year Built | Area |
| | MA | Main Area | 4+ | 1S | 2008 | 2152.0 |
| | PATIO | House Patio | 3 | * | 2008 | 160.0 |
| | GATT | House Attached Garage | 4 | 1S | 2008 | 576.0 |
| | CONCD | Concrete Drive | 4 | * | 2008 | 400.0 |
| | PATIO | House Patio | 4 | * | 2008 | 48.0 |
Sketch
Property Image
Land
| 1 | 5530-1185L | Ingersolls Addition - Addn Lots 5+ | 0.0000 | 0.00 | 0.00 | 0.00 | 1.00 | $9,240 | $0 |
| 2 | 5530-1184L | Ingersolls Addition - Addn Lots 3 & 4 | 0.0000 | 0.00 | 0.00 | 0.00 | 2.00 | $33,000 | $0 |
| 3 | 5530-1183L | Ingersolls Addition - First 2 Lots | 0.0000 | 0.00 | 0.00 | 0.00 | 2.00 | $77,000 | $0 |
Roll Value History
| 2025 | N/A | N/A | N/A | N/A | N/A |
| 2024 | $508,930 | $119,240 | $0 | $628,170 | $628,170 |
| 2023 | $459,464 | $103,400 | $0 | $562,864 | $562,864 |
| 2022 | $459,464 | $98,400 | $0 | $557,864 | $557,864 |
| 2021 | $334,155 | $84,115 | $0 | $418,270 | $418,270 |
Deed and Sales History
| 1 | 08/31/2023 | SWD | Statutory Warranty Deed | KATHLEEN & RICHARD KEENAN | JESSE B BRIDGES | | | $680,000.00 | 141514 | |
| 2 | 10/28/2015 | SWD | Statutory Warranty Deed | CLIFFORD E SELF | KATHLEEN & RICHARD KEENAN | | | $298,000.00 | 124293 | |
| 3 | 10/19/2012 | SWD | Statutory Warranty Deed | SELF, CLIFFORD/JANET GOLD | SELF, CLIFFORD/JANET | 0 | 0 | $0.00 | 118283 | 0 |
| 4 | 03/13/2007 | SWD | Statutory Warranty Deed | DUNN, TAYLOR | SELF, CLIFF/ JANET GOLDENBOGEN | 0 | 0 | $85,000.00 | 108848 | 0 |
| 5 | 05/27/2005 | SWD | Statutory Warranty Deed | RAY, THOMAS L/JR | DUNN, TAYLOR | | | $55,000.00 | 103680 | 0 |
| 6 | 12/01/2003 | SWD | Statutory Warranty Deed | MERZ, HENRY K/ESTATE | RAY JR, THOMAS L | 0 | 0 | $15,000.00 | 98978 | 0 |
Payout Agreement
| No payout information available.. |