Property
Account |
| Property ID: | 30967 | Abbreviated Legal Description: | IRONDALE #2 BLK 9 LTS 18 THRU 20 & 25 THRU 31 SUBJ/REST COVT #556555, #557625 & #559456 |
| Parcel # / Geo ID: | 961800921 | Agent Code: | |
| Type: | Real | | |
| Tax Area: | 0211 - 1-49F1E1H2L1 | Land Use Code | 11 |
| Open Space: | N | DFL | N |
| Historic Property: | N | Remodel Property: | N |
| Multi-Family Redevelopment: | N | | |
| Township: | 30N | Section: | 34 |
| Range: | 1W |
Location |
| Address: | 31 E MAUDE ST PORT HADLOCK, WA 98339 | Mapsco: | 035/058 |
| Neighborhood: | IRONDALE BLOCKS 1 - 47 | Map ID: | |
| Neighborhood CD: | 4130 |
Owner |
| Name: | KATHRYN E MARSHALL | Owner ID: | 92127 |
| Mailing Address: | LUCAS HART 31 E MAUDE ST PORT HADLOCK, WA 98339-9600 | % Ownership: | 100.0000000000% |
| | | Exemptions: | |
Pay Tax Due
There is currently No Amount Due on this property.
Taxes and Assessment Details
Property Tax Information as of
10/24/2025
Click on "Statement Details" to expand or collapse a tax statement.
* Please enter a valid date ** Please enter a valid date *
Statement Details |
| | TOTAL: | $0.00 | $0.00 | $0.00 | $0.00 | $0.00 | $0.00 |
|
| | $0.00 | $0.00 | $0.00 | $0.00 | $0.00 | $0.00 |
Values
| (+) Improvement Homesite Value: | + | $0 | |
| (+) Improvement Non-Homesite Value: | + | $192,808 | |
| (+) Land Homesite Value: | + | $0 | |
| (+) Land Non-Homesite Value: | + | $110,250 | |
| (+) Curr Use (HS): | + | $0 | $0 |
| (+) Curr Use (NHS): | + | $0 | $0 |
| | | -------------------------- | |
| (=) Market Value: | = | $303,058 | |
| (–) Productivity Loss: | – | $0 | |
| | | -------------------------- | |
| (=) Subtotal: | = | $303,058 | |
| (+) Senior Appraised Value: | + | $0 | |
| (+) Non-Senior Appraised Value: | + | $303,058 | |
| | | -------------------------- | |
| (=) Total Appraised Value: | = | $303,058 | |
| (–) Senior Exemption Loss: | – | $0 | |
| (–) Exemption Loss: | – | $0 | |
| | | -------------------------- | |
| (=) Taxable Value: | = | $303,058 | |
Taxing Jurisdiction
| Owner: | KATHRYN E MARSHALL | | |
| % Ownership: | 100.0000000000% | | |
| Total Value: | N/A | | |
| Tax Area: | 0211 - 1-49F1E1H2L1 |
| CE | COUNTY CURRENT EXPENSE | N/A | N/A | N/A | N/A | | |
| CNTYDD | DEVELOPMENTAL DISABILITIES | N/A | N/A | N/A | N/A | | |
| CNTYVET | VETERANS RELIEF | N/A | N/A | N/A | N/A | | |
| MENTAL | MENTAL HEALTH | N/A | N/A | N/A | N/A | | |
| ROADS | COUNTY ROADS | N/A | N/A | N/A | N/A | | |
| ROADSCU | COUNTY ROADS TO CUR EXP | N/A | N/A | N/A | N/A | | |
| HOSP2CASH | HOSP DIST #2 GENERAL | N/A | N/A | N/A | N/A | | |
| SCH49CP | SCHOOL DIST #49 CAP PROJ | N/A | N/A | N/A | N/A | | |
| SCH49MO | SCHOOL DIST #49 EP & O | N/A | N/A | N/A | N/A | | |
| CONSERVE | CONSERVATION FUTURES | N/A | N/A | N/A | N/A | | |
| EMS1 | FIRE DIST #1 EMS | N/A | N/A | N/A | N/A | | |
| FD1 | FIRE DIST #1 GENERAL | N/A | N/A | N/A | N/A | | |
| LIB1 | LIBRARY DIST #1 GENERAL | N/A | N/A | N/A | N/A | | |
| PORTPT | PORT OF PT GENERAL | N/A | N/A | N/A | N/A | | |
| PORTPTIDD | PORT OF PT IDD 2019 | N/A | N/A | N/A | N/A | | |
| PUD1 | PUD #1 GENERAL | N/A | N/A | N/A | N/A | | |
| STATE | STATE SCHOOL PART 1 | N/A | N/A | N/A | N/A | | |
| STATE2 | STATE SCHOOL PART 2 | N/A | N/A | N/A | N/A | | |
| | Total Tax Rate: | N/A | | | | | |
| | | | | Taxes w/Current Exemptions: | N/A | | |
| | | | | Taxes w/o Exemptions: | N/A | | |
Improvement / Building
| Improvement #1: | Residential Bldg | State Code: | 11 | 1657.0 sqft | Value: | $192,808 |
| Bathrooms (#): | 1 (FULL) | Bathrooms (#): | 1 (HALF) | | Bedrooms (#): | 2 | Exterior Wall: | SI/ST | | Fireplace: | WD ST-GOOD | Floor Construction: | CONCR | | Foundation: | CONPR | Heating/Cooling: | HPUMP | | Inside Verify: | YES-FIX | Roof Cover: | COMP |
|
| | Type | Description | Class CD | Sub Class CD | Year Built | Area |
| | MA | Main Area | 3+ | 15SF | 1980 | 1450.0 |
| | MA2 | Second Floor Main Area | 3+ | 15SF | 1980 | 207.0 |
| | PATIO | House Patio | 3 | * | 1980 | 56.0 |
| | HWPOR | House Wood Porch | 3 | * | 1980 | 260.0 |
| | HDECK | House Deck | 3 | * | 1980 | 56.0 |
| | GDET | Detached Garage | 3 | 15SF | 1980 | 352.0 |
| | CARPTN | Carport W/O Floor | 3 | * | 1980 | 312.0 |
| | ADDN | Addition (Table Not Dep) | 3 | * | 1980 | 308.0 |
| | HRPO | House Roof Patio | 3 | * | 1980 | 96.0 |
Sketch
| No sketches available for this property. |
Property Image
Land
| 1 | 4130-1187L | Irondale Lots XS Lots to make up Site | 0.0000 | 0.00 | 0.00 | 0.00 | 10.00 | $36,750 | $0 |
| 2 | 9808 | Water System, Septic, & Power | 0.0000 | 0.00 | 0.00 | 0.00 | 1.00 | $31,500 | $0 |
| 3 | 4130-1285S | Irondale 2 Lot Sites No/Filtered Views | 0.0000 | 0.00 | 0.00 | 0.00 | 1.00 | $42,000 | $0 |
Roll Value History
| 2025 | N/A | N/A | N/A | N/A | N/A |
| 2024 | $192,808 | $110,250 | $0 | $303,058 | $303,058 |
| 2023 | $184,044 | $105,000 | $0 | $289,044 | $289,044 |
| 2022 | $161,050 | $84,000 | $0 | $245,050 | $245,050 |
| 2021 | $127,817 | $75,463 | $0 | $203,280 | $203,280 |
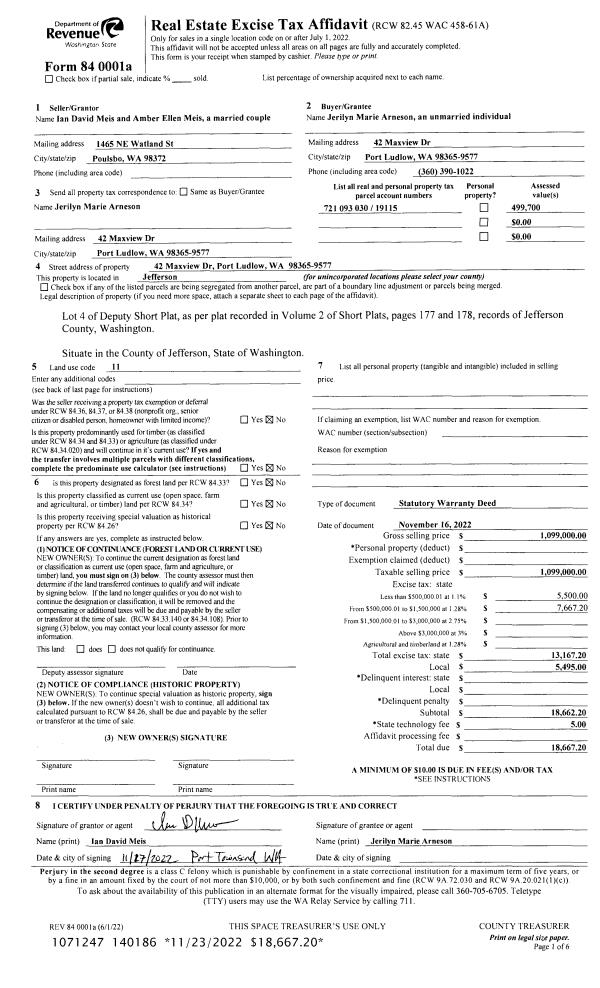
Deed and Sales History
| 1 | 10/15/2021 | QCD | Quit Claim Deed | KATHRYN E MARSHALL | KATHRYN E MARSHALL | | | | 137883 | |
| 2 | 06/26/2014 | SWD | Statutory Warranty Deed | DARLENE DURFEE | KATHRYN E MARSHALL | | | $147,000.00 | 121444 | |
| 3 | 09/03/2004 | SWD | Statutory Warranty Deed | TYLER, LARRY L & MARY B | DURFEE, DARLENE & STEVEN L | 0 | 0 | $177,500.00 | 101417 | 0 |
| 4 | 07/10/2002 | SWD | Statutory Warranty Deed | ROBERT K ROZELLE | LARRY L & MARY B TYLER | 0 | 0 | $155,000.00 | 95084 | 0 |
| 5 | 06/22/1998 | SWD | Statutory Warranty Deed | IBARRETA FAMILY TRUST | ROZELLE, ROBERT K/SHIRLEY J | 0 | 0 | $129,000.00 | 84692 | 0 |
| 6 | 08/28/1996 | QCD | Quit Claim Deed | IBARRETA, V GEORGE/EVELYN | IBARRETA FAMILY TRUST | 0 | 0 | $0.00 | 80440 | 0 |
| 7 | 09/29/1993 | SWD | Statutory Warranty Deed | MUSTATIA, EDWARD J/BOBBIE | IBARRETA, V GEORGE/EVELYN C | 0 | 0 | $120,000.00 | 72279 | 0 |
Payout Agreement
| No payout information available.. |