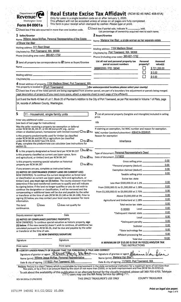
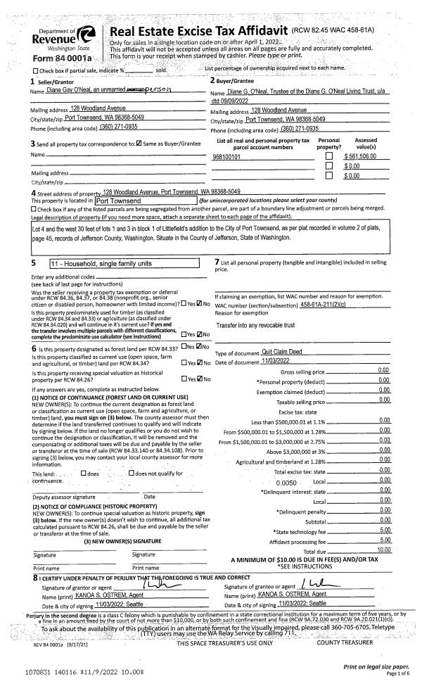
Property
Account |
| Property ID: | 30978 | Abbreviated Legal Description: | IRONDALE #1 BLK 13 LOTS 25 THRU 30 |
| Parcel # / Geo ID: | 961801310 | Agent Code: | |
| Type: | Real | | |
| Tax Area: | 0211 - 1-49F1E1H2L1 | Land Use Code | 11 |
| Open Space: | N | DFL | N |
| Historic Property: | N | Remodel Property: | N |
| Multi-Family Redevelopment: | N | | |
| Township: | 30N | Section: | 35 |
| Range: | 1W |
Location |
| Address: | 121 E KINKAID ST PORT HADLOCK, WA 98339 | Mapsco: | 036/011 |
| Neighborhood: | IRONDALE BLOCKS 1 - 47 | Map ID: | |
| Neighborhood CD: | 4130 |
Owner |
| Name: | ROBERT AND KELILA HELLER | Owner ID: | 110023 |
| Mailing Address: | TRAVIS HELLER 121 E KINKAID ST PORT HADLOCK, WA 98339-9614 | % Ownership: | 100.0000000000% |
| | | Exemptions: | |
Pay Tax Due
There is currently No Amount Due on this property.
Taxes and Assessment Details
Property Tax Information as of
10/24/2025
Click on "Statement Details" to expand or collapse a tax statement.
* Please enter a valid date ** Please enter a valid date *
Statement Details |
| | TOTAL: | $0.00 | $0.00 | $0.00 | $0.00 | $0.00 | $0.00 |
|
| | $0.00 | $0.00 | $0.00 | $0.00 | $0.00 | $0.00 |
Values
| (+) Improvement Homesite Value: | + | $189,780 | |
| (+) Improvement Non-Homesite Value: | + | $0 | |
| (+) Land Homesite Value: | + | $109,200 | |
| (+) Land Non-Homesite Value: | + | $0 | |
| (+) Curr Use (HS): | + | $0 | $0 |
| (+) Curr Use (NHS): | + | $0 | $0 |
| | | -------------------------- | |
| (=) Market Value: | = | $298,980 | |
| (–) Productivity Loss: | – | $0 | |
| | | -------------------------- | |
| (=) Subtotal: | = | $298,980 | |
| (+) Senior Appraised Value: | + | $0 | |
| (+) Non-Senior Appraised Value: | + | $298,980 | |
| | | -------------------------- | |
| (=) Total Appraised Value: | = | $298,980 | |
| (–) Senior Exemption Loss: | – | $0 | |
| (–) Exemption Loss: | – | $0 | |
| | | -------------------------- | |
| (=) Taxable Value: | = | $298,980 | |
Taxing Jurisdiction
| Owner: | ROBERT AND KELILA HELLER | | |
| % Ownership: | 100.0000000000% | | |
| Total Value: | N/A | | |
| Tax Area: | 0211 - 1-49F1E1H2L1 |
| CE | COUNTY CURRENT EXPENSE | N/A | N/A | N/A | N/A | | |
| CNTYDD | DEVELOPMENTAL DISABILITIES | N/A | N/A | N/A | N/A | | |
| CNTYVET | VETERANS RELIEF | N/A | N/A | N/A | N/A | | |
| MENTAL | MENTAL HEALTH | N/A | N/A | N/A | N/A | | |
| ROADS | COUNTY ROADS | N/A | N/A | N/A | N/A | | |
| ROADSCU | COUNTY ROADS TO CUR EXP | N/A | N/A | N/A | N/A | | |
| HOSP2CASH | HOSP DIST #2 GENERAL | N/A | N/A | N/A | N/A | | |
| SCH49CP | SCHOOL DIST #49 CAP PROJ | N/A | N/A | N/A | N/A | | |
| SCH49MO | SCHOOL DIST #49 EP & O | N/A | N/A | N/A | N/A | | |
| CONSERVE | CONSERVATION FUTURES | N/A | N/A | N/A | N/A | | |
| EMS1 | FIRE DIST #1 EMS | N/A | N/A | N/A | N/A | | |
| FD1 | FIRE DIST #1 GENERAL | N/A | N/A | N/A | N/A | | |
| LIB1 | LIBRARY DIST #1 GENERAL | N/A | N/A | N/A | N/A | | |
| PORTPT | PORT OF PT GENERAL | N/A | N/A | N/A | N/A | | |
| PORTPTIDD | PORT OF PT IDD 2019 | N/A | N/A | N/A | N/A | | |
| PUD1 | PUD #1 GENERAL | N/A | N/A | N/A | N/A | | |
| STATE | STATE SCHOOL PART 1 | N/A | N/A | N/A | N/A | | |
| STATE2 | STATE SCHOOL PART 2 | N/A | N/A | N/A | N/A | | |
| | Total Tax Rate: | N/A | | | | | |
| | | | | Taxes w/Current Exemptions: | N/A | | |
| | | | | Taxes w/o Exemptions: | N/A | | |
Improvement / Building
| Improvement #1: | Residential Bldg | State Code: | 11 | 1512.0 sqft | Value: | $189,780 |
| Bathrooms (#): | 2 (FULL) | Bedrooms (#): | 3 | | Exterior Wall: | PL/T1 | Fireplace: | WD ST-AVG | | Floor Construction: | FRAME | Foundation: | PO&BL | | Heating/Cooling: | WD/NO | Inside Verify: | YES-FIX | | Roof Cover: | METAL |   |   |
|
| | Type | Description | Class CD | Sub Class CD | Year Built | Area |
| | MA | Main Area | 4 | 15SF | 1982 | 1008.0 |
| | MA2 | Second Floor Main Area | 4 | 15SF | 1982 | 504.0 |
| | HDECK | House Deck | 4 | * | 1982 | 140.0 |
Sketch
Property Image
Land
| 1 | 4130-1187L | Irondale Lots XS Lots to make up Site | 0.0000 | 0.00 | 0.00 | 0.00 | 4.00 | $14,700 | $0 |
| 2 | 4130-1275S | Irondale 2 Lot Sites Filtered Terr Views | 0.0000 | 0.00 | 0.00 | 0.00 | 1.00 | $94,500 | $0 |
Roll Value History
| 2025 | N/A | N/A | N/A | N/A | N/A |
| 2024 | $189,780 | $109,200 | $0 | $298,980 | $298,980 |
| 2023 | $105,893 | $89,000 | $0 | $194,893 | $194,893 |
| 2022 | $105,774 | $65,400 | $0 | $171,174 | $10,100 |
| 2021 | $83,948 | $57,730 | $0 | $141,678 | $10,100 |
Deed and Sales History
| 1 | 11/13/2023 | SWD | Statutory Warranty Deed | KIT H KAYLOR | ROBERT AND KELILA HELLER | | | $409,500.00 | 141912 | |
| 2 | 11/13/2023 | QCD | Quit Claim Deed | SARAH HOPKINS | TRAVIS HELLER | | | | 141913 | |
| 3 | 08/08/2023 | QCD | Quit Claim Deed | LIVING TRUST OF KIT H KAYLOR | KIT H KAYLOR | | | | 141351 | |
| 4 | 09/25/2023 | QCD | Quit Claim Deed | LIVING TRUST OF KIT H KAYLOR | KIT H KAYLOR | | | | 141609 | |
| 5 | 06/15/2023 | QCD | Quit Claim Deed | KIT H KAYLOR | LIVING TRUST OF KIT H KAYLOR | | | | 141071 | |
Payout Agreement
| No payout information available.. |