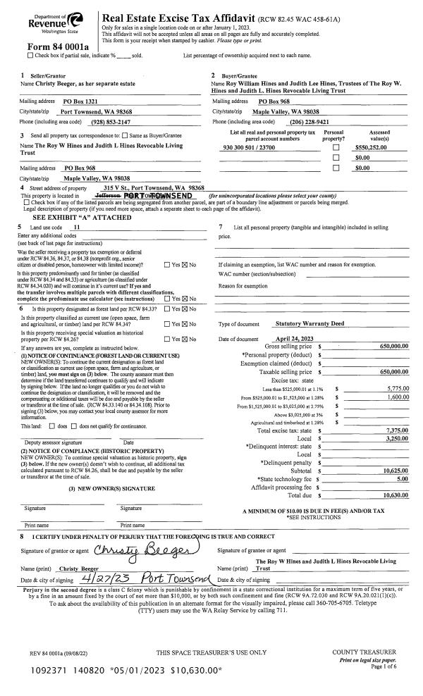
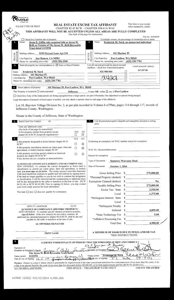
Property
Account |
| Property ID: | 31013 | Abbreviated Legal Description: | IRONDALE #1 BLK 16 LOTS 33 THRU 36 |
| Parcel # / Geo ID: | 961801611 | Agent Code: | |
| Type: | Real | | |
| Tax Area: | 0211 - 1-49F1E1H2L1 | Land Use Code | 11 |
| Open Space: | N | DFL | N |
| Historic Property: | N | Remodel Property: | N |
| Multi-Family Redevelopment: | N | | |
| Township: | 30N | Section: | 35 |
| Range: | 1W |
Location |
| Address: | 161 E MOORE ST PORT HADLOCK, WA 98339 | Mapsco: | 036/051 |
| Neighborhood: | IRONDALE BLOCKS 1 - 47 | Map ID: | |
| Neighborhood CD: | 4130 |
Owner |
| Name: | AARON & TANYA BARNETT | Owner ID: | 90108 |
| Mailing Address: | 201 E MOORE ST PORT HADLOCK, WA 98339-9621 | % Ownership: | 100.0000000000% |
| | | Exemptions: | |
Pay Tax Due
There is currently No Amount Due on this property.
Taxes and Assessment Details
Property Tax Information as of
10/24/2025
Click on "Statement Details" to expand or collapse a tax statement.
* Please enter a valid date ** Please enter a valid date *
Statement Details |
| | TOTAL: | $0.00 | $0.00 | $0.00 | $0.00 | $0.00 | $0.00 |
|
| | $0.00 | $0.00 | $0.00 | $0.00 | $0.00 | $0.00 |
Values
| (+) Improvement Homesite Value: | + | $0 | |
| (+) Improvement Non-Homesite Value: | + | $27,349 | |
| (+) Land Homesite Value: | + | $0 | |
| (+) Land Non-Homesite Value: | + | $91,350 | |
| (+) Curr Use (HS): | + | $0 | $0 |
| (+) Curr Use (NHS): | + | $0 | $0 |
| | | -------------------------- | |
| (=) Market Value: | = | $118,699 | |
| (–) Productivity Loss: | – | $0 | |
| | | -------------------------- | |
| (=) Subtotal: | = | $118,699 | |
| (+) Senior Appraised Value: | + | $0 | |
| (+) Non-Senior Appraised Value: | + | $118,699 | |
| | | -------------------------- | |
| (=) Total Appraised Value: | = | $118,699 | |
| (–) Senior Exemption Loss: | – | $0 | |
| (–) Exemption Loss: | – | $0 | |
| | | -------------------------- | |
| (=) Taxable Value: | = | $118,699 | |
Taxing Jurisdiction
| Owner: | AARON & TANYA BARNETT | | |
| % Ownership: | 100.0000000000% | | |
| Total Value: | N/A | | |
| Tax Area: | 0211 - 1-49F1E1H2L1 |
| CE | COUNTY CURRENT EXPENSE | N/A | N/A | N/A | N/A | | |
| CNTYDD | DEVELOPMENTAL DISABILITIES | N/A | N/A | N/A | N/A | | |
| CNTYVET | VETERANS RELIEF | N/A | N/A | N/A | N/A | | |
| MENTAL | MENTAL HEALTH | N/A | N/A | N/A | N/A | | |
| ROADS | COUNTY ROADS | N/A | N/A | N/A | N/A | | |
| ROADSCU | COUNTY ROADS TO CUR EXP | N/A | N/A | N/A | N/A | | |
| HOSP2CASH | HOSP DIST #2 GENERAL | N/A | N/A | N/A | N/A | | |
| SCH49CP | SCHOOL DIST #49 CAP PROJ | N/A | N/A | N/A | N/A | | |
| SCH49MO | SCHOOL DIST #49 EP & O | N/A | N/A | N/A | N/A | | |
| CONSERVE | CONSERVATION FUTURES | N/A | N/A | N/A | N/A | | |
| EMS1 | FIRE DIST #1 EMS | N/A | N/A | N/A | N/A | | |
| FD1 | FIRE DIST #1 GENERAL | N/A | N/A | N/A | N/A | | |
| LIB1 | LIBRARY DIST #1 GENERAL | N/A | N/A | N/A | N/A | | |
| PORTPT | PORT OF PT GENERAL | N/A | N/A | N/A | N/A | | |
| PORTPTIDD | PORT OF PT IDD 2019 | N/A | N/A | N/A | N/A | | |
| PUD1 | PUD #1 GENERAL | N/A | N/A | N/A | N/A | | |
| STATE | STATE SCHOOL PART 1 | N/A | N/A | N/A | N/A | | |
| STATE2 | STATE SCHOOL PART 2 | N/A | N/A | N/A | N/A | | |
| | Total Tax Rate: | N/A | | | | | |
| | | | | Taxes w/Current Exemptions: | N/A | | |
| | | | | Taxes w/o Exemptions: | N/A | | |
Improvement / Building
| Improvement #1: | Residential Bldg | State Code: | 11 | 115.0 sqft | Value: | $27,349 |
| | Type | Description | Class CD | Sub Class CD | Year Built | Area |
| | ADDN | Addition (Table Not Dep) | 3 | * | 1966 | 192.0 |
| | GARAG | Garage (Table Not Dep) | 2 | * | 1966 | 324.0 |
| | MA | Main Area | 3 | 1S | 1966 | 115.0 |
Sketch
Property Image
Land
| 1 | 4130-1187L | Irondale Lots XS Lots to make up Site | 0.0000 | 0.00 | 0.00 | 0.00 | 2.00 | $7,350 | $0 |
| 2 | 4130-1285S | Irondale 2 Lot Sites No/Filtered Views | 0.0000 | 0.00 | 0.00 | 0.00 | 1.00 | $84,000 | $0 |
Roll Value History
| 2025 | N/A | N/A | N/A | N/A | N/A |
| 2024 | $27,349 | $91,350 | $0 | $118,699 | $118,699 |
| 2023 | $26,106 | $82,000 | $0 | $108,106 | $108,106 |
| 2022 | $36,570 | $60,200 | $0 | $96,770 | $96,770 |
| 2021 | $30,475 | $52,670 | $0 | $83,145 | $83,145 |
Deed and Sales History
| 1 | 08/25/2015 | SWD | Statutory Warranty Deed | GEORGE & ELEANORE LUEDKE | AARON & TANYA BARNETT | | | $26,000.00 | 123886 | |
| 2 | 07/16/2013 | SWD | Statutory Warranty Deed | LUCILLE L FARRIS | GEORGE & ELEANORE LUEDKE | | | $20,000.00 | 119629 | |
| 3 | 10/04/1995 | QCD | Quit Claim Deed | FARRIS, ERNEST K | FARRIS, ERNEST K/LUCILLE L | 0 | 0 | $0.00 | 77922 | 0 |
Payout Agreement
| No payout information available.. |