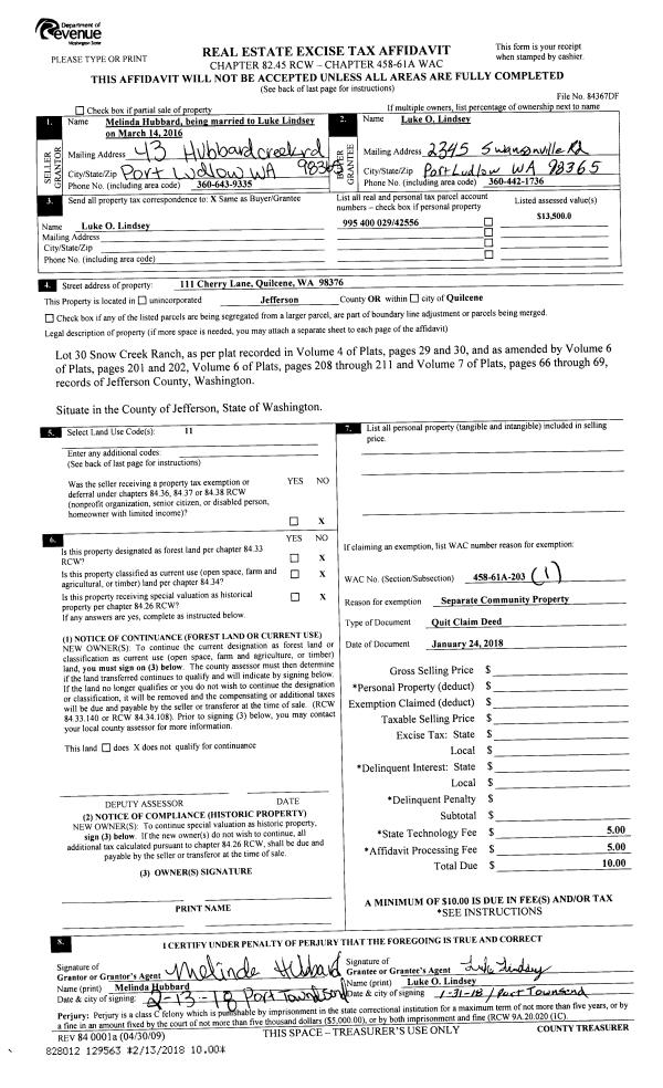
Property
Account |
| Property ID: | 31029 | Abbreviated Legal Description: | IRONDALE #1 BLK 18 LOTS 17 & 18 |
| Parcel # / Geo ID: | 961801803 | Agent Code: | |
| Type: | Real | | |
| Tax Area: | 0211 - 1-49F1E1H2L1 | Land Use Code | 11 |
| Open Space: | N | DFL | N |
| Historic Property: | N | Remodel Property: | N |
| Multi-Family Redevelopment: | N | | |
| Township: | 30N | Section: | 35 |
| Range: | 1W |
Location |
| Address: | 164 E PRICE ST PORT HADLOCK, WA 98339 | Mapsco: | 037/003 |
| Neighborhood: | IRONDALE BLOCKS 1 - 47 | Map ID: | |
| Neighborhood CD: | 4130 |
Owner |
| Name: | SHILAE A SMITH TRUST | Owner ID: | 112119 |
| Mailing Address: | SHILAE A SMITH TRUSTEE 156 PRICE ST PORT HADLOCK, WA 98339-9629 | % Ownership: | 100.0000000000% |
| | | Exemptions: | |
Pay Tax Due
There is currently No Amount Due on this property.
Taxes and Assessment Details
Property Tax Information as of
10/24/2025
Click on "Statement Details" to expand or collapse a tax statement.
* Please enter a valid date ** Please enter a valid date *
Statement Details |
| | TOTAL: | $0.00 | $0.00 | $0.00 | $0.00 | $0.00 | $0.00 |
|
| | $0.00 | $0.00 | $0.00 | $0.00 | $0.00 | $0.00 |
Values
| (+) Improvement Homesite Value: | + | $0 | |
| (+) Improvement Non-Homesite Value: | + | $37,313 | |
| (+) Land Homesite Value: | + | $0 | |
| (+) Land Non-Homesite Value: | + | $78,750 | |
| (+) Curr Use (HS): | + | $0 | $0 |
| (+) Curr Use (NHS): | + | $0 | $0 |
| | | -------------------------- | |
| (=) Market Value: | = | $116,063 | |
| (–) Productivity Loss: | – | $0 | |
| | | -------------------------- | |
| (=) Subtotal: | = | $116,063 | |
| (+) Senior Appraised Value: | + | $0 | |
| (+) Non-Senior Appraised Value: | + | $116,063 | |
| | | -------------------------- | |
| (=) Total Appraised Value: | = | $116,063 | |
| (–) Senior Exemption Loss: | – | $0 | |
| (–) Exemption Loss: | – | $0 | |
| | | -------------------------- | |
| (=) Taxable Value: | = | $116,063 | |
Taxing Jurisdiction
| Owner: | SHILAE A SMITH TRUST | | |
| % Ownership: | 100.0000000000% | | |
| Total Value: | N/A | | |
| Tax Area: | 0211 - 1-49F1E1H2L1 |
| CE | COUNTY CURRENT EXPENSE | N/A | N/A | N/A | N/A | | |
| CNTYDD | DEVELOPMENTAL DISABILITIES | N/A | N/A | N/A | N/A | | |
| CNTYVET | VETERANS RELIEF | N/A | N/A | N/A | N/A | | |
| MENTAL | MENTAL HEALTH | N/A | N/A | N/A | N/A | | |
| ROADS | COUNTY ROADS | N/A | N/A | N/A | N/A | | |
| ROADSCU | COUNTY ROADS TO CUR EXP | N/A | N/A | N/A | N/A | | |
| HOSP2CASH | HOSP DIST #2 GENERAL | N/A | N/A | N/A | N/A | | |
| SCH49CP | SCHOOL DIST #49 CAP PROJ | N/A | N/A | N/A | N/A | | |
| SCH49MO | SCHOOL DIST #49 EP & O | N/A | N/A | N/A | N/A | | |
| CONSERVE | CONSERVATION FUTURES | N/A | N/A | N/A | N/A | | |
| EMS1 | FIRE DIST #1 EMS | N/A | N/A | N/A | N/A | | |
| FD1 | FIRE DIST #1 GENERAL | N/A | N/A | N/A | N/A | | |
| LIB1 | LIBRARY DIST #1 GENERAL | N/A | N/A | N/A | N/A | | |
| PORTPT | PORT OF PT GENERAL | N/A | N/A | N/A | N/A | | |
| PORTPTIDD | PORT OF PT IDD 2019 | N/A | N/A | N/A | N/A | | |
| PUD1 | PUD #1 GENERAL | N/A | N/A | N/A | N/A | | |
| STATE | STATE SCHOOL PART 1 | N/A | N/A | N/A | N/A | | |
| STATE2 | STATE SCHOOL PART 2 | N/A | N/A | N/A | N/A | | |
| | Total Tax Rate: | N/A | | | | | |
| | | | | Taxes w/Current Exemptions: | N/A | | |
| | | | | Taxes w/o Exemptions: | N/A | | |
Improvement / Building
| Improvement #1: | Manufactured Home | State Code: | 11M | 200.0 sqft | Value: | $37,313 |
| Exterior Wall: | SI/ST | Foundation: | CONPR | | Roof Cover: | METAL |   |   |
|
| | Type | Description | Class CD | Sub Class CD | Year Built | Area |
| | MA | Main Area | 2+ | MPARK | 2021 | 200.0 |
| | SHED | Shed (Table Not Dep) | 2 | * | 2021 | 0.0 |
Sketch
Property Image
Land
| 1 | 4130-1275S | Irondale 2 Lot Sites Filtered Terr Views | 0.0000 | 0.00 | 0.00 | 0.00 | 1.00 | $78,750 | $0 |
Roll Value History
| 2025 | N/A | N/A | N/A | N/A | N/A |
| 2024 | $37,313 | $78,750 | $0 | $116,063 | $116,063 |
| 2023 | $35,617 | $70,000 | $0 | $105,617 | $105,617 |
| 2022 | $5,885 | $53,750 | $0 | $59,635 | $59,635 |
| 2021 | $4,670 | $47,610 | $0 | $52,280 | $52,280 |
Deed and Sales History
| 1 | 12/05/2024 | QCD | Quit Claim Deed | THOMAS NEW | SHILAE A SMITH TRUST | | | | 143867 | |
| 2 | 08/22/2018 | QCD | Quit Claim Deed | GORDON HAMILTON | THOMAS NEW | | | $38,680.00 | 130852 | |
| 3 | 03/24/2004 | QCD | Quit Claim Deed | BOYD REAL ESTATE INVESTME | HAMILTON, GORDON F | 0 | 0 | $40,105.00 | 100016 | 0 |
| 4 | 01/05/2004 | QCD | Quit Claim Deed | BARTLETT, JOY M | BOYD REAL ESTATE INVESTMENTS | 0 | 0 | $0.00 | 99261 | 0 |
| 5 | 12/02/1997 | SWD | Statutory Warranty Deed | BOYD REAL ESTATE INVESTME | BARTLETT, JOY M | 0 | 0 | $57,000.00 | 83339 | 0 |
| 6 | 06/16/1997 | QCD | Quit Claim Deed | BROWN, ROGER L/MARIE A | BOYD REAL ESTATE INVESTMENTS | 0 | 0 | $0.00 | 82164 | 0 |
| 7 | 10/06/1995 | SWD | Statutory Warranty Deed | HENSEL, MICHAEL C/JUDIE L | BROWN, ROGER | 0 | 0 | $10,000.00 | 78000 | 0 |
| 8 | 10/06/1995 | QCD | Quit Claim Deed | BROWN, MARIE | BROWN, ROGER | 0 | 0 | $0.00 | 78001 | 0 |
| 9 | 02/27/1992 | SWD | Statutory Warranty Deed | EDWARDS, JOHN R/DOROTHY L | ELLIS, DIANNA | 0 | 0 | $0.00 | 67914 | 0 |
Payout Agreement
| No payout information available.. |