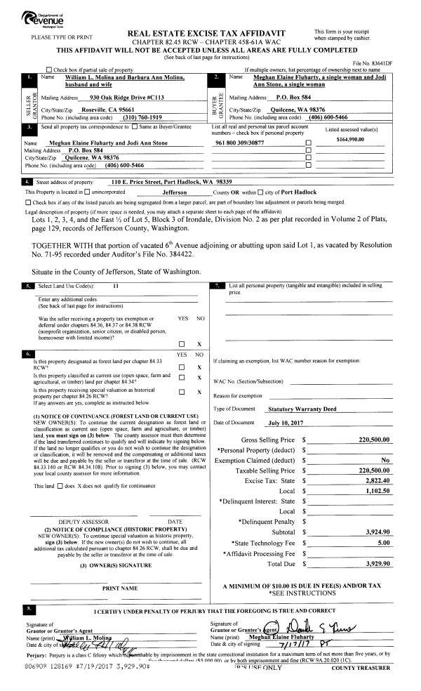
Property
Account |
| Property ID: | 31071 | Abbreviated Legal Description: | IRONDALE #1 BLK 22 LOTS 33 & 34 |
| Parcel # / Geo ID: | 961802206 | Agent Code: | |
| Type: | Real | | |
| Tax Area: | 0211 - 1-49F1E1H2L1 | Land Use Code | 11 |
| Open Space: | N | DFL | N |
| Historic Property: | N | Remodel Property: | N |
| Multi-Family Redevelopment: | N | | |
| Township: | 30N | Section: | 35 |
| Range: | 1W |
Location |
| Address: | 711 IRONDALE RD PORT HADLOCK, WA 98339 | Mapsco: | 038/006 |
| Neighborhood: | IRONDALE BLOCKS 1 - 47 | Map ID: | |
| Neighborhood CD: | 4130 |
Owner |
| Name: | KATHRYN & CHAD NORRIS | Owner ID: | 98808 |
| Mailing Address: | 110 VIEWPOINT LN PORT TOWNSEND, WA 98368-9268 | % Ownership: | 100.0000000000% |
| | | Exemptions: | |
Pay Tax Due
There is currently No Amount Due on this property.
Taxes and Assessment Details
Property Tax Information as of
10/24/2025
Click on "Statement Details" to expand or collapse a tax statement.
* Please enter a valid date ** Please enter a valid date *
Statement Details |
| | TOTAL: | $0.00 | $0.00 | $0.00 | $0.00 | $0.00 | $0.00 |
|
| | $0.00 | $0.00 | $0.00 | $0.00 | $0.00 | $0.00 |
Values
| (+) Improvement Homesite Value: | + | $0 | |
| (+) Improvement Non-Homesite Value: | + | $84,951 | |
| (+) Land Homesite Value: | + | $0 | |
| (+) Land Non-Homesite Value: | + | $84,000 | |
| (+) Curr Use (HS): | + | $0 | $0 |
| (+) Curr Use (NHS): | + | $0 | $0 |
| | | -------------------------- | |
| (=) Market Value: | = | $168,951 | |
| (–) Productivity Loss: | – | $0 | |
| | | -------------------------- | |
| (=) Subtotal: | = | $168,951 | |
| (+) Senior Appraised Value: | + | $0 | |
| (+) Non-Senior Appraised Value: | + | $168,951 | |
| | | -------------------------- | |
| (=) Total Appraised Value: | = | $168,951 | |
| (–) Senior Exemption Loss: | – | $0 | |
| (–) Exemption Loss: | – | $0 | |
| | | -------------------------- | |
| (=) Taxable Value: | = | $168,951 | |
Taxing Jurisdiction
| Owner: | KATHRYN & CHAD NORRIS | | |
| % Ownership: | 100.0000000000% | | |
| Total Value: | N/A | | |
| Tax Area: | 0211 - 1-49F1E1H2L1 |
| CE | COUNTY CURRENT EXPENSE | N/A | N/A | N/A | N/A | | |
| CNTYDD | DEVELOPMENTAL DISABILITIES | N/A | N/A | N/A | N/A | | |
| CNTYVET | VETERANS RELIEF | N/A | N/A | N/A | N/A | | |
| MENTAL | MENTAL HEALTH | N/A | N/A | N/A | N/A | | |
| ROADS | COUNTY ROADS | N/A | N/A | N/A | N/A | | |
| ROADSCU | COUNTY ROADS TO CUR EXP | N/A | N/A | N/A | N/A | | |
| HOSP2CASH | HOSP DIST #2 GENERAL | N/A | N/A | N/A | N/A | | |
| SCH49CP | SCHOOL DIST #49 CAP PROJ | N/A | N/A | N/A | N/A | | |
| SCH49MO | SCHOOL DIST #49 EP & O | N/A | N/A | N/A | N/A | | |
| CONSERVE | CONSERVATION FUTURES | N/A | N/A | N/A | N/A | | |
| EMS1 | FIRE DIST #1 EMS | N/A | N/A | N/A | N/A | | |
| FD1 | FIRE DIST #1 GENERAL | N/A | N/A | N/A | N/A | | |
| LIB1 | LIBRARY DIST #1 GENERAL | N/A | N/A | N/A | N/A | | |
| PORTPT | PORT OF PT GENERAL | N/A | N/A | N/A | N/A | | |
| PORTPTIDD | PORT OF PT IDD 2019 | N/A | N/A | N/A | N/A | | |
| PUD1 | PUD #1 GENERAL | N/A | N/A | N/A | N/A | | |
| STATE | STATE SCHOOL PART 1 | N/A | N/A | N/A | N/A | | |
| STATE2 | STATE SCHOOL PART 2 | N/A | N/A | N/A | N/A | | |
| | Total Tax Rate: | N/A | | | | | |
| | | | | Taxes w/Current Exemptions: | N/A | | |
| | | | | Taxes w/o Exemptions: | N/A | | |
Improvement / Building
| Improvement #1: | Residential Bldg | State Code: | 11 | 440.0 sqft | Value: | $84,951 |
| Bathrooms (#): | 1 (FULL) | Bedrooms (#): | 1 | | Exterior Wall: | SI/ST | Floor Construction: | FRAME | | Foundation: | PO&BL | Heating/Cooling: | ELBB | | Inside Verify: | YES-FIX | Roof Cover: | SHNGL |
|
| | Type | Description | Class CD | Sub Class CD | Year Built | Area |
| | MA | Main Area | 4 | 1S | 1940 | 440.0 |
| | HENCL | House Enclosure | 3 | * | 1940 | 64.0 |
Sketch
Property Image
Land
| 1 | 4130-1285S | Irondale 2 Lot Sites No/Filtered Views | 0.0000 | 0.00 | 0.00 | 0.00 | 1.00 | $84,000 | $0 |
Roll Value History
| 2025 | N/A | N/A | N/A | N/A | N/A |
| 2024 | $84,951 | $84,000 | $0 | $168,951 | $168,951 |
| 2023 | $81,089 | $75,000 | $0 | $156,089 | $156,089 |
| 2022 | $67,786 | $55,000 | $0 | $122,786 | $122,786 |
| 2021 | $53,798 | $47,610 | $0 | $101,408 | $101,408 |
Deed and Sales History
| 1 | 03/08/2018 | SPWD | Special Warranty Deed | FEDERAL HOME LOAN MTG CORP | KATHRYN & CHAD NORRIS | | | $66,000.00 | 129714 | |
| 2 | 05/26/2017 | TRED | Trustee Deed | PEGGY J WATSON | FEDERAL HOME LOAN MTG CORP | | | | 127778 | |
| 3 | 06/23/1997 | SWD | Statutory Warranty Deed | DYKSTRA, LYNN | WATSON, PEGGY J | 0 | 0 | $49,500.00 | 82189 | 0 |
| 4 | 09/12/1995 | QCD | Quit Claim Deed | HAWKE, JANET B/DYKSTRA, L | HAWKE, JANET B/DYKSTRA, LYNN | 0 | 0 | $0.00 | 77790 | 0 |
Payout Agreement
| No payout information available.. |