Property
Account |
| Property ID: | 31131 | Abbreviated Legal Description: | IRONDALE #1 BLK 28 LOTS 1 THRU 4 |
| Parcel # / Geo ID: | 961802801 | Agent Code: | |
| Type: | Real | | |
| Tax Area: | 0211 - 1-49F1E1H2L1 | Land Use Code | 91 |
| Open Space: | N | DFL | N |
| Historic Property: | N | Remodel Property: | N |
| Multi-Family Redevelopment: | N | | |
| Township: | 30N | Section: | 35 |
| Range: | 1W |
Location |
| Address: | | Mapsco: | 039/017 |
| Neighborhood: | IRONDALE BLOCKS 1 - 47 | Map ID: | |
| Neighborhood CD: | 4130 |
Owner |
| Name: | JAMES L & FRIEDA G MORGAN JTWROS | Owner ID: | 95504 |
| Mailing Address: | PO BOX 535 PORT HADLOCK, WA 98339 | % Ownership: | 100.0000000000% |
| | | Exemptions: | |
Pay Tax Due
There is currently No Amount Due on this property.
Taxes and Assessment Details
Property Tax Information as of
10/24/2025
Click on "Statement Details" to expand or collapse a tax statement.
* Please enter a valid date ** Please enter a valid date *
Statement Details |
| | TOTAL: | $0.00 | $0.00 | $0.00 | $0.00 | $0.00 | $0.00 |
|
| | $0.00 | $0.00 | $0.00 | $0.00 | $0.00 | $0.00 |
Values
| (+) Improvement Homesite Value: | + | $0 | |
| (+) Improvement Non-Homesite Value: | + | $0 | |
| (+) Land Homesite Value: | + | $0 | |
| (+) Land Non-Homesite Value: | + | $9,555 | |
| (+) Curr Use (HS): | + | $0 | $0 |
| (+) Curr Use (NHS): | + | $0 | $0 |
| | | -------------------------- | |
| (=) Market Value: | = | $9,555 | |
| (–) Productivity Loss: | – | $0 | |
| | | -------------------------- | |
| (=) Subtotal: | = | $9,555 | |
| (+) Senior Appraised Value: | + | $0 | |
| (+) Non-Senior Appraised Value: | + | $9,555 | |
| | | -------------------------- | |
| (=) Total Appraised Value: | = | $9,555 | |
| (–) Senior Exemption Loss: | – | $0 | |
| (–) Exemption Loss: | – | $0 | |
| | | -------------------------- | |
| (=) Taxable Value: | = | $9,555 | |
Taxing Jurisdiction
| Owner: | JAMES L & FRIEDA G MORGAN JTWROS | | |
| % Ownership: | 100.0000000000% | | |
| Total Value: | N/A | | |
| Tax Area: | 0211 - 1-49F1E1H2L1 |
| CE | COUNTY CURRENT EXPENSE | N/A | N/A | N/A | N/A | | |
| CNTYDD | DEVELOPMENTAL DISABILITIES | N/A | N/A | N/A | N/A | | |
| CNTYVET | VETERANS RELIEF | N/A | N/A | N/A | N/A | | |
| MENTAL | MENTAL HEALTH | N/A | N/A | N/A | N/A | | |
| ROADS | COUNTY ROADS | N/A | N/A | N/A | N/A | | |
| ROADSCU | COUNTY ROADS TO CUR EXP | N/A | N/A | N/A | N/A | | |
| HOSP2CASH | HOSP DIST #2 GENERAL | N/A | N/A | N/A | N/A | | |
| SCH49CP | SCHOOL DIST #49 CAP PROJ | N/A | N/A | N/A | N/A | | |
| SCH49MO | SCHOOL DIST #49 EP & O | N/A | N/A | N/A | N/A | | |
| CONSERVE | CONSERVATION FUTURES | N/A | N/A | N/A | N/A | | |
| EMS1 | FIRE DIST #1 EMS | N/A | N/A | N/A | N/A | | |
| FD1 | FIRE DIST #1 GENERAL | N/A | N/A | N/A | N/A | | |
| LIB1 | LIBRARY DIST #1 GENERAL | N/A | N/A | N/A | N/A | | |
| PORTPT | PORT OF PT GENERAL | N/A | N/A | N/A | N/A | | |
| PORTPTIDD | PORT OF PT IDD 2019 | N/A | N/A | N/A | N/A | | |
| PUD1 | PUD #1 GENERAL | N/A | N/A | N/A | N/A | | |
| STATE | STATE SCHOOL PART 1 | N/A | N/A | N/A | N/A | | |
| STATE2 | STATE SCHOOL PART 2 | N/A | N/A | N/A | N/A | | |
| | Total Tax Rate: | N/A | | | | | |
| | | | | Taxes w/Current Exemptions: | N/A | | |
| | | | | Taxes w/o Exemptions: | N/A | | |
Improvement / Building
Sketch
| No sketches available for this property. |
Property Image
Land
| 1 | 4130-1187L | Irondale Lots XS Lots to make up Site | 0.0000 | 0.00 | 0.00 | 0.00 | 4.00 | $9,555 | $0 |
Roll Value History
| 2025 | N/A | N/A | N/A | N/A | N/A |
| 2024 | $0 | $9,555 | $0 | $9,555 | $9,555 |
| 2023 | $0 | $9,100 | $0 | $9,100 | $9,100 |
| 2022 | $0 | $6,760 | $0 | $6,760 | $6,760 |
| 2021 | $0 | $6,578 | $0 | $6,578 | $6,578 |
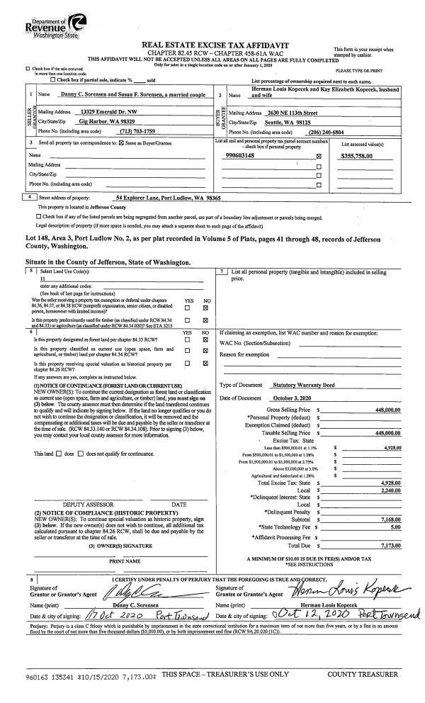
Deed and Sales History
| 1 | 11/09/2024 | PRD | Personal Representatives Deed | | JAMES L & FRIEDA G MORGAN JTWROS | | | | 143983 | |
| 2 | 04/22/2021 | QCD | Quit Claim Deed | JAMES L & FRIEDA G MORGAN JTWROS | JAMES L & FRIEDA G MORGAN JTWROS | | | | 136660 | |
| 3 | 05/24/2016 | SWD | Statutory Warranty Deed | JEFF MC KEAN | JAMES L & FRIEDA G MORGAN JTWROS | | | $290,000.00 | 125509 | |
|   | |
| 4 | 03/08/2005 | SWD | Statutory Warranty Deed | ROWE, GORDON/DENA ANNE | MCKEAN, JEFFERY R | 0 | 0 | $5,000.00 | 102937 | 0 |
| 5 | 11/17/1997 | SWD | Statutory Warranty Deed | HADLOCK LIONS | ROWE, GORDON/DENA | 0 | 0 | $4,800.00 | 83209 | 0 |
| 6 | 12/23/1994 | QCD | Quit Claim Deed | CARTER, H KENNITH/TILLIE | HADLOCK LIONS | 0 | 0 | $0.00 | 75892 | 0 |
Payout Agreement
| No payout information available.. |