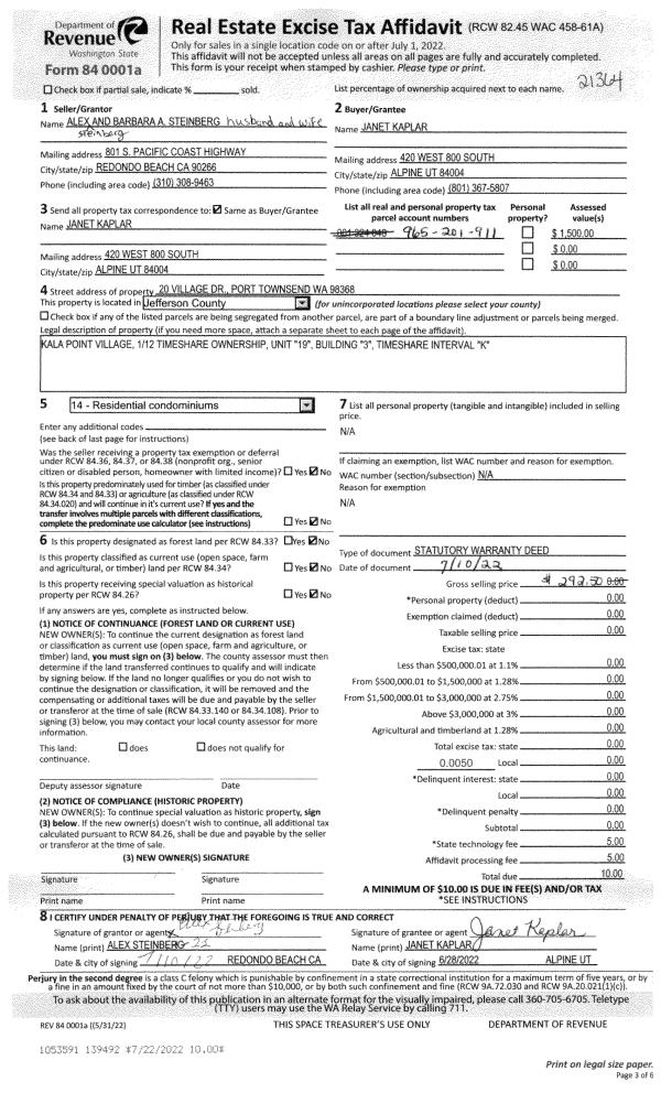
Property
Account |
| Property ID: | 31210 | Abbreviated Legal Description: | IRONDALE #1 BLK 39 LOTS 11 & 12 |
| Parcel # / Geo ID: | 961803903 | Agent Code: | |
| Type: | Real | | |
| Tax Area: | 0211 - 1-49F1E1H2L1 | Land Use Code | 11 |
| Open Space: | N | DFL | N |
| Historic Property: | N | Remodel Property: | N |
| Multi-Family Redevelopment: | N | | |
| Township: | 30N | Section: | 2 |
| Range: | 1W |
Location |
| Address: | 131 MARKET ST PORT HADLOCK, WA 98339 | Mapsco: | 040/048 |
| Neighborhood: | IRONDALE BLOCKS 1 - 47 | Map ID: | |
| Neighborhood CD: | 4130 |
Owner |
| Name: | LABRENDA J LEWIS | Owner ID: | 95559 |
| Mailing Address: | PO BOX 266 PORT HADLOCK, WA 98339 | % Ownership: | 100.0000000000% |
| | | Exemptions: | SNR/DSBL |
Pay Tax Due
There is currently No Amount Due on this property.
Taxes and Assessment Details
Property Tax Information as of
10/24/2025
Click on "Statement Details" to expand or collapse a tax statement.
* Please enter a valid date ** Please enter a valid date *
Statement Details |
| | TOTAL: | $0.00 | $0.00 | $0.00 | $0.00 | $0.00 | $0.00 |
|
| | $0.00 | $0.00 | $0.00 | $0.00 | $0.00 | $0.00 |
Values
| (+) Improvement Homesite Value: | + | $291,385 | |
| (+) Improvement Non-Homesite Value: | + | $0 | |
| (+) Land Homesite Value: | + | $149,625 | |
| (+) Land Non-Homesite Value: | + | $0 | |
| (+) Curr Use (HS): | + | $0 | $0 |
| (+) Curr Use (NHS): | + | $0 | $0 |
| | | -------------------------- | |
| (=) Market Value: | = | $441,010 | |
| (–) Productivity Loss: | – | $0 | |
| | | -------------------------- | |
| (=) Subtotal: | = | $441,010 | |
| (+) Senior Appraised Value: | + | $223,722 | |
| (+) Non-Senior Appraised Value: | + | $0 | |
| | | -------------------------- | |
| (=) Total Appraised Value: | = | $223,722 | |
| (–) Senior Exemption Loss: | – | $70,000 | |
| (–) Exemption Loss: | – | $0 | |
| | | -------------------------- | |
| (=) Taxable Value: | = | $153,722 | |
Taxing Jurisdiction
| Owner: | LABRENDA J LEWIS | | |
| % Ownership: | 100.0000000000% | | |
| Total Value: | N/A | | |
| Tax Area: | 0211 - 1-49F1E1H2L1 |
| CE | COUNTY CURRENT EXPENSE | N/A | N/A | N/A | N/A | | |
| CNTYDD | DEVELOPMENTAL DISABILITIES | N/A | N/A | N/A | N/A | | |
| CNTYVET | VETERANS RELIEF | N/A | N/A | N/A | N/A | | |
| MENTAL | MENTAL HEALTH | N/A | N/A | N/A | N/A | | |
| ROADS | COUNTY ROADS | N/A | N/A | N/A | N/A | | |
| ROADSCU | COUNTY ROADS TO CUR EXP | N/A | N/A | N/A | N/A | | |
| HOSP2CASH | HOSP DIST #2 GENERAL | N/A | N/A | N/A | N/A | | |
| SCH49CP | SCHOOL DIST #49 CAP PROJ | N/A | N/A | N/A | N/A | | |
| SCH49MO | SCHOOL DIST #49 EP & O | N/A | N/A | N/A | N/A | | |
| CONSERVE | CONSERVATION FUTURES | N/A | N/A | N/A | N/A | | |
| EMS1 | FIRE DIST #1 EMS | N/A | N/A | N/A | N/A | | |
| FD1 | FIRE DIST #1 GENERAL | N/A | N/A | N/A | N/A | | |
| LIB1 | LIBRARY DIST #1 GENERAL | N/A | N/A | N/A | N/A | | |
| PORTPT | PORT OF PT GENERAL | N/A | N/A | N/A | N/A | | |
| PORTPTIDD | PORT OF PT IDD 2019 | N/A | N/A | N/A | N/A | | |
| PUD1 | PUD #1 GENERAL | N/A | N/A | N/A | N/A | | |
| STATE | STATE SCHOOL PART 1 | N/A | N/A | N/A | N/A | | |
| STATE2 | STATE SCHOOL PART 2 | N/A | N/A | N/A | N/A | | |
| | Total Tax Rate: | N/A | | | | | |
| | | | | Taxes w/Current Exemptions: | N/A | | |
| | | | | Taxes w/o Exemptions: | N/A | | |
Improvement / Building
| Improvement #1: | Residential Bldg | State Code: | 11 | 1118.0 sqft | Value: | $291,385 |
| Bathrooms (#): | 1 (FULL) | Bathrooms (#): | 1 (HALF) | | Bedrooms (#): | 2 | Exterior Wall: | SI/ST | | Floor Construction: | FRAME | Foundation: | PO&BL | | Heating/Cooling: | F/A | Roof Cover: | SHNGL |
|
| | Type | Description | Class CD | Sub Class CD | Year Built | Area |
| | MA | Main Area | 5 | 15SF | 1920 | 778.0 |
| | MA2 | Second Floor Main Area | 5 | 15SF | 1920 | 340.0 |
| | HDECK | House Deck | 5 | * | 1920 | 432.0 |
| | GDET | Detached Garage | 2 | 15SF | 1920 | 240.0 |
Sketch
Property Image
Land
| 1 | 4130-1245S | Good Wtr View Sites near Access to Beach | 0.0000 | 0.00 | 0.00 | 0.00 | 1.00 | $149,625 | $0 |
Roll Value History
| 2025 | N/A | N/A | N/A | N/A | N/A |
| 2024 | $291,385 | $149,625 | $0 | $441,010 | $153,722 |
| 2023 | $278,140 | $137,500 | $0 | $415,640 | $153,722 |
| 2022 | $240,491 | $120,000 | $0 | $360,491 | $223,722 |
| 2021 | $190,866 | $105,800 | $0 | $296,666 | $223,722 |
Deed and Sales History
| 1 | 06/01/2016 | SWD | Statutory Warranty Deed | JOHN LYNES | LABRENDA J LEWIS | | | $249,000.00 | 125609 | |
| 2 | 06/24/2005 | SWD | Statutory Warranty Deed | LLOYD TRSTEE, RICHAD L | LYNES, JOHN M/FALKENBERG-LYNES | | | $263,500.00 | 103988 | 0 |
| 3 | 06/24/2003 | SWD | Statutory Warranty Deed | RAYMOR, ANDREA J/CHARLES | LLOYD FAMILY TRUST DTD 3/28/03 | 0 | 0 | $185,000.00 | 97650 | 0 |
| 4 | 03/07/1996 | QCD | Quit Claim Deed | RAYMOR, ANDREA J | RAYMOR, ANDREA J/CHARLES | 0 | 0 | $0.00 | 79020 | 0 |
Payout Agreement
| No payout information available.. |