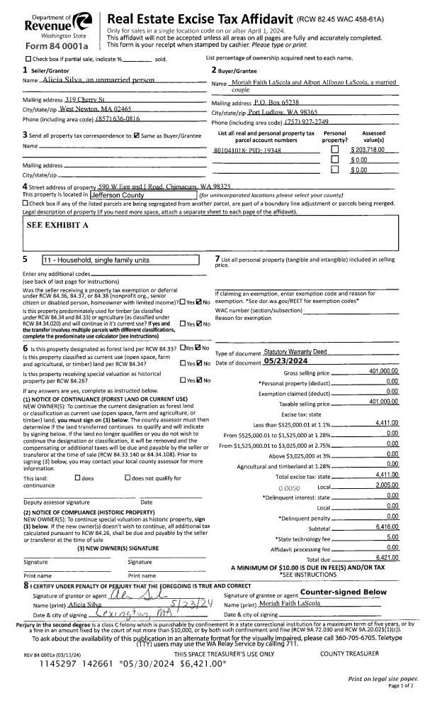
Property
Account |
| Property ID: | 31215 | Abbreviated Legal Description: | IRONDALE #1 BLK 40 TAX 204 BND TGTH THRU BLA#113727 |
| Parcel # / Geo ID: | 961804001 | Agent Code: | |
| Type: | Real | | |
| Tax Area: | 0211 - 1-49F1E1H2L1 | Land Use Code | 11 |
| Open Space: | N | DFL | N |
| Historic Property: | N | Remodel Property: | N |
| Multi-Family Redevelopment: | N | | |
| Township: | 30N | Section: | 2 |
| Range: | 1W |
Location |
| Address: | 142 N MAPLE ST PORT HADLOCK, WA 98339 | Mapsco: | 040/053 |
| Neighborhood: | IRONDALE BLOCKS 1 - 47 | Map ID: | |
| Neighborhood CD: | 4130 |
Owner |
| Name: | MARK RONDEAU & LISA VOLKERT | Owner ID: | 102812 |
| Mailing Address: | 142 N MAPLE ST PORT HADLOCK, WA 98339-9615 | % Ownership: | 100.0000000000% |
| | | Exemptions: | |
Pay Tax Due
There is currently No Amount Due on this property.
Taxes and Assessment Details
Property Tax Information as of
10/24/2025
Click on "Statement Details" to expand or collapse a tax statement.
* Please enter a valid date ** Please enter a valid date *
Statement Details |
| | TOTAL: | $0.00 | $0.00 | $0.00 | $0.00 | $0.00 | $0.00 |
|
| | $0.00 | $0.00 | $0.00 | $0.00 | $0.00 | $0.00 |
Values
| (+) Improvement Homesite Value: | + | $0 | |
| (+) Improvement Non-Homesite Value: | + | $450,482 | |
| (+) Land Homesite Value: | + | $0 | |
| (+) Land Non-Homesite Value: | + | $231,141 | |
| (+) Curr Use (HS): | + | $0 | $0 |
| (+) Curr Use (NHS): | + | $0 | $0 |
| | | -------------------------- | |
| (=) Market Value: | = | $681,623 | |
| (–) Productivity Loss: | – | $0 | |
| | | -------------------------- | |
| (=) Subtotal: | = | $681,623 | |
| (+) Senior Appraised Value: | + | $0 | |
| (+) Non-Senior Appraised Value: | + | $681,623 | |
| | | -------------------------- | |
| (=) Total Appraised Value: | = | $681,623 | |
| (–) Senior Exemption Loss: | – | $0 | |
| (–) Exemption Loss: | – | $0 | |
| | | -------------------------- | |
| (=) Taxable Value: | = | $681,623 | |
Taxing Jurisdiction
| Owner: | MARK RONDEAU & LISA VOLKERT | | |
| % Ownership: | 100.0000000000% | | |
| Total Value: | N/A | | |
| Tax Area: | 0211 - 1-49F1E1H2L1 |
| CE | COUNTY CURRENT EXPENSE | N/A | N/A | N/A | N/A | | |
| CNTYDD | DEVELOPMENTAL DISABILITIES | N/A | N/A | N/A | N/A | | |
| CNTYVET | VETERANS RELIEF | N/A | N/A | N/A | N/A | | |
| MENTAL | MENTAL HEALTH | N/A | N/A | N/A | N/A | | |
| ROADS | COUNTY ROADS | N/A | N/A | N/A | N/A | | |
| ROADSCU | COUNTY ROADS TO CUR EXP | N/A | N/A | N/A | N/A | | |
| HOSP2CASH | HOSP DIST #2 GENERAL | N/A | N/A | N/A | N/A | | |
| SCH49CP | SCHOOL DIST #49 CAP PROJ | N/A | N/A | N/A | N/A | | |
| SCH49MO | SCHOOL DIST #49 EP & O | N/A | N/A | N/A | N/A | | |
| CONSERVE | CONSERVATION FUTURES | N/A | N/A | N/A | N/A | | |
| EMS1 | FIRE DIST #1 EMS | N/A | N/A | N/A | N/A | | |
| FD1 | FIRE DIST #1 GENERAL | N/A | N/A | N/A | N/A | | |
| LIB1 | LIBRARY DIST #1 GENERAL | N/A | N/A | N/A | N/A | | |
| PORTPT | PORT OF PT GENERAL | N/A | N/A | N/A | N/A | | |
| PORTPTIDD | PORT OF PT IDD 2019 | N/A | N/A | N/A | N/A | | |
| PUD1 | PUD #1 GENERAL | N/A | N/A | N/A | N/A | | |
| STATE | STATE SCHOOL PART 1 | N/A | N/A | N/A | N/A | | |
| STATE2 | STATE SCHOOL PART 2 | N/A | N/A | N/A | N/A | | |
| | Total Tax Rate: | N/A | | | | | |
| | | | | Taxes w/Current Exemptions: | N/A | | |
| | | | | Taxes w/o Exemptions: | N/A | | |
Improvement / Building
| Improvement #1: | Residential Bldg | State Code: | 11 | 0.0 sqft | Value: | $123,054 |
| | Type | Description | Class CD | Sub Class CD | Year Built | Area |
| | GDET | Detached Garage | 4 | * | 2022 | 600.0 |
| | ADDN-D | Addition (Table Depreciated) | 4 | * | 2022 | 600.0 |
| Improvement #2: | Residential Bldg | State Code: | 11 | 900.0 sqft | Value: | $327,428 |
| Bathrooms (#): | 2 (FULL) | Bedrooms (#): | 2 | | Exterior Wall: | SI/ST | Foundation: | CONPR | | Roof Cover: | METAL |   |   |
|
| | Type | Description | Class CD | Sub Class CD | Year Built | Area |
| | MA | Main Area | 4 | 15SF | 2023 | 900.0 |
| | BSMTF | House basement finished | 4 | 15SF | 2023 | 844.0 |
| | HENCL | House Enclosure | 3 | * | 2023 | 180.0 |
| | DECK | Deck (Table Not Dep) | 3 | * | 2023 | 167.0 |
Sketch
Property Image
Land
| 1 | 4130-1135F | High Bank Waterfront in Irondale/Hadlock | 0.0000 | 0.00 | 0.00 | 0.00 | 0.00 | $141,750 | $0 |
| 2 | 4130-1135F | High Bank Waterfront in Irondale/Hadlock | 0.0000 | 0.00 | 0.00 | 0.00 | 0.00 | $64,033 | $0 |
| 3 | 4130-1135F | High Bank Waterfront in Irondale/Hadlock | 0.0000 | 0.00 | 0.00 | 0.00 | 0.00 | $25,358 | $0 |
Roll Value History
| 2025 | N/A | N/A | N/A | N/A | N/A |
| 2024 | $450,482 | $231,141 | $0 | $681,623 | $681,623 |
| 2023 | $325,838 | $215,134 | $0 | $540,972 | $540,972 |
| 2022 | $74,820 | $210,134 | $0 | $284,954 | $284,954 |
| 2021 | $0 | $162,305 | $0 | $162,305 | $162,305 |
Deed and Sales History
| 1 | 06/12/2020 | SWD | Statutory Warranty Deed | REBECCA ROSMAN | MARK RONDEAU & LISA VOLKERT | | | $145,000.00 | 134504 | |
|   | |
| 2 | 10/31/2017 | PRD | Personal Representatives Deed | | | | | | 130192 | |
| 3 | 11/24/2009 | BLA | Boundary Line Adjustment | HODGDON, GEORGE | HODGDON, GEORGE | 0 | 0 | $0.00 | 113727 | 0 |
| 4 | 10/18/1993 | QCD | Quit Claim Deed | HODGDON, JUNE E | HODGDON, GEORGE | 0 | 0 | $0.00 | 72388 | 0 |
Payout Agreement
| No payout information available.. |