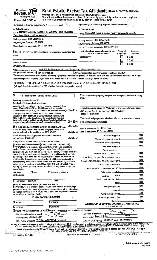
Property
Account |
| Property ID: | 31447 | Abbreviated Legal Description: | IRONDALE #2 BLK 68 LOTS 9,10,12(ALL) AND LTS 38 THRU 40(BND BY BLA #82450) |
| Parcel # / Geo ID: | 961806813 | Agent Code: | |
| Type: | Real | | |
| Tax Area: | 0211 - 1-49F1E1H2L1 | Land Use Code | 11 |
| Open Space: | N | DFL | N |
| Historic Property: | N | Remodel Property: | N |
| Multi-Family Redevelopment: | N | | |
| Township: | 30N | Section: | 34 |
| Range: | 1W |
Location |
| Address: | 184 W SWANEY ST PORT HADLOCK, WA 98339 | Mapsco: | 044/037 |
| Neighborhood: | IRONDALE BLOCKS 48 - 92 | Map ID: | |
| Neighborhood CD: | 4125 |
Owner |
| Name: | DAVID A LAWSON | Owner ID: | 20560 |
| Mailing Address: | 491 MILL RD SP 25 SEQUIM, WA 98382-6916 | % Ownership: | 100.0000000000% |
| | | Exemptions: | SNR/DSBL |
Pay Tax Due
There is currently No Amount Due on this property.
Taxes and Assessment Details
Property Tax Information as of
10/24/2025
Click on "Statement Details" to expand or collapse a tax statement.
* Please enter a valid date ** Please enter a valid date *
Statement Details |
| | TOTAL: | $0.00 | $0.00 | $0.00 | $0.00 | $0.00 | $0.00 |
|
| | $0.00 | $0.00 | $0.00 | $0.00 | $0.00 | $0.00 |
Values
| (+) Improvement Homesite Value: | + | $29,894 | |
| (+) Improvement Non-Homesite Value: | + | $0 | |
| (+) Land Homesite Value: | + | $100,800 | |
| (+) Land Non-Homesite Value: | + | $0 | |
| (+) Curr Use (HS): | + | $0 | $0 |
| (+) Curr Use (NHS): | + | $0 | $0 |
| | | -------------------------- | |
| (=) Market Value: | = | $130,694 | |
| (–) Productivity Loss: | – | $0 | |
| | | -------------------------- | |
| (=) Subtotal: | = | $130,694 | |
| (+) Senior Appraised Value: | + | $44,750 | |
| (+) Non-Senior Appraised Value: | + | $0 | |
| | | -------------------------- | |
| (=) Total Appraised Value: | = | $44,750 | |
| (–) Senior Exemption Loss: | – | $44,750 | |
| (–) Exemption Loss: | – | $0 | |
| | | -------------------------- | |
| (=) Taxable Value: | = | $0 | |
Taxing Jurisdiction
| Owner: | DAVID A LAWSON | | |
| % Ownership: | 100.0000000000% | | |
| Total Value: | N/A | | |
| Tax Area: | 0211 - 1-49F1E1H2L1 |
| CE | COUNTY CURRENT EXPENSE | N/A | N/A | N/A | N/A | | |
| CNTYDD | DEVELOPMENTAL DISABILITIES | N/A | N/A | N/A | N/A | | |
| CNTYVET | VETERANS RELIEF | N/A | N/A | N/A | N/A | | |
| MENTAL | MENTAL HEALTH | N/A | N/A | N/A | N/A | | |
| ROADS | COUNTY ROADS | N/A | N/A | N/A | N/A | | |
| ROADSCU | COUNTY ROADS TO CUR EXP | N/A | N/A | N/A | N/A | | |
| HOSP2CASH | HOSP DIST #2 GENERAL | N/A | N/A | N/A | N/A | | |
| SCH49CP | SCHOOL DIST #49 CAP PROJ | N/A | N/A | N/A | N/A | | |
| SCH49MO | SCHOOL DIST #49 EP & O | N/A | N/A | N/A | N/A | | |
| CONSERVE | CONSERVATION FUTURES | N/A | N/A | N/A | N/A | | |
| EMS1 | FIRE DIST #1 EMS | N/A | N/A | N/A | N/A | | |
| FD1 | FIRE DIST #1 GENERAL | N/A | N/A | N/A | N/A | | |
| LIB1 | LIBRARY DIST #1 GENERAL | N/A | N/A | N/A | N/A | | |
| PORTPT | PORT OF PT GENERAL | N/A | N/A | N/A | N/A | | |
| PORTPTIDD | PORT OF PT IDD 2019 | N/A | N/A | N/A | N/A | | |
| PUD1 | PUD #1 GENERAL | N/A | N/A | N/A | N/A | | |
| STATE | STATE SCHOOL PART 1 | N/A | N/A | N/A | N/A | | |
| STATE2 | STATE SCHOOL PART 2 | N/A | N/A | N/A | N/A | | |
| | Total Tax Rate: | N/A | | | | | |
| | | | | Taxes w/Current Exemptions: | N/A | | |
| | | | | Taxes w/o Exemptions: | N/A | | |
Improvement / Building
| Improvement #1: | Manufactured Home | State Code: | 11 | 768.0 sqft | Value: | $29,894 |
| Bathrooms (#): | 1 (FULL) | Bedrooms (#): | 2 | | Exterior Wall: | ECONO | Fireplace: | WD ST-AVG | | Floor Construction: | FRAME | Foundation: | PO&BL | | Heating/Cooling: | F/A | Roof Cover: | ROLL |
|
Sketch
Property Image
Land
| 1 | 4125-1187L | Irondale Lots XS Lots to make up Site | 0.0000 | 0.00 | 0.00 | 0.00 | 4.00 | $16,800 | $0 |
| 2 | 4125-1285S | Irondale 2 Lot Sites No/Filtered Views | 0.0000 | 0.00 | 0.00 | 0.00 | 1.00 | $84,000 | $0 |
Roll Value History
| 2025 | N/A | N/A | N/A | N/A | N/A |
| 2024 | $29,894 | $98,700 | $0 | $128,594 | $0 |
| 2023 | $28,535 | $89,000 | $0 | $117,535 | $0 |
| 2022 | $30,059 | $65,400 | $0 | $95,459 | $0 |
| 2021 | $25,049 | $57,730 | $0 | $82,779 | $0 |
Deed and Sales History
| 1 | 01/05/2004 | SWD | Statutory Warranty Deed | CADWELL, WILDRED/MARGUERI | LAWSON, DAVID A | 0 | 0 | $45,000.00 | 99230 | 0 |
| 2 | 07/25/1997 | BLA | Boundary Line Adjustment | CADWELL, WILFRED/MARGUERI | CADWELL, WILFRED/MARGUERITE L | 0 | 0 | $0.00 | 82450 | 0 |
Payout Agreement
| No payout information available.. |