Property
Account |
| Property ID: | 31521 | Abbreviated Legal Description: | IRONDALE #7 BLK 86 LOTS 6,7,8,9,10 TAX 15(LESS TAX 16) |
| Parcel # / Geo ID: | 961808605 | Agent Code: | |
| Type: | Real | | |
| Tax Area: | 0211 - 1-49F1E1H2L1 | Land Use Code | 11 |
| Open Space: | N | DFL | N |
| Historic Property: | N | Remodel Property: | N |
| Multi-Family Redevelopment: | N | | |
| Township: | 30N | Section: | 34 |
| Range: | 1W |
Location |
| Address: | 43 W EUGENE ST PORT HADLOCK, WA 98339 | Mapsco: | 046/002 |
| Neighborhood: | IRONDALE BLOCKS 48 - 92 | Map ID: | |
| Neighborhood CD: | 4125 |
Owner |
| Name: | CURT C & BRENDA D DREYER | Owner ID: | 103876 |
| Mailing Address: | 43 W EUGENE ST PORT HADLOCK, WA 98339-9626 | % Ownership: | 100.0000000000% |
| | | Exemptions: | |
Pay Tax Due
There is currently No Amount Due on this property.
Taxes and Assessment Details
Property Tax Information as of
10/24/2025
Click on "Statement Details" to expand or collapse a tax statement.
* Please enter a valid date ** Please enter a valid date *
Statement Details |
| | TOTAL: | $0.00 | $0.00 | $0.00 | $0.00 | $0.00 | $0.00 |
|
| | $0.00 | $0.00 | $0.00 | $0.00 | $0.00 | $0.00 |
Values
| (+) Improvement Homesite Value: | + | $415,626 | |
| (+) Improvement Non-Homesite Value: | + | $0 | |
| (+) Land Homesite Value: | + | $138,600 | |
| (+) Land Non-Homesite Value: | + | $0 | |
| (+) Curr Use (HS): | + | $0 | $0 |
| (+) Curr Use (NHS): | + | $0 | $0 |
| | | -------------------------- | |
| (=) Market Value: | = | $554,226 | |
| (–) Productivity Loss: | – | $0 | |
| | | -------------------------- | |
| (=) Subtotal: | = | $554,226 | |
| (+) Senior Appraised Value: | + | $0 | |
| (+) Non-Senior Appraised Value: | + | $554,226 | |
| | | -------------------------- | |
| (=) Total Appraised Value: | = | $554,226 | |
| (–) Senior Exemption Loss: | – | $0 | |
| (–) Exemption Loss: | – | $0 | |
| | | -------------------------- | |
| (=) Taxable Value: | = | $554,226 | |
Taxing Jurisdiction
| Owner: | CURT C & BRENDA D DREYER | | |
| % Ownership: | 100.0000000000% | | |
| Total Value: | N/A | | |
| Tax Area: | 0211 - 1-49F1E1H2L1 |
| CE | COUNTY CURRENT EXPENSE | N/A | N/A | N/A | N/A | | |
| CNTYDD | DEVELOPMENTAL DISABILITIES | N/A | N/A | N/A | N/A | | |
| CNTYVET | VETERANS RELIEF | N/A | N/A | N/A | N/A | | |
| MENTAL | MENTAL HEALTH | N/A | N/A | N/A | N/A | | |
| ROADS | COUNTY ROADS | N/A | N/A | N/A | N/A | | |
| ROADSCU | COUNTY ROADS TO CUR EXP | N/A | N/A | N/A | N/A | | |
| HOSP2CASH | HOSP DIST #2 GENERAL | N/A | N/A | N/A | N/A | | |
| SCH49CP | SCHOOL DIST #49 CAP PROJ | N/A | N/A | N/A | N/A | | |
| SCH49MO | SCHOOL DIST #49 EP & O | N/A | N/A | N/A | N/A | | |
| CONSERVE | CONSERVATION FUTURES | N/A | N/A | N/A | N/A | | |
| EMS1 | FIRE DIST #1 EMS | N/A | N/A | N/A | N/A | | |
| FD1 | FIRE DIST #1 GENERAL | N/A | N/A | N/A | N/A | | |
| LIB1 | LIBRARY DIST #1 GENERAL | N/A | N/A | N/A | N/A | | |
| PORTPT | PORT OF PT GENERAL | N/A | N/A | N/A | N/A | | |
| PORTPTIDD | PORT OF PT IDD 2019 | N/A | N/A | N/A | N/A | | |
| PUD1 | PUD #1 GENERAL | N/A | N/A | N/A | N/A | | |
| STATE | STATE SCHOOL PART 1 | N/A | N/A | N/A | N/A | | |
| STATE2 | STATE SCHOOL PART 2 | N/A | N/A | N/A | N/A | | |
| | Total Tax Rate: | N/A | | | | | |
| | | | | Taxes w/Current Exemptions: | N/A | | |
| | | | | Taxes w/o Exemptions: | N/A | | |
Improvement / Building
| Improvement #1: | Residential Bldg | State Code: | 11 | 1572.0 sqft | Value: | $415,626 |
| Bathrooms (#): | 2 (FULL) | Bedrooms (#): | 3 | | Exterior Wall: | PL/T1 | Fireplace: | SIN 1-AVG | | Floor Construction: | FRAME | Foundation: | CONPR | | Heating/Cooling: | F/A | Roof Cover: | SHAKE |
|
| | Type | Description | Class CD | Sub Class CD | Year Built | Area |
| | MA | Main Area | 4+ | 1S | 1976 | 1572.0 |
| | HCPOR | House Concrete Porch | 4 | * | 1976 | 240.0 |
| | GATT | House Attached Garage | 4 | 1S | 1976 | 516.0 |
| | OTHER | Other | * | * | 1976 | 0.0 |
| | HRPO | House Roof Patio | 4 | * | 1976 | 96.0 |
| | GARAG | Garage (Table Not Dep) | 4 | * | 1976 | 675.0 |
Sketch
Property Image
Land
| 1 | 4125-1275S | Irondale 2 Lot Sites Filtered Terr Views | 0.0000 | 0.00 | 0.00 | 0.00 | 1.00 | $126,000 | $0 |
| 2 | 4125-1187L | Irondale Lots XS Lots to make up Site | 0.0000 | 0.00 | 0.00 | 0.00 | 3.00 | $12,600 | $0 |
Roll Value History
| 2025 | N/A | N/A | N/A | N/A | N/A |
| 2024 | $401,660 | $137,025 | $0 | $538,685 | $538,685 |
| 2023 | $365,835 | $125,500 | $0 | $491,335 | $491,335 |
| 2022 | $327,658 | $90,800 | $0 | $418,458 | $418,458 |
| 2021 | $260,046 | $85,560 | $0 | $345,606 | $345,606 |
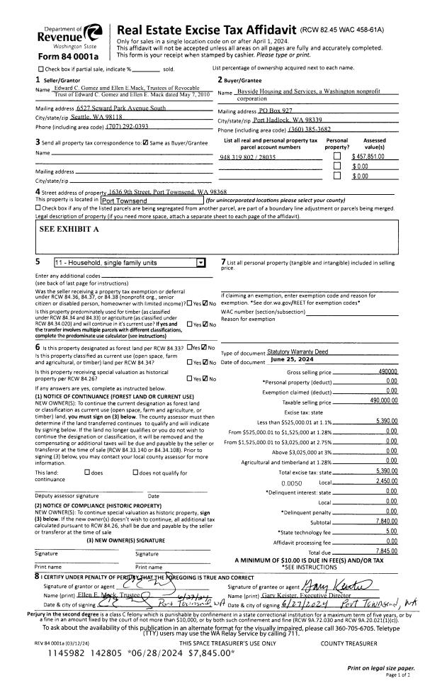
Deed and Sales History
| 1 | 12/07/2020 | SWD | Statutory Warranty Deed | EVA M PEAK | CURT C & BRENDA D DREYER | | | $425,000.00 | 135804 | |
| 2 | 06/05/2008 | QCD | Quit Claim Deed | FULTZ, JAMES/DEBORAH | PEAK, EVA | | | $0.00 | 111359 | 0 |
| 3 | 04/10/2008 | QCD | Quit Claim Deed | PEAK, EVA | FULTZ, JAMES/DEBORAH K | | | $0.00 | 111092 | 0 |
Payout Agreement
| No payout information available.. |