Property
Account |
| Property ID: | 31596 | Abbreviated Legal Description: | IRONDALE #4 BLK 106 LOTS 1 THRU 7 |
| Parcel # / Geo ID: | 962110601 | Agent Code: | |
| Type: | Real | | |
| Tax Area: | 0211 - 1-49F1E1H2L1 | Land Use Code | 11 |
| Open Space: | N | DFL | N |
| Historic Property: | N | Remodel Property: | N |
| Multi-Family Redevelopment: | N | | |
| Township: | 30N | Section: | 34 |
| Range: | 1W |
Location |
| Address: | 112 HILTON AVE PORT TOWNSEND, WA 98368 | Mapsco: | 047/050 |
| Neighborhood: | IRONDALE BLOCKS 100 - 179 (I.E. PROSPECT AVENUE AREA) | Map ID: | |
| Neighborhood CD: | 4120 |
Owner |
| Name: | WAYNE M LEVINE | Owner ID: | 103179 |
| Mailing Address: | 112 HILTON AVE PORT TOWNSEND, WA 98368 | % Ownership: | 100.0000000000% |
| | | Exemptions: | |
Pay Tax Due
There is currently No Amount Due on this property.
Taxes and Assessment Details
Property Tax Information as of
10/24/2025
Click on "Statement Details" to expand or collapse a tax statement.
* Please enter a valid date ** Please enter a valid date *
Statement Details |
| | TOTAL: | $0.00 | $0.00 | $0.00 | $0.00 | $0.00 | $0.00 |
|
| | $0.00 | $0.00 | $0.00 | $0.00 | $0.00 | $0.00 |
Values
| (+) Improvement Homesite Value: | + | $323,398 | |
| (+) Improvement Non-Homesite Value: | + | $39,971 | |
| (+) Land Homesite Value: | + | $0 | |
| (+) Land Non-Homesite Value: | + | $135,450 | |
| (+) Curr Use (HS): | + | $0 | $0 |
| (+) Curr Use (NHS): | + | $0 | $0 |
| | | -------------------------- | |
| (=) Market Value: | = | $498,819 | |
| (–) Productivity Loss: | – | $0 | |
| | | -------------------------- | |
| (=) Subtotal: | = | $498,819 | |
| (+) Senior Appraised Value: | + | $0 | |
| (+) Non-Senior Appraised Value: | + | $498,819 | |
| | | -------------------------- | |
| (=) Total Appraised Value: | = | $498,819 | |
| (–) Senior Exemption Loss: | – | $0 | |
| (–) Exemption Loss: | – | $0 | |
| | | -------------------------- | |
| (=) Taxable Value: | = | $498,819 | |
Taxing Jurisdiction
| Owner: | WAYNE M LEVINE | | |
| % Ownership: | 100.0000000000% | | |
| Total Value: | N/A | | |
| Tax Area: | 0211 - 1-49F1E1H2L1 |
| CE | COUNTY CURRENT EXPENSE | N/A | N/A | N/A | N/A | | |
| CNTYDD | DEVELOPMENTAL DISABILITIES | N/A | N/A | N/A | N/A | | |
| CNTYVET | VETERANS RELIEF | N/A | N/A | N/A | N/A | | |
| MENTAL | MENTAL HEALTH | N/A | N/A | N/A | N/A | | |
| ROADS | COUNTY ROADS | N/A | N/A | N/A | N/A | | |
| ROADSCU | COUNTY ROADS TO CUR EXP | N/A | N/A | N/A | N/A | | |
| HOSP2CASH | HOSP DIST #2 GENERAL | N/A | N/A | N/A | N/A | | |
| SCH49CP | SCHOOL DIST #49 CAP PROJ | N/A | N/A | N/A | N/A | | |
| SCH49MO | SCHOOL DIST #49 EP & O | N/A | N/A | N/A | N/A | | |
| CONSERVE | CONSERVATION FUTURES | N/A | N/A | N/A | N/A | | |
| EMS1 | FIRE DIST #1 EMS | N/A | N/A | N/A | N/A | | |
| FD1 | FIRE DIST #1 GENERAL | N/A | N/A | N/A | N/A | | |
| LIB1 | LIBRARY DIST #1 GENERAL | N/A | N/A | N/A | N/A | | |
| PORTPT | PORT OF PT GENERAL | N/A | N/A | N/A | N/A | | |
| PORTPTIDD | PORT OF PT IDD 2019 | N/A | N/A | N/A | N/A | | |
| PUD1 | PUD #1 GENERAL | N/A | N/A | N/A | N/A | | |
| STATE | STATE SCHOOL PART 1 | N/A | N/A | N/A | N/A | | |
| STATE2 | STATE SCHOOL PART 2 | N/A | N/A | N/A | N/A | | |
| | Total Tax Rate: | N/A | | | | | |
| | | | | Taxes w/Current Exemptions: | N/A | | |
| | | | | Taxes w/o Exemptions: | N/A | | |
Improvement / Building
| Improvement #1: | Residential Bldg | State Code: | 11 | 1030.0 sqft | Value: | $363,369 |
| Bathrooms (#): | 2 (FULL) | Bedrooms (#): | 2 | | Exterior Wall: | SI/ST | Floor Construction: | FRAME | | Foundation: | CONPR | Heating/Cooling: | ELBB | | Roof Cover: | METAL |   |   |
|
| | Type | Description | Class CD | Sub Class CD | Year Built | Area |
| | MA | Main Area | 5+ | 1S | 1996 | 1030.0 |
| | HDECK | House Deck | 5 | * | 1996 | 680.0 |
| | CCARPTF | Cabin Carport W/Floor | 5 | 1S | 1996 | 364.0 |
| | HRPO | House Roof Patio | 5 | * | 1996 | 40.0 |
Sketch
Property Image
Land
| 1 | 4120-1285S | Irondale 2 Lot Sites No/Filtered Views | 0.0000 | 0.00 | 0.00 | 0.00 | 1.00 | $88,200 | $0 |
| 2 | 4120-1184L | Irondale Lots Good Location/Access/Sites | 0.0000 | 0.00 | 0.00 | 0.00 | 5.00 | $47,250 | $0 |
Roll Value History
| 2025 | N/A | N/A | N/A | N/A | N/A |
| 2024 | $363,369 | $124,950 | $0 | $488,319 | $488,319 |
| 2023 | $346,852 | $114,000 | $0 | $460,852 | $390,852 |
| 2022 | $349,379 | $62,500 | $0 | $411,879 | $411,879 |
| 2021 | $291,149 | $57,640 | $0 | $348,789 | $348,789 |
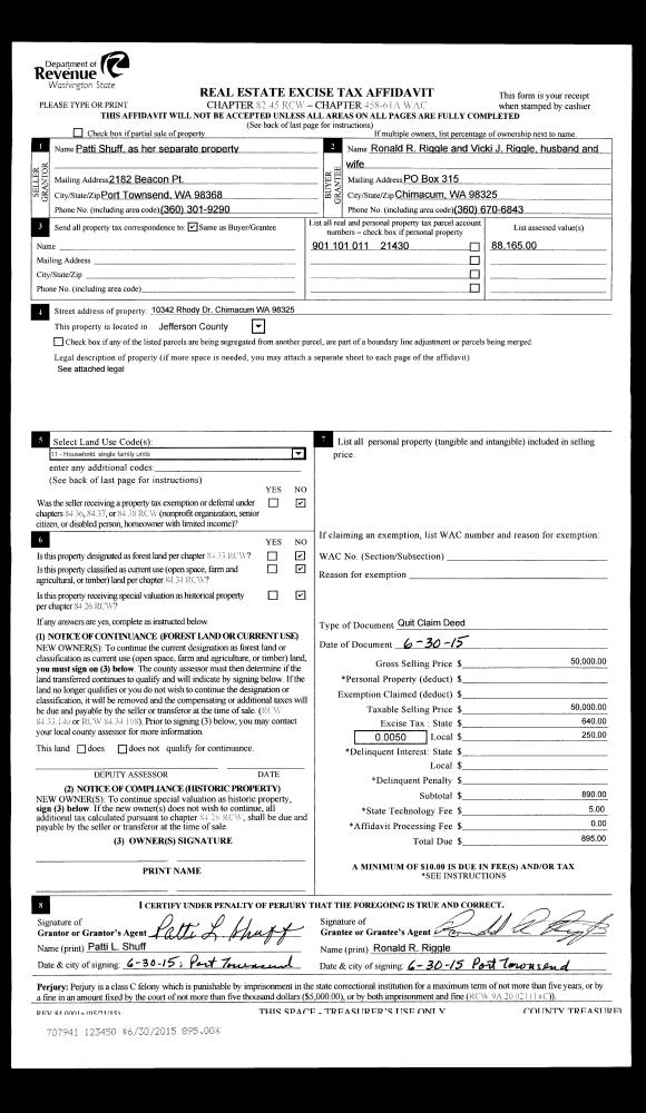
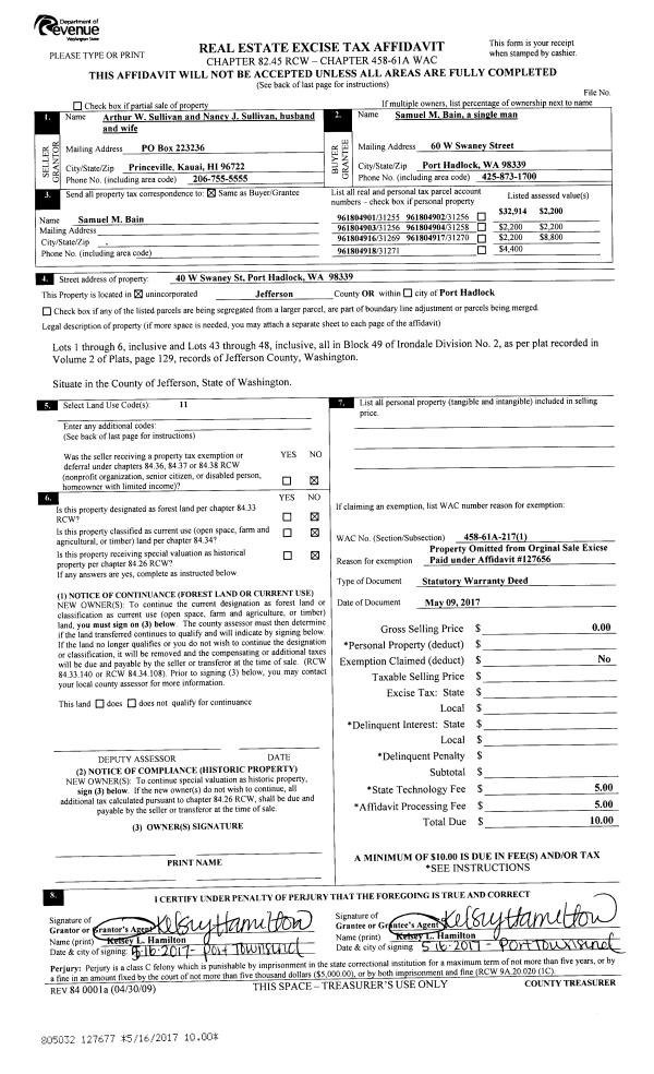
Deed and Sales History
| 1 | 08/18/2020 | SWD | Statutory Warranty Deed | ROBERT A CLINTON | WAYNE M LEVINE | | | $407,112.00 | 134943 | |
| 2 | 08/14/2017 | SWD | Statutory Warranty Deed | DANIEL P TERRELL | ROBERT A CLINTON | | | $277,500.00 | 128410 | |
| 3 | 06/28/2016 | PRD | Personal Representatives Deed | MICHELLE SOHNE | DANIEL P TERRELL | | | | 125733 | |
| 4 | 07/27/2000 | SWD | Statutory Warranty Deed | BURKLUND, STEVEN C | SOHNE, MICHELLE | 0 | 0 | $116,500.00 | 90259 | 0 |
| 5 | 07/03/2000 | QCD | Quit Claim Deed | SOHNE, JAY M | SOHNE, MICHELLE K | 0 | 0 | $0.00 | 90260 | 0 |
| 6 | 11/18/1998 | SWD | Statutory Warranty Deed | DRIVER, LINDA ANN | BURKLUND STEVEN C | 0 | 0 | $112,500.00 | 85736 | 0 |
| 7 | 05/29/1995 | SWD | Statutory Warranty Deed | HEDMAN, DARYL | DRIVER, LINDA ANN | 0 | 0 | $1,500.00 | 77016 | 0 |
Payout Agreement
| No payout information available.. |