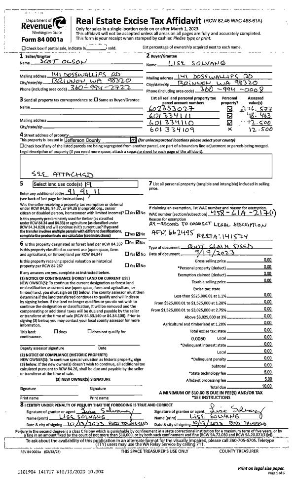
Property
Account |
| Property ID: | 31746 | Abbreviated Legal Description: | IRONDALE #5 BLK 127 LOTS 29 THRU 36 BND TGTH THRU BLA #90150 |
| Parcel # / Geo ID: | 962112708 | Agent Code: | |
| Type: | Real | | |
| Tax Area: | 0211 - 1-49F1E1H2L1 | Land Use Code | 11 |
| Open Space: | N | DFL | N |
| Historic Property: | N | Remodel Property: | N |
| Multi-Family Redevelopment: | N | | |
| Township: | 30N | Section: | 34 |
| Range: | 1W |
Location |
| Address: | 44 S GARY AVE PORT TOWNSEND, WA 98368 | Mapsco: | 049/087 |
| Neighborhood: | IRONDALE BLOCKS 100 - 179 (I.E. PROSPECT AVENUE AREA) | Map ID: | |
| Neighborhood CD: | 4120 |
Owner |
| Name: | JACQUELYN & ANDREW BERMAN | Owner ID: | 111138 |
| Mailing Address: | 44 S GARY AVE PORT TOWNSEND, WA 98368-9566 | % Ownership: | 100.0000000000% |
| | | Exemptions: | |
Pay Tax Due
There is currently No Amount Due on this property.
Taxes and Assessment Details
Property Tax Information as of
10/24/2025
Click on "Statement Details" to expand or collapse a tax statement.
* Please enter a valid date ** Please enter a valid date *
Statement Details |
| | TOTAL: | $0.00 | $0.00 | $0.00 | $0.00 | $0.00 | $0.00 |
|
| | $0.00 | $0.00 | $0.00 | $0.00 | $0.00 | $0.00 |
Values
| (+) Improvement Homesite Value: | + | $141,021 | |
| (+) Improvement Non-Homesite Value: | + | $0 | |
| (+) Land Homesite Value: | + | $119,700 | |
| (+) Land Non-Homesite Value: | + | $0 | |
| (+) Curr Use (HS): | + | $0 | $0 |
| (+) Curr Use (NHS): | + | $0 | $0 |
| | | -------------------------- | |
| (=) Market Value: | = | $260,721 | |
| (–) Productivity Loss: | – | $0 | |
| | | -------------------------- | |
| (=) Subtotal: | = | $260,721 | |
| (+) Senior Appraised Value: | + | $0 | |
| (+) Non-Senior Appraised Value: | + | $260,721 | |
| | | -------------------------- | |
| (=) Total Appraised Value: | = | $260,721 | |
| (–) Senior Exemption Loss: | – | $0 | |
| (–) Exemption Loss: | – | $0 | |
| | | -------------------------- | |
| (=) Taxable Value: | = | $260,721 | |
Taxing Jurisdiction
| Owner: | JACQUELYN & ANDREW BERMAN | | |
| % Ownership: | 100.0000000000% | | |
| Total Value: | N/A | | |
| Tax Area: | 0211 - 1-49F1E1H2L1 |
| CE | COUNTY CURRENT EXPENSE | N/A | N/A | N/A | N/A | | |
| CNTYDD | DEVELOPMENTAL DISABILITIES | N/A | N/A | N/A | N/A | | |
| CNTYVET | VETERANS RELIEF | N/A | N/A | N/A | N/A | | |
| MENTAL | MENTAL HEALTH | N/A | N/A | N/A | N/A | | |
| ROADS | COUNTY ROADS | N/A | N/A | N/A | N/A | | |
| ROADSCU | COUNTY ROADS TO CUR EXP | N/A | N/A | N/A | N/A | | |
| HOSP2CASH | HOSP DIST #2 GENERAL | N/A | N/A | N/A | N/A | | |
| SCH49CP | SCHOOL DIST #49 CAP PROJ | N/A | N/A | N/A | N/A | | |
| SCH49MO | SCHOOL DIST #49 EP & O | N/A | N/A | N/A | N/A | | |
| CONSERVE | CONSERVATION FUTURES | N/A | N/A | N/A | N/A | | |
| EMS1 | FIRE DIST #1 EMS | N/A | N/A | N/A | N/A | | |
| FD1 | FIRE DIST #1 GENERAL | N/A | N/A | N/A | N/A | | |
| LIB1 | LIBRARY DIST #1 GENERAL | N/A | N/A | N/A | N/A | | |
| PORTPT | PORT OF PT GENERAL | N/A | N/A | N/A | N/A | | |
| PORTPTIDD | PORT OF PT IDD 2019 | N/A | N/A | N/A | N/A | | |
| PUD1 | PUD #1 GENERAL | N/A | N/A | N/A | N/A | | |
| STATE | STATE SCHOOL PART 1 | N/A | N/A | N/A | N/A | | |
| STATE2 | STATE SCHOOL PART 2 | N/A | N/A | N/A | N/A | | |
| | Total Tax Rate: | N/A | | | | | |
| | | | | Taxes w/Current Exemptions: | N/A | | |
| | | | | Taxes w/o Exemptions: | N/A | | |
Improvement / Building
| Improvement #1: | Manufactured Home | State Code: | 11 | 1188.0 sqft | Value: | $141,021 |
| Bathrooms (#): | 2 (FULL) | Bedrooms (#): | 3 | | Exterior Wall: | PL/T1 | Foundation: | PO&BL | | Heating/Cooling: | F/A | Roof Cover: | COMP |
|
| | Type | Description | Class CD | Sub Class CD | Year Built | Area |
| | MA | Main Area | 4 | MFH | 1995 | 1188.0 |
| | MPATIO | MH Patio | 4 | * | 1995 | 400.0 |
| | MDECK | MH Deck | 4 | * | 1995 | 20.0 |
| | OTHER | Other | * | * | 1995 | 0.0 |
Sketch
Property Image
Land
| 1 | 4120-1275S | Irondale 2 Lot Sites Filtered Terr Views | 0.0000 | 0.00 | 0.00 | 0.00 | 1.00 | $94,500 | $0 |
| 2 | 4120-1187L | Irondale Lots XS Lots to make up Site | 0.0000 | 0.00 | 0.00 | 0.00 | 6.00 | $25,200 | $0 |
Roll Value History
| 2025 | N/A | N/A | N/A | N/A | N/A |
| 2024 | $141,021 | $116,550 | $0 | $257,571 | $257,571 |
| 2023 | $98,787 | $106,000 | $0 | $204,787 | $51,908 |
| 2022 | $90,371 | $79,000 | $0 | $169,371 | $51,908 |
| 2021 | $75,309 | $72,820 | $0 | $148,129 | $51,908 |
Deed and Sales History
| 1 | 06/18/2024 | SWD | Statutory Warranty Deed | BURTON SOLO 401K TRUST 12/28/16 | JACQUELYN & ANDREW BERMAN | | | $389,000.00 | 142884 | |
| 2 | 01/04/2024 | SWD | Statutory Warranty Deed | DEANNA BISHOP | BURTON SOLO 401K TRUST 12/28/16 | | | $162,000.00 | 142134 | |
| 3 | 06/26/2012 | SWD | Statutory Warranty Deed | BELL, ELLEN C | BISHOP, DEANNA/CAROL | 0 | 0 | $84,999.00 | 117790 | 0 |
| 4 | 10/13/2000 | SWD | Statutory Warranty Deed | HEDMAN, DARYL F/ET AL | BELL, ELLEN C | 0 | 0 | $19,000.00 | 90851 | 0 |
| 5 | 06/28/2000 | BLA | Boundary Line Adjustment | HEDMAN, DARYL/ET AL | HEDMAN, DARYL/ET AL | 0 | 0 | $0.00 | 90150 | 0 |
Payout Agreement
| No payout information available.. |