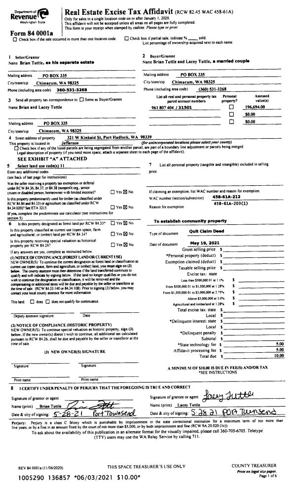
Property
Account |
| Property ID: | 31887 | Abbreviated Legal Description: | IRONDALE #6 BLK 144 LOT 4 |
| Parcel # / Geo ID: | 962114408 | Agent Code: | |
| Type: | Real | | |
| Tax Area: | 0211 - 1-49F1E1H2L1 | Land Use Code | 91 |
| Open Space: | N | DFL | N |
| Historic Property: | N | Remodel Property: | N |
| Multi-Family Redevelopment: | N | | |
| Township: | 30N | Section: | 35 |
| Range: | 1W |
Location |
| Address: | 134 E ISLAND VIEW AVE PORT TOWNSEND, WA 98368 | Mapsco: | 052/026 |
| Neighborhood: | IRONDALE BLOCKS 100 - 179 (I.E. PROSPECT AVENUE AREA) | Map ID: | |
| Neighborhood CD: | 4120 |
Owner |
| Name: | JAIME E KOZELISKY | Owner ID: | 20137 |
| Mailing Address: | KATHERINE E KOZELISKY 98 N VICTORY AVE PORT TOWNSEND, WA 98368 | % Ownership: | 100.0000000000% |
| | | Exemptions: | |
Pay Tax Due
There is currently No Amount Due on this property.
Taxes and Assessment Details
Property Tax Information as of
10/24/2025
Click on "Statement Details" to expand or collapse a tax statement.
* Please enter a valid date ** Please enter a valid date *
Statement Details |
| | TOTAL: | $0.00 | $0.00 | $0.00 | $0.00 | $0.00 | $0.00 |
|
| | $0.00 | $0.00 | $0.00 | $0.00 | $0.00 | $0.00 |
Values
| (+) Improvement Homesite Value: | + | $0 | |
| (+) Improvement Non-Homesite Value: | + | $0 | |
| (+) Land Homesite Value: | + | $0 | |
| (+) Land Non-Homesite Value: | + | $14,700 | |
| (+) Curr Use (HS): | + | $0 | $0 |
| (+) Curr Use (NHS): | + | $0 | $0 |
| | | -------------------------- | |
| (=) Market Value: | = | $14,700 | |
| (–) Productivity Loss: | – | $0 | |
| | | -------------------------- | |
| (=) Subtotal: | = | $14,700 | |
| (+) Senior Appraised Value: | + | $0 | |
| (+) Non-Senior Appraised Value: | + | $14,700 | |
| | | -------------------------- | |
| (=) Total Appraised Value: | = | $14,700 | |
| (–) Senior Exemption Loss: | – | $0 | |
| (–) Exemption Loss: | – | $0 | |
| | | -------------------------- | |
| (=) Taxable Value: | = | $14,700 | |
Taxing Jurisdiction
| Owner: | JAIME E KOZELISKY | | |
| % Ownership: | 100.0000000000% | | |
| Total Value: | N/A | | |
| Tax Area: | 0211 - 1-49F1E1H2L1 |
| CE | COUNTY CURRENT EXPENSE | N/A | N/A | N/A | N/A | | |
| CNTYDD | DEVELOPMENTAL DISABILITIES | N/A | N/A | N/A | N/A | | |
| CNTYVET | VETERANS RELIEF | N/A | N/A | N/A | N/A | | |
| MENTAL | MENTAL HEALTH | N/A | N/A | N/A | N/A | | |
| ROADS | COUNTY ROADS | N/A | N/A | N/A | N/A | | |
| ROADSCU | COUNTY ROADS TO CUR EXP | N/A | N/A | N/A | N/A | | |
| HOSP2CASH | HOSP DIST #2 GENERAL | N/A | N/A | N/A | N/A | | |
| SCH49CP | SCHOOL DIST #49 CAP PROJ | N/A | N/A | N/A | N/A | | |
| SCH49MO | SCHOOL DIST #49 EP & O | N/A | N/A | N/A | N/A | | |
| CONSERVE | CONSERVATION FUTURES | N/A | N/A | N/A | N/A | | |
| EMS1 | FIRE DIST #1 EMS | N/A | N/A | N/A | N/A | | |
| FD1 | FIRE DIST #1 GENERAL | N/A | N/A | N/A | N/A | | |
| LIB1 | LIBRARY DIST #1 GENERAL | N/A | N/A | N/A | N/A | | |
| PORTPT | PORT OF PT GENERAL | N/A | N/A | N/A | N/A | | |
| PORTPTIDD | PORT OF PT IDD 2019 | N/A | N/A | N/A | N/A | | |
| PUD1 | PUD #1 GENERAL | N/A | N/A | N/A | N/A | | |
| STATE | STATE SCHOOL PART 1 | N/A | N/A | N/A | N/A | | |
| STATE2 | STATE SCHOOL PART 2 | N/A | N/A | N/A | N/A | | |
| | Total Tax Rate: | N/A | | | | | |
| | | | | Taxes w/Current Exemptions: | N/A | | |
| | | | | Taxes w/o Exemptions: | N/A | | |
Improvement / Building
| Improvement #1: | Residential Bldg | State Code: | 91 | 0.0 sqft | Value: | $0 |
Sketch
| No sketches available for this property. |
Property Image
Land
| 1 | 4120-1184L | Irondale Lots Good Location/Access/Sites | 0.0000 | 0.00 | 0.00 | 0.00 | 1.00 | $14,700 | $0 |
Roll Value History
| 2025 | N/A | N/A | N/A | N/A | N/A |
| 2024 | $0 | $12,600 | $0 | $12,600 | $12,600 |
| 2023 | $0 | $11,000 | $0 | $11,000 | $11,000 |
| 2022 | $0 | $5,000 | $0 | $5,000 | $5,000 |
| 2021 | $0 | $4,840 | $0 | $4,840 | $4,840 |
Deed and Sales History
| 1 | 08/09/2021 | SWD | Statutory Warranty Deed | BRUCE B SETON SR TRUSTEE | JAIME E KOZELISKY | | | $50,000.00 | 137373 | |
|   | |
| 2 | 12/12/2017 | TRED | Trustee Deed | W E SETON & MARILYN SETON RECOVABLE TRUST | BRUCE B SETON SR TRUSTEE | | | | 129243 | |
| 3 | 05/21/2014 | WD | Warranty Deed | W E SETON | W E SETON & MARILYN SETON RECOVABLE TRUST | | | | 121209 | |
| 4 | 03/08/2004 | SWD | Statutory Warranty Deed | MARLOW, JESSICA A | SETON, W E/MARILYN J | 0 | 0 | $5,000.00 | 99636 | 0 |
| 5 | 04/19/1996 | QCD | Quit Claim Deed | MARLOW, WILLIAM S | MARLOW, JESSICA A | 0 | 0 | $0.00 | 79276 | 0 |
| 6 | 05/04/1994 | SWD | Statutory Warranty Deed | STEVENS. ALBERT R | SETON, W E/MARILYN J | 0 | 0 | $2,750.00 | 74108 | 0 |
| 7 | 05/15/1972 | QCD | Quit Claim Deed | STEVENS, JANICE K | STEVENS, ALBERT R | 0 | 0 | $0.00 | 74107 | 0 |
Payout Agreement
| No payout information available.. |