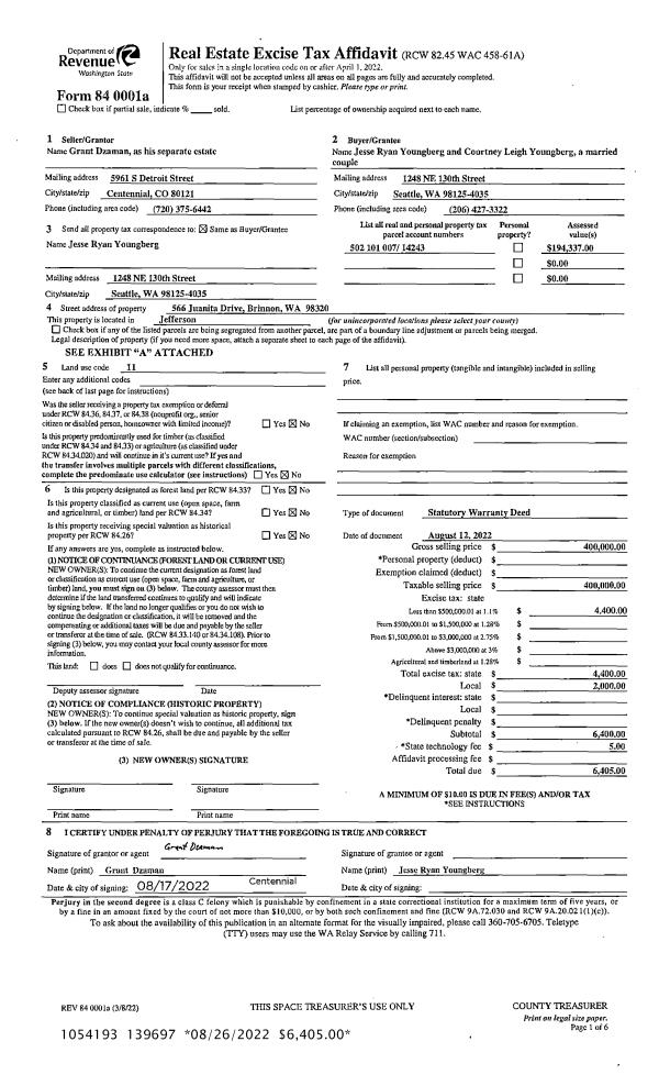
Property
Account |
| Property ID: | 31914 | Abbreviated Legal Description: | IRONDALE #6 BLK 149, LOTS 1 THRU 4,35 & 36 W/ALL VAC ALLEY |
| Parcel # / Geo ID: | 962114901 | Agent Code: | |
| Type: | Real | | |
| Tax Area: | 0211 - 1-49F1E1H2L1 | Land Use Code | 11 |
| Open Space: | N | DFL | N |
| Historic Property: | N | Remodel Property: | N |
| Multi-Family Redevelopment: | N | | |
| Township: | 30N | Section: | 35 |
| Range: | 1W |
Location |
| Address: | 1210 PROSPECT AVE PORT TOWNSEND, WA 98368 | Mapsco: | 052/067 |
| Neighborhood: | IRONDALE BLOCKS 100 - 179 (I.E. PROSPECT AVENUE AREA) | Map ID: | |
| Neighborhood CD: | 4120 |
Owner |
| Name: | ANTHONY BUERNER | Owner ID: | 12370 |
| Mailing Address: | NANCY BUERNER 1210 PROSPECT AVE PORT TOWNSEND, WA 98368-2614 | % Ownership: | 100.0000000000% |
| | | Exemptions: | |
Pay Tax Due
There is currently No Amount Due on this property.
Taxes and Assessment Details
Property Tax Information as of
10/24/2025
Click on "Statement Details" to expand or collapse a tax statement.
* Please enter a valid date ** Please enter a valid date *
Statement Details |
| | TOTAL: | $0.00 | $0.00 | $0.00 | $0.00 | $0.00 | $0.00 |
|
| | $0.00 | $0.00 | $0.00 | $0.00 | $0.00 | $0.00 |
Values
| (+) Improvement Homesite Value: | + | $0 | |
| (+) Improvement Non-Homesite Value: | + | $405,266 | |
| (+) Land Homesite Value: | + | $0 | |
| (+) Land Non-Homesite Value: | + | $136,836 | |
| (+) Curr Use (HS): | + | $0 | $0 |
| (+) Curr Use (NHS): | + | $0 | $0 |
| | | -------------------------- | |
| (=) Market Value: | = | $542,102 | |
| (–) Productivity Loss: | – | $0 | |
| | | -------------------------- | |
| (=) Subtotal: | = | $542,102 | |
| (+) Senior Appraised Value: | + | $0 | |
| (+) Non-Senior Appraised Value: | + | $542,102 | |
| | | -------------------------- | |
| (=) Total Appraised Value: | = | $542,102 | |
| (–) Senior Exemption Loss: | – | $0 | |
| (–) Exemption Loss: | – | $0 | |
| | | -------------------------- | |
| (=) Taxable Value: | = | $542,102 | |
Taxing Jurisdiction
| Owner: | ANTHONY BUERNER | | |
| % Ownership: | 100.0000000000% | | |
| Total Value: | N/A | | |
| Tax Area: | 0211 - 1-49F1E1H2L1 |
| CE | COUNTY CURRENT EXPENSE | N/A | N/A | N/A | N/A | | |
| CNTYDD | DEVELOPMENTAL DISABILITIES | N/A | N/A | N/A | N/A | | |
| CNTYVET | VETERANS RELIEF | N/A | N/A | N/A | N/A | | |
| MENTAL | MENTAL HEALTH | N/A | N/A | N/A | N/A | | |
| ROADS | COUNTY ROADS | N/A | N/A | N/A | N/A | | |
| ROADSCU | COUNTY ROADS TO CUR EXP | N/A | N/A | N/A | N/A | | |
| HOSP2CASH | HOSP DIST #2 GENERAL | N/A | N/A | N/A | N/A | | |
| SCH49CP | SCHOOL DIST #49 CAP PROJ | N/A | N/A | N/A | N/A | | |
| SCH49MO | SCHOOL DIST #49 EP & O | N/A | N/A | N/A | N/A | | |
| CONSERVE | CONSERVATION FUTURES | N/A | N/A | N/A | N/A | | |
| EMS1 | FIRE DIST #1 EMS | N/A | N/A | N/A | N/A | | |
| FD1 | FIRE DIST #1 GENERAL | N/A | N/A | N/A | N/A | | |
| LIB1 | LIBRARY DIST #1 GENERAL | N/A | N/A | N/A | N/A | | |
| PORTPT | PORT OF PT GENERAL | N/A | N/A | N/A | N/A | | |
| PORTPTIDD | PORT OF PT IDD 2019 | N/A | N/A | N/A | N/A | | |
| PUD1 | PUD #1 GENERAL | N/A | N/A | N/A | N/A | | |
| STATE | STATE SCHOOL PART 1 | N/A | N/A | N/A | N/A | | |
| STATE2 | STATE SCHOOL PART 2 | N/A | N/A | N/A | N/A | | |
| | Total Tax Rate: | N/A | | | | | |
| | | | | Taxes w/Current Exemptions: | N/A | | |
| | | | | Taxes w/o Exemptions: | N/A | | |
Improvement / Building
| Improvement #1: | Residential Bldg | State Code: | 11 | 1499.0 sqft | Value: | $405,266 |
| Bathrooms (#): | 2 (FULL) | Bedrooms (#): | 3 | | Exterior Wall: | SI/ST | Fireplace: | SIN 1-GOOD | | Floor Construction: | FRAME | Foundation: | CONPR | | Heating/Cooling: | ELBB | Inside Verify: | YES-FIX | | Roof Cover: | COMP |   |   |
|
| | Type | Description | Class CD | Sub Class CD | Year Built | Area |
| | MA | Main Area | 4+ | 1S | 2003 | 1499.0 |
| | HWPOR | House Wood Porch | 4 | * | 2003 | 10.0 |
| | HDECK | House Deck | 4 | * | 2003 | 440.0 |
| | GATT | House Attached Garage | 4 | 1S | 2003 | 440.0 |
| | ADDN-D | Addition (Table Depreciated) | 4 | * | 2003 | 767.0 |
| | GDET | Detached Garage | 4 | * | 2003 | 780.0 |
| | HRPO | House Roof Patio | 4 | * | 2003 | 20.0 |
Sketch
Property Image
Land
| 1 | 4120-1184L | Irondale Lots Good Location/Access/Sites | 0.0000 | 0.00 | 0.00 | 0.00 | 1.00 | $42,336 | $0 |
| 2 | 4120-1275S | Irondale 2 Lot Sites Filtered Terr Views | 0.0000 | 0.00 | 0.00 | 0.00 | 1.00 | $94,500 | $0 |
Roll Value History
| 2025 | N/A | N/A | N/A | N/A | N/A |
| 2024 | $405,266 | $127,428 | $0 | $532,694 | $532,694 |
| 2023 | $386,845 | $116,360 | $0 | $503,205 | $503,205 |
| 2022 | $350,428 | $86,400 | $0 | $436,828 | $436,828 |
| 2021 | $292,023 | $79,983 | $0 | $372,006 | $372,006 |
Deed and Sales History
| 1 | 04/13/2005 | QCD | Quit Claim Deed | HOMETOWN CONSTRUCTION INC | BUERNER, ANTHONY & NANCY | | | $0.00 | 103372 | 0 |
| 2 | 06/18/2002 | SWD | Statutory Warranty Deed | M & E TRUCKING & CONSTRUC | HOME TOWN CONSTRUCTION INC | 0 | 0 | $40,000.00 | 94907 | 0 |
|   | |
| 3 | 04/14/2000 | QCD | Quit Claim Deed | STONE, M V | M & E TRUCKING & CONSTRUCTION | 0 | 0 | $0.00 | 89372 | 0 |
Payout Agreement
| No payout information available.. |