Property
Account |
| Property ID: | 31917 | Abbreviated Legal Description: | IRONDALE #6 BLK 149 LOTS 11 TRHU 16 |
| Parcel # / Geo ID: | 962114911 | Agent Code: | |
| Type: | Real | | |
| Tax Area: | 0211 - 1-49F1E1H2L1 | Land Use Code | 11 |
| Open Space: | N | DFL | N |
| Historic Property: | N | Remodel Property: | N |
| Multi-Family Redevelopment: | N | | |
| Township: | 30N | Section: | 35 |
| Range: | 1W |
Location |
| Address: | 43 S STROMBERG AVE PORT TOWNSEND, WA 98368 | Mapsco: | 052/069 |
| Neighborhood: | IRONDALE BLOCKS 100 - 179 (I.E. PROSPECT AVENUE AREA) | Map ID: | |
| Neighborhood CD: | 4120 |
Owner |
| Name: | RONALD W JONES | Owner ID: | 95948 |
| Mailing Address: | 43 S STROMBERG AVE PORT TOWNSEND, WA 98368-2548 | % Ownership: | 100.0000000000% |
| | | Exemptions: | |
Pay Tax Due
There is currently No Amount Due on this property.
Taxes and Assessment Details
Property Tax Information as of
10/24/2025
Click on "Statement Details" to expand or collapse a tax statement.
* Please enter a valid date ** Please enter a valid date *
Statement Details |
| | TOTAL: | $0.00 | $0.00 | $0.00 | $0.00 | $0.00 | $0.00 |
|
| | $0.00 | $0.00 | $0.00 | $0.00 | $0.00 | $0.00 |
Values
| (+) Improvement Homesite Value: | + | $0 | |
| (+) Improvement Non-Homesite Value: | + | $193,043 | |
| (+) Land Homesite Value: | + | $0 | |
| (+) Land Non-Homesite Value: | + | $135,450 | |
| (+) Curr Use (HS): | + | $0 | $0 |
| (+) Curr Use (NHS): | + | $0 | $0 |
| | | -------------------------- | |
| (=) Market Value: | = | $328,493 | |
| (–) Productivity Loss: | – | $0 | |
| | | -------------------------- | |
| (=) Subtotal: | = | $328,493 | |
| (+) Senior Appraised Value: | + | $0 | |
| (+) Non-Senior Appraised Value: | + | $328,493 | |
| | | -------------------------- | |
| (=) Total Appraised Value: | = | $328,493 | |
| (–) Senior Exemption Loss: | – | $0 | |
| (–) Exemption Loss: | – | $0 | |
| | | -------------------------- | |
| (=) Taxable Value: | = | $328,493 | |
Taxing Jurisdiction
| Owner: | RONALD W JONES | | |
| % Ownership: | 100.0000000000% | | |
| Total Value: | N/A | | |
| Tax Area: | 0211 - 1-49F1E1H2L1 |
| CE | COUNTY CURRENT EXPENSE | N/A | N/A | N/A | N/A | | |
| CNTYDD | DEVELOPMENTAL DISABILITIES | N/A | N/A | N/A | N/A | | |
| CNTYVET | VETERANS RELIEF | N/A | N/A | N/A | N/A | | |
| MENTAL | MENTAL HEALTH | N/A | N/A | N/A | N/A | | |
| ROADS | COUNTY ROADS | N/A | N/A | N/A | N/A | | |
| ROADSCU | COUNTY ROADS TO CUR EXP | N/A | N/A | N/A | N/A | | |
| HOSP2CASH | HOSP DIST #2 GENERAL | N/A | N/A | N/A | N/A | | |
| SCH49CP | SCHOOL DIST #49 CAP PROJ | N/A | N/A | N/A | N/A | | |
| SCH49MO | SCHOOL DIST #49 EP & O | N/A | N/A | N/A | N/A | | |
| CONSERVE | CONSERVATION FUTURES | N/A | N/A | N/A | N/A | | |
| EMS1 | FIRE DIST #1 EMS | N/A | N/A | N/A | N/A | | |
| FD1 | FIRE DIST #1 GENERAL | N/A | N/A | N/A | N/A | | |
| LIB1 | LIBRARY DIST #1 GENERAL | N/A | N/A | N/A | N/A | | |
| PORTPT | PORT OF PT GENERAL | N/A | N/A | N/A | N/A | | |
| PORTPTIDD | PORT OF PT IDD 2019 | N/A | N/A | N/A | N/A | | |
| PUD1 | PUD #1 GENERAL | N/A | N/A | N/A | N/A | | |
| STATE | STATE SCHOOL PART 1 | N/A | N/A | N/A | N/A | | |
| STATE2 | STATE SCHOOL PART 2 | N/A | N/A | N/A | N/A | | |
| | Total Tax Rate: | N/A | | | | | |
| | | | | Taxes w/Current Exemptions: | N/A | | |
| | | | | Taxes w/o Exemptions: | N/A | | |
Improvement / Building
| Improvement #1: | Manufactured Home | State Code: | 11 | 1782.0 sqft | Value: | $193,043 |
| Bathrooms (#): | 2 (FULL) | Bedrooms (#): | 3 | | Exterior Wall: | PL/T1 | Heating/Cooling: | F/A | | Roof Cover: | COMP |   |   |
|
| | Type | Description | Class CD | Sub Class CD | Year Built | Area |
| | MA | Main Area | 4 | MDBL | 2000 | 1782.0 |
| | MDECK | MH Deck | 4 | * | 2000 | 64.0 |
| | MDET | MH Detached Garage | 3 | MDBL | 2000 | 768.0 |
| | MSKIRT_WD | MH Skirting - Wood | 4 | * | 2000 | 186.0 |
| | CONCD | Concrete Drive | 4 | * | 2000 | 300.0 |
Sketch
Property Image
Land
| 1 | 4120-1275S | Irondale 2 Lot Sites Filtered Terr Views | 0.0000 | 0.00 | 0.00 | 0.00 | 1.00 | $110,250 | $0 |
| 2 | 4120-1185L | Irondale Lots Fair Location/Access/Sites | 0.0000 | 0.00 | 0.00 | 0.00 | 4.00 | $25,200 | $0 |
Roll Value History
| 2025 | N/A | N/A | N/A | N/A | N/A |
| 2024 | $193,043 | $131,250 | $0 | $324,293 | $324,293 |
| 2023 | $184,269 | $120,000 | $0 | $304,269 | $304,269 |
| 2022 | $176,117 | $91,000 | $0 | $267,117 | $267,117 |
| 2021 | $146,764 | $83,270 | $0 | $230,034 | $230,034 |
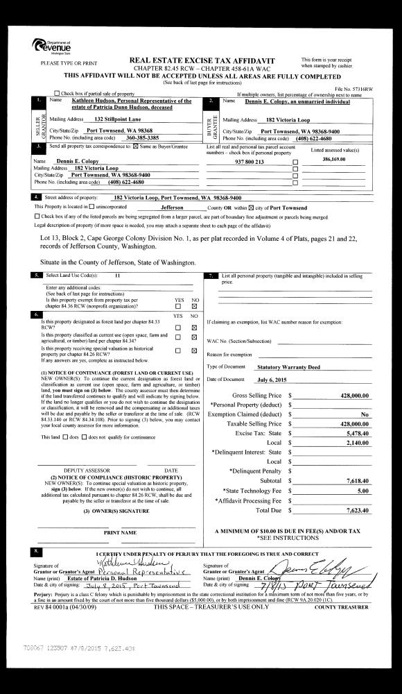
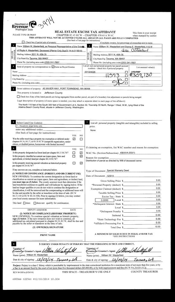
Deed and Sales History
| 1 | 08/02/2016 | BSD | Bargain and Sale Deed | EDWARD L PARKER | RONALD W JONES | | | $190,000.00 | 126076 | |
| 2 | 06/13/2003 | SWD | Statutory Warranty Deed | GREEN, EARL A/MARION | PARKER, EDWARD L/BONI L | 0 | 0 | $156,000.00 | 97517 | 0 |
| 3 | 06/07/2001 | QCD | Quit Claim Deed | M&E TRUCKING AND CONSTRUC | GREEN, EARL A/MARION | 0 | 0 | $0.00 | 92371 | 0 |
| 4 | 04/14/2000 | QCD | Quit Claim Deed | STONE, M V | M & E TRUCKING & CONSTRUCTION | 0 | 0 | $0.00 | 89372 | 0 |
Payout Agreement
| No payout information available.. |