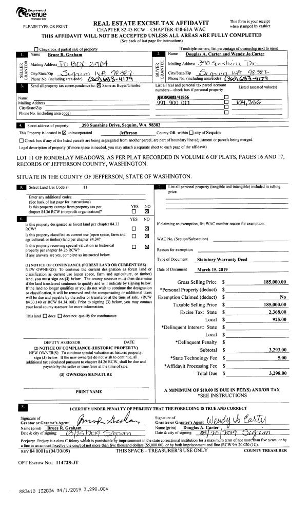
Property
Account |
| Property ID: | 31937 | Abbreviated Legal Description: | IRONDALE #6 BLK 151 LOTS 35 THRU 39 SUBJ/EASE #508457 |
| Parcel # / Geo ID: | 962115128 | Agent Code: | |
| Type: | Real | | |
| Tax Area: | 0211 - 1-49F1E1H2L1 | Land Use Code | 11 |
| Open Space: | N | DFL | N |
| Historic Property: | N | Remodel Property: | N |
| Multi-Family Redevelopment: | N | | |
| Township: | 30N | Section: | 35 |
| Range: | 1W |
Location |
| Address: | 200 N STROMBERG AVE PORT TOWNSEND, WA 98368 | Mapsco: | 053/011 |
| Neighborhood: | IRONDALE BLOCKS 100 - 179 (I.E. PROSPECT AVENUE AREA) | Map ID: | |
| Neighborhood CD: | 4120 |
Owner |
| Name: | LAWRENCE R BUCHANAN | Owner ID: | 111221 |
| Mailing Address: | 153 NW ROOSEVELT ST STEVENSON, WA 98648-4006 | % Ownership: | 100.0000000000% |
| | | Exemptions: | |
Pay Tax Due
There is currently No Amount Due on this property.
Taxes and Assessment Details
Property Tax Information as of
10/24/2025
Click on "Statement Details" to expand or collapse a tax statement.
* Please enter a valid date ** Please enter a valid date *
Statement Details |
| | TOTAL: | $0.00 | $0.00 | $0.00 | $0.00 | $0.00 | $0.00 |
|
| | $0.00 | $0.00 | $0.00 | $0.00 | $0.00 | $0.00 |
Values
| (+) Improvement Homesite Value: | + | $386,911 | |
| (+) Improvement Non-Homesite Value: | + | $0 | |
| (+) Land Homesite Value: | + | $144,900 | |
| (+) Land Non-Homesite Value: | + | $0 | |
| (+) Curr Use (HS): | + | $0 | $0 |
| (+) Curr Use (NHS): | + | $0 | $0 |
| | | -------------------------- | |
| (=) Market Value: | = | $531,811 | |
| (–) Productivity Loss: | – | $0 | |
| | | -------------------------- | |
| (=) Subtotal: | = | $531,811 | |
| (+) Senior Appraised Value: | + | $0 | |
| (+) Non-Senior Appraised Value: | + | $531,811 | |
| | | -------------------------- | |
| (=) Total Appraised Value: | = | $531,811 | |
| (–) Senior Exemption Loss: | – | $0 | |
| (–) Exemption Loss: | – | $0 | |
| | | -------------------------- | |
| (=) Taxable Value: | = | $531,811 | |
Taxing Jurisdiction
| Owner: | LAWRENCE R BUCHANAN | | |
| % Ownership: | 100.0000000000% | | |
| Total Value: | N/A | | |
| Tax Area: | 0211 - 1-49F1E1H2L1 |
| CE | COUNTY CURRENT EXPENSE | N/A | N/A | N/A | N/A | | |
| CNTYDD | DEVELOPMENTAL DISABILITIES | N/A | N/A | N/A | N/A | | |
| CNTYVET | VETERANS RELIEF | N/A | N/A | N/A | N/A | | |
| MENTAL | MENTAL HEALTH | N/A | N/A | N/A | N/A | | |
| ROADS | COUNTY ROADS | N/A | N/A | N/A | N/A | | |
| ROADSCU | COUNTY ROADS TO CUR EXP | N/A | N/A | N/A | N/A | | |
| HOSP2CASH | HOSP DIST #2 GENERAL | N/A | N/A | N/A | N/A | | |
| SCH49CP | SCHOOL DIST #49 CAP PROJ | N/A | N/A | N/A | N/A | | |
| SCH49MO | SCHOOL DIST #49 EP & O | N/A | N/A | N/A | N/A | | |
| CONSERVE | CONSERVATION FUTURES | N/A | N/A | N/A | N/A | | |
| EMS1 | FIRE DIST #1 EMS | N/A | N/A | N/A | N/A | | |
| FD1 | FIRE DIST #1 GENERAL | N/A | N/A | N/A | N/A | | |
| LIB1 | LIBRARY DIST #1 GENERAL | N/A | N/A | N/A | N/A | | |
| PORTPT | PORT OF PT GENERAL | N/A | N/A | N/A | N/A | | |
| PORTPTIDD | PORT OF PT IDD 2019 | N/A | N/A | N/A | N/A | | |
| PUD1 | PUD #1 GENERAL | N/A | N/A | N/A | N/A | | |
| STATE | STATE SCHOOL PART 1 | N/A | N/A | N/A | N/A | | |
| STATE2 | STATE SCHOOL PART 2 | N/A | N/A | N/A | N/A | | |
| | Total Tax Rate: | N/A | | | | | |
| | | | | Taxes w/Current Exemptions: | N/A | | |
| | | | | Taxes w/o Exemptions: | N/A | | |
Improvement / Building
| Improvement #1: | Residential Bldg | State Code: | 11 | 1485.0 sqft | Value: | $386,911 |
| Bathrooms (#): | 2 (FULL) | Bedrooms (#): | 3 | | Exterior Wall: | SI/ST | Fireplace: | SIN 1-GOOD | | Floor Construction: | FRAME | Foundation: | CONPR | | Heating/Cooling: | F/A | Roof Cover: | COMP |
|
| | Type | Description | Class CD | Sub Class CD | Year Built | Area |
| | MA | Main Area | 4+ | 1S | 2006 | 1485.0 |
| | PATIO | House Patio | 4 | * | 2006 | 260.0 |
| | HCPOR | House Concrete Porch | 4 | * | 2006 | 142.0 |
| | GATT | House Attached Garage | 4 | 1S | 2006 | 483.0 |
Sketch
Property Image
Land
| 1 | 4120-1184L | Irondale Lots Good Location/Access/Sites | 0.0000 | 0.00 | 0.00 | 0.00 | 3.00 | $28,350 | $0 |
| 2 | 4120-1275S | Irondale 2 Lot Sites Filtered Terr Views | 0.0000 | 0.00 | 0.00 | 0.00 | 1.00 | $116,550 | $0 |
Roll Value History
| 2025 | N/A | N/A | N/A | N/A | N/A |
| 2024 | $420,351 | $138,600 | $0 | $558,951 | $558,951 |
| 2023 | $401,244 | $127,000 | $0 | $528,244 | $395,332 |
| 2022 | $370,932 | $94,400 | $0 | $465,332 | $465,332 |
| 2021 | $309,110 | $87,450 | $0 | $396,560 | $396,560 |
Deed and Sales History
| 1 | 07/29/2024 | SWD | Statutory Warranty Deed | ALFRED CASS | LAWRENCE R BUCHANAN | | | $550,000.00 | 143006 | |
| 2 | 06/09/2021 | LOP | Lack of Probate | MARILYN J CASS | ALFRED CASS | | | | 0 | |
| 3 | 07/22/2019 | SWD | Statutory Warranty Deed | EARL T & CAROLE J LANE | ALFRED & MARILYN CASS | | | $499,000.00 | 132854 | |
|   | |
| 4 | 11/17/2018 | QCD | Quit Claim Deed | | | | | | 131506 | |
| 5 | 02/13/2006 | SWD | Statutory Warranty Deed | MERIDIAN MTG INVESTORS FU | LANE, EARL T/CAROL | 0 | 0 | $327,900.00 | 106019 | 0 |
Payout Agreement
| No payout information available.. |