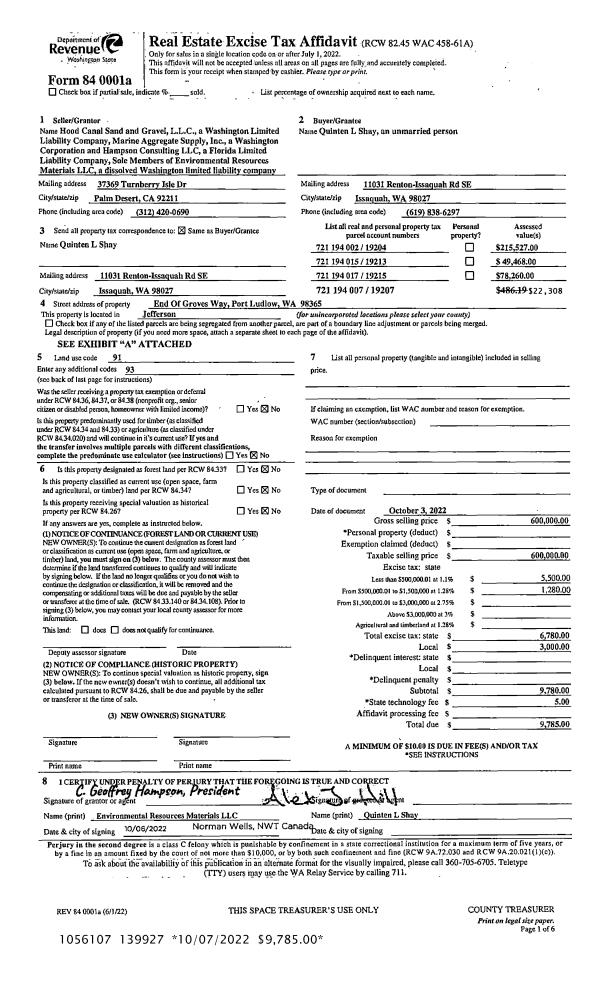
Property
Account |
| Property ID: | 31975 | Abbreviated Legal Description: | IRONDALE #6 BLK 157 LOTS 1,2,3,4 & 36 & PTN VAC ALLEY ADJ SUBJ/REST COVENANT AF#609648 |
| Parcel # / Geo ID: | 962115701 | Agent Code: | |
| Type: | Real | | |
| Tax Area: | 0211 - 1-49F1E1H2L1 | Land Use Code | 11 |
| Open Space: | N | DFL | N |
| Historic Property: | N | Remodel Property: | N |
| Multi-Family Redevelopment: | N | | |
| Township: | 30N | Section: | 35 |
| Range: | 1W |
Location |
| Address: | 1298 PROSPECT AVE PORT TOWNSEND, WA 98368 | Mapsco: | 054/001 |
| Neighborhood: | IRONDALE BLOCKS 100 - 179 (I.E. PROSPECT AVENUE AREA) | Map ID: | |
| Neighborhood CD: | 4120 |
Owner |
| Name: | CASEY & LISA M IMDIEKE | Owner ID: | 108521 |
| Mailing Address: | 1298 PROSPECT AVE PORT TOWNSEND, WA 98368-2614 | % Ownership: | 100.0000000000% |
| | | Exemptions: | |
Pay Tax Due
There is currently No Amount Due on this property.
Taxes and Assessment Details
Property Tax Information as of
10/24/2025
Click on "Statement Details" to expand or collapse a tax statement.
* Please enter a valid date ** Please enter a valid date *
Statement Details |
| | TOTAL: | $0.00 | $0.00 | $0.00 | $0.00 | $0.00 | $0.00 |
|
| | $0.00 | $0.00 | $0.00 | $0.00 | $0.00 | $0.00 |
Values
| (+) Improvement Homesite Value: | + | $0 | |
| (+) Improvement Non-Homesite Value: | + | $687,390 | |
| (+) Land Homesite Value: | + | $0 | |
| (+) Land Non-Homesite Value: | + | $169,386 | |
| (+) Curr Use (HS): | + | $0 | $0 |
| (+) Curr Use (NHS): | + | $0 | $0 |
| | | -------------------------- | |
| (=) Market Value: | = | $856,776 | |
| (–) Productivity Loss: | – | $0 | |
| | | -------------------------- | |
| (=) Subtotal: | = | $856,776 | |
| (+) Senior Appraised Value: | + | $0 | |
| (+) Non-Senior Appraised Value: | + | $856,776 | |
| | | -------------------------- | |
| (=) Total Appraised Value: | = | $856,776 | |
| (–) Senior Exemption Loss: | – | $0 | |
| (–) Exemption Loss: | – | $0 | |
| | | -------------------------- | |
| (=) Taxable Value: | = | $856,776 | |
Taxing Jurisdiction
| Owner: | CASEY & LISA M IMDIEKE | | |
| % Ownership: | 100.0000000000% | | |
| Total Value: | N/A | | |
| Tax Area: | 0211 - 1-49F1E1H2L1 |
| CE | COUNTY CURRENT EXPENSE | N/A | N/A | N/A | N/A | | |
| CNTYDD | DEVELOPMENTAL DISABILITIES | N/A | N/A | N/A | N/A | | |
| CNTYVET | VETERANS RELIEF | N/A | N/A | N/A | N/A | | |
| MENTAL | MENTAL HEALTH | N/A | N/A | N/A | N/A | | |
| ROADS | COUNTY ROADS | N/A | N/A | N/A | N/A | | |
| ROADSCU | COUNTY ROADS TO CUR EXP | N/A | N/A | N/A | N/A | | |
| HOSP2CASH | HOSP DIST #2 GENERAL | N/A | N/A | N/A | N/A | | |
| SCH49CP | SCHOOL DIST #49 CAP PROJ | N/A | N/A | N/A | N/A | | |
| SCH49MO | SCHOOL DIST #49 EP & O | N/A | N/A | N/A | N/A | | |
| CONSERVE | CONSERVATION FUTURES | N/A | N/A | N/A | N/A | | |
| EMS1 | FIRE DIST #1 EMS | N/A | N/A | N/A | N/A | | |
| FD1 | FIRE DIST #1 GENERAL | N/A | N/A | N/A | N/A | | |
| LIB1 | LIBRARY DIST #1 GENERAL | N/A | N/A | N/A | N/A | | |
| PORTPT | PORT OF PT GENERAL | N/A | N/A | N/A | N/A | | |
| PORTPTIDD | PORT OF PT IDD 2019 | N/A | N/A | N/A | N/A | | |
| PUD1 | PUD #1 GENERAL | N/A | N/A | N/A | N/A | | |
| STATE | STATE SCHOOL PART 1 | N/A | N/A | N/A | N/A | | |
| STATE2 | STATE SCHOOL PART 2 | N/A | N/A | N/A | N/A | | |
| | Total Tax Rate: | N/A | | | | | |
| | | | | Taxes w/Current Exemptions: | N/A | | |
| | | | | Taxes w/o Exemptions: | N/A | | |
Improvement / Building
| Improvement #1: | Residential Bldg | State Code: | 11 | 2530.0 sqft | Value: | $687,390 |
| Bathrooms (#): | 4 (FULL) | Bedrooms (#): | 3 | | Exterior Wall: | SI/ST | Foundation: | CONPR | | Heating/Cooling: | HPUMP | Roof Cover: | SHNGL |
|
| | Type | Description | Class CD | Sub Class CD | Year Built | Area |
| | MA | Main Area | 5+ | 15SF | 2017 | 1378.0 |
| | MA2 | Second Floor Main Area | 5+ | 15SF | 2017 | 1152.0 |
| | HRPO | House Roof Patio | 4 | * | 2017 | 458.0 |
| | GDET | Detached Garage | 4 | * | 2017 | 576.0 |
Sketch
Property Image
Land
| 1 | 4120-1184L | Irondale Lots Good Location/Access/Sites | 0.0000 | 0.00 | 0.00 | 0.00 | 1.00 | $32,886 | $0 |
| 2 | 4120-1265S | Fair/Potential Wtr View Sites w/PUD/Access | 0.0000 | 0.00 | 0.00 | 0.00 | 1.00 | $136,500 | $0 |
Roll Value History
| 2025 | N/A | N/A | N/A | N/A | N/A |
| 2024 | $687,390 | $162,078 | $0 | $849,468 | $849,468 |
| 2023 | $656,145 | $149,360 | $0 | $805,505 | $805,505 |
| 2022 | $570,162 | $137,400 | $0 | $707,562 | $707,562 |
| 2021 | $509,647 | $132,343 | $0 | $641,990 | $641,990 |
Deed and Sales History
| 1 | 03/15/2023 | SWD | Statutory Warranty Deed | BIG SKY WEST LLC | CASEY & LISA M IMDIEKE | | | $899,000.00 | 140664 | |
| 2 | 01/25/2021 | SWD | Statutory Warranty Deed | DANIEL & RACHEL BURICH | BIG SKY WEST LLC | | | $700,000.00 | 136030 | |
| 3 | 05/30/2017 | SWD | Statutory Warranty Deed | DANIEL C HALL | DANIEL & RACHEL BURICH | | | $63,000.00 | 127821 | |
| 4 | 07/26/2004 | SWD | Statutory Warranty Deed | SUNSET INVESTMENT INC, ET | HALL, DANIEL C & KANDY | 0 | 0 | $74,500.00 | 101016 | 0 |
| 5 | 06/01/1993 | SWD | Statutory Warranty Deed | WOOD, JODY S | SETON, WE/MARILYN J | 0 | 0 | $0.00 | 71365 | 0 |
Payout Agreement
| No payout information available.. |