| 1 | 07/02/2024 | QCD | Quit Claim Deed | KENNETH J RODEMAN | KENDRA L HERMANSON | | | $330,000.00 | 142846 | |
|   | |
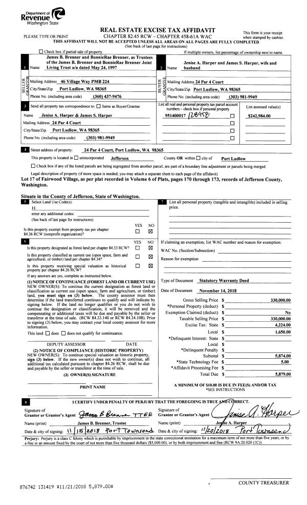
| 2 | 06/18/2018 | SWD | Statutory Warranty Deed | | | | | | 132496 | |
| 3 | 06/18/2018 | SWD | Statutory Warranty Deed | | | | | | 130540 | |
| 4 | 05/13/2011 | SWD | Statutory Warranty Deed | RANGE, WILLIAM E/PATRICIA | STECKER, LINDSEY/JOSHUA G | | | $270,000.00 | 116015 | 0 |
| 5 | 11/29/2005 | SWD | Statutory Warranty Deed | GIFFORD, RICHARD L | RANGE, WILLIAM E/PATRICIA B | 0 | 0 | $135,000.00 | 105859 | 0 |
|   | |
| 6 | 03/14/2005 | SWD | Statutory Warranty Deed | SETON, W.E. & MARILYN | GIFFORD, RICHARD L & LEON T | 0 | 0 | $64,500.00 | 102968 | 0 |
|   | |
| 7 | 10/20/2004 | SWD | Statutory Warranty Deed | SUNSET INVESTMENT, ET AL | BERNARD, MATTHEW R & SUSAN | 0 | 0 | $69,500.00 | 101937 | 0 |
| 8 | 11/04/2002 | SWD | Statutory Warranty Deed | BENEDETTO, SHARON A & BEL | SETON, WE & MARILYN J | 0 | 0 | $7,500.00 | 95929 | 0 |