Property
Account |
| Property ID: | 31992 | Abbreviated Legal Description: | IRONDALE #6 BLK 159 LOTS 44 THRU 48 SUBJ TO REST COVT AFN#445395 |
| Parcel # / Geo ID: | 962115914 | Agent Code: | |
| Type: | Real | | |
| Tax Area: | 0211 - 1-49F1E1H2L1 | Land Use Code | 11 |
| Open Space: | N | DFL | N |
| Historic Property: | N | Remodel Property: | N |
| Multi-Family Redevelopment: | N | | |
| Township: | 30N | Section: | 35 |
| Range: | 1W |
Location |
| Address: | 242 N LYTER AVE PORT TOWNSEND, WA 98368 | Mapsco: | 054/026 |
| Neighborhood: | IRONDALE BLOCKS 100 - 179 (I.E. PROSPECT AVENUE AREA) | Map ID: | |
| Neighborhood CD: | 4120 |
Owner |
| Name: | RONALD & SARAH IRICK | Owner ID: | 94785 |
| Mailing Address: | 242 N LYTER AVE PORT TOWNSEND, WA 98368-2550 | % Ownership: | 100.0000000000% |
| | | Exemptions: | |
Pay Tax Due
There is currently No Amount Due on this property.
Taxes and Assessment Details
Property Tax Information as of
10/24/2025
Click on "Statement Details" to expand or collapse a tax statement.
* Please enter a valid date ** Please enter a valid date *
Statement Details |
| | TOTAL: | $0.00 | $0.00 | $0.00 | $0.00 | $0.00 | $0.00 |
|
| | $0.00 | $0.00 | $0.00 | $0.00 | $0.00 | $0.00 |
Values
| (+) Improvement Homesite Value: | + | $0 | |
| (+) Improvement Non-Homesite Value: | + | $624,509 | |
| (+) Land Homesite Value: | + | $0 | |
| (+) Land Non-Homesite Value: | + | $159,600 | |
| (+) Curr Use (HS): | + | $0 | $0 |
| (+) Curr Use (NHS): | + | $0 | $0 |
| | | -------------------------- | |
| (=) Market Value: | = | $784,109 | |
| (–) Productivity Loss: | – | $0 | |
| | | -------------------------- | |
| (=) Subtotal: | = | $784,109 | |
| (+) Senior Appraised Value: | + | $0 | |
| (+) Non-Senior Appraised Value: | + | $784,109 | |
| | | -------------------------- | |
| (=) Total Appraised Value: | = | $784,109 | |
| (–) Senior Exemption Loss: | – | $0 | |
| (–) Exemption Loss: | – | $0 | |
| | | -------------------------- | |
| (=) Taxable Value: | = | $784,109 | |
Taxing Jurisdiction
| Owner: | RONALD & SARAH IRICK | | |
| % Ownership: | 100.0000000000% | | |
| Total Value: | N/A | | |
| Tax Area: | 0211 - 1-49F1E1H2L1 |
| CE | COUNTY CURRENT EXPENSE | N/A | N/A | N/A | N/A | | |
| CNTYDD | DEVELOPMENTAL DISABILITIES | N/A | N/A | N/A | N/A | | |
| CNTYVET | VETERANS RELIEF | N/A | N/A | N/A | N/A | | |
| MENTAL | MENTAL HEALTH | N/A | N/A | N/A | N/A | | |
| ROADS | COUNTY ROADS | N/A | N/A | N/A | N/A | | |
| ROADSCU | COUNTY ROADS TO CUR EXP | N/A | N/A | N/A | N/A | | |
| HOSP2CASH | HOSP DIST #2 GENERAL | N/A | N/A | N/A | N/A | | |
| SCH49CP | SCHOOL DIST #49 CAP PROJ | N/A | N/A | N/A | N/A | | |
| SCH49MO | SCHOOL DIST #49 EP & O | N/A | N/A | N/A | N/A | | |
| CONSERVE | CONSERVATION FUTURES | N/A | N/A | N/A | N/A | | |
| EMS1 | FIRE DIST #1 EMS | N/A | N/A | N/A | N/A | | |
| FD1 | FIRE DIST #1 GENERAL | N/A | N/A | N/A | N/A | | |
| LIB1 | LIBRARY DIST #1 GENERAL | N/A | N/A | N/A | N/A | | |
| PORTPT | PORT OF PT GENERAL | N/A | N/A | N/A | N/A | | |
| PORTPTIDD | PORT OF PT IDD 2019 | N/A | N/A | N/A | N/A | | |
| PUD1 | PUD #1 GENERAL | N/A | N/A | N/A | N/A | | |
| STATE | STATE SCHOOL PART 1 | N/A | N/A | N/A | N/A | | |
| STATE2 | STATE SCHOOL PART 2 | N/A | N/A | N/A | N/A | | |
| | Total Tax Rate: | N/A | | | | | |
| | | | | Taxes w/Current Exemptions: | N/A | | |
| | | | | Taxes w/o Exemptions: | N/A | | |
Improvement / Building
| Improvement #1: | Residential Bldg | State Code: | 11 | 1832.0 sqft | Value: | $624,509 |
| Bathrooms (#): | 3 (FULL) | Bedrooms (#): | 3 | | Exterior Wall: | SI/ST | Fireplace: | WD ST-GOOD | | Floor Construction: | FRAME | Foundation: | CONPR | | Heating/Cooling: | HPUMP | Roof Cover: | COMP |
|
| | Type | Description | Class CD | Sub Class CD | Year Built | Area |
| | MA | Main Area | 5 | 1S | 0 | 1832.0 |
| | HWPOR | House Wood Porch | 4 | * | 0 | 150.0 |
| | HDECK | House Deck | 4 | * | 0 | 224.0 |
| | GBLTIN | Builtin Garage | 4 | 1S | 0 | 904.0 |
| | BSMTF | House basement finished | 4 | * | 0 | 1050.0 |
Sketch
| No sketches available for this property. |
Property Image
Land
| 1 | 4120-1187L | Irondale Lots XS Lots to make up Site | 0.0000 | 0.00 | 0.00 | 0.00 | 3.00 | $12,600 | $0 |
| 2 | 4120-1245S | Good Wtr View Sites w/PUD/Access | 0.0000 | 0.00 | 0.00 | 0.00 | 1.00 | $147,000 | $0 |
Roll Value History
| 2025 | N/A | N/A | N/A | N/A | N/A |
| 2024 | $624,509 | $158,025 | $0 | $782,534 | $782,534 |
| 2023 | $596,122 | $145,500 | $0 | $741,622 | $741,622 |
| 2022 | $512,893 | $137,500 | $0 | $650,393 | $650,393 |
| 2021 | $427,411 | $129,360 | $0 | $556,771 | $556,771 |
Deed and Sales History
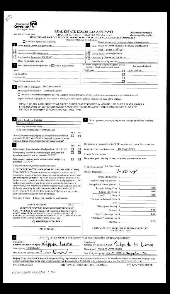
| 1 | 12/23/2015 | SWD | Statutory Warranty Deed | HENRY WERCH | RONALD & SARAH IRICK | | | $459,000.00 | 124599 | |
| 2 | 03/07/2003 | SWD | Statutory Warranty Deed | MORRIS, MILTON D & JUDITH | WERCH, HENRY M & STEPHANIE | 0 | 0 | $385,000.00 | 96800 | 0 |
| 3 | 02/06/2002 | SWD | Statutory Warranty Deed | CARLSON, JAMES D/SUSAN K | MORRIS, MILTON D/JUDITH E TRUS | 0 | 0 | $307,000.00 | 93978 | 0 |
| 4 | 06/20/2001 | SWD | Statutory Warranty Deed | SETON, WE/MARILYN J | CARLSON, JAMES/SUSAN K | 0 | 0 | $60,000.00 | 92450 | 0 |
| 5 | 06/01/1993 | SWD | Statutory Warranty Deed | WOOD, JODY S | SETON, WE/MARILYN J | 0 | 0 | $0.00 | 71365 | 0 |
Payout Agreement
| No payout information available.. |