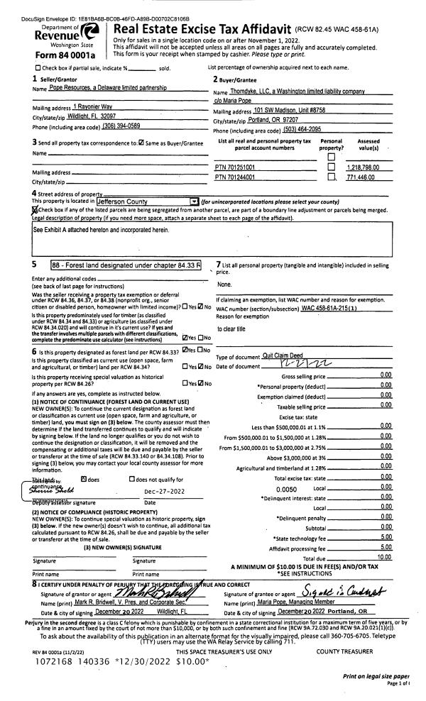
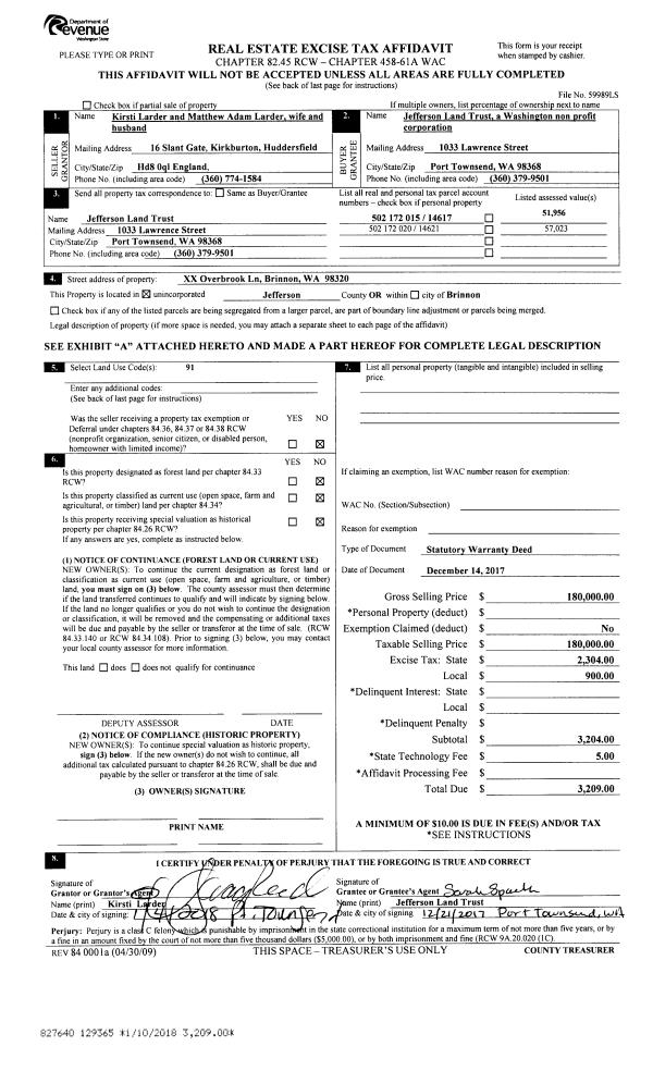
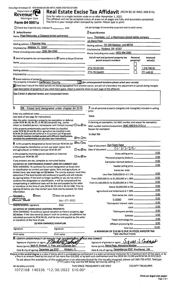
Property
Account |
| Property ID: | 32025 | Abbreviated Legal Description: | IRONDALE AC TRACTS 7 |
| Parcel # / Geo ID: | 962700010 | Agent Code: | |
| Type: | Real | | |
| Tax Area: | 0211 - 1-49F1E1H2L1 | Land Use Code | 11 |
| Open Space: | N | DFL | N |
| Historic Property: | N | Remodel Property: | N |
| Multi-Family Redevelopment: | N | | |
| Township: | 29N | Section: | 12 |
| Range: | 1W |
Location |
| Address: | 133 SHADOWBROOKE LN PORT HADLOCK, WA 98339 | Mapsco: | 055/011 |
| Neighborhood: | IRONDALE ACRE TRACTS - TRACTS 1 THRU 78 | Map ID: | |
| Neighborhood CD: | 4255 |
Owner |
| Name: | MICHAEL & ANNE ANDERSON | Owner ID: | 96577 |
| Mailing Address: | PO BOX 446 PORT HADLOCK, WA 98339 | % Ownership: | 100.0000000000% |
| | | Exemptions: | |
Pay Tax Due
There is currently No Amount Due on this property.
Taxes and Assessment Details
Property Tax Information as of
10/24/2025
Click on "Statement Details" to expand or collapse a tax statement.
* Please enter a valid date ** Please enter a valid date *
Statement Details |
| | TOTAL: | $0.00 | $0.00 | $0.00 | $0.00 | $0.00 | $0.00 |
|
| | $0.00 | $0.00 | $0.00 | $0.00 | $0.00 | $0.00 |
Values
| (+) Improvement Homesite Value: | + | $0 | |
| (+) Improvement Non-Homesite Value: | + | $510,363 | |
| (+) Land Homesite Value: | + | $0 | |
| (+) Land Non-Homesite Value: | + | $270,732 | |
| (+) Curr Use (HS): | + | $0 | $0 |
| (+) Curr Use (NHS): | + | $0 | $0 |
| | | -------------------------- | |
| (=) Market Value: | = | $781,095 | |
| (–) Productivity Loss: | – | $0 | |
| | | -------------------------- | |
| (=) Subtotal: | = | $781,095 | |
| (+) Senior Appraised Value: | + | $0 | |
| (+) Non-Senior Appraised Value: | + | $781,095 | |
| | | -------------------------- | |
| (=) Total Appraised Value: | = | $781,095 | |
| (–) Senior Exemption Loss: | – | $0 | |
| (–) Exemption Loss: | – | $0 | |
| | | -------------------------- | |
| (=) Taxable Value: | = | $781,095 | |
Taxing Jurisdiction
| Owner: | MICHAEL & ANNE ANDERSON | | |
| % Ownership: | 100.0000000000% | | |
| Total Value: | N/A | | |
| Tax Area: | 0211 - 1-49F1E1H2L1 |
| CE | COUNTY CURRENT EXPENSE | N/A | N/A | N/A | N/A | | |
| CNTYDD | DEVELOPMENTAL DISABILITIES | N/A | N/A | N/A | N/A | | |
| CNTYVET | VETERANS RELIEF | N/A | N/A | N/A | N/A | | |
| MENTAL | MENTAL HEALTH | N/A | N/A | N/A | N/A | | |
| ROADS | COUNTY ROADS | N/A | N/A | N/A | N/A | | |
| ROADSCU | COUNTY ROADS TO CUR EXP | N/A | N/A | N/A | N/A | | |
| HOSP2CASH | HOSP DIST #2 GENERAL | N/A | N/A | N/A | N/A | | |
| SCH49CP | SCHOOL DIST #49 CAP PROJ | N/A | N/A | N/A | N/A | | |
| SCH49MO | SCHOOL DIST #49 EP & O | N/A | N/A | N/A | N/A | | |
| CONSERVE | CONSERVATION FUTURES | N/A | N/A | N/A | N/A | | |
| EMS1 | FIRE DIST #1 EMS | N/A | N/A | N/A | N/A | | |
| FD1 | FIRE DIST #1 GENERAL | N/A | N/A | N/A | N/A | | |
| LIB1 | LIBRARY DIST #1 GENERAL | N/A | N/A | N/A | N/A | | |
| PORTPT | PORT OF PT GENERAL | N/A | N/A | N/A | N/A | | |
| PORTPTIDD | PORT OF PT IDD 2019 | N/A | N/A | N/A | N/A | | |
| PUD1 | PUD #1 GENERAL | N/A | N/A | N/A | N/A | | |
| STATE | STATE SCHOOL PART 1 | N/A | N/A | N/A | N/A | | |
| STATE2 | STATE SCHOOL PART 2 | N/A | N/A | N/A | N/A | | |
| | Total Tax Rate: | N/A | | | | | |
| | | | | Taxes w/Current Exemptions: | N/A | | |
| | | | | Taxes w/o Exemptions: | N/A | | |
Improvement / Building
| Improvement #1: | Residential Bldg | State Code: | 11 | 1308.0 sqft | Value: | $510,363 |
| Bathrooms (#): | 3 (FULL) | Bedrooms (#): | 4 | | Exterior Wall: | SI/ST | Floor Construction: | CONCR | | Foundation: | CONPR | Heating/Cooling: | ELBB | | Roof Cover: | COMP |   |   |
|
| | Type | Description | Class CD | Sub Class CD | Year Built | Area |
| | MA | Main Area | 4+ | 1S | 2010 | 1308.0 |
| | HWPOR | House Wood Porch | 4 | 1S | 2010 | 96.0 |
| | HDECK | House Deck | 4 | 1S | 2010 | 224.0 |
| | SHED | Shed (Table Not Dep) | 3 | 1S | 2010 | 468.0 |
| | BSMTF | House basement finished | 4 | 1S | 2010 | 1232.0 |
| | GDET | Detached Garage | 2 | 1S | 2017 | 1428.0 |
| | SHED | Shed (Table Not Dep) | 4 | 1S | 2010 | 216.0 |
Sketch
Property Image
Land
| 1 | 4255-1355S | Residential Sites 1+/- Ac Fair/Avg Water Views | 1.0000 | 43560.00 | 0.00 | 0.00 | 1.00 | $204,600 | $0 |
| 2 | 1572A | Terr/Mtn/No View <6 Acres | 3.3400 | 145490.40 | 0.00 | 0.00 | 0.00 | $66,132 | $0 |
Roll Value History
| 2025 | N/A | N/A | N/A | N/A | N/A |
| 2024 | $488,173 | $258,426 | $0 | $746,599 | $746,599 |
| 2023 | $465,984 | $237,780 | $0 | $703,764 | $703,764 |
| 2022 | $377,399 | $196,600 | $0 | $573,999 | $573,999 |
| 2021 | $331,052 | $185,900 | $0 | $516,952 | $516,952 |
Deed and Sales History
| 1 | 04/10/2018 | BSD | Bargain and Sale Deed | WASHINGTON FEDERAL SAVINGS | MICHAEL & ANNE ANDERSON | | | $419,000.00 | 129923 | |
| 2 | 11/20/2017 | TRED | Trustee Deed | TIMOTHY E YALEY | WASHINGTON FEDERAL SAVINGS | | | $0.00 | 129146 | |
| 3 | 08/10/2006 | SWD | Statutory Warranty Deed | TUKEY INVESTMENTS LLC | YALEY, TIMOTHY & AMY | 0 | 0 | $149,500.00 | 107370 | 0 |
| 4 | 07/19/2005 | SWD | Statutory Warranty Deed | JACOBSEN LAND PARTNERSHIP | JACOBSEN, KARL/SANDRA/PAUL/ | | | $0.00 | 104295 | 0 |
| 5 | 07/19/2005 | QCD | Quit Claim Deed | JACOBSEN LAND PARTNERSHIP | JACOBSEN, KARL ET AL | | | $0.00 | 104269 | 0 |
Payout Agreement
| No payout information available.. |