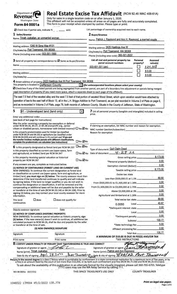
Property
Account |
| Property ID: | 32054 | Abbreviated Legal Description: | IRONDALE AC TRACTS TR 33 TAX 20 |
| Parcel # / Geo ID: | 962700039 | Agent Code: | |
| Type: | Real | | |
| Tax Area: | 0211 - 1-49F1E1H2L1 | Land Use Code | 11 |
| Open Space: | N | DFL | N |
| Historic Property: | N | Remodel Property: | N |
| Multi-Family Redevelopment: | N | | |
| Township: | 29N | Section: | 12 |
| Range: | 1W |
Location |
| Address: | 350 WASHINGTON LN PORT HADLOCK, WA 98339 | Mapsco: | 055/041 |
| Neighborhood: | IRONDALE ACRE TRACTS - TRACTS 1 THRU 78 | Map ID: | |
| Neighborhood CD: | 4255 |
Owner |
| Name: | TRACY BABAUTA | Owner ID: | 10750 |
| Mailing Address: | EDWARD BABAUTA 350 WASHINGTON LN PORT HADLOCK, WA 98339-8715 | % Ownership: | 100.0000000000% |
| | | Exemptions: | |
Pay Tax Due
There is currently No Amount Due on this property.
Taxes and Assessment Details
Property Tax Information as of
10/24/2025
Click on "Statement Details" to expand or collapse a tax statement.
* Please enter a valid date ** Please enter a valid date *
Statement Details |
| | TOTAL: | $0.00 | $0.00 | $0.00 | $0.00 | $0.00 | $0.00 |
|
| | $0.00 | $0.00 | $0.00 | $0.00 | $0.00 | $0.00 |
Values
| (+) Improvement Homesite Value: | + | $0 | |
| (+) Improvement Non-Homesite Value: | + | $386,188 | |
| (+) Land Homesite Value: | + | $0 | |
| (+) Land Non-Homesite Value: | + | $105,600 | |
| (+) Curr Use (HS): | + | $0 | $0 |
| (+) Curr Use (NHS): | + | $0 | $0 |
| | | -------------------------- | |
| (=) Market Value: | = | $491,788 | |
| (–) Productivity Loss: | – | $0 | |
| | | -------------------------- | |
| (=) Subtotal: | = | $491,788 | |
| (+) Senior Appraised Value: | + | $0 | |
| (+) Non-Senior Appraised Value: | + | $491,788 | |
| | | -------------------------- | |
| (=) Total Appraised Value: | = | $491,788 | |
| (–) Senior Exemption Loss: | – | $0 | |
| (–) Exemption Loss: | – | $0 | |
| | | -------------------------- | |
| (=) Taxable Value: | = | $491,788 | |
Taxing Jurisdiction
| Owner: | TRACY BABAUTA | | |
| % Ownership: | 100.0000000000% | | |
| Total Value: | N/A | | |
| Tax Area: | 0211 - 1-49F1E1H2L1 |
| CE | COUNTY CURRENT EXPENSE | N/A | N/A | N/A | N/A | | |
| CNTYDD | DEVELOPMENTAL DISABILITIES | N/A | N/A | N/A | N/A | | |
| CNTYVET | VETERANS RELIEF | N/A | N/A | N/A | N/A | | |
| MENTAL | MENTAL HEALTH | N/A | N/A | N/A | N/A | | |
| ROADS | COUNTY ROADS | N/A | N/A | N/A | N/A | | |
| ROADSCU | COUNTY ROADS TO CUR EXP | N/A | N/A | N/A | N/A | | |
| HOSP2CASH | HOSP DIST #2 GENERAL | N/A | N/A | N/A | N/A | | |
| SCH49CP | SCHOOL DIST #49 CAP PROJ | N/A | N/A | N/A | N/A | | |
| SCH49MO | SCHOOL DIST #49 EP & O | N/A | N/A | N/A | N/A | | |
| CONSERVE | CONSERVATION FUTURES | N/A | N/A | N/A | N/A | | |
| EMS1 | FIRE DIST #1 EMS | N/A | N/A | N/A | N/A | | |
| FD1 | FIRE DIST #1 GENERAL | N/A | N/A | N/A | N/A | | |
| LIB1 | LIBRARY DIST #1 GENERAL | N/A | N/A | N/A | N/A | | |
| PORTPT | PORT OF PT GENERAL | N/A | N/A | N/A | N/A | | |
| PORTPTIDD | PORT OF PT IDD 2019 | N/A | N/A | N/A | N/A | | |
| PUD1 | PUD #1 GENERAL | N/A | N/A | N/A | N/A | | |
| STATE | STATE SCHOOL PART 1 | N/A | N/A | N/A | N/A | | |
| STATE2 | STATE SCHOOL PART 2 | N/A | N/A | N/A | N/A | | |
| | Total Tax Rate: | N/A | | | | | |
| | | | | Taxes w/Current Exemptions: | N/A | | |
| | | | | Taxes w/o Exemptions: | N/A | | |
Improvement / Building
| Improvement #1: | Residential Bldg | State Code: | 11 | 1782.0 sqft | Value: | $386,188 |
| Bathrooms (#): | 2 (FULL) | Bedrooms (#): | 3 | | Exterior Wall: | SI/ST | Fireplace: | SIN 1-GOOD | | Floor Construction: | FRAME | Foundation: | CONPR | | Heating/Cooling: | HPUMP | Roof Cover: | COMP |
|
| | Type | Description | Class CD | Sub Class CD | Year Built | Area |
| | MA | Main Area | 4- | 1S | 2007 | 1782.0 |
| | PATIO | House Patio | 3 | 1S | 2007 | 144.0 |
| | HDECK | House Deck | 3 | 1S | 2007 | 125.0 |
| | GATT | House Attached Garage | 3 | 1S | 2007 | 528.0 |
| | SHED | Shed (Table Not Dep) | 3 | 1S | 2007 | 25.0 |
| | SHED | Shed (Table Not Dep) | 3 | 1S | 2007 | 288.0 |
Sketch
Property Image
Land
| 1 | 4255-1375S | Residential Sites 1+/- Ac SomeTerritorial Views | 0.0000 | 0.00 | 0.00 | 0.00 | 1.00 | $105,600 | $0 |
Roll Value History
| 2025 | N/A | N/A | N/A | N/A | N/A |
| 2024 | $369,398 | $100,800 | $0 | $470,198 | $470,198 |
| 2023 | $352,607 | $91,000 | $0 | $443,607 | $443,607 |
| 2022 | $321,316 | $80,000 | $0 | $401,316 | $401,316 |
| 2021 | $281,856 | $71,500 | $0 | $353,356 | $353,356 |
Deed and Sales History
| 1 | 08/08/2011 | QCD | Quit Claim Deed | GREENBERG, TRACY L, BABAU | BABAUTA, TRACY/EDWARD Q | 0 | 0 | $0.00 | 116381 | 0 |
| 2 | 11/09/2005 | SWD | Statutory Warranty Deed | HAUGH, JEFFREY WILLIAM | GREENBERG,TRACY/BABAUTA,EDWARD | 0 | 0 | $54,950.00 | 105364 | 0 |
| 3 | 05/14/1999 | QCD | Quit Claim Deed | HAUGH, KARL DAVID | HAUGH, JEFFREY WILLIAM | 0 | 0 | $0.00 | 88016 | 0 |
| 4 | 01/30/1992 | QCD | Quit Claim Deed | CAGWIN, SIDNIE/GALLAGHER | HAUGH, KARL D | 0 | 0 | $7,500.00 | 67927 | 0 |
Payout Agreement
| No payout information available.. |