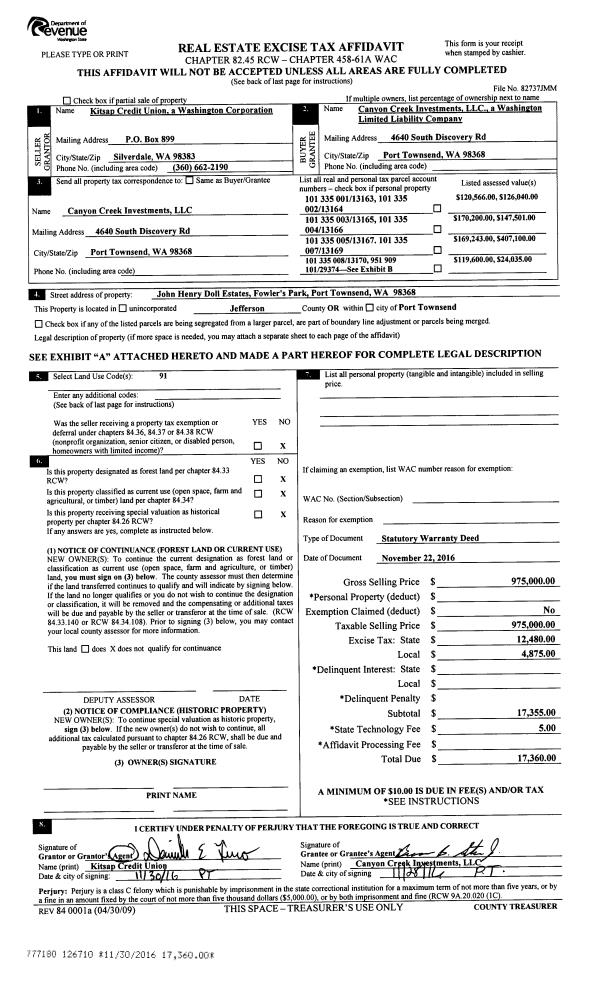
Property
Account |
| Property ID: | 32089 | Abbreviated Legal Description: | IRONDALE AC TRACTS 73(E 2 AC LESS PT SW OF RD) |
| Parcel # / Geo ID: | 962700075 | Agent Code: | |
| Type: | Real | | |
| Tax Area: | 0211 - 1-49F1E1H2L1 | Land Use Code | 11 |
| Open Space: | N | DFL | N |
| Historic Property: | N | Remodel Property: | N |
| Multi-Family Redevelopment: | N | | |
| Township: | 29N | Section: | 7 |
| Range: | 1E |
Location |
| Address: | 65 CLEVELAND ST PORT HADLOCK, WA 98339 | Mapsco: | 056/014 |
| Neighborhood: | IRONDALE ACRE TRACTS - TRACTS 1 THRU 78 | Map ID: | |
| Neighborhood CD: | 4255 |
Owner |
| Name: | PATRICIA A BURNETT | Owner ID: | 12442 |
| Mailing Address: | 65 CLEVELAND ST PORT HADLOCK, WA 98339-9712 | % Ownership: | 100.0000000000% |
| | | Exemptions: | SNR/DSBL |
Pay Tax Due
There is currently No Amount Due on this property.
Taxes and Assessment Details
Property Tax Information as of
10/24/2025
Click on "Statement Details" to expand or collapse a tax statement.
* Please enter a valid date ** Please enter a valid date *
Statement Details |
| | TOTAL: | $0.00 | $0.00 | $0.00 | $0.00 | $0.00 | $0.00 |
|
| | $0.00 | $0.00 | $0.00 | $0.00 | $0.00 | $0.00 |
Values
| (+) Improvement Homesite Value: | + | $125,011 | |
| (+) Improvement Non-Homesite Value: | + | $0 | |
| (+) Land Homesite Value: | + | $102,300 | |
| (+) Land Non-Homesite Value: | + | $0 | |
| (+) Curr Use (HS): | + | $0 | $0 |
| (+) Curr Use (NHS): | + | $0 | $0 |
| | | -------------------------- | |
| (=) Market Value: | = | $227,311 | |
| (–) Productivity Loss: | – | $0 | |
| | | -------------------------- | |
| (=) Subtotal: | = | $227,311 | |
| (+) Senior Appraised Value: | + | $148,580 | |
| (+) Non-Senior Appraised Value: | + | $0 | |
| | | -------------------------- | |
| (=) Total Appraised Value: | = | $148,580 | |
| (–) Senior Exemption Loss: | – | $89,148 | |
| (–) Exemption Loss: | – | $0 | |
| | | -------------------------- | |
| (=) Taxable Value: | = | $59,432 | |
Taxing Jurisdiction
| Owner: | PATRICIA A BURNETT | | |
| % Ownership: | 100.0000000000% | | |
| Total Value: | N/A | | |
| Tax Area: | 0211 - 1-49F1E1H2L1 |
| CE | COUNTY CURRENT EXPENSE | N/A | N/A | N/A | N/A | | |
| CNTYDD | DEVELOPMENTAL DISABILITIES | N/A | N/A | N/A | N/A | | |
| CNTYVET | VETERANS RELIEF | N/A | N/A | N/A | N/A | | |
| MENTAL | MENTAL HEALTH | N/A | N/A | N/A | N/A | | |
| ROADS | COUNTY ROADS | N/A | N/A | N/A | N/A | | |
| ROADSCU | COUNTY ROADS TO CUR EXP | N/A | N/A | N/A | N/A | | |
| HOSP2CASH | HOSP DIST #2 GENERAL | N/A | N/A | N/A | N/A | | |
| SCH49CP | SCHOOL DIST #49 CAP PROJ | N/A | N/A | N/A | N/A | | |
| SCH49MO | SCHOOL DIST #49 EP & O | N/A | N/A | N/A | N/A | | |
| CONSERVE | CONSERVATION FUTURES | N/A | N/A | N/A | N/A | | |
| EMS1 | FIRE DIST #1 EMS | N/A | N/A | N/A | N/A | | |
| FD1 | FIRE DIST #1 GENERAL | N/A | N/A | N/A | N/A | | |
| LIB1 | LIBRARY DIST #1 GENERAL | N/A | N/A | N/A | N/A | | |
| PORTPT | PORT OF PT GENERAL | N/A | N/A | N/A | N/A | | |
| PORTPTIDD | PORT OF PT IDD 2019 | N/A | N/A | N/A | N/A | | |
| PUD1 | PUD #1 GENERAL | N/A | N/A | N/A | N/A | | |
| STATE | STATE SCHOOL PART 1 | N/A | N/A | N/A | N/A | | |
| STATE2 | STATE SCHOOL PART 2 | N/A | N/A | N/A | N/A | | |
| | Total Tax Rate: | N/A | | | | | |
| | | | | Taxes w/Current Exemptions: | N/A | | |
| | | | | Taxes w/o Exemptions: | N/A | | |
Improvement / Building
| Improvement #1: | Residential Bldg | State Code: | 19 | 780.0 sqft | Value: | $125,011 |
| Bathrooms (#): | 1 (FULL) | Bedrooms (#): | 1 | | Exterior Wall: | SI/ST | Floor Construction: | FRAME | | Foundation: | PO&BL | Heating/Cooling: | F/A | | Roof Cover: | COMP |   |   |
|
| | Type | Description | Class CD | Sub Class CD | Year Built | Area |
| | MA | Main Area | 3- | 1S | 2003 | 780.0 |
| | SHED | Shed (Table Not Dep) | 5 | 1S | 2003 | 100.0 |
| | PATIO | House Patio | 3 | 1S | 2003 | 257.9 |
Sketch
Property Image
Land
| 1 | 4255-1365S | Residential Sites 1+/- Ac No/Fair Water Views | 0.0000 | 0.00 | 0.00 | 0.00 | 1.00 | $102,300 | $0 |
Roll Value History
| 2025 | N/A | N/A | N/A | N/A | N/A |
| 2024 | $119,576 | $97,650 | $0 | $217,226 | $59,432 |
| 2023 | $114,140 | $88,000 | $0 | $202,140 | $59,432 |
| 2022 | $87,436 | $72,500 | $0 | $159,936 | $59,432 |
| 2021 | $98,365 | $65,000 | $0 | $163,365 | $59,432 |
Deed and Sales History
| 1 | 09/03/2003 | QCD | Quit Claim Deed | KEELE, LARRY E | KEELE, PATRICIA A | 0 | 0 | $0.00 | 98198 | 0 |
| 2 | 11/09/1994 | SWD | Statutory Warranty Deed | SEDLAK, DYLAN/JACI | KEELE, LARRY/PATRICIA A | 0 | 0 | $22,000.00 | 75701 | 0 |
| 3 | 09/27/1994 | QCD | Quit Claim Deed | SEDLAK, MICHAEL W/EST | SEDLAK, DYLAN/JACI | 0 | 0 | $0.00 | 75462 | 0 |
Payout Agreement
| No payout information available.. |