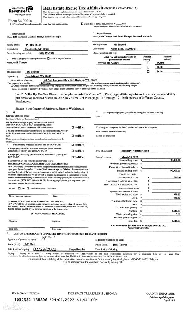
Property
Account |
| Property ID: | 32126 | Abbreviated Legal Description: | IRONDALE AC TRACTS TRACT 55 |
| Parcel # / Geo ID: | 962700120 | Agent Code: | |
| Type: | Real | | |
| Tax Area: | 0211 - 1-49F1E1H2L1 | Land Use Code | 11 |
| Open Space: | N | DFL | N |
| Historic Property: | N | Remodel Property: | N |
| Multi-Family Redevelopment: | N | | |
| Township: | 29N | Section: | 12 |
| Range: | 1W |
Location |
| Address: | 262 GOLDENVIEW DR PORT HADLOCK, WA 98339 | Mapsco: | 055/068 |
| Neighborhood: | IRONDALE ACRE TRACTS - TRACTS 1 THRU 78 | Map ID: | |
| Neighborhood CD: | 4255 |
Owner |
| Name: | DAVID A JAMES | Owner ID: | 111161 |
| Mailing Address: | 262 GOLDENVIEW DR PORT HADLOCK, WA 98339-5003 | % Ownership: | 100.0000000000% |
| | | Exemptions: | |
Pay Tax Due
There is currently No Amount Due on this property.
Taxes and Assessment Details
Property Tax Information as of
10/24/2025
Click on "Statement Details" to expand or collapse a tax statement.
* Please enter a valid date ** Please enter a valid date *
Statement Details |
| | TOTAL: | $0.00 | $0.00 | $0.00 | $0.00 | $0.00 | $0.00 |
|
| | $0.00 | $0.00 | $0.00 | $0.00 | $0.00 | $0.00 |
Values
| (+) Improvement Homesite Value: | + | $0 | |
| (+) Improvement Non-Homesite Value: | + | $690,983 | |
| (+) Land Homesite Value: | + | $0 | |
| (+) Land Non-Homesite Value: | + | $284,559 | |
| (+) Curr Use (HS): | + | $0 | $0 |
| (+) Curr Use (NHS): | + | $0 | $0 |
| | | -------------------------- | |
| (=) Market Value: | = | $975,542 | |
| (–) Productivity Loss: | – | $0 | |
| | | -------------------------- | |
| (=) Subtotal: | = | $975,542 | |
| (+) Senior Appraised Value: | + | $0 | |
| (+) Non-Senior Appraised Value: | + | $975,542 | |
| | | -------------------------- | |
| (=) Total Appraised Value: | = | $975,542 | |
| (–) Senior Exemption Loss: | – | $0 | |
| (–) Exemption Loss: | – | $0 | |
| | | -------------------------- | |
| (=) Taxable Value: | = | $975,542 | |
Taxing Jurisdiction
| Owner: | DAVID A JAMES | | |
| % Ownership: | 100.0000000000% | | |
| Total Value: | N/A | | |
| Tax Area: | 0211 - 1-49F1E1H2L1 |
| CE | COUNTY CURRENT EXPENSE | N/A | N/A | N/A | N/A | | |
| CNTYDD | DEVELOPMENTAL DISABILITIES | N/A | N/A | N/A | N/A | | |
| CNTYVET | VETERANS RELIEF | N/A | N/A | N/A | N/A | | |
| MENTAL | MENTAL HEALTH | N/A | N/A | N/A | N/A | | |
| ROADS | COUNTY ROADS | N/A | N/A | N/A | N/A | | |
| ROADSCU | COUNTY ROADS TO CUR EXP | N/A | N/A | N/A | N/A | | |
| HOSP2CASH | HOSP DIST #2 GENERAL | N/A | N/A | N/A | N/A | | |
| SCH49CP | SCHOOL DIST #49 CAP PROJ | N/A | N/A | N/A | N/A | | |
| SCH49MO | SCHOOL DIST #49 EP & O | N/A | N/A | N/A | N/A | | |
| CONSERVE | CONSERVATION FUTURES | N/A | N/A | N/A | N/A | | |
| EMS1 | FIRE DIST #1 EMS | N/A | N/A | N/A | N/A | | |
| FD1 | FIRE DIST #1 GENERAL | N/A | N/A | N/A | N/A | | |
| LIB1 | LIBRARY DIST #1 GENERAL | N/A | N/A | N/A | N/A | | |
| PORTPT | PORT OF PT GENERAL | N/A | N/A | N/A | N/A | | |
| PORTPTIDD | PORT OF PT IDD 2019 | N/A | N/A | N/A | N/A | | |
| PUD1 | PUD #1 GENERAL | N/A | N/A | N/A | N/A | | |
| STATE | STATE SCHOOL PART 1 | N/A | N/A | N/A | N/A | | |
| STATE2 | STATE SCHOOL PART 2 | N/A | N/A | N/A | N/A | | |
| | Total Tax Rate: | N/A | | | | | |
| | | | | Taxes w/Current Exemptions: | N/A | | |
| | | | | Taxes w/o Exemptions: | N/A | | |
Improvement / Building
| Improvement #1: | Residential Bldg | State Code: | 11 | 2270.0 sqft | Value: | $690,983 |
| Bathrooms (#): | 2 (FULL) | Bedrooms (#): | 3 | | Exterior Wall: | SI/ST | Foundation: | CONPR | | Heating/Cooling: | HPUMP | Roof Cover: | COMP |
|
| | Type | Description | Class CD | Sub Class CD | Year Built | Area |
| | MA | Main Area | 5 | 1S | 2018 | 2270.0 |
| | GATT | House Attached Garage | 5 | 1S | 2018 | 716.0 |
| | HDECK | House Deck | 5 | 1S | 2018 | 465.5 |
| | HCPOR | House Concrete Porch | 5 | 1S | 2018 | 44.0 |
| | CONCD | Concrete Drive | 5 | 1S | 2018 | 720.0 |
| | SHED | Shed (Table Not Dep) | 5 | 1S | 2018 | 192.0 |
Sketch
Property Image
Land
| 1 | 4255-1345S | Residential Sites 1+/- Ac Good Water Views | 1.0000 | 43560.00 | 0.00 | 0.00 | 1.00 | $212,025 | $0 |
| 2 | 1571A | Terr/Mtn/No View <6 Acres | 3.1400 | 136778.40 | 0.00 | 0.00 | 0.00 | $72,534 | $0 |
Roll Value History
| 2025 | N/A | N/A | N/A | N/A | N/A |
| 2024 | $660,941 | $271,625 | $0 | $932,566 | $932,566 |
| 2023 | $630,898 | $250,550 | $0 | $881,448 | $881,448 |
| 2022 | $504,563 | $221,520 | $0 | $726,083 | $726,083 |
| 2021 | $401,598 | $143,156 | $0 | $544,754 | $544,754 |
Deed and Sales History
| 1 | 07/22/2024 | QCD | Quit Claim Deed | ANDREA E JAMES | DAVID A JAMES | | | | 142933 | |
| 2 | 07/22/2022 | SWD | Statutory Warranty Deed | ERNEST C M RILEY | DAVID A & ANDREA E JAMES | | | $899,999.00 | 139550 | |
| 3 | 11/30/2006 | SWD | Statutory Warranty Deed | TUKEY INVESTMENTS LLC | RILEY, ERNEST & CHONG SUK | 0 | 0 | $179,500.00 | 108203 | 0 |
Payout Agreement
| No payout information available.. |