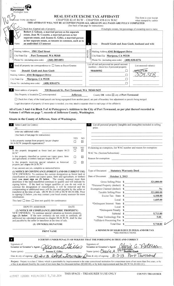
Property
Account |
| Property ID: | 32155 | Abbreviated Legal Description: | LAY SHORT PLAT TRACT C |
| Parcel # / Geo ID: | 963000309 | Agent Code: | |
| Type: | Real | | |
| Tax Area: | 0211 - 1-49F1E1H2L1 | Land Use Code | 11 |
| Open Space: | N | DFL | N |
| Historic Property: | N | Remodel Property: | N |
| Multi-Family Redevelopment: | N | | |
| Township: | 29N | Section: | 10 |
| Range: | 1W |
Location |
| Address: | 80 WEST VALLEY RD CHIMACUM, WA 98325 | Mapsco: | 236/009 |
| Neighborhood: | IRONDALE ORCHARD TRACTS, LAY & ROGERS SHORT PLATS | Map ID: | |
| Neighborhood CD: | 4238 |
Owner |
| Name: | SUZAN TIPTON | Owner ID: | 94734 |
| Mailing Address: | PO BOX 384 CHIMACUM, WA 98325 | % Ownership: | 100.0000000000% |
| | | Exemptions: | |
Pay Tax Due
There is currently No Amount Due on this property.
Taxes and Assessment Details
Property Tax Information as of
10/24/2025
Click on "Statement Details" to expand or collapse a tax statement.
* Please enter a valid date ** Please enter a valid date *
Statement Details |
| | TOTAL: | $0.00 | $0.00 | $0.00 | $0.00 | $0.00 | $0.00 |
|
| | $0.00 | $0.00 | $0.00 | $0.00 | $0.00 | $0.00 |
Values
| (+) Improvement Homesite Value: | + | $174,037 | |
| (+) Improvement Non-Homesite Value: | + | $0 | |
| (+) Land Homesite Value: | + | $66,000 | |
| (+) Land Non-Homesite Value: | + | $0 | |
| (+) Curr Use (HS): | + | $0 | $0 |
| (+) Curr Use (NHS): | + | $0 | $0 |
| | | -------------------------- | |
| (=) Market Value: | = | $240,037 | |
| (–) Productivity Loss: | – | $0 | |
| | | -------------------------- | |
| (=) Subtotal: | = | $240,037 | |
| (+) Senior Appraised Value: | + | $0 | |
| (+) Non-Senior Appraised Value: | + | $240,037 | |
| | | -------------------------- | |
| (=) Total Appraised Value: | = | $240,037 | |
| (–) Senior Exemption Loss: | – | $0 | |
| (–) Exemption Loss: | – | $0 | |
| | | -------------------------- | |
| (=) Taxable Value: | = | $240,037 | |
Taxing Jurisdiction
| Owner: | SUZAN TIPTON | | |
| % Ownership: | 100.0000000000% | | |
| Total Value: | N/A | | |
| Tax Area: | 0211 - 1-49F1E1H2L1 |
| CE | COUNTY CURRENT EXPENSE | N/A | N/A | N/A | N/A | | |
| CNTYDD | DEVELOPMENTAL DISABILITIES | N/A | N/A | N/A | N/A | | |
| CNTYVET | VETERANS RELIEF | N/A | N/A | N/A | N/A | | |
| MENTAL | MENTAL HEALTH | N/A | N/A | N/A | N/A | | |
| ROADS | COUNTY ROADS | N/A | N/A | N/A | N/A | | |
| ROADSCU | COUNTY ROADS TO CUR EXP | N/A | N/A | N/A | N/A | | |
| HOSP2CASH | HOSP DIST #2 GENERAL | N/A | N/A | N/A | N/A | | |
| SCH49CP | SCHOOL DIST #49 CAP PROJ | N/A | N/A | N/A | N/A | | |
| SCH49MO | SCHOOL DIST #49 EP & O | N/A | N/A | N/A | N/A | | |
| CONSERVE | CONSERVATION FUTURES | N/A | N/A | N/A | N/A | | |
| EMS1 | FIRE DIST #1 EMS | N/A | N/A | N/A | N/A | | |
| FD1 | FIRE DIST #1 GENERAL | N/A | N/A | N/A | N/A | | |
| LIB1 | LIBRARY DIST #1 GENERAL | N/A | N/A | N/A | N/A | | |
| PORTPT | PORT OF PT GENERAL | N/A | N/A | N/A | N/A | | |
| PORTPTIDD | PORT OF PT IDD 2019 | N/A | N/A | N/A | N/A | | |
| PUD1 | PUD #1 GENERAL | N/A | N/A | N/A | N/A | | |
| STATE | STATE SCHOOL PART 1 | N/A | N/A | N/A | N/A | | |
| STATE2 | STATE SCHOOL PART 2 | N/A | N/A | N/A | N/A | | |
| | Total Tax Rate: | N/A | | | | | |
| | | | | Taxes w/Current Exemptions: | N/A | | |
| | | | | Taxes w/o Exemptions: | N/A | | |
Improvement / Building
| Improvement #1: | Manufactured Home | State Code: | 11 | 1560.0 sqft | Value: | $174,037 |
| Bathrooms (#): | 2 (FULL) | Bedrooms (#): | 2 | | Exterior Wall: | PL/T1 | Fireplace: | WD ST-GOOD | | Floor Construction: | FRAME | Foundation: | PO&BL | | Heating/Cooling: | HPUMP | Roof Cover: | COMP |
|
| | Type | Description | Class CD | Sub Class CD | Year Built | Area |
| | MA | Main Area | 4+ | MDBL | 1986 | 1560.0 |
| | MDECK | MH Deck | 4 | * | 1986 | 385.0 |
| | MDET | MH Detached Garage | 3 | MDBL | 1986 | 960.0 |
| | SHED | Shed (Table Not Dep) | 3 | * | 1986 | 120.0 |
| | MSKIRT_MTL | MH Skirting - Metal/Vinyl | 4 | * | 1986 | 178.0 |
| | MCPOR | MH Concrete Porch | 4 | * | 1986 | 200.0 |
| | PATIO | House Patio | 3 | * | 1986 | 120.0 |
Sketch
Property Image
Land
| 1 | 4238-1175S | Small Residential Sites on Road Terr. Views | 0.0000 | 0.00 | 0.00 | 0.00 | 1.00 | $66,000 | $0 |
Roll Value History
| 2025 | N/A | N/A | N/A | N/A | N/A |
| 2024 | $166,126 | $63,000 | $0 | $229,126 | $229,126 |
| 2023 | $166,126 | $55,000 | $0 | $221,126 | $221,126 |
| 2022 | $169,411 | $50,000 | $0 | $219,411 | $219,411 |
| 2021 | $156,862 | $46,800 | $0 | $203,662 | $203,662 |
Deed and Sales History
| 1 | 12/16/2015 | QCD | Quit Claim Deed | | | | | | 124634 | |
| 2 | 12/16/2015 | SWD | Statutory Warranty Deed | DOLORES H CHESSMAN | SUZAN TIPTON | | | $164,500.00 | 124633 | |
| 3 | 08/19/2003 | SWD | Statutory Warranty Deed | WADE, MARTHA | CHESSMAN, DOLORES H | 0 | 0 | $117,000.00 | 98083 | 0 |
Payout Agreement
| No payout information available.. |