Property
Account |
| Property ID: | 32202 | Abbreviated Legal Description: | RHODODENDRON ESTATES LOT 14 |
| Parcel # / Geo ID: | 963100014 | Agent Code: | |
| Type: | Real | | |
| Tax Area: | 0211 - 1-49F1E1H2L1 | Land Use Code | 11 |
| Open Space: | N | DFL | N |
| Historic Property: | N | Remodel Property: | N |
| Multi-Family Redevelopment: | N | | |
| Township: | 29N | Section: | 10 |
| Range: | 1W |
Location |
| Address: | 123 RHODY CT CHIMACUM, WA 98325 | Mapsco: | 118/055 |
| Neighborhood: | S9,10 T29N R1W; NICHOLSON'S, ROGER'S LP; FINNERTY, PUGET SP | Map ID: | |
| Neighborhood CD: | 4230 |
Owner |
| Name: | MARGARET PENHALLEGON | Owner ID: | 102765 |
| Mailing Address: | 123 RHODY CT CHIMACUM, WA 98325-8720 | % Ownership: | 100.0000000000% |
| | | Exemptions: | |
Pay Tax Due
There is currently No Amount Due on this property.
Taxes and Assessment Details
Property Tax Information as of
10/24/2025
Click on "Statement Details" to expand or collapse a tax statement.
* Please enter a valid date ** Please enter a valid date *
Statement Details |
| | TOTAL: | $0.00 | $0.00 | $0.00 | $0.00 | $0.00 | $0.00 |
|
| | $0.00 | $0.00 | $0.00 | $0.00 | $0.00 | $0.00 |
Values
| (+) Improvement Homesite Value: | + | $0 | |
| (+) Improvement Non-Homesite Value: | + | $270,596 | |
| (+) Land Homesite Value: | + | $0 | |
| (+) Land Non-Homesite Value: | + | $110,000 | |
| (+) Curr Use (HS): | + | $0 | $0 |
| (+) Curr Use (NHS): | + | $0 | $0 |
| | | -------------------------- | |
| (=) Market Value: | = | $380,596 | |
| (–) Productivity Loss: | – | $0 | |
| | | -------------------------- | |
| (=) Subtotal: | = | $380,596 | |
| (+) Senior Appraised Value: | + | $0 | |
| (+) Non-Senior Appraised Value: | + | $380,596 | |
| | | -------------------------- | |
| (=) Total Appraised Value: | = | $380,596 | |
| (–) Senior Exemption Loss: | – | $0 | |
| (–) Exemption Loss: | – | $0 | |
| | | -------------------------- | |
| (=) Taxable Value: | = | $380,596 | |
Taxing Jurisdiction
| Owner: | MARGARET PENHALLEGON | | |
| % Ownership: | 100.0000000000% | | |
| Total Value: | N/A | | |
| Tax Area: | 0211 - 1-49F1E1H2L1 |
| CE | COUNTY CURRENT EXPENSE | N/A | N/A | N/A | N/A | | |
| CNTYDD | DEVELOPMENTAL DISABILITIES | N/A | N/A | N/A | N/A | | |
| CNTYVET | VETERANS RELIEF | N/A | N/A | N/A | N/A | | |
| MENTAL | MENTAL HEALTH | N/A | N/A | N/A | N/A | | |
| ROADS | COUNTY ROADS | N/A | N/A | N/A | N/A | | |
| ROADSCU | COUNTY ROADS TO CUR EXP | N/A | N/A | N/A | N/A | | |
| HOSP2CASH | HOSP DIST #2 GENERAL | N/A | N/A | N/A | N/A | | |
| SCH49CP | SCHOOL DIST #49 CAP PROJ | N/A | N/A | N/A | N/A | | |
| SCH49MO | SCHOOL DIST #49 EP & O | N/A | N/A | N/A | N/A | | |
| CONSERVE | CONSERVATION FUTURES | N/A | N/A | N/A | N/A | | |
| EMS1 | FIRE DIST #1 EMS | N/A | N/A | N/A | N/A | | |
| FD1 | FIRE DIST #1 GENERAL | N/A | N/A | N/A | N/A | | |
| LIB1 | LIBRARY DIST #1 GENERAL | N/A | N/A | N/A | N/A | | |
| PORTPT | PORT OF PT GENERAL | N/A | N/A | N/A | N/A | | |
| PORTPTIDD | PORT OF PT IDD 2019 | N/A | N/A | N/A | N/A | | |
| PUD1 | PUD #1 GENERAL | N/A | N/A | N/A | N/A | | |
| STATE | STATE SCHOOL PART 1 | N/A | N/A | N/A | N/A | | |
| STATE2 | STATE SCHOOL PART 2 | N/A | N/A | N/A | N/A | | |
| | Total Tax Rate: | N/A | | | | | |
| | | | | Taxes w/Current Exemptions: | N/A | | |
| | | | | Taxes w/o Exemptions: | N/A | | |
Improvement / Building
| Improvement #1: | Residential Bldg | State Code: | 11 | 1376.0 sqft | Value: | $270,596 |
| Bathrooms (#): | 2 (FULL) | Bedrooms (#): | 3 | | Exterior Wall: | SI/ST | Floor Construction: | FRAME | | Foundation: | CONPR | Heating/Cooling: | ELBB | | Roof Cover: | COMP |   |   |
|
| | Type | Description | Class CD | Sub Class CD | Year Built | Area |
| | MA | Main Area | 3+ | 1S | 1996 | 1376.0 |
| | PATIO | House Patio | 3 | * | 1996 | 225.0 |
| | HCPOR | House Concrete Porch | 3 | * | 1996 | 78.0 |
| | GATT | House Attached Garage | 3 | 1S | 1996 | 460.0 |
| | SHED | Shed (Table Not Dep) | 3 | * | 1996 | 120.0 |
| | CONCD | Concrete Drive | 3 | * | 1996 | 360.0 |
Sketch
Property Image
Land
| 1 | 4230-1175L | Lots in Rhododendron Estates | 0.0000 | 0.00 | 0.00 | 0.00 | 1.00 | $110,000 | $0 |
Roll Value History
| 2025 | N/A | N/A | N/A | N/A | N/A |
| 2024 | $258,296 | $84,000 | $0 | $342,296 | $342,296 |
| 2023 | $258,296 | $75,000 | $0 | $333,296 | $333,296 |
| 2022 | $282,524 | $70,000 | $0 | $352,524 | $352,524 |
| 2021 | $235,437 | $60,450 | $0 | $295,887 | $295,887 |
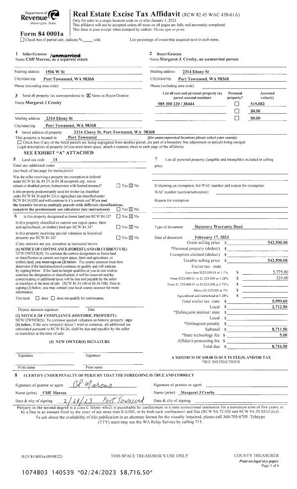
Deed and Sales History
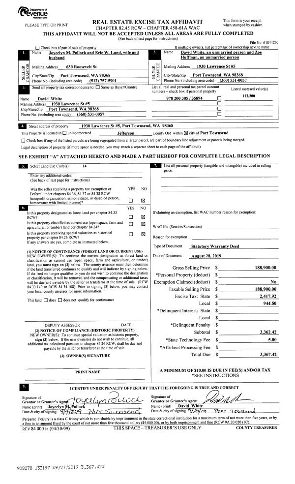
| 1 | 06/05/2020 | SWD | Statutory Warranty Deed | KELLY S BERINGER | MARGARET PENHALLEGON | | | $320,000.00 | 134474 | |
| 2 | 06/14/2004 | SWD | Statutory Warranty Deed | JORDAN, DONALD A/KRISTEN | BERINGER, KELLY S/REBEKAH L | 0 | 0 | $173,600.00 | 100616 | 0 |
| 3 | 02/24/1998 | SWD | Statutory Warranty Deed | MOE HOMES INC | JORDAN, DONALD A/KRISTEN M | 0 | 0 | $118,650.00 | 83906 | 0 |
| 4 | 06/27/1995 | QCD | Quit Claim Deed | HAROLD MOE CONSTRUCTION I | MOE HOMES INC | 0 | 0 | $0.00 | 77236 | 0 |
Payout Agreement
| No payout information available.. |