Property
Account |
| Property ID: | 32237 | Abbreviated Legal Description: | IRVING PARK ADDITION BLK 12 LOTS 1 THRU 10 |
| Parcel # / Geo ID: | 963301201 | Agent Code: | |
| Type: | Real | | |
| Tax Area: | 0111 - 1-50F1E1H2L1 | Land Use Code | 83 |
| Open Space: | Y | DFL | N |
| Historic Property: | N | Remodel Property: | N |
| Multi-Family Redevelopment: | N | | |
| Township: | 30N | Section: | 16 |
| Range: | 1W |
Location |
| Address: | | Mapsco: | 034/068 |
| Neighborhood: | S16&17 T30 R1W SALEM,EVERGRN,IRVING&SUNNYSIDE PKS,PIONEER AC | Map ID: | |
| Neighborhood CD: | 5340 |
Owner |
| Name: | ARCADIA PROPERTIES LLC | Owner ID: | 95378 |
| Mailing Address: | PO BOX 2014 PORT TOWNSEND, WA 98368-0089 | % Ownership: | 100.0000000000% |
| | | Exemptions: | |
Pay Tax Due
There is currently No Amount Due on this property.
Taxes and Assessment Details
Property Tax Information as of
10/24/2025
Click on "Statement Details" to expand or collapse a tax statement.
* Please enter a valid date ** Please enter a valid date *
Statement Details |
| | TOTAL: | $0.00 | $0.00 | $0.00 | $0.00 | $0.00 | $0.00 |
|
| | $0.00 | $0.00 | $0.00 | $0.00 | $0.00 | $0.00 |
Values
| (+) Improvement Homesite Value: | + | $0 | |
| (+) Improvement Non-Homesite Value: | + | $0 | |
| (+) Land Homesite Value: | + | $0 | |
| (+) Land Non-Homesite Value: | + | $0 | |
| (+) Curr Use (HS): | + | $0 | $0 |
| (+) Curr Use (NHS): | + | $110,000 | $3,000 |
| | | -------------------------- | |
| (=) Market Value: | = | $110,000 | |
| (–) Productivity Loss: | – | $107,000 | |
| | | -------------------------- | |
| (=) Subtotal: | = | $3,000 | |
| (+) Senior Appraised Value: | + | $0 | |
| (+) Non-Senior Appraised Value: | + | $3,000 | |
| | | -------------------------- | |
| (=) Total Appraised Value: | = | $3,000 | |
| (–) Senior Exemption Loss: | – | $0 | |
| (–) Exemption Loss: | – | $0 | |
| | | -------------------------- | |
| (=) Taxable Value: | = | $3,000 | |
Taxing Jurisdiction
| Owner: | ARCADIA PROPERTIES LLC | | |
| % Ownership: | 100.0000000000% | | |
| Total Value: | N/A | | |
| Tax Area: | 0111 - 1-50F1E1H2L1 |
| CE | COUNTY CURRENT EXPENSE | N/A | N/A | N/A | N/A | | |
| CNTYDD | DEVELOPMENTAL DISABILITIES | N/A | N/A | N/A | N/A | | |
| CNTYVET | VETERANS RELIEF | N/A | N/A | N/A | N/A | | |
| MENTAL | MENTAL HEALTH | N/A | N/A | N/A | N/A | | |
| ROADS | COUNTY ROADS | N/A | N/A | N/A | N/A | | |
| ROADSCU | COUNTY ROADS TO CUR EXP | N/A | N/A | N/A | N/A | | |
| HOSP2CASH | HOSP DIST #2 GENERAL | N/A | N/A | N/A | N/A | | |
| SCH50BOND | SCHOOL DIST #50 BOND 2016 | N/A | N/A | N/A | N/A | | |
| SCH50CP | SCHOOL DIST #50 CAP PROJ | N/A | N/A | N/A | N/A | | |
| SCH50MO | SCHOOL DIST #50 EP & O | N/A | N/A | N/A | N/A | | |
| CONSERVE | CONSERVATION FUTURES | N/A | N/A | N/A | N/A | | |
| EMS1 | FIRE DIST #1 EMS | N/A | N/A | N/A | N/A | | |
| FD1 | FIRE DIST #1 GENERAL | N/A | N/A | N/A | N/A | | |
| LIB1 | LIBRARY DIST #1 GENERAL | N/A | N/A | N/A | N/A | | |
| PORTPT | PORT OF PT GENERAL | N/A | N/A | N/A | N/A | | |
| PORTPTIDD | PORT OF PT IDD 2019 | N/A | N/A | N/A | N/A | | |
| PUD1 | PUD #1 GENERAL | N/A | N/A | N/A | N/A | | |
| STATE | STATE SCHOOL PART 1 | N/A | N/A | N/A | N/A | | |
| STATE2 | STATE SCHOOL PART 2 | N/A | N/A | N/A | N/A | | |
| | Total Tax Rate: | N/A | | | | | |
| | | | | Taxes w/Current Exemptions: | N/A | | |
| | | | | Taxes w/o Exemptions: | N/A | | |
Improvement / Building
Sketch
| No sketches available for this property. |
Property Image
Land
| 1 | 5340-1187L | XS Lots Over 5 | 0.0000 | 0.00 | 0.00 | 0.00 | 10.00 | $110,000 | $3,000 |
Roll Value History
| 2025 | N/A | N/A | N/A | N/A | N/A |
| 2024 | $0 | $110,000 | $3,000 | $3,000 | $3,000 |
| 2023 | $0 | $105,000 | $3,000 | $3,000 | $3,000 |
| 2022 | $0 | $100,000 | $3,000 | $3,000 | $3,000 |
| 2021 | $0 | $84,700 | $3,000 | $3,000 | $3,000 |
Deed and Sales History
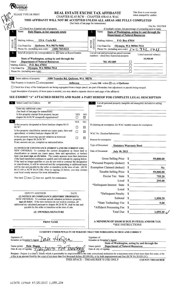
| 1 | 05/04/2016 | QCD | Quit Claim Deed | JAMES L DAVIS | ARCADIA PROPERTIES LLC | | | | 125385 | |
| 2 | 10/02/2014 | SWD | Statutory Warranty Deed | MADELEINE C HOUSTON | JAMES L DAVIS | | | $689,000.00 | 121996 | |
|   | |
| 3 | 02/19/2009 | QCD | Quit Claim Deed | ARCADIA REACH LLC | HOUSTON, MADELEINE C | 0 | 0 | $0.00 | 112527 | 0 |
| 4 | 06/27/2000 | SWD | Statutory Warranty Deed | MAGID, PAUL/ET AL | ARCADIA REACH | 0 | 0 | $0.00 | 89994 | 0 |
Payout Agreement
| No payout information available.. |