Property
Account |
| Property ID: | 32284 | Abbreviated Legal Description: | IRVING PARK ADDITION BLK 31 TAX 71 W/PTN S/VAC STS ADJ |
| Parcel # / Geo ID: | 963303102 | Agent Code: | |
| Type: | Real | | |
| Tax Area: | 0111 - 1-50F1E1H2L1 | Land Use Code | 11 |
| Open Space: | N | DFL | N |
| Historic Property: | N | Remodel Property: | N |
| Multi-Family Redevelopment: | N | | |
| Township: | 30N | Section: | 17 |
| Range: | 1W |
Location |
| Address: | 154 ASH LOOP PORT TOWNSEND, WA 98368 | Mapsco: | 035/049 |
| Neighborhood: | S16&17 T30 R1W SALEM,EVERGRN,IRVING&SUNNYSIDE PKS,PIONEER AC | Map ID: | |
| Neighborhood CD: | 5340 |
Owner |
| Name: | WILLIAM R SCHMITT | Owner ID: | 113054 |
| Mailing Address: | ROBERT A BARTEE PO BOX 1595 LYNNWOOD, WA 98046-1595 | % Ownership: | 100.0000000000% |
| | | Exemptions: | |
Pay Tax Due
There is currently No Amount Due on this property.
Taxes and Assessment Details
Property Tax Information as of
10/24/2025
Click on "Statement Details" to expand or collapse a tax statement.
* Please enter a valid date ** Please enter a valid date *
Statement Details |
| | TOTAL: | $0.00 | $0.00 | $0.00 | $0.00 | $0.00 | $0.00 |
|
| | $0.00 | $0.00 | $0.00 | $0.00 | $0.00 | $0.00 |
Values
| (+) Improvement Homesite Value: | + | $0 | |
| (+) Improvement Non-Homesite Value: | + | $133,448 | |
| (+) Land Homesite Value: | + | $0 | |
| (+) Land Non-Homesite Value: | + | $200,200 | |
| (+) Curr Use (HS): | + | $0 | $0 |
| (+) Curr Use (NHS): | + | $0 | $0 |
| | | -------------------------- | |
| (=) Market Value: | = | $333,648 | |
| (–) Productivity Loss: | – | $0 | |
| | | -------------------------- | |
| (=) Subtotal: | = | $333,648 | |
| (+) Senior Appraised Value: | + | $0 | |
| (+) Non-Senior Appraised Value: | + | $333,648 | |
| | | -------------------------- | |
| (=) Total Appraised Value: | = | $333,648 | |
| (–) Senior Exemption Loss: | – | $0 | |
| (–) Exemption Loss: | – | $0 | |
| | | -------------------------- | |
| (=) Taxable Value: | = | $333,648 | |
Taxing Jurisdiction
| Owner: | WILLIAM R SCHMITT | | |
| % Ownership: | 100.0000000000% | | |
| Total Value: | N/A | | |
| Tax Area: | 0111 - 1-50F1E1H2L1 |
| CE | COUNTY CURRENT EXPENSE | N/A | N/A | N/A | N/A | | |
| CNTYDD | DEVELOPMENTAL DISABILITIES | N/A | N/A | N/A | N/A | | |
| CNTYVET | VETERANS RELIEF | N/A | N/A | N/A | N/A | | |
| MENTAL | MENTAL HEALTH | N/A | N/A | N/A | N/A | | |
| ROADS | COUNTY ROADS | N/A | N/A | N/A | N/A | | |
| ROADSCU | COUNTY ROADS TO CUR EXP | N/A | N/A | N/A | N/A | | |
| HOSP2CASH | HOSP DIST #2 GENERAL | N/A | N/A | N/A | N/A | | |
| SCH50BOND | SCHOOL DIST #50 BOND 2016 | N/A | N/A | N/A | N/A | | |
| SCH50CP | SCHOOL DIST #50 CAP PROJ | N/A | N/A | N/A | N/A | | |
| SCH50MO | SCHOOL DIST #50 EP & O | N/A | N/A | N/A | N/A | | |
| CONSERVE | CONSERVATION FUTURES | N/A | N/A | N/A | N/A | | |
| EMS1 | FIRE DIST #1 EMS | N/A | N/A | N/A | N/A | | |
| FD1 | FIRE DIST #1 GENERAL | N/A | N/A | N/A | N/A | | |
| LIB1 | LIBRARY DIST #1 GENERAL | N/A | N/A | N/A | N/A | | |
| PORTPT | PORT OF PT GENERAL | N/A | N/A | N/A | N/A | | |
| PORTPTIDD | PORT OF PT IDD 2019 | N/A | N/A | N/A | N/A | | |
| PUD1 | PUD #1 GENERAL | N/A | N/A | N/A | N/A | | |
| STATE | STATE SCHOOL PART 1 | N/A | N/A | N/A | N/A | | |
| STATE2 | STATE SCHOOL PART 2 | N/A | N/A | N/A | N/A | | |
| | Total Tax Rate: | N/A | | | | | |
| | | | | Taxes w/Current Exemptions: | N/A | | |
| | | | | Taxes w/o Exemptions: | N/A | | |
Improvement / Building
| Improvement #1: | Manufactured Home | State Code: | 11 | 1431.0 sqft | Value: | $133,448 |
| Exterior Wall: | SI/ST | Floor Construction: | FRAME | | Foundation: | PO&BL | Heating/Cooling: | F/A | | Roof Cover: | COMP |   |   |
|
| | Type | Description | Class CD | Sub Class CD | Year Built | Area |
| | MA | Main Area | 4- | MDBL | 1994 | 1431.0 |
| | MWPOR | MH Wood Porch | 4 | MDBL | 1994 | 60.0 |
| | MDECK | MH Deck | 4 | MDBL | 1994 | 542.0 |
| | CARPTF | Carport W/Floor | 4 | MDBL | 1994 | 210.0 |
| | SHED | Shed (Table Not Dep) | 5 | MDBL | 1994 | 160.0 |
Sketch
| No sketches available for this property. |
Property Image
Land
| 1 | 5340-1185L | 5th Lot of Bldg Site | 0.0000 | 0.00 | 0.00 | 0.00 | 1.00 | $15,400 | $0 |
| 2 | 5340-1285S | 2 Lot Site w/City Wtr and Good Access | 1.0000 | 43560.00 | 0.00 | 0.00 | 1.00 | $93,500 | $0 |
| 3 | 5340-1183L | 3rd and 4th Lots of Bldg Site | 0.0000 | 0.00 | 0.00 | 0.00 | 2.00 | $41,800 | $0 |
| 4 | 5340-1187L | XS Lots Over 5 | 0.0000 | 0.00 | 0.00 | 0.00 | 1.00 | $49,500 | $0 |
Roll Value History
| 2025 | N/A | N/A | N/A | N/A | N/A |
| 2024 | $151,941 | $200,200 | $0 | $352,141 | $352,141 |
| 2023 | $145,042 | $185,850 | $0 | $330,892 | $330,892 |
| 2022 | $131,856 | $172,000 | $0 | $303,856 | $303,856 |
| 2021 | $99,891 | $145,420 | $0 | $245,311 | $245,311 |
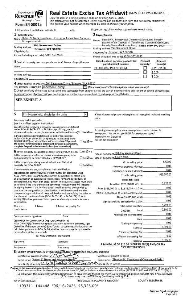
Deed and Sales History
| 1 | 07/02/2025 | QCD | Quit Claim Deed | VASSA SCHMITT | WILLIAM R SCHMITT | | | | 144674 | |
| 2 | 07/07/2025 | SWD | Statutory Warranty Deed | JEFFREY L SCHMITT | WILLIAM R SCHMITT | | | $334,000.00 | 144673 | |
| 3 | 01/12/2022 | PRD | Personal Representatives Deed | JAMES L SCHMITT | JEFFREY L SCHMITT | | | | 138488 | |
| 4 | 06/18/2002 | SWD | Statutory Warranty Deed | WILLIAM J SCHMITT | JAMES LEO SCHMITT | 0 | 0 | $130,000.00 | 94899 | 0 |
| 5 | 04/14/2000 | SWD | Statutory Warranty Deed | PROHL, JOHN F/MERRILLYNE | SCHMITT, WILLIAM J | 0 | 0 | $129,000.00 | 89424 | 0 |
| 6 | 09/19/1994 | SWD | Statutory Warranty Deed | GE DEVELOPMENT | PROHL, JOHN F/MERRILLYNNE K | 0 | 0 | $18,000.00 | 75181 | 0 |
Payout Agreement
| No payout information available.. |