Property
Account |
| Property ID: | 32291 | Abbreviated Legal Description: | IRVING PARK ADDITION BLK 33 LOTS 6 THRU 10 SUBJ/WELL RADIUS SETBACK |
| Parcel # / Geo ID: | 963303308 | Agent Code: | |
| Type: | Real | | |
| Tax Area: | 0111 - 1-50F1E1H2L1 | Land Use Code | 11 |
| Open Space: | N | DFL | N |
| Historic Property: | N | Remodel Property: | N |
| Multi-Family Redevelopment: | N | | |
| Township: | 30N | Section: | 17 |
| Range: | 1W |
Location |
| Address: | 43 ASH LOOP PORT TOWNSEND, WA 98368 | Mapsco: | 035/054 |
| Neighborhood: | S16&17 T30 R1W SALEM,EVERGRN,IRVING&SUNNYSIDE PKS,PIONEER AC | Map ID: | |
| Neighborhood CD: | 5340 |
Owner |
| Name: | LOUISE A CUDDEBACK | Owner ID: | 13942 |
| Mailing Address: | 43 ASH LOOP PORT TOWNSEND, WA 98368-9023 | % Ownership: | 100.0000000000% |
| | | Exemptions: | |
Pay Tax Due
There is currently No Amount Due on this property.
Taxes and Assessment Details
Property Tax Information as of
10/24/2025
Click on "Statement Details" to expand or collapse a tax statement.
* Please enter a valid date ** Please enter a valid date *
Statement Details |
| | TOTAL: | $0.00 | $0.00 | $0.00 | $0.00 | $0.00 | $0.00 |
|
| | $0.00 | $0.00 | $0.00 | $0.00 | $0.00 | $0.00 |
Values
| (+) Improvement Homesite Value: | + | $0 | |
| (+) Improvement Non-Homesite Value: | + | $141,338 | |
| (+) Land Homesite Value: | + | $0 | |
| (+) Land Non-Homesite Value: | + | $150,920 | |
| (+) Curr Use (HS): | + | $0 | $0 |
| (+) Curr Use (NHS): | + | $0 | $0 |
| | | -------------------------- | |
| (=) Market Value: | = | $292,258 | |
| (–) Productivity Loss: | – | $0 | |
| | | -------------------------- | |
| (=) Subtotal: | = | $292,258 | |
| (+) Senior Appraised Value: | + | $0 | |
| (+) Non-Senior Appraised Value: | + | $292,258 | |
| | | -------------------------- | |
| (=) Total Appraised Value: | = | $292,258 | |
| (–) Senior Exemption Loss: | – | $0 | |
| (–) Exemption Loss: | – | $0 | |
| | | -------------------------- | |
| (=) Taxable Value: | = | $292,258 | |
Taxing Jurisdiction
| Owner: | LOUISE A CUDDEBACK | | |
| % Ownership: | 100.0000000000% | | |
| Total Value: | N/A | | |
| Tax Area: | 0111 - 1-50F1E1H2L1 |
| CE | COUNTY CURRENT EXPENSE | N/A | N/A | N/A | N/A | | |
| CNTYDD | DEVELOPMENTAL DISABILITIES | N/A | N/A | N/A | N/A | | |
| CNTYVET | VETERANS RELIEF | N/A | N/A | N/A | N/A | | |
| MENTAL | MENTAL HEALTH | N/A | N/A | N/A | N/A | | |
| ROADS | COUNTY ROADS | N/A | N/A | N/A | N/A | | |
| ROADSCU | COUNTY ROADS TO CUR EXP | N/A | N/A | N/A | N/A | | |
| HOSP2CASH | HOSP DIST #2 GENERAL | N/A | N/A | N/A | N/A | | |
| SCH50BOND | SCHOOL DIST #50 BOND 2016 | N/A | N/A | N/A | N/A | | |
| SCH50CP | SCHOOL DIST #50 CAP PROJ | N/A | N/A | N/A | N/A | | |
| SCH50MO | SCHOOL DIST #50 EP & O | N/A | N/A | N/A | N/A | | |
| CONSERVE | CONSERVATION FUTURES | N/A | N/A | N/A | N/A | | |
| EMS1 | FIRE DIST #1 EMS | N/A | N/A | N/A | N/A | | |
| FD1 | FIRE DIST #1 GENERAL | N/A | N/A | N/A | N/A | | |
| LIB1 | LIBRARY DIST #1 GENERAL | N/A | N/A | N/A | N/A | | |
| PORTPT | PORT OF PT GENERAL | N/A | N/A | N/A | N/A | | |
| PORTPTIDD | PORT OF PT IDD 2019 | N/A | N/A | N/A | N/A | | |
| PUD1 | PUD #1 GENERAL | N/A | N/A | N/A | N/A | | |
| STATE | STATE SCHOOL PART 1 | N/A | N/A | N/A | N/A | | |
| STATE2 | STATE SCHOOL PART 2 | N/A | N/A | N/A | N/A | | |
| | Total Tax Rate: | N/A | | | | | |
| | | | | Taxes w/Current Exemptions: | N/A | | |
| | | | | Taxes w/o Exemptions: | N/A | | |
Improvement / Building
| Improvement #1: | Manufactured Home | State Code: | 11 | 1296.0 sqft | Value: | $141,338 |
| Bathrooms (#): | 2 (FULL) | Bedrooms (#): | 3 | | Exterior Wall: | PL/T1 | Floor Construction: | FRAME | | Foundation: | PO&BL | Heating/Cooling: | F/A | | Inside Verify: | YES-FIX | Roof Cover: | COMP |
|
| | Type | Description | Class CD | Sub Class CD | Year Built | Area |
| | MA | Main Area | 4+ | MDBL | 1994 | 1296.0 |
| | MDECK | MH Deck | 4 | MDBL | 1994 | 96.0 |
| | SHED | Shed (Table Not Dep) | 2 | MDBL | 1994 | 0.0 |
Sketch
| No sketches available for this property. |
Property Image
Land
| 1 | 5340-1183L | 3rd and 4th Lots of Bldg Site | 0.0000 | 0.00 | 0.00 | 0.00 | 2.00 | $41,800 | $0 |
| 2 | 5340-1187L | XS Lots Over 5 | 0.0000 | 0.00 | 0.00 | 0.00 | 1.00 | $220 | $0 |
| 3 | 5340-1185L | 5th Lot of Bldg Site | 0.0000 | 0.00 | 0.00 | 0.00 | 1.00 | $15,400 | $0 |
| 4 | 5340-1285S | 2 Lot Site w/City Wtr and Good Access | 0.0000 | 0.00 | 0.00 | 0.00 | 1.00 | $93,500 | $0 |
Roll Value History
| 2025 | N/A | N/A | N/A | N/A | N/A |
| 2024 | $141,338 | $150,920 | $0 | $292,258 | $292,258 |
| 2023 | $129,903 | $138,810 | $0 | $268,713 | $268,713 |
| 2022 | $118,094 | $127,200 | $0 | $245,294 | $245,294 |
| 2021 | $89,465 | $107,474 | $0 | $196,939 | $196,939 |
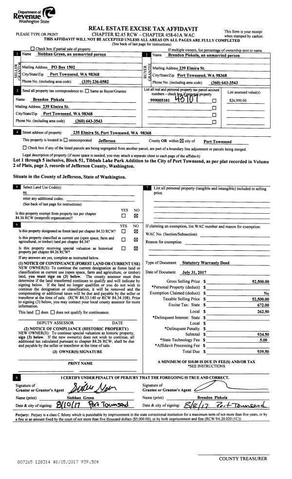
Deed and Sales History
| 1 | 05/23/2005 | SWD | Statutory Warranty Deed | PUGH, PAUL W KRISTI L | CUDDEBACK, LOUISE A | | | $189,000.00 | 103618 | 0 |
| 2 | 07/23/2002 | SWD | Statutory Warranty Deed | VICTOR VC PATTON | PAUL W/KRISTI L PUGH | 0 | 0 | $126,500.00 | 95253 | 0 |
| 3 | 08/09/1994 | SWD | Statutory Warranty Deed | GE DEVELOPMENT | PATTON, VICTOR/ROGERS, RITA M | 0 | 0 | $18,000.00 | 74877 | 0 |
Payout Agreement
| No payout information available.. |