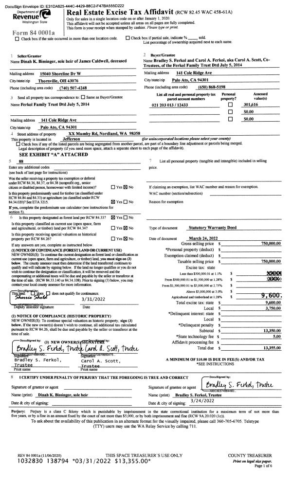
Property
Account |
| Property ID: | 32319 | Abbreviated Legal Description: | IRVING PARK ADDITION BLK 42 LOTS 1 THRU 5 EXCEPT ANY PTN W/I DISC RD LESS CO RD R/W#92384 |
| Parcel # / Geo ID: | 963304201 | Agent Code: | |
| Type: | Real | | |
| Tax Area: | 0111 - 1-50F1E1H2L1 | Land Use Code | 11 |
| Open Space: | N | DFL | N |
| Historic Property: | N | Remodel Property: | N |
| Multi-Family Redevelopment: | N | | |
| Township: | 30N | Section: | 17 |
| Range: | 1W |
Location |
| Address: | 62 ASH LOOP PORT TOWNSEND, WA 98368 | Mapsco: | 036/023 |
| Neighborhood: | S16&17 T30 R1W SALEM,EVERGRN,IRVING&SUNNYSIDE PKS,PIONEER AC | Map ID: | |
| Neighborhood CD: | 5340 |
Owner |
| Name: | CORNELIS G PRINS | Owner ID: | 72676 |
| Mailing Address: | 62 ASH LOOP PORT TOWNSEND, WA 98368-9023 | % Ownership: | 100.0000000000% |
| | | Exemptions: | SNR/DSBL |
Pay Tax Due
There is currently No Amount Due on this property.
Taxes and Assessment Details
Property Tax Information as of
10/24/2025
Click on "Statement Details" to expand or collapse a tax statement.
* Please enter a valid date ** Please enter a valid date *
Statement Details |
| | TOTAL: | $0.00 | $0.00 | $0.00 | $0.00 | $0.00 | $0.00 |
|
| | $0.00 | $0.00 | $0.00 | $0.00 | $0.00 | $0.00 |
Values
| (+) Improvement Homesite Value: | + | $205,282 | |
| (+) Improvement Non-Homesite Value: | + | $0 | |
| (+) Land Homesite Value: | + | $131,329 | |
| (+) Land Non-Homesite Value: | + | $0 | |
| (+) Curr Use (HS): | + | $0 | $0 |
| (+) Curr Use (NHS): | + | $0 | $0 |
| | | -------------------------- | |
| (=) Market Value: | = | $336,611 | |
| (–) Productivity Loss: | – | $0 | |
| | | -------------------------- | |
| (=) Subtotal: | = | $336,611 | |
| (+) Senior Appraised Value: | + | $207,080 | |
| (+) Non-Senior Appraised Value: | + | $0 | |
| | | -------------------------- | |
| (=) Total Appraised Value: | = | $207,080 | |
| (–) Senior Exemption Loss: | – | $70,000 | |
| (–) Exemption Loss: | – | $0 | |
| | | -------------------------- | |
| (=) Taxable Value: | = | $137,080 | |
Taxing Jurisdiction
| Owner: | CORNELIS G PRINS | | |
| % Ownership: | 100.0000000000% | | |
| Total Value: | N/A | | |
| Tax Area: | 0111 - 1-50F1E1H2L1 |
| CE | COUNTY CURRENT EXPENSE | N/A | N/A | N/A | N/A | | |
| CNTYDD | DEVELOPMENTAL DISABILITIES | N/A | N/A | N/A | N/A | | |
| CNTYVET | VETERANS RELIEF | N/A | N/A | N/A | N/A | | |
| MENTAL | MENTAL HEALTH | N/A | N/A | N/A | N/A | | |
| ROADS | COUNTY ROADS | N/A | N/A | N/A | N/A | | |
| ROADSCU | COUNTY ROADS TO CUR EXP | N/A | N/A | N/A | N/A | | |
| HOSP2CASH | HOSP DIST #2 GENERAL | N/A | N/A | N/A | N/A | | |
| SCH50BOND | SCHOOL DIST #50 BOND 2016 | N/A | N/A | N/A | N/A | | |
| SCH50CP | SCHOOL DIST #50 CAP PROJ | N/A | N/A | N/A | N/A | | |
| SCH50MO | SCHOOL DIST #50 EP & O | N/A | N/A | N/A | N/A | | |
| CONSERVE | CONSERVATION FUTURES | N/A | N/A | N/A | N/A | | |
| EMS1 | FIRE DIST #1 EMS | N/A | N/A | N/A | N/A | | |
| FD1 | FIRE DIST #1 GENERAL | N/A | N/A | N/A | N/A | | |
| LIB1 | LIBRARY DIST #1 GENERAL | N/A | N/A | N/A | N/A | | |
| PORTPT | PORT OF PT GENERAL | N/A | N/A | N/A | N/A | | |
| PORTPTIDD | PORT OF PT IDD 2019 | N/A | N/A | N/A | N/A | | |
| PUD1 | PUD #1 GENERAL | N/A | N/A | N/A | N/A | | |
| STATE | STATE SCHOOL PART 1 | N/A | N/A | N/A | N/A | | |
| STATE2 | STATE SCHOOL PART 2 | N/A | N/A | N/A | N/A | | |
| | Total Tax Rate: | N/A | | | | | |
| | | | | Taxes w/Current Exemptions: | N/A | | |
| | | | | Taxes w/o Exemptions: | N/A | | |
Improvement / Building
| Improvement #1: | Manufactured Home | State Code: | 11 | 1248.0 sqft | Value: | $205,282 |
| Bathrooms (#): | 2 (FULL) | Bedrooms (#): | 3 | | Exterior Wall: | PL/T1 | Foundation: | PO&BL | | Heating/Cooling: | F/A | Inside Verify: | YES-FIX | | Roof Cover: | COMP |   |   |
|
| | Type | Description | Class CD | Sub Class CD | Year Built | Area |
| | MA | Main Area | 5- | MDBL | 1994 | 1248.0 |
| | MDECK | MH Deck | 4 | MDBL | 1994 | 80.0 |
| | MDET | MH Detached Garage | 3 | MDBL | 1994 | 984.0 |
| | CARPTF | Carport W/Floor | 3 | MDBL | 1994 | 240.0 |
Sketch
Property Image
Land
| 1 | 5340-1285S | 2 Lot Site w/City Wtr and Good Access | 0.0000 | 0.00 | 0.00 | 0.00 | 1.00 | $93,500 | $0 |
| 2 | 5340-1183L | 3rd and 4th Lots of Bldg Site | 0.0000 | 0.00 | 0.00 | 0.00 | 1.00 | $37,829 | $0 |
Roll Value History
| 2025 | N/A | N/A | N/A | N/A | N/A |
| 2024 | $205,282 | $131,329 | $0 | $336,611 | $137,080 |
| 2023 | $190,386 | $120,110 | $0 | $310,496 | $137,080 |
| 2022 | $173,078 | $109,390 | $0 | $282,468 | $137,080 |
| 2021 | $100,305 | $91,361 | $0 | $191,666 | $116,349 |
Deed and Sales History
| 1 | 04/02/2015 | SWD | Statutory Warranty Deed | KEYBANK NATIONAL ASSOCIATION | CORNELIS G PRINS | | | $94,905.00 | 123143 | |
| 2 | 12/16/2014 | TRED | Trustee Deed | NORTHWEST TRUSTEE SERVICES INC | KEYBANK NATIONAL ASSOCIATION | | | | 122423 | |
| 3 | 06/04/2004 | SWD | Statutory Warranty Deed | HAMMOND, WALTER L/KATHLEE | CUDDEBACK, PATRICIA M | 0 | 0 | $151,761.00 | 100476 | 0 |
| 4 | 06/14/2001 | SWD | Statutory Warranty Deed | HAMMOND, WALTER L/KATHLEE | JEFFERSON COUNTY | 0 | 0 | $0.00 | 92384 | 0 |
| 5 | 09/30/1994 | SWD | Statutory Warranty Deed | GE DEVELOPMENT | HAMMOND, WALTER L/KATHLEEN KAY | 0 | 0 | $18,000.00 | 75309 | 0 |
| 6 | 10/05/1993 | SWD | Statutory Warranty Deed | DISCOVERY TIMBER COMPANY | G E DEVELOPMENT | 0 | 0 | $0.00 | 72317 | 0 |
Payout Agreement
| No payout information available.. |