Property
Account |
| Property ID: | 32357 | Abbreviated Legal Description: | ISLAND VISTA LOT 8 |
| Parcel # / Geo ID: | 963700008 | Agent Code: | |
| Type: | Real | | |
| Tax Area: | 0110 - C-50F1E1H2 | Land Use Code | 11 |
| Open Space: | N | DFL | N |
| Historic Property: | N | Remodel Property: | N |
| Multi-Family Redevelopment: | N | | |
| Township: | 30N | Section: | 15 |
| Range: | 1W |
Location |
| Address: | 71 VISTA BLVD PORT TOWNSEND, WA 98368 | Mapsco: | 069/008 |
| Neighborhood: | GALLEON VIEW ESTATES, ISLAND VISTA, and TAX #14 15/30/1W | Map ID: | |
| Neighborhood CD: | 6230 |
Owner |
| Name: | J B POWERS TRUST | Owner ID: | 111177 |
| Mailing Address: | JOHN B POWERS TRUSTEE 71 VISTA BLVD PORT TOWNSEND, WA 98368-3065 | % Ownership: | 100.0000000000% |
| | | Exemptions: | |
Pay Tax Due
There is currently No Amount Due on this property.
Taxes and Assessment Details
Property Tax Information as of
10/24/2025
Click on "Statement Details" to expand or collapse a tax statement.
* Please enter a valid date ** Please enter a valid date *
Statement Details |
| | TOTAL: | $0.00 | $0.00 | $0.00 | $0.00 | $0.00 | $0.00 |
|
| | $0.00 | $0.00 | $0.00 | $0.00 | $0.00 | $0.00 |
Values
| (+) Improvement Homesite Value: | + | $0 | |
| (+) Improvement Non-Homesite Value: | + | $682,781 | |
| (+) Land Homesite Value: | + | $0 | |
| (+) Land Non-Homesite Value: | + | $353,000 | |
| (+) Curr Use (HS): | + | $0 | $0 |
| (+) Curr Use (NHS): | + | $0 | $0 |
| | | -------------------------- | |
| (=) Market Value: | = | $1,035,781 | |
| (–) Productivity Loss: | – | $0 | |
| | | -------------------------- | |
| (=) Subtotal: | = | $1,035,781 | |
| (+) Senior Appraised Value: | + | $0 | |
| (+) Non-Senior Appraised Value: | + | $1,035,781 | |
| | | -------------------------- | |
| (=) Total Appraised Value: | = | $1,035,781 | |
| (–) Senior Exemption Loss: | – | $0 | |
| (–) Exemption Loss: | – | $0 | |
| | | -------------------------- | |
| (=) Taxable Value: | = | $1,035,781 | |
Taxing Jurisdiction
| Owner: | J B POWERS TRUST | | |
| % Ownership: | 100.0000000000% | | |
| Total Value: | N/A | | |
| Tax Area: | 0110 - C-50F1E1H2 |
| CE | COUNTY CURRENT EXPENSE | N/A | N/A | N/A | N/A | | |
| CNTYDD | DEVELOPMENTAL DISABILITIES | N/A | N/A | N/A | N/A | | |
| CNTYVET | VETERANS RELIEF | N/A | N/A | N/A | N/A | | |
| MENTAL | MENTAL HEALTH | N/A | N/A | N/A | N/A | | |
| PTGEN | CITY OF PT GENERAL | N/A | N/A | N/A | N/A | | |
| PTLLL | CITY OF PT - LIBRARY LID LIFT | N/A | N/A | N/A | N/A | | |
| PTMVBOND | CITY OF PT MV BOND | N/A | N/A | N/A | N/A | | |
| HOSP2CASH | HOSP DIST #2 GENERAL | N/A | N/A | N/A | N/A | | |
| SCH50BOND | SCHOOL DIST #50 BOND 2016 | N/A | N/A | N/A | N/A | | |
| SCH50CP | SCHOOL DIST #50 CAP PROJ | N/A | N/A | N/A | N/A | | |
| SCH50MO | SCHOOL DIST #50 EP & O | N/A | N/A | N/A | N/A | | |
| CONSERVE | CONSERVATION FUTURES | N/A | N/A | N/A | N/A | | |
| EMS1 | FIRE DIST #1 EMS | N/A | N/A | N/A | N/A | | |
| FD1 | FIRE DIST #1 GENERAL | N/A | N/A | N/A | N/A | | |
| PORTPT | PORT OF PT GENERAL | N/A | N/A | N/A | N/A | | |
| PORTPTIDD | PORT OF PT IDD 2019 | N/A | N/A | N/A | N/A | | |
| PUD1 | PUD #1 GENERAL | N/A | N/A | N/A | N/A | | |
| STATE | STATE SCHOOL PART 1 | N/A | N/A | N/A | N/A | | |
| STATE2 | STATE SCHOOL PART 2 | N/A | N/A | N/A | N/A | | |
| | Total Tax Rate: | N/A | | | | | |
| | | | | Taxes w/Current Exemptions: | N/A | | |
| | | | | Taxes w/o Exemptions: | N/A | | |
Improvement / Building
| Improvement #1: | Residential Bldg | State Code: | 11 | 2978.0 sqft | Value: | $682,781 |
| Bathrooms (#): | 3 (FULL) | Bathrooms (#): | 1 (HALF) | | Bedrooms (#): | 4 | Exterior Wall: | SI/ST | | Floor Construction: | FRAME | Foundation: | CONPR | | Heating/Cooling: | F/A | Inside Verify: | NO | | Roof Cover: | COMP |   |   |
|
| | Type | Description | Class CD | Sub Class CD | Year Built | Area |
| | MA | Main Area | 4+ | 1S | 2004 | 2978.0 |
| | HDECK | House Deck | 4 | 1S | 2004 | 532.0 |
| | GATT | House Attached Garage | 4 | 1S | 2004 | 576.0 |
| | HWPOR | House Wood Porch | 4 | 1S | 2004 | 112.0 |
| | HCPOR | House Concrete Porch | 4 | 1S | 2004 | 19.5 |
Sketch
Property Image
Land
| 1 | 6230-1535F | High Bank Excl Wtr/Mtn/City Views | 0.0000 | 0.00 | 0.00 | 0.00 | 0.00 | $353,000 | $0 |
Roll Value History
| 2025 | N/A | N/A | N/A | N/A | N/A |
| 2024 | $658,126 | $353,000 | $0 | $1,011,126 | $1,011,126 |
| 2023 | $658,126 | $348,000 | $0 | $1,006,126 | $1,006,126 |
| 2022 | $658,126 | $343,000 | $0 | $1,001,126 | $1,001,126 |
| 2021 | $550,273 | $284,375 | $0 | $834,648 | $834,648 |
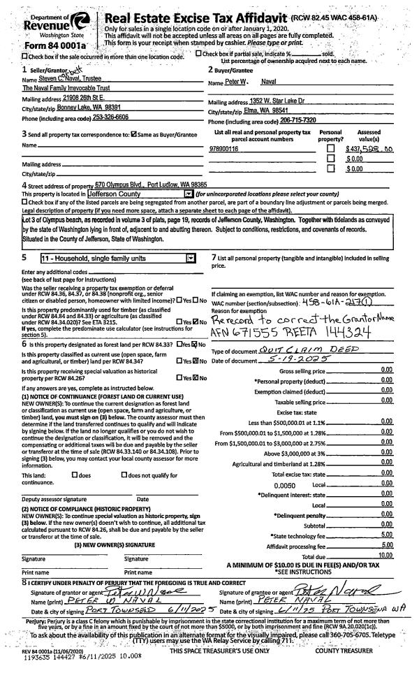
Deed and Sales History
| 1 | 07/25/2024 | QCD | Quit Claim Deed | JOHN B POWERS | J B POWERS TRUST | | | | 142943 | |
| 2 | 09/24/2021 | DTH CERT | Death Certificate | MURIEL POWERS | JOHN B POWERS | | | | 0 | |
| 3 | 08/02/2011 | SWD | Statutory Warranty Deed | DAUBENBERGER, JOE/JULIA A | POWERS, JOHN/MURIEL JS | 0 | 0 | $575,000.00 | 116354 | 0 |
| 4 | 01/28/2008 | SWD | Statutory Warranty Deed | SOBRINO, MARCO A | DAUBENBERGER, JOE/JULIE ANN | 0 | 0 | $675,000.00 | 110774 | 0 |
| 5 | 10/07/2003 | QCD | Quit Claim Deed | AVILA, LUZ MARIA | SOBRINO, MARCO | 0 | 0 | $0.00 | 98536 | 0 |
| 6 | 10/03/2003 | SWD | Statutory Warranty Deed | BARNETT, ALLEN S/LESLIE G | SOBRINO, MARCO/AVILA, LUZ M | 0 | 0 | $93,000.00 | 98535 | 0 |
Payout Agreement
| No payout information available.. |