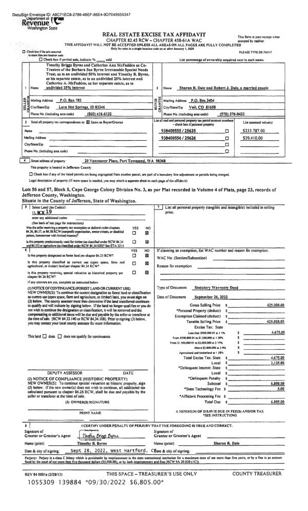
Property
Account |
| Property ID: | 32367 | Abbreviated Legal Description: | ISLAND VISTA LOT 18 |
| Parcel # / Geo ID: | 963700018 | Agent Code: | |
| Type: | Real | | |
| Tax Area: | 0110 - C-50F1E1H2 | Land Use Code | 11 |
| Open Space: | N | DFL | N |
| Historic Property: | N | Remodel Property: | N |
| Multi-Family Redevelopment: | N | | |
| Township: | 30N | Section: | 15 |
| Range: | 1W |
Location |
| Address: | 62 VISTA BLVD PORT TOWNSEND, WA 98368 | Mapsco: | 069/018 |
| Neighborhood: | GALLEON VIEW ESTATES, ISLAND VISTA, and TAX #14 15/30/1W | Map ID: | |
| Neighborhood CD: | 6230 |
Owner |
| Name: | JAMESON J & TIANA M HAWN | Owner ID: | 108268 |
| Mailing Address: | 62 VISTA BLVD PORT TOWNSEND, WA 98368-3066 | % Ownership: | 100.0000000000% |
| | | Exemptions: | |
Pay Tax Due
There is currently No Amount Due on this property.
Taxes and Assessment Details
Property Tax Information as of
10/24/2025
Click on "Statement Details" to expand or collapse a tax statement.
* Please enter a valid date ** Please enter a valid date *
Statement Details |
| | TOTAL: | $0.00 | $0.00 | $0.00 | $0.00 | $0.00 | $0.00 |
|
| | $0.00 | $0.00 | $0.00 | $0.00 | $0.00 | $0.00 |
Values
| (+) Improvement Homesite Value: | + | $0 | |
| (+) Improvement Non-Homesite Value: | + | $388,486 | |
| (+) Land Homesite Value: | + | $0 | |
| (+) Land Non-Homesite Value: | + | $180,000 | |
| (+) Curr Use (HS): | + | $0 | $0 |
| (+) Curr Use (NHS): | + | $0 | $0 |
| | | -------------------------- | |
| (=) Market Value: | = | $568,486 | |
| (–) Productivity Loss: | – | $0 | |
| | | -------------------------- | |
| (=) Subtotal: | = | $568,486 | |
| (+) Senior Appraised Value: | + | $0 | |
| (+) Non-Senior Appraised Value: | + | $568,486 | |
| | | -------------------------- | |
| (=) Total Appraised Value: | = | $568,486 | |
| (–) Senior Exemption Loss: | – | $0 | |
| (–) Exemption Loss: | – | $0 | |
| | | -------------------------- | |
| (=) Taxable Value: | = | $568,486 | |
Taxing Jurisdiction
| Owner: | JAMESON J & TIANA M HAWN | | |
| % Ownership: | 100.0000000000% | | |
| Total Value: | N/A | | |
| Tax Area: | 0110 - C-50F1E1H2 |
| CE | COUNTY CURRENT EXPENSE | N/A | N/A | N/A | N/A | | |
| CNTYDD | DEVELOPMENTAL DISABILITIES | N/A | N/A | N/A | N/A | | |
| CNTYVET | VETERANS RELIEF | N/A | N/A | N/A | N/A | | |
| MENTAL | MENTAL HEALTH | N/A | N/A | N/A | N/A | | |
| PTGEN | CITY OF PT GENERAL | N/A | N/A | N/A | N/A | | |
| PTLLL | CITY OF PT - LIBRARY LID LIFT | N/A | N/A | N/A | N/A | | |
| PTMVBOND | CITY OF PT MV BOND | N/A | N/A | N/A | N/A | | |
| HOSP2CASH | HOSP DIST #2 GENERAL | N/A | N/A | N/A | N/A | | |
| SCH50BOND | SCHOOL DIST #50 BOND 2016 | N/A | N/A | N/A | N/A | | |
| SCH50CP | SCHOOL DIST #50 CAP PROJ | N/A | N/A | N/A | N/A | | |
| SCH50MO | SCHOOL DIST #50 EP & O | N/A | N/A | N/A | N/A | | |
| CONSERVE | CONSERVATION FUTURES | N/A | N/A | N/A | N/A | | |
| EMS1 | FIRE DIST #1 EMS | N/A | N/A | N/A | N/A | | |
| FD1 | FIRE DIST #1 GENERAL | N/A | N/A | N/A | N/A | | |
| PORTPT | PORT OF PT GENERAL | N/A | N/A | N/A | N/A | | |
| PORTPTIDD | PORT OF PT IDD 2019 | N/A | N/A | N/A | N/A | | |
| PUD1 | PUD #1 GENERAL | N/A | N/A | N/A | N/A | | |
| STATE | STATE SCHOOL PART 1 | N/A | N/A | N/A | N/A | | |
| STATE2 | STATE SCHOOL PART 2 | N/A | N/A | N/A | N/A | | |
| | Total Tax Rate: | N/A | | | | | |
| | | | | Taxes w/Current Exemptions: | N/A | | |
| | | | | Taxes w/o Exemptions: | N/A | | |
Improvement / Building
| Improvement #1: | Residential Bldg | State Code: | 11 | 1578.0 sqft | Value: | $388,486 |
| Bathrooms (#): | 2 (FULL) | Bedrooms (#): | 3 | | Exterior Wall: | SI/ST | Fireplace: | SIN 1-GOOD | | Floor Construction: | FRAME | Foundation: | CONPR | | Heating/Cooling: | F/A | Inside Verify: | NO | | Roof Cover: | COMP |   |   |
|
| | Type | Description | Class CD | Sub Class CD | Year Built | Area |
| | MA | Main Area | 4 | 1S | 1990 | 1578.0 |
| | HWPOR | House Wood Porch | 4 | 1S | 1990 | 140.0 |
| | HDECK | House Deck | 4 | 1S | 1990 | 246.0 |
| | GATT | House Attached Garage | 4 | 1S | 1990 | 724.0 |
| | SOLAR | Solar Panel | 4 | 1S | 1990 | 0.0 |
| | SHED | Shed (Table Not Dep) | 4 | 1S | 1990 | 120.0 |
| | PATIO | House Patio | 4 | 1S | 1990 | 140.0 |
Sketch
Property Image
Land
| 1 | 6230-1255S | Avg-Good Wtr/Mtn View Sites | 0.0000 | 0.00 | 0.00 | 0.00 | 1.00 | $180,000 | $0 |
Roll Value History
| 2025 | N/A | N/A | N/A | N/A | N/A |
| 2024 | $392,977 | $170,000 | $0 | $562,977 | $562,977 |
| 2023 | $410,435 | $165,000 | $0 | $575,435 | $575,435 |
| 2022 | $459,221 | $160,000 | $0 | $619,221 | $619,221 |
| 2021 | $383,964 | $125,000 | $0 | $508,964 | $508,964 |
Deed and Sales History
| 1 | 05/24/2023 | SWD | Statutory Warranty Deed | SANDRA R HAROLD | JAMESON J & TIANA M HAWN | | | $565,000.00 | 140987 | |
| 2 | 09/26/2013 | SWD | Statutory Warranty Deed | DAPHNE RUTH HUNT | SANDRA R HAROLD | | | $321,000.00 | 120073 | |
| 3 | 05/07/2009 | SWD | Statutory Warranty Deed | MCQUILLEN, WALTER/SARAH | HUNT, DAPHNE RUTH | | | $275,000.00 | 112908 | 0 |
Payout Agreement
| No payout information available.. |