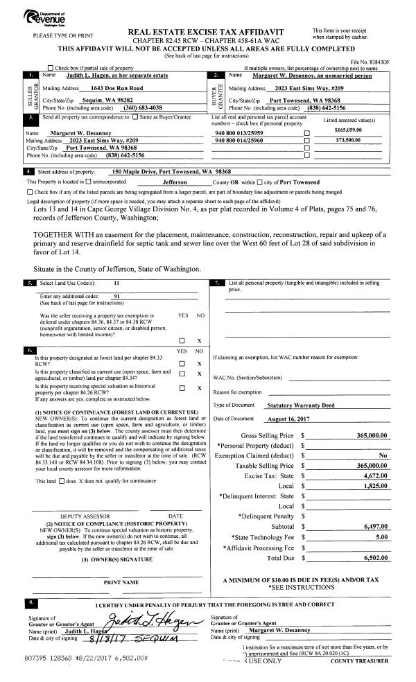
Property
Account |
| Property ID: | 32370 | Abbreviated Legal Description: | ISLAND VISTA LOT 21 |
| Parcel # / Geo ID: | 963700021 | Agent Code: | |
| Type: | Real | | |
| Tax Area: | 0110 - C-50F1E1H2 | Land Use Code | 11 |
| Open Space: | N | DFL | N |
| Historic Property: | N | Remodel Property: | N |
| Multi-Family Redevelopment: | N | | |
| Township: | 30N | Section: | 15 |
| Range: | 1W |
Location |
| Address: | 32 VISTA BLVD PORT TOWNSEND, WA 98368 | Mapsco: | 069/021 |
| Neighborhood: | GALLEON VIEW ESTATES, ISLAND VISTA, and TAX #14 15/30/1W | Map ID: | |
| Neighborhood CD: | 6230 |
Owner |
| Name: | MICHELLE REDDEL | Owner ID: | 98880 |
| Mailing Address: | JANET KELLER 32 VISTA BLVD PORT TOWNSEND, WA 98368-3066 | % Ownership: | 100.0000000000% |
| | | Exemptions: | |
Pay Tax Due
There is currently No Amount Due on this property.
Taxes and Assessment Details
Property Tax Information as of
10/24/2025
Click on "Statement Details" to expand or collapse a tax statement.
* Please enter a valid date ** Please enter a valid date *
Statement Details |
| | TOTAL: | $0.00 | $0.00 | $0.00 | $0.00 | $0.00 | $0.00 |
|
| | $0.00 | $0.00 | $0.00 | $0.00 | $0.00 | $0.00 |
Values
| (+) Improvement Homesite Value: | + | $534,949 | |
| (+) Improvement Non-Homesite Value: | + | $0 | |
| (+) Land Homesite Value: | + | $180,000 | |
| (+) Land Non-Homesite Value: | + | $0 | |
| (+) Curr Use (HS): | + | $0 | $0 |
| (+) Curr Use (NHS): | + | $0 | $0 |
| | | -------------------------- | |
| (=) Market Value: | = | $714,949 | |
| (–) Productivity Loss: | – | $0 | |
| | | -------------------------- | |
| (=) Subtotal: | = | $714,949 | |
| (+) Senior Appraised Value: | + | $0 | |
| (+) Non-Senior Appraised Value: | + | $714,949 | |
| | | -------------------------- | |
| (=) Total Appraised Value: | = | $714,949 | |
| (–) Senior Exemption Loss: | – | $0 | |
| (–) Exemption Loss: | – | $0 | |
| | | -------------------------- | |
| (=) Taxable Value: | = | $714,949 | |
Taxing Jurisdiction
| Owner: | MICHELLE REDDEL | | |
| % Ownership: | 100.0000000000% | | |
| Total Value: | N/A | | |
| Tax Area: | 0110 - C-50F1E1H2 |
| CE | COUNTY CURRENT EXPENSE | N/A | N/A | N/A | N/A | | |
| CNTYDD | DEVELOPMENTAL DISABILITIES | N/A | N/A | N/A | N/A | | |
| CNTYVET | VETERANS RELIEF | N/A | N/A | N/A | N/A | | |
| MENTAL | MENTAL HEALTH | N/A | N/A | N/A | N/A | | |
| PTGEN | CITY OF PT GENERAL | N/A | N/A | N/A | N/A | | |
| PTLLL | CITY OF PT - LIBRARY LID LIFT | N/A | N/A | N/A | N/A | | |
| PTMVBOND | CITY OF PT MV BOND | N/A | N/A | N/A | N/A | | |
| HOSP2CASH | HOSP DIST #2 GENERAL | N/A | N/A | N/A | N/A | | |
| SCH50BOND | SCHOOL DIST #50 BOND 2016 | N/A | N/A | N/A | N/A | | |
| SCH50CP | SCHOOL DIST #50 CAP PROJ | N/A | N/A | N/A | N/A | | |
| SCH50MO | SCHOOL DIST #50 EP & O | N/A | N/A | N/A | N/A | | |
| CONSERVE | CONSERVATION FUTURES | N/A | N/A | N/A | N/A | | |
| EMS1 | FIRE DIST #1 EMS | N/A | N/A | N/A | N/A | | |
| FD1 | FIRE DIST #1 GENERAL | N/A | N/A | N/A | N/A | | |
| PORTPT | PORT OF PT GENERAL | N/A | N/A | N/A | N/A | | |
| PORTPTIDD | PORT OF PT IDD 2019 | N/A | N/A | N/A | N/A | | |
| PUD1 | PUD #1 GENERAL | N/A | N/A | N/A | N/A | | |
| STATE | STATE SCHOOL PART 1 | N/A | N/A | N/A | N/A | | |
| STATE2 | STATE SCHOOL PART 2 | N/A | N/A | N/A | N/A | | |
| | Total Tax Rate: | N/A | | | | | |
| | | | | Taxes w/Current Exemptions: | N/A | | |
| | | | | Taxes w/o Exemptions: | N/A | | |
Improvement / Building
| Improvement #1: | Residential Bldg | State Code: | 11 | 2085.4 sqft | Value: | $534,949 |
| Bathrooms (#): | 2 (FULL) | Bathrooms (#): | 1 (HALF) | | Bedrooms (#): | 3 | Exterior Wall: | SI/ST | | Fireplace: | SIN 1-AVG | Floor Construction: | FRAME | | Foundation: | CONPR | Heating/Cooling: | HPUMP | | Inside Verify: | YES-FIX | Roof Cover: | TILE |
|
| | Type | Description | Class CD | Sub Class CD | Year Built | Area |
| | MA | Main Area | 5- | 15SF | 1990 | 1251.4 |
| | MA2 | Second Floor Main Area | 5- | 15SF | 1990 | 834.0 |
| | HCPOR | House Concrete Porch | 4 | 15SF | 1990 | 66.6 |
| | HDECK | House Deck | 4 | 15SF | 1990 | 96.0 |
| | GBLTIN | Builtin Garage | 4 | 15SF | 1990 | 660.0 |
| | HWPOR | House Wood Porch | 4 | 15SF | 1990 | 268.0 |
Sketch
Property Image
Land
| 1 | 6230-1255S | Avg-Good Wtr/Mtn View Sites | 0.0000 | 0.00 | 0.00 | 0.00 | 1.00 | $180,000 | $0 |
Roll Value History
| 2025 | N/A | N/A | N/A | N/A | N/A |
| 2024 | $532,417 | $170,000 | $0 | $702,417 | $702,417 |
| 2023 | $532,417 | $165,000 | $0 | $697,417 | $697,417 |
| 2022 | $532,416 | $160,000 | $0 | $692,416 | $692,416 |
| 2021 | $445,164 | $125,000 | $0 | $570,164 | $570,164 |
Deed and Sales History
| 1 | 03/19/2018 | SWD | Statutory Warranty Deed | EDITH ELLIS | MICHELLE REDDEL | | | $490,000.00 | 129794 | |
Payout Agreement
| No payout information available.. |