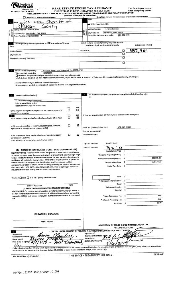
Property
Account |
| Property ID: | 32381 | Abbreviated Legal Description: | JACKSON COVE PARK LOTS 2 & 3 BND BY REST COVT #578122 |
| Parcel # / Geo ID: | 963900008 | Agent Code: | |
| Type: | Real | | |
| Tax Area: | 0441 - 1-46F4E4H2C1L1P2 | Land Use Code | 11 |
| Open Space: | N | DFL | N |
| Historic Property: | N | Remodel Property: | N |
| Multi-Family Redevelopment: | N | | |
| Township: | 26N | Section: | 13 |
| Range: | 2W |
Location |
| Address: | 21 COVE WAY BRINNON, WA 98320 | Mapsco: | 005/008 |
| Neighborhood: | S13 T26N R2W & JACKSON COVE PARK | Map ID: | |
| Neighborhood CD: | 1335 |
Owner |
| Name: | DAVID H WELLS | Owner ID: | 30161 |
| Mailing Address: | LAVINA M AUTRY 21 COVE WAY BRINNON, WA 98320-9768 | % Ownership: | 100.0000000000% |
| | | Exemptions: | |
Pay Tax Due
There is currently No Amount Due on this property.
Taxes and Assessment Details
Property Tax Information as of
10/24/2025
Click on "Statement Details" to expand or collapse a tax statement.
* Please enter a valid date ** Please enter a valid date *
Statement Details |
| | TOTAL: | $0.00 | $0.00 | $0.00 | $0.00 | $0.00 | $0.00 |
|
| | $0.00 | $0.00 | $0.00 | $0.00 | $0.00 | $0.00 |
Values
| (+) Improvement Homesite Value: | + | $0 | |
| (+) Improvement Non-Homesite Value: | + | $156,137 | |
| (+) Land Homesite Value: | + | $0 | |
| (+) Land Non-Homesite Value: | + | $74,250 | |
| (+) Curr Use (HS): | + | $0 | $0 |
| (+) Curr Use (NHS): | + | $0 | $0 |
| | | -------------------------- | |
| (=) Market Value: | = | $230,387 | |
| (–) Productivity Loss: | – | $0 | |
| | | -------------------------- | |
| (=) Subtotal: | = | $230,387 | |
| (+) Senior Appraised Value: | + | $0 | |
| (+) Non-Senior Appraised Value: | + | $230,387 | |
| | | -------------------------- | |
| (=) Total Appraised Value: | = | $230,387 | |
| (–) Senior Exemption Loss: | – | $0 | |
| (–) Exemption Loss: | – | $0 | |
| | | -------------------------- | |
| (=) Taxable Value: | = | $230,387 | |
Taxing Jurisdiction
| Owner: | DAVID H WELLS | | |
| % Ownership: | 100.0000000000% | | |
| Total Value: | N/A | | |
| Tax Area: | 0441 - 1-46F4E4H2C1L1P2 |
| CE | COUNTY CURRENT EXPENSE | N/A | N/A | N/A | N/A | | |
| CNTYDD | DEVELOPMENTAL DISABILITIES | N/A | N/A | N/A | N/A | | |
| CNTYVET | VETERANS RELIEF | N/A | N/A | N/A | N/A | | |
| MENTAL | MENTAL HEALTH | N/A | N/A | N/A | N/A | | |
| ROADS | COUNTY ROADS | N/A | N/A | N/A | N/A | | |
| ROADSCU | COUNTY ROADS TO CUR EXP | N/A | N/A | N/A | N/A | | |
| HOSP2CASH | HOSP DIST #2 GENERAL | N/A | N/A | N/A | N/A | | |
| SCH46MO | SCHOOL DIST #46 EP & O | N/A | N/A | N/A | N/A | | |
| CEM1 | CEMETERY DIST #1 GENERAL | N/A | N/A | N/A | N/A | | |
| CONSERVE | CONSERVATION FUTURES | N/A | N/A | N/A | N/A | | |
| EMS4 | FIRE DIST #4 EMS | N/A | N/A | N/A | N/A | | |
| FD4 | FIRE DIST #4 GENERAL | N/A | N/A | N/A | N/A | | |
| FD4BOND | FIRE DIST #4 BOND 2019 | N/A | N/A | N/A | N/A | | |
| LIB1 | LIBRARY DIST #1 GENERAL | N/A | N/A | N/A | N/A | | |
| PORTPT | PORT OF PT GENERAL | N/A | N/A | N/A | N/A | | |
| PORTPTIDD | PORT OF PT IDD 2019 | N/A | N/A | N/A | N/A | | |
| PUD1 | PUD #1 GENERAL | N/A | N/A | N/A | N/A | | |
| STATE | STATE SCHOOL PART 1 | N/A | N/A | N/A | N/A | | |
| STATE2 | STATE SCHOOL PART 2 | N/A | N/A | N/A | N/A | | |
| | Total Tax Rate: | N/A | | | | | |
| | | | | Taxes w/Current Exemptions: | N/A | | |
| | | | | Taxes w/o Exemptions: | N/A | | |
Improvement / Building
| Improvement #1: | Residential Bldg | State Code: | 11 | 1162.0 sqft | Value: | $156,137 |
| Bathrooms (#): | 1 (FULL) | Bedrooms (#): | 2 | | Exterior Wall: | PL/T1 | Fireplace: | SIN 1-GOOD | | Floor Construction: | FRAME | Foundation: | CONPR | | Heating/Cooling: | ELBB | Roof Cover: | METAL |
|
| | Type | Description | Class CD | Sub Class CD | Year Built | Area |
| | MA | Main Area | 2+ | 1S | 1965 | 1162.0 |
| | PATIO | House Patio | 2 | * | 1965 | 960.0 |
| | HCPOR | House Concrete Porch | 2 | * | 1965 | 126.0 |
| | CARPT | Carport (Table Not Dep) | 1 | * | 1965 | 320.0 |
| | GDET | Detached Garage | 2 | * | 1965 | 960.0 |
| | CONCD | Concrete Drive | 2 | * | 1965 | 720.0 |
Sketch
Property Image
Land
| 1 | 1335-1155L | Fair to Avg View Lots in Jackson Cove | 0.0000 | 0.00 | 0.00 | 0.00 | 1.00 | $60,500 | $0 |
| 2 | 1335-1155L | Fair to Avg View Lots in Jackson Cove | 0.0000 | 0.00 | 0.00 | 0.00 | 1.00 | $13,750 | $0 |
Roll Value History
| 2025 | N/A | N/A | N/A | N/A | N/A |
| 2024 | $149,348 | $70,875 | $0 | $220,223 | $220,223 |
| 2023 | $149,348 | $62,500 | $0 | $211,848 | $211,848 |
| 2022 | $135,771 | $57,500 | $0 | $193,271 | $193,271 |
| 2021 | $112,207 | $51,750 | $0 | $163,957 | $163,957 |
Deed and Sales History
| 1 | 03/30/2007 | QCD | Quit Claim Deed | WELLS, DAVID H | WELLS, DAVID H, AUTRY, LAVINA | | | $0.00 | 108996 | 0 |
| 2 | 04/26/2005 | SWD | Statutory Warranty Deed | BRIEST, HAROLD H | WELLS, DAVID H | | | $135,000.00 | 103347 | 0 |
Payout Agreement
| No payout information available.. |