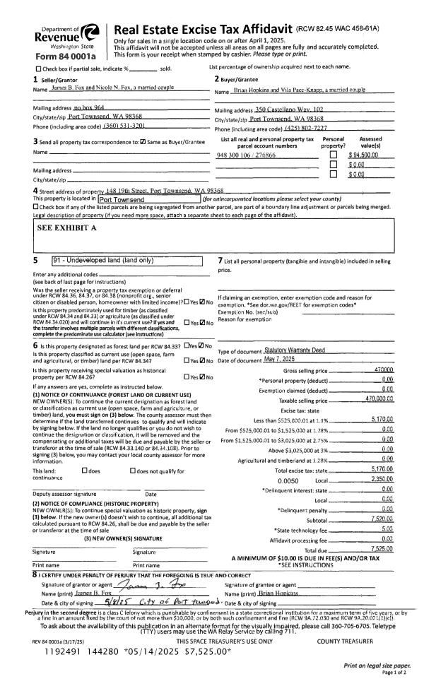
Property
Account |
| Property ID: | 32430 | Abbreviated Legal Description: | PARKVIEW ADD SHORT PLAT 1 LOT 1 SUBJ TO EASE/REST OF RECORD |
| Parcel # / Geo ID: | 964201911 | Agent Code: | |
| Type: | Real | | |
| Tax Area: | 0110 - C-50F1E1H2 | Land Use Code | 11 |
| Open Space: | N | DFL | N |
| Historic Property: | N | Remodel Property: | N |
| Multi-Family Redevelopment: | N | | |
| Township: | 30N | Section: | 4 |
| Range: | 1W |
Location |
| Address: | 427 EDDY CT PORT TOWNSEND, WA 98368 | Mapsco: | 164/025 |
| Neighborhood: | S 1/2 S4-30-1W INC HAMILTON HEIGHTS & PHOENIX | Map ID: | |
| Neighborhood CD: | 6100 |
Owner |
| Name: | ANDREW J & IVY E NELSON | Owner ID: | 105033 |
| Mailing Address: | 427 EDDY CT PORT TOWNSEND, WA 98368-5940 | % Ownership: | 100.0000000000% |
| | | Exemptions: | |
Pay Tax Due
There is currently No Amount Due on this property.
Taxes and Assessment Details
Property Tax Information as of
10/24/2025
Click on "Statement Details" to expand or collapse a tax statement.
* Please enter a valid date ** Please enter a valid date *
Statement Details |
| | TOTAL: | $0.00 | $0.00 | $0.00 | $0.00 | $0.00 | $0.00 |
|
| | $0.00 | $0.00 | $0.00 | $0.00 | $0.00 | $0.00 |
Values
| (+) Improvement Homesite Value: | + | $0 | |
| (+) Improvement Non-Homesite Value: | + | $519,317 | |
| (+) Land Homesite Value: | + | $0 | |
| (+) Land Non-Homesite Value: | + | $95,000 | |
| (+) Curr Use (HS): | + | $0 | $0 |
| (+) Curr Use (NHS): | + | $0 | $0 |
| | | -------------------------- | |
| (=) Market Value: | = | $614,317 | |
| (–) Productivity Loss: | – | $0 | |
| | | -------------------------- | |
| (=) Subtotal: | = | $614,317 | |
| (+) Senior Appraised Value: | + | $0 | |
| (+) Non-Senior Appraised Value: | + | $614,317 | |
| | | -------------------------- | |
| (=) Total Appraised Value: | = | $614,317 | |
| (–) Senior Exemption Loss: | – | $0 | |
| (–) Exemption Loss: | – | $0 | |
| | | -------------------------- | |
| (=) Taxable Value: | = | $614,317 | |
Taxing Jurisdiction
| Owner: | ANDREW J & IVY E NELSON | | |
| % Ownership: | 100.0000000000% | | |
| Total Value: | N/A | | |
| Tax Area: | 0110 - C-50F1E1H2 |
| CE | COUNTY CURRENT EXPENSE | N/A | N/A | N/A | N/A | | |
| CNTYDD | DEVELOPMENTAL DISABILITIES | N/A | N/A | N/A | N/A | | |
| CNTYVET | VETERANS RELIEF | N/A | N/A | N/A | N/A | | |
| MENTAL | MENTAL HEALTH | N/A | N/A | N/A | N/A | | |
| PTGEN | CITY OF PT GENERAL | N/A | N/A | N/A | N/A | | |
| PTLLL | CITY OF PT - LIBRARY LID LIFT | N/A | N/A | N/A | N/A | | |
| PTMVBOND | CITY OF PT MV BOND | N/A | N/A | N/A | N/A | | |
| HOSP2CASH | HOSP DIST #2 GENERAL | N/A | N/A | N/A | N/A | | |
| SCH50BOND | SCHOOL DIST #50 BOND 2016 | N/A | N/A | N/A | N/A | | |
| SCH50CP | SCHOOL DIST #50 CAP PROJ | N/A | N/A | N/A | N/A | | |
| SCH50MO | SCHOOL DIST #50 EP & O | N/A | N/A | N/A | N/A | | |
| CONSERVE | CONSERVATION FUTURES | N/A | N/A | N/A | N/A | | |
| EMS1 | FIRE DIST #1 EMS | N/A | N/A | N/A | N/A | | |
| FD1 | FIRE DIST #1 GENERAL | N/A | N/A | N/A | N/A | | |
| PORTPT | PORT OF PT GENERAL | N/A | N/A | N/A | N/A | | |
| PORTPTIDD | PORT OF PT IDD 2019 | N/A | N/A | N/A | N/A | | |
| PUD1 | PUD #1 GENERAL | N/A | N/A | N/A | N/A | | |
| STATE | STATE SCHOOL PART 1 | N/A | N/A | N/A | N/A | | |
| STATE2 | STATE SCHOOL PART 2 | N/A | N/A | N/A | N/A | | |
| | Total Tax Rate: | N/A | | | | | |
| | | | | Taxes w/Current Exemptions: | N/A | | |
| | | | | Taxes w/o Exemptions: | N/A | | |
Improvement / Building
| Improvement #1: | Residential Bldg | State Code: | 11 | 2016.0 sqft | Value: | $519,317 |
| Bathrooms (#): | 3 (FULL) | Bedrooms (#): | 3 | | Exterior Wall: | SI/ST | Fireplace: | PROPS-GOOD | | Floor Construction: | FRAME | Foundation: | CONPR | | Heating/Cooling: | HPUMP | Roof Cover: | COMP |
|
| | Type | Description | Class CD | Sub Class CD | Year Built | Area |
| | MA | Main Area | 4- | 2S | 2007 | 784.0 |
| | MA2 | Second Floor Main Area | 4- | 2S | 2007 | 1232.0 |
| | BSMTF | House basement finished | 4 | 2S | 2007 | 864.0 |
| | GBLTIN | Builtin Garage | 4 | 2S | 2007 | 352.0 |
| | HWPOR | House Wood Porch | 4 | 2S | 2007 | 80.0 |
| | HDECK | House Deck | 4 | 2S | 2007 | 536.0 |
| | HDECK | House Deck | 4 | 2S | 2007 | 32.0 |
| | CONCD | Concrete Drive | 4 | * | 2007 | 433.5 |
Sketch
Property Image
Land
| 1 | 6100-1175L | Hamilton Heights/Phoenix/Parkview | 0.0000 | 0.00 | 0.00 | 0.00 | 1.00 | $95,000 | $0 |
Roll Value History
| 2025 | N/A | N/A | N/A | N/A | N/A |
| 2024 | $497,990 | $94,500 | $0 | $592,490 | $592,490 |
| 2023 | $476,339 | $85,000 | $0 | $561,339 | $561,339 |
| 2022 | $476,338 | $80,000 | $0 | $556,338 | $556,338 |
| 2021 | $427,071 | $66,000 | $0 | $493,071 | $493,071 |
Deed and Sales History
| 1 | 06/16/2021 | SWD | Statutory Warranty Deed | THERESA J CAMPBELL | ANDREW J & IVY E NELSON | | | $550,000.00 | 137064 | |
| 2 | 03/12/2019 | QCD | Quit Claim Deed | THERESA CAMPBELL & WILLIAM KRAUSE | THERESA J CAMPBELL | | | | 131999 | |
| 3 | 09/11/2018 | SWD | Statutory Warranty Deed | ALEXANDER & ASHLEY HEILIG | THERESA CAMPBELL & WILLIAM KRAUSE | | | $379,000.00 | 130982 | |
| 4 | 09/29/2016 | SWD | Statutory Warranty Deed | JEFFREY B GOODALL | ALEXANDER & ASHLEY HEILIG | | | $362,000.00 | 126357 | |
| 5 | 10/31/2012 | BSD | Bargain and Sale Deed | FEDERAL HOME LOAN MTG COR | GOODALL, JEFFREY B | | | $198,000.00 | 118293 | 0 |
| 6 | 01/03/2012 | WD | Warranty Deed | NORTHWEST TRUSTEE SERVICE | FEDERAL HOME LOAN MORTGAGE COR | 0 | 0 | $0.00 | 117009 | 0 |
| 7 | 06/25/2007 | SWD | Statutory Warranty Deed | FLINT, C L | HANNA, ROLLIE/KRISTINA | | | $80,000.00 | 109484 | 0 |
Payout Agreement
| No payout information available.. |