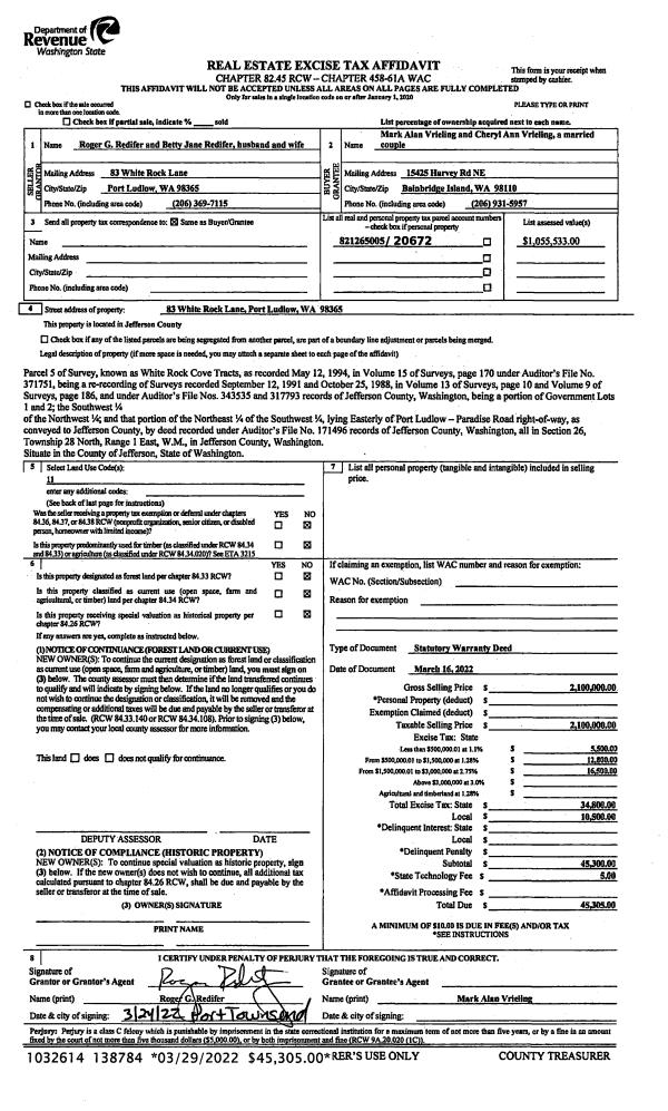
Property
Account |
| Property ID: | 32436 | Abbreviated Legal Description: | PARKVIEW ADD SHORT PLAT 1 LOT 7 SUBJ TO EASE/REST OF RECORD |
| Parcel # / Geo ID: | 964201917 | Agent Code: | |
| Type: | Real | | |
| Tax Area: | 0110 - C-50F1E1H2 | Land Use Code | 11 |
| Open Space: | N | DFL | N |
| Historic Property: | N | Remodel Property: | N |
| Multi-Family Redevelopment: | N | | |
| Township: | 30N | Section: | 4 |
| Range: | 1W |
Location |
| Address: | 410 EDDY CT PORT TOWNSEND, WA 98368 | Mapsco: | 164/031 |
| Neighborhood: | S 1/2 S4-30-1W INC HAMILTON HEIGHTS & PHOENIX | Map ID: | |
| Neighborhood CD: | 6100 |
Owner |
| Name: | FOREST GROVE PROPERTIES LLC | Owner ID: | 113430 |
| Mailing Address: | ATTN KRISTIN K AMES 61 JOSEPHINE PL SEQUIM, WA 98382-9544 | % Ownership: | 100.0000000000% |
| | | Exemptions: | |
Pay Tax Due
There is currently No Amount Due on this property.
Taxes and Assessment Details
Property Tax Information as of
10/24/2025
Click on "Statement Details" to expand or collapse a tax statement.
* Please enter a valid date ** Please enter a valid date *
Statement Details |
| | TOTAL: | $0.00 | $0.00 | $0.00 | $0.00 | $0.00 | $0.00 |
|
| | $0.00 | $0.00 | $0.00 | $0.00 | $0.00 | $0.00 |
Values
| (+) Improvement Homesite Value: | + | $0 | |
| (+) Improvement Non-Homesite Value: | + | $436,340 | |
| (+) Land Homesite Value: | + | $0 | |
| (+) Land Non-Homesite Value: | + | $95,000 | |
| (+) Curr Use (HS): | + | $0 | $0 |
| (+) Curr Use (NHS): | + | $0 | $0 |
| | | -------------------------- | |
| (=) Market Value: | = | $531,340 | |
| (–) Productivity Loss: | – | $0 | |
| | | -------------------------- | |
| (=) Subtotal: | = | $531,340 | |
| (+) Senior Appraised Value: | + | $0 | |
| (+) Non-Senior Appraised Value: | + | $531,340 | |
| | | -------------------------- | |
| (=) Total Appraised Value: | = | $531,340 | |
| (–) Senior Exemption Loss: | – | $0 | |
| (–) Exemption Loss: | – | $0 | |
| | | -------------------------- | |
| (=) Taxable Value: | = | $531,340 | |
Taxing Jurisdiction
| Owner: | FOREST GROVE PROPERTIES LLC | | |
| % Ownership: | 100.0000000000% | | |
| Total Value: | N/A | | |
| Tax Area: | 0110 - C-50F1E1H2 |
| CE | COUNTY CURRENT EXPENSE | N/A | N/A | N/A | N/A | | |
| CNTYDD | DEVELOPMENTAL DISABILITIES | N/A | N/A | N/A | N/A | | |
| CNTYVET | VETERANS RELIEF | N/A | N/A | N/A | N/A | | |
| MENTAL | MENTAL HEALTH | N/A | N/A | N/A | N/A | | |
| PTGEN | CITY OF PT GENERAL | N/A | N/A | N/A | N/A | | |
| PTLLL | CITY OF PT - LIBRARY LID LIFT | N/A | N/A | N/A | N/A | | |
| PTMVBOND | CITY OF PT MV BOND | N/A | N/A | N/A | N/A | | |
| HOSP2CASH | HOSP DIST #2 GENERAL | N/A | N/A | N/A | N/A | | |
| SCH50BOND | SCHOOL DIST #50 BOND 2016 | N/A | N/A | N/A | N/A | | |
| SCH50CP | SCHOOL DIST #50 CAP PROJ | N/A | N/A | N/A | N/A | | |
| SCH50MO | SCHOOL DIST #50 EP & O | N/A | N/A | N/A | N/A | | |
| CONSERVE | CONSERVATION FUTURES | N/A | N/A | N/A | N/A | | |
| EMS1 | FIRE DIST #1 EMS | N/A | N/A | N/A | N/A | | |
| FD1 | FIRE DIST #1 GENERAL | N/A | N/A | N/A | N/A | | |
| PORTPT | PORT OF PT GENERAL | N/A | N/A | N/A | N/A | | |
| PORTPTIDD | PORT OF PT IDD 2019 | N/A | N/A | N/A | N/A | | |
| PUD1 | PUD #1 GENERAL | N/A | N/A | N/A | N/A | | |
| STATE | STATE SCHOOL PART 1 | N/A | N/A | N/A | N/A | | |
| STATE2 | STATE SCHOOL PART 2 | N/A | N/A | N/A | N/A | | |
| | Total Tax Rate: | N/A | | | | | |
| | | | | Taxes w/Current Exemptions: | N/A | | |
| | | | | Taxes w/o Exemptions: | N/A | | |
Improvement / Building
| Improvement #1: | Residential Bldg | State Code: | 11 | 1296.0 sqft | Value: | $288,560 |
| Bathrooms (#): | 2 (FULL) | Bedrooms (#): | 1 | | Exterior Wall: | SI/ST | Floor Construction: | FRAME | | Foundation: | CONPR | Heating/Cooling: | ELBB | | Roof Cover: | COMP |   |   |
|
| | Type | Description | Class CD | Sub Class CD | Year Built | Area |
| | MA | Main Area | 4 | 15SF | 2021 | 960.0 |
| | MA2 | Second Floor Main Area | 4 | 15SF | 2021 | 336.0 |
| Improvement #2: | Residential Bldg | State Code: | 10 | 480.0 sqft | Value: | $147,780 |
| Exterior Wall: | SI/ST | Floor Construction: | FRAME | | Heating/Cooling: | ELBB | Interior Finish: | FIN | | Roof Cover: | COMP |   |   |
|
| | Type | Description | Class CD | Sub Class CD | Year Built | Area |
| | GDET | Detached Garage | 3 | * | 2022 | 480.0 |
| | MA | Main Area | 4 | 15SF | 2022 | 480.0 |
Sketch
Property Image
Land
| 1 | 6100-1175L | Hamilton Heights/Phoenix/Parkview | 0.0000 | 0.00 | 0.00 | 0.00 | 1.00 | $95,000 | $0 |
Roll Value History
| 2025 | N/A | N/A | N/A | N/A | N/A |
| 2024 | $429,894 | $94,500 | $0 | $524,394 | $524,394 |
| 2023 | $399,487 | $85,000 | $0 | $484,487 | $484,487 |
| 2022 | $311,723 | $80,000 | $0 | $391,723 | $391,723 |
| 2021 | $155,226 | $66,000 | $0 | $221,226 | $221,226 |
Deed and Sales History
| 1 | 09/18/2025 | QCD | Quit Claim Deed | KRISTIN K & BENJAMIN L AMES | FOREST GROVE PROPERTIES LLC | | | | 145017 | |
| 2 | 07/30/2025 | SWD | Statutory Warranty Deed | RICHARD & CAROLE TRACY | KRISTIN K & BENJAMIN L AMES | | | $699,000.00 | 144703 | |
| 3 | 02/26/2020 | SWD | Statutory Warranty Deed | MICHAEL J SCHERER | RICHARD & CAROLE TRACY | | | $65,000.00 | 134056 | |
| 4 | 04/05/2007 | QCD | Quit Claim Deed | SCHERER, ANNE RYAN | SCHERER, MICHAEL J | | | $0.00 | 108985 | 0 |
| 5 | 04/05/2007 | SWD | Statutory Warranty Deed | FLINT, C L | SCHERER, MICHAEL J/ANNE RYAN | | | $85,000.00 | 108956 | 0 |
Payout Agreement
| No payout information available.. |