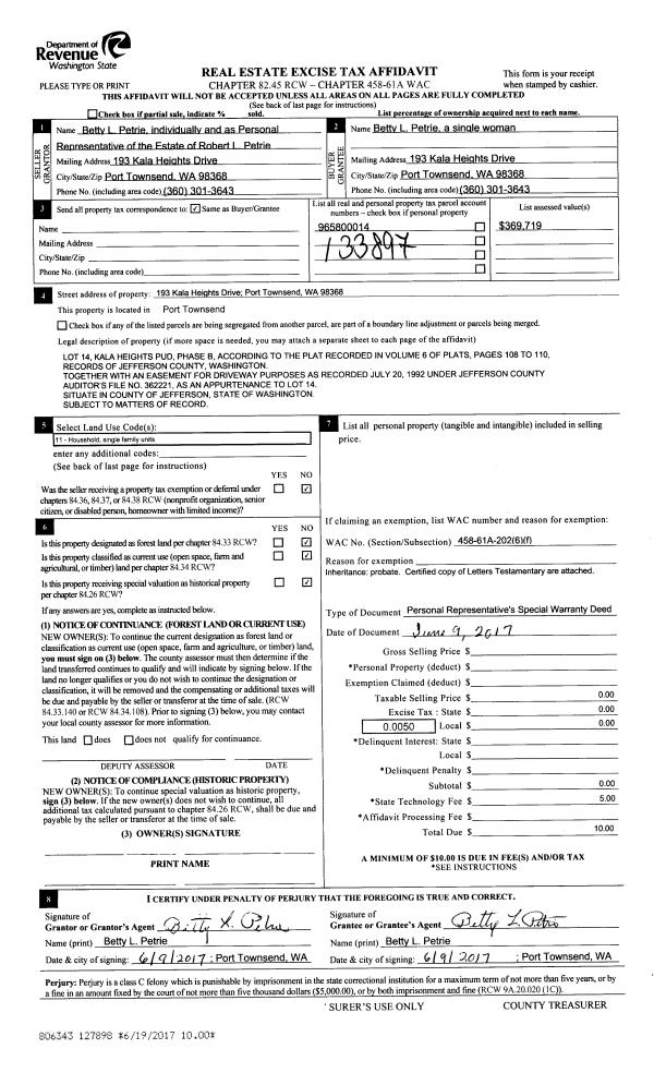
Property
Account |
| Property ID: | 32507 | Abbreviated Legal Description: | JUNCTION CITY BLK 49 LOTS 3,4,5,8,9 & 10 W/VAC ALLEY |
| Parcel # / Geo ID: | 964504903 | Agent Code: | |
| Type: | Real | | |
| Tax Area: | 0151 - 1-50F5E5H2L1 | Land Use Code | 11 |
| Open Space: | N | DFL | N |
| Historic Property: | N | Remodel Property: | N |
| Multi-Family Redevelopment: | N | | |
| Township: | 29N | Section: | 13 |
| Range: | 2W |
Location |
| Address: | 5605 OLD GARDINER RD PORT TOWNSEND, WA 98368 | Mapsco: | 037/082 |
| Neighborhood: | S 18 T29 R1W (GARDINER SIDE) & S9-16 T29 R2W & JUNCTION CITY | Map ID: | |
| Neighborhood CD: | 5430 |
Owner |
| Name: | JESSICA ELIZALDE BRODERS | Owner ID: | 106860 |
| Mailing Address: | 283 FERN RD PORT ANGELES, WA 98362-9270 | % Ownership: | 100.0000000000% |
| | | Exemptions: | |
Pay Tax Due
There is currently No Amount Due on this property.
Taxes and Assessment Details
Property Tax Information as of
10/24/2025
Click on "Statement Details" to expand or collapse a tax statement.
* Please enter a valid date ** Please enter a valid date *
Statement Details |
| | TOTAL: | $0.00 | $0.00 | $0.00 | $0.00 | $0.00 | $0.00 |
|
| | $0.00 | $0.00 | $0.00 | $0.00 | $0.00 | $0.00 |
Values
| (+) Improvement Homesite Value: | + | $0 | |
| (+) Improvement Non-Homesite Value: | + | $116,350 | |
| (+) Land Homesite Value: | + | $0 | |
| (+) Land Non-Homesite Value: | + | $215,719 | |
| (+) Curr Use (HS): | + | $0 | $0 |
| (+) Curr Use (NHS): | + | $0 | $0 |
| | | -------------------------- | |
| (=) Market Value: | = | $332,069 | |
| (–) Productivity Loss: | – | $0 | |
| | | -------------------------- | |
| (=) Subtotal: | = | $332,069 | |
| (+) Senior Appraised Value: | + | $0 | |
| (+) Non-Senior Appraised Value: | + | $332,069 | |
| | | -------------------------- | |
| (=) Total Appraised Value: | = | $332,069 | |
| (–) Senior Exemption Loss: | – | $0 | |
| (–) Exemption Loss: | – | $0 | |
| | | -------------------------- | |
| (=) Taxable Value: | = | $332,069 | |
Taxing Jurisdiction
| Owner: | JESSICA ELIZALDE BRODERS | | |
| % Ownership: | 100.0000000000% | | |
| Total Value: | N/A | | |
| Tax Area: | 0151 - 1-50F5E5H2L1 |
| CE | COUNTY CURRENT EXPENSE | N/A | N/A | N/A | N/A | | |
| CNTYDD | DEVELOPMENTAL DISABILITIES | N/A | N/A | N/A | N/A | | |
| CNTYVET | VETERANS RELIEF | N/A | N/A | N/A | N/A | | |
| MENTAL | MENTAL HEALTH | N/A | N/A | N/A | N/A | | |
| ROADS | COUNTY ROADS | N/A | N/A | N/A | N/A | | |
| ROADSCU | COUNTY ROADS TO CUR EXP | N/A | N/A | N/A | N/A | | |
| HOSP2CASH | HOSP DIST #2 GENERAL | N/A | N/A | N/A | N/A | | |
| SCH50BOND | SCHOOL DIST #50 BOND 2016 | N/A | N/A | N/A | N/A | | |
| SCH50CP | SCHOOL DIST #50 CAP PROJ | N/A | N/A | N/A | N/A | | |
| SCH50MO | SCHOOL DIST #50 EP & O | N/A | N/A | N/A | N/A | | |
| CONSERVE | CONSERVATION FUTURES | N/A | N/A | N/A | N/A | | |
| EMS5 | FIRE DIST #5 EMS | N/A | N/A | N/A | N/A | | |
| FD5 | FIRE DIST #5 GENERAL | N/A | N/A | N/A | N/A | | |
| FD5BOND | FIRE DIST #5 BOND 2016 | N/A | N/A | N/A | N/A | | |
| LIB1 | LIBRARY DIST #1 GENERAL | N/A | N/A | N/A | N/A | | |
| PORTPT | PORT OF PT GENERAL | N/A | N/A | N/A | N/A | | |
| PORTPTIDD | PORT OF PT IDD 2019 | N/A | N/A | N/A | N/A | | |
| PUD1 | PUD #1 GENERAL | N/A | N/A | N/A | N/A | | |
| STATE | STATE SCHOOL PART 1 | N/A | N/A | N/A | N/A | | |
| STATE2 | STATE SCHOOL PART 2 | N/A | N/A | N/A | N/A | | |
| | Total Tax Rate: | N/A | | | | | |
| | | | | Taxes w/Current Exemptions: | N/A | | |
| | | | | Taxes w/o Exemptions: | N/A | | |
Improvement / Building
| Improvement #1: | Manufactured Home | State Code: | 11 | 1296.0 sqft | Value: | $116,350 |
| Bathrooms (#): | 2 (FULL) | Bedrooms (#): | 2 | | Exterior Wall: | PL/T1 | Fireplace: | SIN 1-GOOD | | Foundation: | CONBL | Heating/Cooling: | F/A | | Inside Verify: | YES-FIX | Roof Cover: | COMP |
|
| | Type | Description | Class CD | Sub Class CD | Year Built | Area |
| | MA | Main Area | 3 | MDBL | 2001 | 1296.0 |
| | MDECK | MH Deck | 3 | * | 2001 | 406.0 |
| | OTHER | Other | * | * | 2001 | 0.0 |
Sketch
| No sketches available for this property. |
Property Image
Land
| 1 | 5430-1535F | High Bank Waterfront on Discovery Bay | 0.0000 | 0.00 | 0.00 | 0.00 | 0.00 | $168,850 | $0 |
| 2 | 5430-1535F | High Bank Waterfront on Discovery Bay | 0.0000 | 0.00 | 0.00 | 0.00 | 0.00 | $46,869 | $0 |
Roll Value History
| 2025 | N/A | N/A | N/A | N/A | N/A |
| 2024 | $105,773 | $196,108 | $0 | $301,881 | $301,881 |
| 2023 | $104,743 | $191,108 | $0 | $295,851 | $295,851 |
| 2022 | $104,743 | $186,108 | $0 | $290,851 | $290,851 |
| 2021 | $79,351 | $178,112 | $0 | $257,463 | $257,463 |
Deed and Sales History
| 1 | 04/11/2022 | PRD | Personal Representatives Deed | ANDREW J BRODERS | JESSICA ELIZALDE BRODERS | | | | 138874 | |
| 2 | 03/29/2018 | PRD | Personal Representatives Deed | GEORGEANNA BRODERS | ANDREW J BRODERS | | | | 129865 | |
| 3 | 08/09/2018 | PRD | Personal Representatives Deed | | | | | | 130782 | |
| 4 | 03/05/2013 | QCD | Quit Claim Deed | RAMON F BRODERS | GEORGEANNA BRODERS | | | | 118875 | |
| 5 | 11/07/2000 | QCD | Quit Claim Deed | BRODERS, RICHARD A | BRODERS, RAMON F | 0 | 0 | $0.00 | 91007 | 0 |
Payout Agreement
| No payout information available.. |