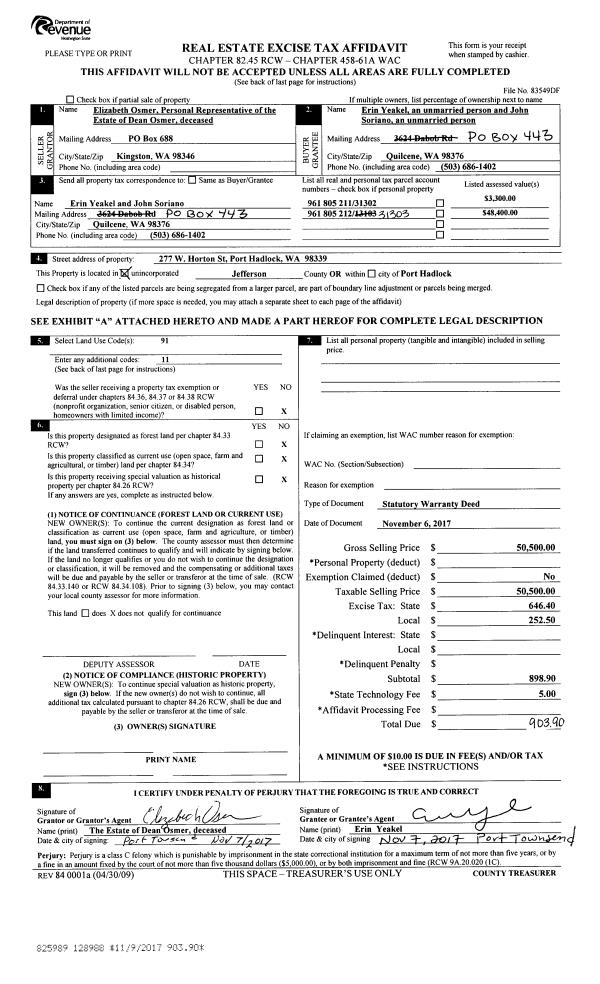
Property
Account |
| Property ID: | 32725 | Abbreviated Legal Description: | KALA POINT #1 LOT 58 SUBJ/BRDY LIND ADJ 6/86 |
| Parcel # / Geo ID: | 964700058 | Agent Code: | |
| Type: | Real | | |
| Tax Area: | 0111 - 1-50F1E1H2L1 | Land Use Code | 11 |
| Open Space: | N | DFL | N |
| Historic Property: | N | Remodel Property: | N |
| Multi-Family Redevelopment: | N | | |
| Township: | 30N | Section: | 27 |
| Range: | 1W |
Location |
| Address: | 301 WINDSHIP DR PORT TOWNSEND, WA 98368 | Mapsco: | 044/023 |
| Neighborhood: | KALA PT - DIV 1, 2, PART OF 3 & 4 | Map ID: | |
| Neighborhood CD: | 5390 |
Owner |
| Name: | CHARLES R HICKS III & PAMELA F HICKS | Owner ID: | 99381 |
| Mailing Address: | 301 WINDSHIP DR PORT TOWNSEND, WA 98368 | % Ownership: | 100.0000000000% |
| | | Exemptions: | |
Pay Tax Due
There is currently No Amount Due on this property.
Taxes and Assessment Details
Property Tax Information as of
10/24/2025
Click on "Statement Details" to expand or collapse a tax statement.
* Please enter a valid date ** Please enter a valid date *
Statement Details |
| | TOTAL: | $0.00 | $0.00 | $0.00 | $0.00 | $0.00 | $0.00 |
|
| | $0.00 | $0.00 | $0.00 | $0.00 | $0.00 | $0.00 |
Values
| (+) Improvement Homesite Value: | + | $0 | |
| (+) Improvement Non-Homesite Value: | + | $960,567 | |
| (+) Land Homesite Value: | + | $0 | |
| (+) Land Non-Homesite Value: | + | $241,725 | |
| (+) Curr Use (HS): | + | $0 | $0 |
| (+) Curr Use (NHS): | + | $0 | $0 |
| | | -------------------------- | |
| (=) Market Value: | = | $1,202,292 | |
| (–) Productivity Loss: | – | $0 | |
| | | -------------------------- | |
| (=) Subtotal: | = | $1,202,292 | |
| (+) Senior Appraised Value: | + | $0 | |
| (+) Non-Senior Appraised Value: | + | $1,202,292 | |
| | | -------------------------- | |
| (=) Total Appraised Value: | = | $1,202,292 | |
| (–) Senior Exemption Loss: | – | $0 | |
| (–) Exemption Loss: | – | $0 | |
| | | -------------------------- | |
| (=) Taxable Value: | = | $1,202,292 | |
Taxing Jurisdiction
| Owner: | CHARLES R HICKS III & PAMELA F HICKS | | |
| % Ownership: | 100.0000000000% | | |
| Total Value: | N/A | | |
| Tax Area: | 0111 - 1-50F1E1H2L1 |
| CE | COUNTY CURRENT EXPENSE | N/A | N/A | N/A | N/A | | |
| CNTYDD | DEVELOPMENTAL DISABILITIES | N/A | N/A | N/A | N/A | | |
| CNTYVET | VETERANS RELIEF | N/A | N/A | N/A | N/A | | |
| MENTAL | MENTAL HEALTH | N/A | N/A | N/A | N/A | | |
| ROADS | COUNTY ROADS | N/A | N/A | N/A | N/A | | |
| ROADSCU | COUNTY ROADS TO CUR EXP | N/A | N/A | N/A | N/A | | |
| HOSP2CASH | HOSP DIST #2 GENERAL | N/A | N/A | N/A | N/A | | |
| SCH50BOND | SCHOOL DIST #50 BOND 2016 | N/A | N/A | N/A | N/A | | |
| SCH50CP | SCHOOL DIST #50 CAP PROJ | N/A | N/A | N/A | N/A | | |
| SCH50MO | SCHOOL DIST #50 EP & O | N/A | N/A | N/A | N/A | | |
| CONSERVE | CONSERVATION FUTURES | N/A | N/A | N/A | N/A | | |
| EMS1 | FIRE DIST #1 EMS | N/A | N/A | N/A | N/A | | |
| FD1 | FIRE DIST #1 GENERAL | N/A | N/A | N/A | N/A | | |
| LIB1 | LIBRARY DIST #1 GENERAL | N/A | N/A | N/A | N/A | | |
| PORTPT | PORT OF PT GENERAL | N/A | N/A | N/A | N/A | | |
| PORTPTIDD | PORT OF PT IDD 2019 | N/A | N/A | N/A | N/A | | |
| PUD1 | PUD #1 GENERAL | N/A | N/A | N/A | N/A | | |
| STATE | STATE SCHOOL PART 1 | N/A | N/A | N/A | N/A | | |
| STATE2 | STATE SCHOOL PART 2 | N/A | N/A | N/A | N/A | | |
| | Total Tax Rate: | N/A | | | | | |
| | | | | Taxes w/Current Exemptions: | N/A | | |
| | | | | Taxes w/o Exemptions: | N/A | | |
Improvement / Building
| Improvement #1: | Residential Bldg | State Code: | 11 | 1984.0 sqft | Value: | $960,567 |
| Bathrooms (#): | 3 (FULL) | Bathrooms (#): | 1 (HALF) | | Bedrooms (#): | 3 | Exterior Wall: | SI/ST | | Fireplace: | DBL 2-GOOD | Fireplace: | WD ST-GOOD | | Floor Construction: | FRAME | Foundation: | CONPR | | Heating/Cooling: | HPUMP | Inside Verify: | YES-FIX | | Inside Verify: | NO | Roof Cover: | COMP |
|
| | Type | Description | Class CD | Sub Class CD | Year Built | Area |
| | MA | Main Area | 5+ | 1S | 1986 | 1766.0 |
| | MA2 | Second Floor Main Area | 5+ | 1S | 1986 | 218.0 |
| | PATIO | House Patio | 5 | 1S | 1986 | 185.0 |
| | HCPOR | House Concrete Porch | 5 | 1S | 1986 | 78.0 |
| | HDECK | House Deck | 5 | 1S | 1986 | 500.0 |
| | GDET | Detached Garage | 5 | 1S | 1986 | 847.0 |
| | BSMTF | House basement finished | 5 | 1S | 1986 | 1588.0 |
| | HRPO | House Roof Patio | 5 | 1S | 1986 | 265.0 |
Sketch
Property Image
Land
| 1 | 5390-1145L | Area of Good PT Bay and/or Cascades Views | 0.0000 | 0.00 | 0.00 | 0.00 | 1.00 | $241,725 | $0 |
Roll Value History
| 2025 | N/A | N/A | N/A | N/A | N/A |
| 2024 | $902,767 | $241,725 | $0 | $1,144,492 | $1,144,492 |
| 2023 | $867,774 | $236,250 | $0 | $1,104,024 | $1,104,024 |
| 2022 | $828,329 | $220,000 | $0 | $1,048,329 | $1,048,329 |
| 2021 | $602,421 | $195,250 | $0 | $797,671 | $797,671 |
Deed and Sales History
| 1 | 06/11/2018 | SWD | Statutory Warranty Deed | | | | | | 130955 | |
| 2 | 06/11/2018 | SWD | Statutory Warranty Deed | LEONARD G FRIEDEL | CHARLES R HICKS III & PAMELA F HICKS | | | $750,000.00 | 130362 | |
| 3 | 04/01/2002 | SWD | Statutory Warranty Deed | JOHN D MARIONI | LEONARD G/KATHARINE W FRIEDEL | 0 | 0 | $435,000.00 | 94429 | 0 |
Payout Agreement
| No payout information available.. |