Property
Account |
| Property ID: | 32778 | Abbreviated Legal Description: | KALA POINT CONDO #1 UNIT 1030 BLDG #3 |
| Parcel # / Geo ID: | 964900018 | Agent Code: | |
| Type: | Real | | |
| Tax Area: | 0111 - 1-50F1E1H2L1 | Land Use Code | 14 |
| Open Space: | N | DFL | N |
| Historic Property: | N | Remodel Property: | N |
| Multi-Family Redevelopment: | N | | |
| Township: | 30N | Section: | 26 |
| Range: | 1W |
Location |
| Address: | 261 SAILVIEW DR 10 PORT TOWNSEND, WA 98368 | Mapsco: | 042/018 |
| Neighborhood: | CYCLE 5 CONDOMINIUMS - SD50 OUTSIDE CITY | Map ID: | |
| Neighborhood CD: | 5900 |
Owner |
| Name: | TAI SHERIDAN LIVING TRUST | Owner ID: | 99042 |
| Mailing Address: | TAI SHERIDAN TRUSTEE 1240 W SIMS WAY PMB 113 PORT TOWNSEND, WA 98368-3058 | % Ownership: | 100.0000000000% |
| | | Exemptions: | |
Pay Tax Due
There is currently No Amount Due on this property.
Taxes and Assessment Details
Property Tax Information as of
10/24/2025
Click on "Statement Details" to expand or collapse a tax statement.
* Please enter a valid date ** Please enter a valid date *
Statement Details |
| | TOTAL: | $0.00 | $0.00 | $0.00 | $0.00 | $0.00 | $0.00 |
|
| | $0.00 | $0.00 | $0.00 | $0.00 | $0.00 | $0.00 |
Values
| (+) Improvement Homesite Value: | + | $0 | |
| (+) Improvement Non-Homesite Value: | + | $413,750 | |
| (+) Land Homesite Value: | + | $0 | |
| (+) Land Non-Homesite Value: | + | $125,000 | |
| (+) Curr Use (HS): | + | $0 | $0 |
| (+) Curr Use (NHS): | + | $0 | $0 |
| | | -------------------------- | |
| (=) Market Value: | = | $538,750 | |
| (–) Productivity Loss: | – | $0 | |
| | | -------------------------- | |
| (=) Subtotal: | = | $538,750 | |
| (+) Senior Appraised Value: | + | $0 | |
| (+) Non-Senior Appraised Value: | + | $538,750 | |
| | | -------------------------- | |
| (=) Total Appraised Value: | = | $538,750 | |
| (–) Senior Exemption Loss: | – | $0 | |
| (–) Exemption Loss: | – | $0 | |
| | | -------------------------- | |
| (=) Taxable Value: | = | $538,750 | |
Taxing Jurisdiction
| Owner: | TAI SHERIDAN LIVING TRUST | | |
| % Ownership: | 100.0000000000% | | |
| Total Value: | N/A | | |
| Tax Area: | 0111 - 1-50F1E1H2L1 |
| CE | COUNTY CURRENT EXPENSE | N/A | N/A | N/A | N/A | | |
| CNTYDD | DEVELOPMENTAL DISABILITIES | N/A | N/A | N/A | N/A | | |
| CNTYVET | VETERANS RELIEF | N/A | N/A | N/A | N/A | | |
| MENTAL | MENTAL HEALTH | N/A | N/A | N/A | N/A | | |
| ROADS | COUNTY ROADS | N/A | N/A | N/A | N/A | | |
| ROADSCU | COUNTY ROADS TO CUR EXP | N/A | N/A | N/A | N/A | | |
| HOSP2CASH | HOSP DIST #2 GENERAL | N/A | N/A | N/A | N/A | | |
| SCH50BOND | SCHOOL DIST #50 BOND 2016 | N/A | N/A | N/A | N/A | | |
| SCH50CP | SCHOOL DIST #50 CAP PROJ | N/A | N/A | N/A | N/A | | |
| SCH50MO | SCHOOL DIST #50 EP & O | N/A | N/A | N/A | N/A | | |
| CONSERVE | CONSERVATION FUTURES | N/A | N/A | N/A | N/A | | |
| EMS1 | FIRE DIST #1 EMS | N/A | N/A | N/A | N/A | | |
| FD1 | FIRE DIST #1 GENERAL | N/A | N/A | N/A | N/A | | |
| LIB1 | LIBRARY DIST #1 GENERAL | N/A | N/A | N/A | N/A | | |
| PORTPT | PORT OF PT GENERAL | N/A | N/A | N/A | N/A | | |
| PORTPTIDD | PORT OF PT IDD 2019 | N/A | N/A | N/A | N/A | | |
| PUD1 | PUD #1 GENERAL | N/A | N/A | N/A | N/A | | |
| STATE | STATE SCHOOL PART 1 | N/A | N/A | N/A | N/A | | |
| STATE2 | STATE SCHOOL PART 2 | N/A | N/A | N/A | N/A | | |
| | Total Tax Rate: | N/A | | | | | |
| | | | | Taxes w/Current Exemptions: | N/A | | |
| | | | | Taxes w/o Exemptions: | N/A | | |
Improvement / Building
| Improvement #1: | Residential Bldg | State Code: | 14 | 1655.0 sqft | Value: | $413,750 |
Sketch
| No sketches available for this property. |
Property Image
Land
| 1 | 9649-4165S | Kala Point Condos Fair Views | 0.0000 | 0.00 | 0.00 | 0.00 | 1.00 | $125,000 | $0 |
Roll Value History
| 2025 | N/A | N/A | N/A | N/A | N/A |
| 2024 | $413,750 | $125,000 | $0 | $538,750 | $538,750 |
| 2023 | $399,683 | $115,000 | $0 | $514,683 | $514,683 |
| 2022 | $367,410 | $115,000 | $0 | $482,410 | $482,410 |
| 2021 | $290,453 | $94,500 | $0 | $384,953 | $384,953 |
Deed and Sales History
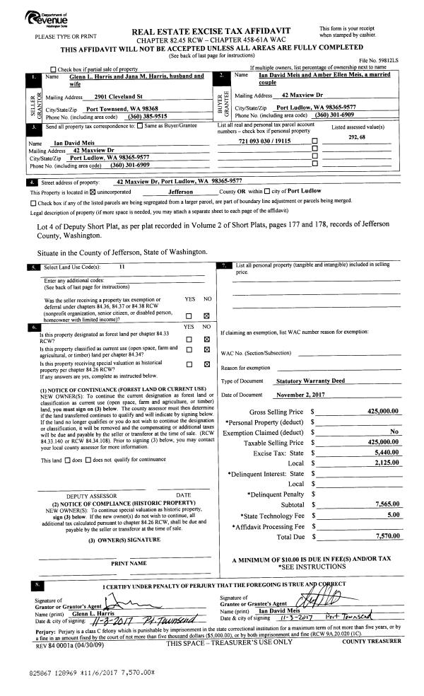
| 1 | 04/06/2018 | QCD | Quit Claim Deed | TAI SHERIDAN | TAI SHERIDAN LIVING TRUST | | | | 130004 | |
| 2 | 09/08/2017 | SWD | Statutory Warranty Deed | JON C THOMAS | TAI SHERIDAN | | | $304,000.00 | 128551 | |
| 3 | 07/09/2003 | SWD | Statutory Warranty Deed | JAFFE, STANLEY/TRUST | THOMAS, JON C/ERICKSON, JAN E | 0 | 0 | $193,000.00 | 97743 | 0 |
| 4 | 09/26/1995 | SWD | Statutory Warranty Deed | JAFFE, STANLEY & FRANCES | JAFFE, STANLEY | 0 | 0 | $0.00 | 77955 | 0 |
| 5 | 09/26/1995 | SWD | Statutory Warranty Deed | JAFFE, STANLEY | STANLEY JAFFE RESIDENCE TRUST | 0 | 0 | $0.00 | 77956 | 0 |
Payout Agreement
| No payout information available.. |