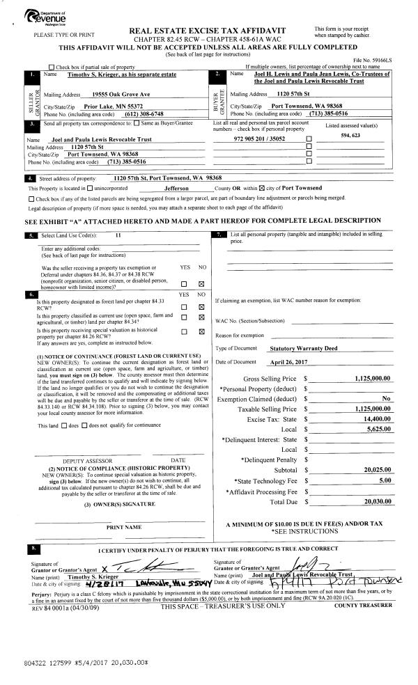
Property
Account |
| Property ID: | 32802 | Abbreviated Legal Description: | KALA POINT #3 LOT 128 SUBJ TO EASE |
| Parcel # / Geo ID: | 965000004 | Agent Code: | |
| Type: | Real | | |
| Tax Area: | 0111 - 1-50F1E1H2L1 | Land Use Code | 11 |
| Open Space: | N | DFL | N |
| Historic Property: | N | Remodel Property: | N |
| Multi-Family Redevelopment: | N | | |
| Township: | 30N | Section: | 27 |
| Range: | 1W |
Location |
| Address: | 691 KALA POINT DR PORT TOWNSEND, WA 98368 | Mapsco: | 045/004 |
| Neighborhood: | KALA PT - DIV 1, 2, PART OF 3 & 4 | Map ID: | |
| Neighborhood CD: | 5390 |
Owner |
| Name: | JOHN H GARTHWAITE | Owner ID: | 16313 |
| Mailing Address: | SUSAN E GARTHWAITE 691 KALA POINT DR PORT TOWNSEND, WA 98368-9531 | % Ownership: | 100.0000000000% |
| | | Exemptions: | |
Pay Tax Due
There is currently No Amount Due on this property.
Taxes and Assessment Details
Property Tax Information as of
10/24/2025
Click on "Statement Details" to expand or collapse a tax statement.
* Please enter a valid date ** Please enter a valid date *
Statement Details |
| | TOTAL: | $0.00 | $0.00 | $0.00 | $0.00 | $0.00 | $0.00 |
|
| | $0.00 | $0.00 | $0.00 | $0.00 | $0.00 | $0.00 |
Values
| (+) Improvement Homesite Value: | + | $0 | |
| (+) Improvement Non-Homesite Value: | + | $617,325 | |
| (+) Land Homesite Value: | + | $0 | |
| (+) Land Non-Homesite Value: | + | $106,150 | |
| (+) Curr Use (HS): | + | $0 | $0 |
| (+) Curr Use (NHS): | + | $0 | $0 |
| | | -------------------------- | |
| (=) Market Value: | = | $723,475 | |
| (–) Productivity Loss: | – | $0 | |
| | | -------------------------- | |
| (=) Subtotal: | = | $723,475 | |
| (+) Senior Appraised Value: | + | $0 | |
| (+) Non-Senior Appraised Value: | + | $723,475 | |
| | | -------------------------- | |
| (=) Total Appraised Value: | = | $723,475 | |
| (–) Senior Exemption Loss: | – | $0 | |
| (–) Exemption Loss: | – | $0 | |
| | | -------------------------- | |
| (=) Taxable Value: | = | $723,475 | |
Taxing Jurisdiction
| Owner: | JOHN H GARTHWAITE | | |
| % Ownership: | 100.0000000000% | | |
| Total Value: | N/A | | |
| Tax Area: | 0111 - 1-50F1E1H2L1 |
| CE | COUNTY CURRENT EXPENSE | N/A | N/A | N/A | N/A | | |
| CNTYDD | DEVELOPMENTAL DISABILITIES | N/A | N/A | N/A | N/A | | |
| CNTYVET | VETERANS RELIEF | N/A | N/A | N/A | N/A | | |
| MENTAL | MENTAL HEALTH | N/A | N/A | N/A | N/A | | |
| ROADS | COUNTY ROADS | N/A | N/A | N/A | N/A | | |
| ROADSCU | COUNTY ROADS TO CUR EXP | N/A | N/A | N/A | N/A | | |
| HOSP2CASH | HOSP DIST #2 GENERAL | N/A | N/A | N/A | N/A | | |
| SCH50BOND | SCHOOL DIST #50 BOND 2016 | N/A | N/A | N/A | N/A | | |
| SCH50CP | SCHOOL DIST #50 CAP PROJ | N/A | N/A | N/A | N/A | | |
| SCH50MO | SCHOOL DIST #50 EP & O | N/A | N/A | N/A | N/A | | |
| CONSERVE | CONSERVATION FUTURES | N/A | N/A | N/A | N/A | | |
| EMS1 | FIRE DIST #1 EMS | N/A | N/A | N/A | N/A | | |
| FD1 | FIRE DIST #1 GENERAL | N/A | N/A | N/A | N/A | | |
| LIB1 | LIBRARY DIST #1 GENERAL | N/A | N/A | N/A | N/A | | |
| PORTPT | PORT OF PT GENERAL | N/A | N/A | N/A | N/A | | |
| PORTPTIDD | PORT OF PT IDD 2019 | N/A | N/A | N/A | N/A | | |
| PUD1 | PUD #1 GENERAL | N/A | N/A | N/A | N/A | | |
| STATE | STATE SCHOOL PART 1 | N/A | N/A | N/A | N/A | | |
| STATE2 | STATE SCHOOL PART 2 | N/A | N/A | N/A | N/A | | |
| | Total Tax Rate: | N/A | | | | | |
| | | | | Taxes w/Current Exemptions: | N/A | | |
| | | | | Taxes w/o Exemptions: | N/A | | |
Improvement / Building
| Improvement #1: | Residential Bldg | State Code: | 11 | 3296.0 sqft | Value: | $617,325 |
| Bathrooms (#): | 2 (FULL) | Bathrooms (#): | 1 (HALF) | | Bedrooms (#): | 3 | Exterior Wall: | SI/ST | | Fireplace: | SIN 1-AVG | Floor Construction: | FRAME | | Foundation: | CONPR | Heating/Cooling: | HPUMP | | Roof Cover: | SHAKE |   |   |
|
| | Type | Description | Class CD | Sub Class CD | Year Built | Area |
| | MA | Main Area | 4+ | 2S | 1979 | 1266.0 |
| | MA2 | Second Floor Main Area | 4+ | 2S | 1979 | 2030.0 |
| | HBAL | House Balcony | 4 | 2S | 1979 | 360.0 |
| | HDECK | House Deck | 4 | 2S | 1979 | 800.0 |
| | GDET | Detached Garage | 4 | 2S | 1979 | 1344.0 |
| | CONCD | Concrete Drive | 4 | 2S | 1979 | 770.0 |
Sketch
Property Image
Land
| 1 | 5390-1175L | Area of Terr/No View Lots - Kala Point | 0.0000 | 0.00 | 0.00 | 0.00 | 1.00 | $106,150 | $0 |
Roll Value History
| 2025 | N/A | N/A | N/A | N/A | N/A |
| 2024 | $617,325 | $106,150 | $0 | $723,475 | $723,475 |
| 2023 | $584,439 | $93,450 | $0 | $677,889 | $677,889 |
| 2022 | $557,873 | $76,000 | $0 | $633,873 | $633,873 |
| 2021 | $405,725 | $64,900 | $0 | $470,625 | $470,625 |
Deed and Sales History
| 1 | 04/02/2002 | SWD | Statutory Warranty Deed | SHANK, CLIFFORD E/LINDA A | GARTHWAITE, JOHN H/SUSAN | 0 | 0 | $285,000.00 | 94348 | 0 |
| 2 | 07/19/1996 | QCD | Quit Claim Deed | SHANK, CLIFFORD E | SHANK, CLIFFORD E/LINDA A | 0 | 0 | $0.00 | 79978 | 0 |
| 3 | 01/19/1994 | WD | Warranty Deed | SHANK, LILLIAN A/EST | SHANK, CLIFFORD E | 0 | 0 | $0.00 | 73206 | 0 |
Payout Agreement
| No payout information available.. |