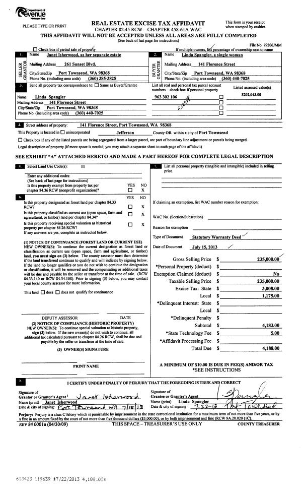
Property
Account |
| Property ID: | 32846 | Abbreviated Legal Description: | KALA POINT #3 LOT 443/441(TX 23),CONTIG BY BLA |
| Parcel # / Geo ID: | 965000053 | Agent Code: | |
| Type: | Real | | |
| Tax Area: | 0111 - 1-50F1E1H2L1 | Land Use Code | 11 |
| Open Space: | N | DFL | N |
| Historic Property: | N | Remodel Property: | N |
| Multi-Family Redevelopment: | N | | |
| Township: | 30N | Section: | 27 |
| Range: | 1W |
Location |
| Address: | 211 BAYCLIFF DR PORT TOWNSEND, WA 98368 | Mapsco: | 045/053 |
| Neighborhood: | KALA PT - DIV 3(PART) & DIV 5 - 10, THE HEIGHTS | Map ID: | |
| Neighborhood CD: | 5391 |
Owner |
| Name: | JOSEPH & TIFFANY R SUTTA | Owner ID: | 112532 |
| Mailing Address: | 211 BAYCLIFF DR PORT TOWNSEND, WA 98368-9589 | % Ownership: | 100.0000000000% |
| | | Exemptions: | |
Pay Tax Due
There is currently No Amount Due on this property.
Taxes and Assessment Details
Property Tax Information as of
10/24/2025
Click on "Statement Details" to expand or collapse a tax statement.
* Please enter a valid date ** Please enter a valid date *
Statement Details |
| | TOTAL: | $0.00 | $0.00 | $0.00 | $0.00 | $0.00 | $0.00 |
|
| | $0.00 | $0.00 | $0.00 | $0.00 | $0.00 | $0.00 |
Values
| (+) Improvement Homesite Value: | + | $0 | |
| (+) Improvement Non-Homesite Value: | + | $655,459 | |
| (+) Land Homesite Value: | + | $0 | |
| (+) Land Non-Homesite Value: | + | $156,200 | |
| (+) Curr Use (HS): | + | $0 | $0 |
| (+) Curr Use (NHS): | + | $0 | $0 |
| | | -------------------------- | |
| (=) Market Value: | = | $811,659 | |
| (–) Productivity Loss: | – | $0 | |
| | | -------------------------- | |
| (=) Subtotal: | = | $811,659 | |
| (+) Senior Appraised Value: | + | $0 | |
| (+) Non-Senior Appraised Value: | + | $811,659 | |
| | | -------------------------- | |
| (=) Total Appraised Value: | = | $811,659 | |
| (–) Senior Exemption Loss: | – | $0 | |
| (–) Exemption Loss: | – | $0 | |
| | | -------------------------- | |
| (=) Taxable Value: | = | $811,659 | |
Taxing Jurisdiction
| Owner: | JOSEPH & TIFFANY R SUTTA | | |
| % Ownership: | 100.0000000000% | | |
| Total Value: | N/A | | |
| Tax Area: | 0111 - 1-50F1E1H2L1 |
| CE | COUNTY CURRENT EXPENSE | N/A | N/A | N/A | N/A | | |
| CNTYDD | DEVELOPMENTAL DISABILITIES | N/A | N/A | N/A | N/A | | |
| CNTYVET | VETERANS RELIEF | N/A | N/A | N/A | N/A | | |
| MENTAL | MENTAL HEALTH | N/A | N/A | N/A | N/A | | |
| ROADS | COUNTY ROADS | N/A | N/A | N/A | N/A | | |
| ROADSCU | COUNTY ROADS TO CUR EXP | N/A | N/A | N/A | N/A | | |
| HOSP2CASH | HOSP DIST #2 GENERAL | N/A | N/A | N/A | N/A | | |
| SCH50BOND | SCHOOL DIST #50 BOND 2016 | N/A | N/A | N/A | N/A | | |
| SCH50CP | SCHOOL DIST #50 CAP PROJ | N/A | N/A | N/A | N/A | | |
| SCH50MO | SCHOOL DIST #50 EP & O | N/A | N/A | N/A | N/A | | |
| CONSERVE | CONSERVATION FUTURES | N/A | N/A | N/A | N/A | | |
| EMS1 | FIRE DIST #1 EMS | N/A | N/A | N/A | N/A | | |
| FD1 | FIRE DIST #1 GENERAL | N/A | N/A | N/A | N/A | | |
| LIB1 | LIBRARY DIST #1 GENERAL | N/A | N/A | N/A | N/A | | |
| PORTPT | PORT OF PT GENERAL | N/A | N/A | N/A | N/A | | |
| PORTPTIDD | PORT OF PT IDD 2019 | N/A | N/A | N/A | N/A | | |
| PUD1 | PUD #1 GENERAL | N/A | N/A | N/A | N/A | | |
| STATE | STATE SCHOOL PART 1 | N/A | N/A | N/A | N/A | | |
| STATE2 | STATE SCHOOL PART 2 | N/A | N/A | N/A | N/A | | |
| | Total Tax Rate: | N/A | | | | | |
| | | | | Taxes w/Current Exemptions: | N/A | | |
| | | | | Taxes w/o Exemptions: | N/A | | |
Improvement / Building
| Improvement #1: | Residential Bldg | State Code: | 11 | 3102.0 sqft | Value: | $655,459 |
| Bathrooms (#): | 2 (FULL) | Bathrooms (#): | 1 (HALF) | | Bedrooms (#): | 3 | Exterior Wall: | SI/ST | | Fireplace: | WD ST-GOOD | Floor Construction: | FRAME | | Foundation: | CONPR | Heating/Cooling: | HPUMP | | Inside Verify: | YES-FIX | Roof Cover: | SHAKE |
|
| | Type | Description | Class CD | Sub Class CD | Year Built | Area |
| | MA | Main Area | 4+ | 2S | 1990 | 1439.0 |
| | MA2 | Second Floor Main Area | 4+ | 2S | 1990 | 1663.0 |
| | HWPOR | House Wood Porch | 4 | 2S | 1990 | 204.0 |
| | HBAL | House Balcony | 4 | 2S | 1990 | 120.0 |
| | HDECK | House Deck | 4 | 2S | 1990 | 388.0 |
| | GBLTIN | Builtin Garage | 4 | 2S | 1990 | 840.0 |
| | ASPHD | Asphalt Drive | 4 | 2S | 1990 | 1520.0 |
Sketch
Property Image
Land
| 1 | 5391-1165L | Area of Fair/Filtered PT Bay and/or Cascades Views | 0.0000 | 0.00 | 0.00 | 0.00 | 1.00 | $156,200 | $0 |
Roll Value History
| 2025 | N/A | N/A | N/A | N/A | N/A |
| 2024 | $655,459 | $156,200 | $0 | $811,659 | $811,659 |
| 2023 | $645,060 | $121,013 | $0 | $766,073 | $766,073 |
| 2022 | $615,739 | $110,250 | $0 | $725,989 | $725,989 |
| 2021 | $447,810 | $102,465 | $0 | $550,275 | $550,275 |
Deed and Sales History
| 1 | 04/28/2025 | SWD | Statutory Warranty Deed | WAYNE & BRANDIE MANUEL | JOSEPH & TIFFANY R SUTTA | | | $800,000.00 | 144255 | |
| 2 | 07/31/2014 | SWD | Statutory Warranty Deed | BARTLEY J HALLINAN | WAYNE & BRANDIE MANUEL | | | $385,000.00 | 121663 | |
| 3 | 06/17/2005 | SWD | Statutory Warranty Deed | MORANDI, LORENZO/EMELY D | HALLINAN, BARTLEY J/JONI M | | | $397,000.00 | 103959 | 0 |
| 4 | 09/08/2000 | SWD | Statutory Warranty Deed | CARTWRIGHT, JEAN H | MORANDI, LORENZO/EMELY D | 0 | 0 | $290,000.00 | 90550 | 0 |
Payout Agreement
| No payout information available.. |