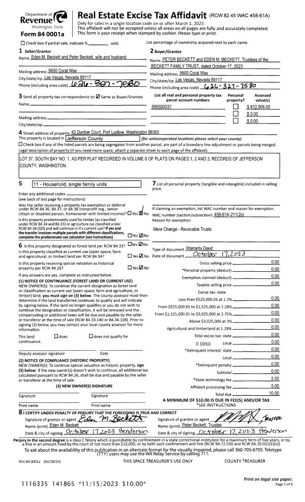
Property
Account |
| Property ID: | 32868 | Abbreviated Legal Description: | KALA POINT #4 LOT 78 |
| Parcel # / Geo ID: | 965000075 | Agent Code: | |
| Type: | Real | | |
| Tax Area: | 0111 - 1-50F1E1H2L1 | Land Use Code | 11 |
| Open Space: | N | DFL | N |
| Historic Property: | N | Remodel Property: | N |
| Multi-Family Redevelopment: | N | | |
| Township: | 30N | Section: | 27 |
| Range: | 1W |
Location |
| Address: | 44 WELLINGTON CT PORT TOWNSEND, WA 98368 | Mapsco: | 046/011 |
| Neighborhood: | KALA PT - DIV 1, 2, PART OF 3 & 4 | Map ID: | |
| Neighborhood CD: | 5390 |
Owner |
| Name: | CHARLES BALL & SUSAN M GREENE | Owner ID: | 102192 |
| Mailing Address: | 44 WELLINGTON CT PORT TOWNSEND, WA 98368-9507 | % Ownership: | 100.0000000000% |
| | | Exemptions: | |
Pay Tax Due
There is currently No Amount Due on this property.
Taxes and Assessment Details
Property Tax Information as of
10/24/2025
Click on "Statement Details" to expand or collapse a tax statement.
* Please enter a valid date ** Please enter a valid date *
Statement Details |
| | TOTAL: | $0.00 | $0.00 | $0.00 | $0.00 | $0.00 | $0.00 |
|
| | $0.00 | $0.00 | $0.00 | $0.00 | $0.00 | $0.00 |
Values
| (+) Improvement Homesite Value: | + | $0 | |
| (+) Improvement Non-Homesite Value: | + | $598,229 | |
| (+) Land Homesite Value: | + | $0 | |
| (+) Land Non-Homesite Value: | + | $116,600 | |
| (+) Curr Use (HS): | + | $0 | $0 |
| (+) Curr Use (NHS): | + | $0 | $0 |
| | | -------------------------- | |
| (=) Market Value: | = | $714,829 | |
| (–) Productivity Loss: | – | $0 | |
| | | -------------------------- | |
| (=) Subtotal: | = | $714,829 | |
| (+) Senior Appraised Value: | + | $0 | |
| (+) Non-Senior Appraised Value: | + | $714,829 | |
| | | -------------------------- | |
| (=) Total Appraised Value: | = | $714,829 | |
| (–) Senior Exemption Loss: | – | $0 | |
| (–) Exemption Loss: | – | $0 | |
| | | -------------------------- | |
| (=) Taxable Value: | = | $714,829 | |
Taxing Jurisdiction
| Owner: | CHARLES BALL & SUSAN M GREENE | | |
| % Ownership: | 100.0000000000% | | |
| Total Value: | N/A | | |
| Tax Area: | 0111 - 1-50F1E1H2L1 |
| CE | COUNTY CURRENT EXPENSE | N/A | N/A | N/A | N/A | | |
| CNTYDD | DEVELOPMENTAL DISABILITIES | N/A | N/A | N/A | N/A | | |
| CNTYVET | VETERANS RELIEF | N/A | N/A | N/A | N/A | | |
| MENTAL | MENTAL HEALTH | N/A | N/A | N/A | N/A | | |
| ROADS | COUNTY ROADS | N/A | N/A | N/A | N/A | | |
| ROADSCU | COUNTY ROADS TO CUR EXP | N/A | N/A | N/A | N/A | | |
| HOSP2CASH | HOSP DIST #2 GENERAL | N/A | N/A | N/A | N/A | | |
| SCH50BOND | SCHOOL DIST #50 BOND 2016 | N/A | N/A | N/A | N/A | | |
| SCH50CP | SCHOOL DIST #50 CAP PROJ | N/A | N/A | N/A | N/A | | |
| SCH50MO | SCHOOL DIST #50 EP & O | N/A | N/A | N/A | N/A | | |
| CONSERVE | CONSERVATION FUTURES | N/A | N/A | N/A | N/A | | |
| EMS1 | FIRE DIST #1 EMS | N/A | N/A | N/A | N/A | | |
| FD1 | FIRE DIST #1 GENERAL | N/A | N/A | N/A | N/A | | |
| LIB1 | LIBRARY DIST #1 GENERAL | N/A | N/A | N/A | N/A | | |
| PORTPT | PORT OF PT GENERAL | N/A | N/A | N/A | N/A | | |
| PORTPTIDD | PORT OF PT IDD 2019 | N/A | N/A | N/A | N/A | | |
| PUD1 | PUD #1 GENERAL | N/A | N/A | N/A | N/A | | |
| STATE | STATE SCHOOL PART 1 | N/A | N/A | N/A | N/A | | |
| STATE2 | STATE SCHOOL PART 2 | N/A | N/A | N/A | N/A | | |
| | Total Tax Rate: | N/A | | | | | |
| | | | | Taxes w/Current Exemptions: | N/A | | |
| | | | | Taxes w/o Exemptions: | N/A | | |
Improvement / Building
| Improvement #1: | Residential Bldg | State Code: | 11 | 1912.0 sqft | Value: | $598,229 |
| Bathrooms (#): | 2 (FULL) | Bedrooms (#): | 3 | | Exterior Wall: | SI/ST | Foundation: | CONPR | | Heating/Cooling: | HPUMP | Roof Cover: | COMP |
|
| | Type | Description | Class CD | Sub Class CD | Year Built | Area |
| | MA | Main Area | 5- | 1S | 2020 | 1912.0 |
| | GATT | House Attached Garage | 5 | 1S | 2020 | 724.0 |
| | HDECK | House Deck | 5 | 1S | 2020 | 248.0 |
| | CONCD | Concrete Drive | 5 | 1S | 2020 | 500.0 |
Sketch
Property Image
Land
| 1 | 5390-1165L | Area of Fair/Filtered PT Bay and/or Cascades Views | 0.0000 | 0.00 | 0.00 | 0.00 | 1.00 | $116,600 | $0 |
Roll Value History
| 2025 | N/A | N/A | N/A | N/A | N/A |
| 2024 | $598,229 | $116,600 | $0 | $714,829 | $714,829 |
| 2023 | $545,509 | $111,300 | $0 | $656,809 | $656,809 |
| 2022 | $520,713 | $92,000 | $0 | $612,713 | $612,713 |
| 2021 | $378,700 | $80,850 | $0 | $459,550 | $459,550 |
Deed and Sales History
| 1 | 01/08/2020 | SWD | Statutory Warranty Deed | JOHN M EFFMANN | CHARLES BALL & SUSAN M GREENE | | | $58,000.00 | 133794 | |
| 2 | 06/08/2007 | SWD | Statutory Warranty Deed | JONES, JERRY/JERRIE ANN | EFFMANN, JOHN/CATHY | | | $97,500.00 | 109425 | 0 |
Payout Agreement
| No payout information available.. |