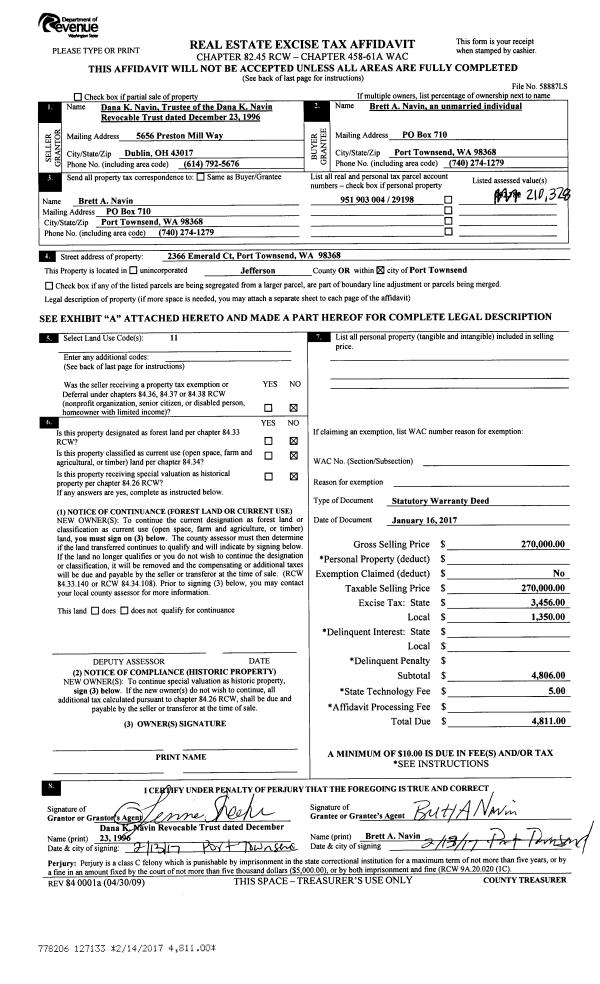
Property
Account |
| Property ID: | 32899 | Abbreviated Legal Description: | KALA POINT #4 LOT 112 |
| Parcel # / Geo ID: | 965000106 | Agent Code: | |
| Type: | Real | | |
| Tax Area: | 0111 - 1-50F1E1H2L1 | Land Use Code | 11 |
| Open Space: | N | DFL | N |
| Historic Property: | N | Remodel Property: | N |
| Multi-Family Redevelopment: | N | | |
| Township: | 30N | Section: | 27 |
| Range: | 1W |
Location |
| Address: | 245 FOXFIELD DR PORT TOWNSEND, WA 98368 | Mapsco: | 046/042 |
| Neighborhood: | KALA PT - DIV 1, 2, PART OF 3 & 4 | Map ID: | |
| Neighborhood CD: | 5390 |
Owner |
| Name: | WINN R MCENERY | Owner ID: | 107600 |
| Mailing Address: | 245 FOXFILED DR PORT TOWNSEND, WA 98368-9549 | % Ownership: | 100.0000000000% |
| | | Exemptions: | |
Pay Tax Due
There is currently No Amount Due on this property.
Taxes and Assessment Details
Property Tax Information as of
10/24/2025
Click on "Statement Details" to expand or collapse a tax statement.
* Please enter a valid date ** Please enter a valid date *
Statement Details |
| | TOTAL: | $0.00 | $0.00 | $0.00 | $0.00 | $0.00 | $0.00 |
|
| | $0.00 | $0.00 | $0.00 | $0.00 | $0.00 | $0.00 |
Values
| (+) Improvement Homesite Value: | + | $0 | |
| (+) Improvement Non-Homesite Value: | + | $448,361 | |
| (+) Land Homesite Value: | + | $0 | |
| (+) Land Non-Homesite Value: | + | $117,700 | |
| (+) Curr Use (HS): | + | $0 | $0 |
| (+) Curr Use (NHS): | + | $0 | $0 |
| | | -------------------------- | |
| (=) Market Value: | = | $566,061 | |
| (–) Productivity Loss: | – | $0 | |
| | | -------------------------- | |
| (=) Subtotal: | = | $566,061 | |
| (+) Senior Appraised Value: | + | $0 | |
| (+) Non-Senior Appraised Value: | + | $566,061 | |
| | | -------------------------- | |
| (=) Total Appraised Value: | = | $566,061 | |
| (–) Senior Exemption Loss: | – | $0 | |
| (–) Exemption Loss: | – | $0 | |
| | | -------------------------- | |
| (=) Taxable Value: | = | $566,061 | |
Taxing Jurisdiction
| Owner: | WINN R MCENERY | | |
| % Ownership: | 100.0000000000% | | |
| Total Value: | N/A | | |
| Tax Area: | 0111 - 1-50F1E1H2L1 |
| CE | COUNTY CURRENT EXPENSE | N/A | N/A | N/A | N/A | | |
| CNTYDD | DEVELOPMENTAL DISABILITIES | N/A | N/A | N/A | N/A | | |
| CNTYVET | VETERANS RELIEF | N/A | N/A | N/A | N/A | | |
| MENTAL | MENTAL HEALTH | N/A | N/A | N/A | N/A | | |
| ROADS | COUNTY ROADS | N/A | N/A | N/A | N/A | | |
| ROADSCU | COUNTY ROADS TO CUR EXP | N/A | N/A | N/A | N/A | | |
| HOSP2CASH | HOSP DIST #2 GENERAL | N/A | N/A | N/A | N/A | | |
| SCH50BOND | SCHOOL DIST #50 BOND 2016 | N/A | N/A | N/A | N/A | | |
| SCH50CP | SCHOOL DIST #50 CAP PROJ | N/A | N/A | N/A | N/A | | |
| SCH50MO | SCHOOL DIST #50 EP & O | N/A | N/A | N/A | N/A | | |
| CONSERVE | CONSERVATION FUTURES | N/A | N/A | N/A | N/A | | |
| EMS1 | FIRE DIST #1 EMS | N/A | N/A | N/A | N/A | | |
| FD1 | FIRE DIST #1 GENERAL | N/A | N/A | N/A | N/A | | |
| LIB1 | LIBRARY DIST #1 GENERAL | N/A | N/A | N/A | N/A | | |
| PORTPT | PORT OF PT GENERAL | N/A | N/A | N/A | N/A | | |
| PORTPTIDD | PORT OF PT IDD 2019 | N/A | N/A | N/A | N/A | | |
| PUD1 | PUD #1 GENERAL | N/A | N/A | N/A | N/A | | |
| STATE | STATE SCHOOL PART 1 | N/A | N/A | N/A | N/A | | |
| STATE2 | STATE SCHOOL PART 2 | N/A | N/A | N/A | N/A | | |
| | Total Tax Rate: | N/A | | | | | |
| | | | | Taxes w/Current Exemptions: | N/A | | |
| | | | | Taxes w/o Exemptions: | N/A | | |
Improvement / Building
| Improvement #1: | Residential Bldg | State Code: | 11 | 1921.0 sqft | Value: | $448,361 |
| Bathrooms (#): | 2 (FULL) | Bedrooms (#): | 3 | | Exterior Wall: | SI/ST | Fireplace: | WD ST-GOOD | | Floor Construction: | FRAME | Foundation: | CONPR | | Heating/Cooling: | HPUMP | Roof Cover: | TILE |
|
| | Type | Description | Class CD | Sub Class CD | Year Built | Area |
| | MA | Main Area | 4 | 1S | 1992 | 1921.0 |
| | PATIO | House Patio | 4 | 1S | 1992 | 200.0 |
| | HCPOR | House Concrete Porch | 4 | 1S | 1992 | 44.0 |
| | HDECK | House Deck | 4 | 1S | 1992 | 420.0 |
| | GATT | House Attached Garage | 4 | 1S | 1992 | 550.0 |
| | HWPOR | House Wood Porch | 4 | 1S | 1992 | 240.0 |
| | CONCD | Concrete Drive | 4 | 1S | 1992 | 1632.0 |
Sketch
Property Image
Land
| 1 | 5390-1175L | Area of Terr/No View Lots - Kala Point | 0.0000 | 0.00 | 0.00 | 0.00 | 1.00 | $117,700 | $0 |
Roll Value History
| 2025 | N/A | N/A | N/A | N/A | N/A |
| 2024 | $448,361 | $117,700 | $0 | $566,061 | $566,061 |
| 2023 | $422,248 | $110,250 | $0 | $532,498 | $532,498 |
| 2022 | $403,055 | $90,000 | $0 | $493,055 | $493,055 |
| 2021 | $293,131 | $77,000 | $0 | $370,131 | $370,131 |
Deed and Sales History
| 1 | 08/30/2022 | SWD | Statutory Warranty Deed | DOUGLAS TENZLER | WINN R MCENERY | | | $575,000.00 | 139747 | |
| 2 | 09/12/2002 | SWD | Statutory Warranty Deed | BETTY J MORSE | DOUGLAS J TENZLER | 0 | 0 | $220,000.00 | 95548 | 0 |
| 3 | 09/12/2002 | SWD | Statutory Warranty Deed | BETTY J MORSE | DOUGLAS J TENZLER | 0 | 0 | $0.00 | 95570 | 0 |
Payout Agreement
| No payout information available.. |