| 1 | 08/17/2022 | SWD | Statutory Warranty Deed | KEVIN & MARY GALE | DONALD J OLUND | | | $685,000.00 | 139684 | |
| 2 | 07/13/2017 | SWD | Statutory Warranty Deed | NORMAN & LEESA GALLOWAY | KEVIN & MARY GALE | | | $359,000.00 | 128230 | |
| 3 | 09/03/2013 | SWD | Statutory Warranty Deed | STEVEN A ESZENYI TRSTEE | NORMAN & LEESA GALLOWAY | | | $279,000.00 | 119938 | |
| 4 | 05/02/2008 | SPWD | Special Warranty Deed | ESZENYI, STEVEN A/BARBARA | ESZENYI, STEVEN & BARBARA/TRST | | | $0.00 | 111231 | 0 |
| 5 | 10/16/2006 | SWD | Statutory Warranty Deed | HUNT, KATHERINE A/EDWARD | ESZENYI, STEVEN A/BARBARA A | 0 | 0 | $347,000.00 | 107948 | 0 |
| 6 | 11/17/2005 | SWD | Statutory Warranty Deed | ECCLES, LORA L TRUSTEE OF | HUNT, KATHERINE/SUSAN/EDWARD | 0 | 0 | $274,500.00 | 105441 | 0 |
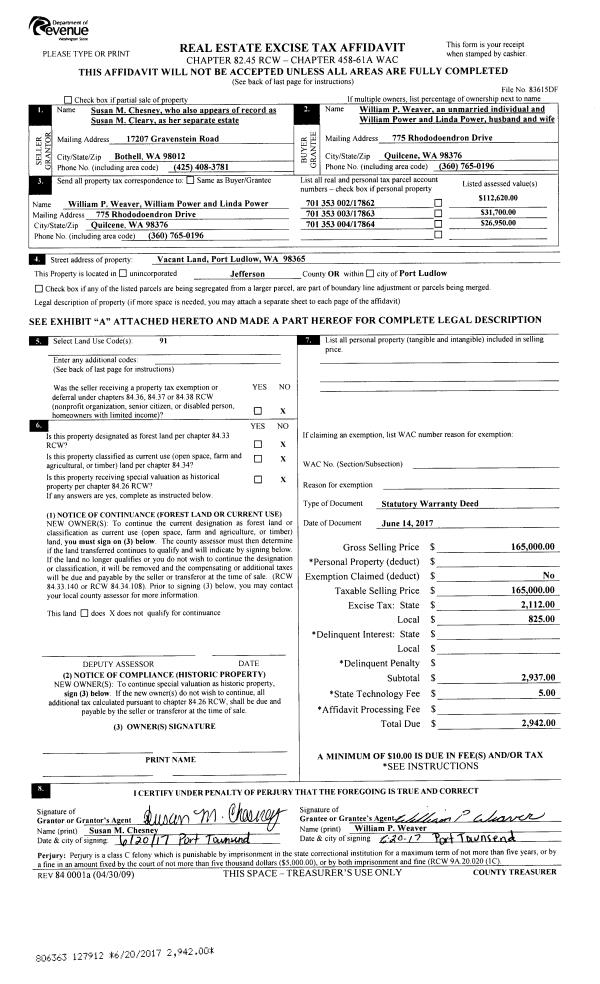
| 7 | 03/18/1997 | SWD | Statutory Warranty Deed | KELLEY, DENNIS M/ET AL | ECCLES REVOC TRUST | 0 | 0 | $165,000.00 | 81649 | 0 |
| 8 | 12/04/1996 | QCD | Quit Claim Deed | KELLEY SHIELDS INC | KELLEY, D M/SHIELDS, D A | 0 | 0 | $0.00 | 80906 | 0 |
| 9 | 04/27/1994 | SWD | Statutory Warranty Deed | HANLEY REVOCABLE TRUST | KELLEY SHIELDS INC | 0 | 0 | $24,000.00 | 74027 | 0 |
| 10 | 10/08/1993 | WD | Warranty Deed | HANLEY, WILLIAM/JR & ROSE | HANLEY, WILLIAM & ROSEMARY/TR | 0 | 0 | $0.00 | 72581 | 0 |