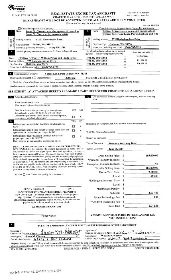
Property
Account |
| Property ID: | 33138 | Abbreviated Legal Description: | KALA POINT #10 LOT 310 |
| Parcel # / Geo ID: | 965000357 | Agent Code: | |
| Type: | Real | | |
| Tax Area: | 0111 - 1-50F1E1H2L1 | Land Use Code | 11 |
| Open Space: | N | DFL | N |
| Historic Property: | N | Remodel Property: | N |
| Multi-Family Redevelopment: | N | | |
| Township: | 30N | Section: | 27 |
| Range: | 1W |
Location |
| Address: | 1403 KALA POINT DR PORT TOWNSEND, WA 98368 | Mapsco: | 051/041 |
| Neighborhood: | KALA PT - DIV 3(PART) & DIV 5 - 10, THE HEIGHTS | Map ID: | |
| Neighborhood CD: | 5391 |
Owner |
| Name: | PATRICIA KIRKLAND & CYNTHIA ARROWOOD | Owner ID: | 100108 |
| Mailing Address: | 1403 KALA POINT DR PORT TOWNSEND, WA 98368-9574 | % Ownership: | 100.0000000000% |
| | | Exemptions: | |
Pay Tax Due
There is currently No Amount Due on this property.
Taxes and Assessment Details
Property Tax Information as of
10/24/2025
Click on "Statement Details" to expand or collapse a tax statement.
* Please enter a valid date ** Please enter a valid date *
Statement Details |
| | TOTAL: | $0.00 | $0.00 | $0.00 | $0.00 | $0.00 | $0.00 |
|
| | $0.00 | $0.00 | $0.00 | $0.00 | $0.00 | $0.00 |
Values
| (+) Improvement Homesite Value: | + | $0 | |
| (+) Improvement Non-Homesite Value: | + | $386,839 | |
| (+) Land Homesite Value: | + | $0 | |
| (+) Land Non-Homesite Value: | + | $110,000 | |
| (+) Curr Use (HS): | + | $0 | $0 |
| (+) Curr Use (NHS): | + | $0 | $0 |
| | | -------------------------- | |
| (=) Market Value: | = | $496,839 | |
| (–) Productivity Loss: | – | $0 | |
| | | -------------------------- | |
| (=) Subtotal: | = | $496,839 | |
| (+) Senior Appraised Value: | + | $0 | |
| (+) Non-Senior Appraised Value: | + | $496,839 | |
| | | -------------------------- | |
| (=) Total Appraised Value: | = | $496,839 | |
| (–) Senior Exemption Loss: | – | $0 | |
| (–) Exemption Loss: | – | $0 | |
| | | -------------------------- | |
| (=) Taxable Value: | = | $496,839 | |
Taxing Jurisdiction
| Owner: | PATRICIA KIRKLAND & CYNTHIA ARROWOOD | | |
| % Ownership: | 100.0000000000% | | |
| Total Value: | N/A | | |
| Tax Area: | 0111 - 1-50F1E1H2L1 |
| CE | COUNTY CURRENT EXPENSE | N/A | N/A | N/A | N/A | | |
| CNTYDD | DEVELOPMENTAL DISABILITIES | N/A | N/A | N/A | N/A | | |
| CNTYVET | VETERANS RELIEF | N/A | N/A | N/A | N/A | | |
| MENTAL | MENTAL HEALTH | N/A | N/A | N/A | N/A | | |
| ROADS | COUNTY ROADS | N/A | N/A | N/A | N/A | | |
| ROADSCU | COUNTY ROADS TO CUR EXP | N/A | N/A | N/A | N/A | | |
| HOSP2CASH | HOSP DIST #2 GENERAL | N/A | N/A | N/A | N/A | | |
| SCH50BOND | SCHOOL DIST #50 BOND 2016 | N/A | N/A | N/A | N/A | | |
| SCH50CP | SCHOOL DIST #50 CAP PROJ | N/A | N/A | N/A | N/A | | |
| SCH50MO | SCHOOL DIST #50 EP & O | N/A | N/A | N/A | N/A | | |
| CONSERVE | CONSERVATION FUTURES | N/A | N/A | N/A | N/A | | |
| EMS1 | FIRE DIST #1 EMS | N/A | N/A | N/A | N/A | | |
| FD1 | FIRE DIST #1 GENERAL | N/A | N/A | N/A | N/A | | |
| LIB1 | LIBRARY DIST #1 GENERAL | N/A | N/A | N/A | N/A | | |
| PORTPT | PORT OF PT GENERAL | N/A | N/A | N/A | N/A | | |
| PORTPTIDD | PORT OF PT IDD 2019 | N/A | N/A | N/A | N/A | | |
| PUD1 | PUD #1 GENERAL | N/A | N/A | N/A | N/A | | |
| STATE | STATE SCHOOL PART 1 | N/A | N/A | N/A | N/A | | |
| STATE2 | STATE SCHOOL PART 2 | N/A | N/A | N/A | N/A | | |
| | Total Tax Rate: | N/A | | | | | |
| | | | | Taxes w/Current Exemptions: | N/A | | |
| | | | | Taxes w/o Exemptions: | N/A | | |
Improvement / Building
| Improvement #1: | Residential Bldg | State Code: | 11 | 1728.0 sqft | Value: | $386,839 |
| Bathrooms (#): | 2 (FULL) | Bedrooms (#): | 3 | | Exterior Wall: | SI/ST | Floor Construction: | FRAME | | Foundation: | CONPR | Heating/Cooling: | HPUMP | | Inside Verify: | YES-FIX | Roof Cover: | SHAKE |
|
| | Type | Description | Class CD | Sub Class CD | Year Built | Area |
| | MA | Main Area | 4 | 1S | 1996 | 1728.0 |
| | HWPOR | House Wood Porch | 4 | 1S | 1996 | 128.0 |
| | GATT | House Attached Garage | 4 | 1S | 1996 | 576.0 |
| | CONCD | Concrete Drive | 4 | 1S | 1996 | 448.0 |
Sketch
Property Image
Land
| 1 | 5391-1175L | Area of No or Some Olympic Mtn View - Kala Point | 0.0000 | 0.00 | 0.00 | 0.00 | 1.00 | $110,000 | $0 |
Roll Value History
| 2025 | N/A | N/A | N/A | N/A | N/A |
| 2024 | $386,839 | $110,000 | $0 | $496,839 | $496,839 |
| 2023 | $357,774 | $99,750 | $0 | $457,524 | $457,524 |
| 2022 | $341,511 | $90,000 | $0 | $431,511 | $431,511 |
| 2021 | $248,372 | $87,400 | $0 | $335,772 | $335,772 |
Deed and Sales History
| 1 | 10/16/2018 | SWD | Statutory Warranty Deed | HARMON H ORNBAUN | PATRICIA KIRKLAND & CYNTHIA ARROWOOD | | | $338,000.00 | 131272 | |
| 2 | 09/16/2011 | SWD | Statutory Warranty Deed | BELL, FREDERICK BRENT TRU | ORNBAUN, HARMON H/CAMILA E | 0 | 0 | $200,000.00 | 116553 | 0 |
| 3 | 12/15/2005 | SWD | Statutory Warranty Deed | SIMMONS, MARIE K | BELL, RICHARD/TRUSTEE | 0 | 0 | $279,500.00 | 105667 | 0 |
| 4 | 08/26/1999 | SWD | Statutory Warranty Deed | NORTH SOUND BANK | SIMMONS, MARIE K | 0 | 0 | $136,500.00 | 87715 | 0 |
| 5 | 04/15/1997 | TRED | Trustee Deed | REGIONAL TRUSTEE SVC CORP | NORTH SOUND BANK | 0 | 0 | $0.00 | 81770 | 0 |
| 6 | 04/12/1995 | QCD | Quit Claim Deed | HOHNHOLT, REED/TONHYA | SWEET, MICHAEL/LINDA | 0 | 0 | $0.00 | 76669 | 0 |
| 7 | 11/01/1994 | SWD | Statutory Warranty Deed | SWEET, MICHAEL/LINDA | HOHNHOLT, REED B/TONHYA | 0 | 0 | $30,000.00 | 75568 | 0 |
| 8 | 09/15/1994 | SWD | Statutory Warranty Deed | WEBSTER, DON E/MARILYN A | SWEET, MICHAEL/LINDA | 0 | 0 | $25,000.00 | 75161 | 0 |
Payout Agreement
| No payout information available.. |