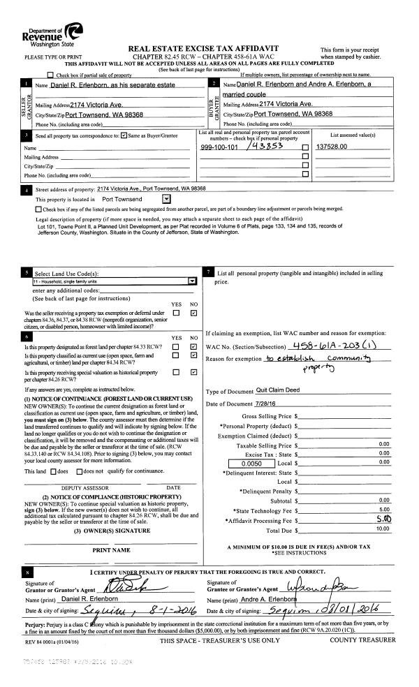
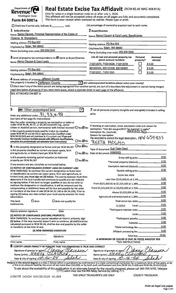
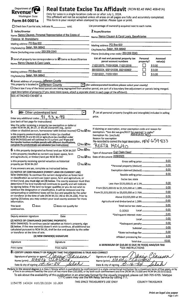
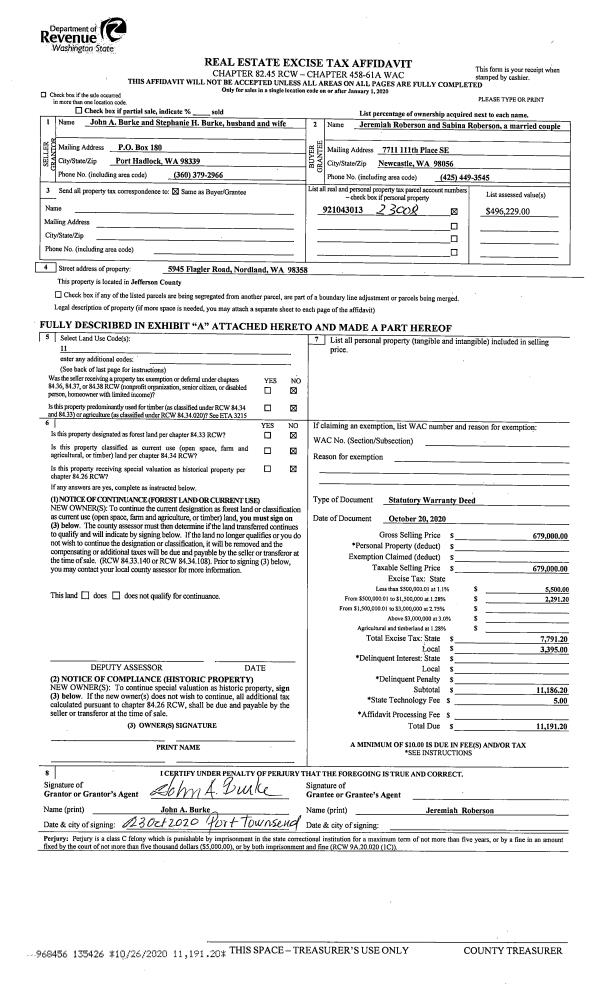
Property
Account |
| Property ID: | 33653 | Abbreviated Legal Description: | THE BLUFFS BLDG 10 UNIT 3020 |
| Parcel # / Geo ID: | 965300020 | Agent Code: | |
| Type: | Real | | |
| Tax Area: | 0111 - 1-50F1E1H2L1 | Land Use Code | 14 |
| Open Space: | N | DFL | N |
| Historic Property: | N | Remodel Property: | N |
| Multi-Family Redevelopment: | N | | |
| Township: | 30N | Section: | 26 |
| Range: | 1W |
Location |
| Address: | 101 BLUFFS DR #1 PORT TOWNSEND, WA 98368 | Mapsco: | 040/021 |
| Neighborhood: | CYCLE 5 CONDOMINIUMS - SD50 OUTSIDE CITY | Map ID: | |
| Neighborhood CD: | 5900 |
Owner |
| Name: | DAVID WITTER TRUST | Owner ID: | 112022 |
| Mailing Address: | DAVID WITTER TRUSTEE 101 BLUFFS DR #1 PORT TOWNSEND, WA 98368-9517 | % Ownership: | 100.0000000000% |
| | | Exemptions: | |
Pay Tax Due
There is currently No Amount Due on this property.
Taxes and Assessment Details
Property Tax Information as of
10/24/2025
Click on "Statement Details" to expand or collapse a tax statement.
* Please enter a valid date ** Please enter a valid date *
Statement Details |
| | TOTAL: | $0.00 | $0.00 | $0.00 | $0.00 | $0.00 | $0.00 |
|
| | $0.00 | $0.00 | $0.00 | $0.00 | $0.00 | $0.00 |
Values
| (+) Improvement Homesite Value: | + | $0 | |
| (+) Improvement Non-Homesite Value: | + | $351,151 | |
| (+) Land Homesite Value: | + | $0 | |
| (+) Land Non-Homesite Value: | + | $210,000 | |
| (+) Curr Use (HS): | + | $0 | $0 |
| (+) Curr Use (NHS): | + | $0 | $0 |
| | | -------------------------- | |
| (=) Market Value: | = | $561,151 | |
| (–) Productivity Loss: | – | $0 | |
| | | -------------------------- | |
| (=) Subtotal: | = | $561,151 | |
| (+) Senior Appraised Value: | + | $0 | |
| (+) Non-Senior Appraised Value: | + | $561,151 | |
| | | -------------------------- | |
| (=) Total Appraised Value: | = | $561,151 | |
| (–) Senior Exemption Loss: | – | $0 | |
| (–) Exemption Loss: | – | $0 | |
| | | -------------------------- | |
| (=) Taxable Value: | = | $561,151 | |
Taxing Jurisdiction
| Owner: | DAVID WITTER TRUST | | |
| % Ownership: | 100.0000000000% | | |
| Total Value: | N/A | | |
| Tax Area: | 0111 - 1-50F1E1H2L1 |
| CE | COUNTY CURRENT EXPENSE | N/A | N/A | N/A | N/A | | |
| CNTYDD | DEVELOPMENTAL DISABILITIES | N/A | N/A | N/A | N/A | | |
| CNTYVET | VETERANS RELIEF | N/A | N/A | N/A | N/A | | |
| MENTAL | MENTAL HEALTH | N/A | N/A | N/A | N/A | | |
| ROADS | COUNTY ROADS | N/A | N/A | N/A | N/A | | |
| ROADSCU | COUNTY ROADS TO CUR EXP | N/A | N/A | N/A | N/A | | |
| HOSP2CASH | HOSP DIST #2 GENERAL | N/A | N/A | N/A | N/A | | |
| SCH50BOND | SCHOOL DIST #50 BOND 2016 | N/A | N/A | N/A | N/A | | |
| SCH50CP | SCHOOL DIST #50 CAP PROJ | N/A | N/A | N/A | N/A | | |
| SCH50MO | SCHOOL DIST #50 EP & O | N/A | N/A | N/A | N/A | | |
| CONSERVE | CONSERVATION FUTURES | N/A | N/A | N/A | N/A | | |
| EMS1 | FIRE DIST #1 EMS | N/A | N/A | N/A | N/A | | |
| FD1 | FIRE DIST #1 GENERAL | N/A | N/A | N/A | N/A | | |
| LIB1 | LIBRARY DIST #1 GENERAL | N/A | N/A | N/A | N/A | | |
| PORTPT | PORT OF PT GENERAL | N/A | N/A | N/A | N/A | | |
| PORTPTIDD | PORT OF PT IDD 2019 | N/A | N/A | N/A | N/A | | |
| PUD1 | PUD #1 GENERAL | N/A | N/A | N/A | N/A | | |
| STATE | STATE SCHOOL PART 1 | N/A | N/A | N/A | N/A | | |
| STATE2 | STATE SCHOOL PART 2 | N/A | N/A | N/A | N/A | | |
| | Total Tax Rate: | N/A | | | | | |
| | | | | Taxes w/Current Exemptions: | N/A | | |
| | | | | Taxes w/o Exemptions: | N/A | | |
Improvement / Building
| Improvement #1: | Residential Bldg | State Code: | 14 | 1446.0 sqft | Value: | $351,151 |
| Bathrooms (#): | 2 (FULL) | Bedrooms (#): | 2 | | Exterior Wall: | SI/ST | Fireplace: | SIN 1-GOOD | | Floor Construction: | FRAME | Foundation: | CONPR | | Heating/Cooling: | ELBB | Inside Verify: | YES-FIX | | Roof Cover: | METAL |   |   |
|
| | Type | Description | Class CD | Sub Class CD | Year Built | Area |
| | MA | Main Area | 5 | D1S | 1982 | 1446.0 |
| | HBAL | House Balcony | 5 | * | 1982 | 36.0 |
| | HCPOR | House Concrete Porch | 5 | * | 1982 | 100.0 |
| | HDECK | House Deck | 5 | * | 1982 | 394.0 |
| | DATT | Duplex Attached Garage | 5 | D1S | 1982 | 334.0 |
| | ASPHD | Asphalt Drive | 5 | * | 1982 | 216.0 |
Sketch
| No sketches available for this property. |
Property Image
Land
| 1 | 9653-4135S | Kala Point Bluffs VG/Excel Wtr Views | 0.0000 | 0.00 | 0.00 | 0.00 | 1.00 | $210,000 | $0 |
Roll Value History
| 2025 | N/A | N/A | N/A | N/A | N/A |
| 2024 | $351,151 | $210,000 | $0 | $561,151 | $561,151 |
| 2023 | $313,514 | $210,000 | $0 | $523,514 | $523,514 |
| 2022 | $272,873 | $204,750 | $0 | $477,623 | $477,623 |
| 2021 | $232,321 | $183,750 | $0 | $416,071 | $416,071 |
Deed and Sales History
| 1 | 01/17/2025 | WD | Warranty Deed | DAVID WITTER | DAVID WITTER TRUST | | | | 143768 | |
| 2 | 01/17/2025 | WD | Warranty Deed | | | | | | 0 | **VOID** |
| 3 | 11/15/2024 | TRED | Trustee Deed | PHELPS WITTER JR TRUST | DAVID WITTER | | | | 143523 | |
| 4 | 10/30/2024 | PRD | Personal Representatives Deed | SHARON B WITTER | PHELPS WITTER JR TRUST | | | | 143524 | |
| 5 | 05/03/2021 | PRD | Personal Representatives Deed | ESTATE OF PHELPS WITTER JR | SHARON B WITTER | | | | 136683 | |
| 6 | 03/12/1996 | SWD | Statutory Warranty Deed | WEBER, ROBERT W/BETTY | WITTER, PHELPS/JR & SHARON B | 0 | 0 | $246,000.00 | 79116 | 0 |
Payout Agreement
| No payout information available.. |