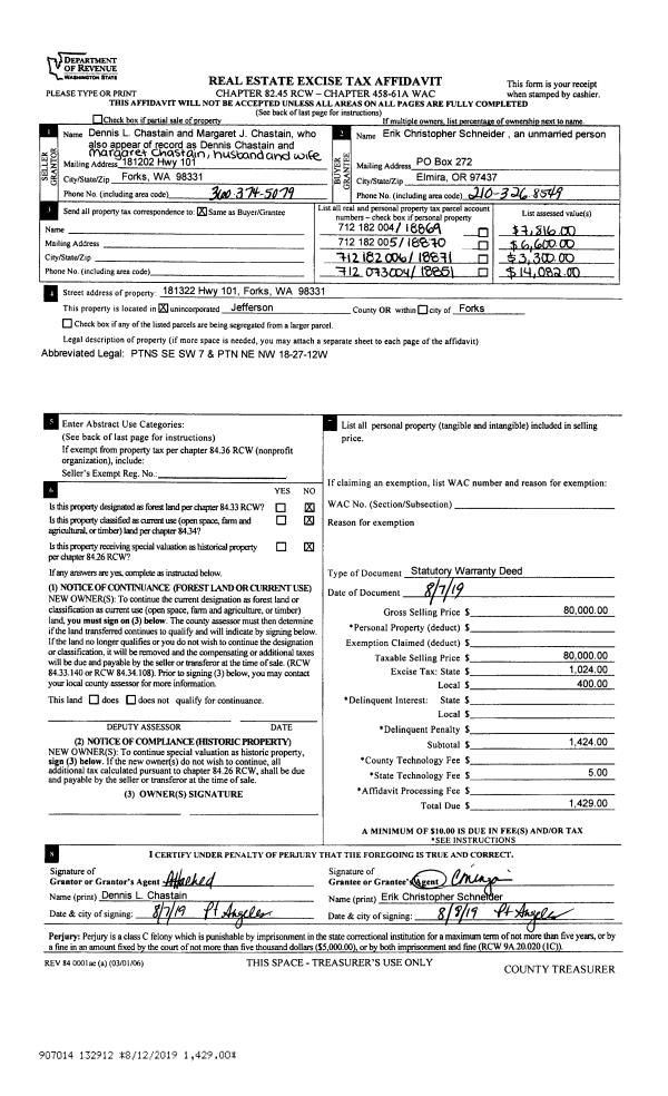
Property
Account |
| Property ID: | 33670 | Abbreviated Legal Description: | THE BLUFFS BLDG 19 UNIT 3037 |
| Parcel # / Geo ID: | 965300037 | Agent Code: | |
| Type: | Real | | |
| Tax Area: | 0111 - 1-50F1E1H2L1 | Land Use Code | 14 |
| Open Space: | N | DFL | N |
| Historic Property: | N | Remodel Property: | N |
| Multi-Family Redevelopment: | N | | |
| Township: | 30N | Section: | 26 |
| Range: | 1W |
Location |
| Address: | 130 UPPER BLUFFS DR #2 PORT TOWNSEND, WA 98368 | Mapsco: | 040/038 |
| Neighborhood: | CYCLE 5 CONDOMINIUMS - SD50 OUTSIDE CITY | Map ID: | |
| Neighborhood CD: | 5900 |
Owner |
| Name: | BETH LANGESLAY LIVING TRUST | Owner ID: | 107893 |
| Mailing Address: | BETH LANGESLAY TRUSTEE 130 UPPER BLUFFS DR #2 PORT TOWNSEND, WA 98368-9503 | % Ownership: | 100.0000000000% |
| | | Exemptions: | |
Pay Tax Due
There is currently No Amount Due on this property.
Taxes and Assessment Details
Property Tax Information as of
10/24/2025
Click on "Statement Details" to expand or collapse a tax statement.
* Please enter a valid date ** Please enter a valid date *
Statement Details |
| | TOTAL: | $0.00 | $0.00 | $0.00 | $0.00 | $0.00 | $0.00 |
|
| | $0.00 | $0.00 | $0.00 | $0.00 | $0.00 | $0.00 |
Values
| (+) Improvement Homesite Value: | + | $0 | |
| (+) Improvement Non-Homesite Value: | + | $372,317 | |
| (+) Land Homesite Value: | + | $0 | |
| (+) Land Non-Homesite Value: | + | $112,500 | |
| (+) Curr Use (HS): | + | $0 | $0 |
| (+) Curr Use (NHS): | + | $0 | $0 |
| | | -------------------------- | |
| (=) Market Value: | = | $484,817 | |
| (–) Productivity Loss: | – | $0 | |
| | | -------------------------- | |
| (=) Subtotal: | = | $484,817 | |
| (+) Senior Appraised Value: | + | $0 | |
| (+) Non-Senior Appraised Value: | + | $484,817 | |
| | | -------------------------- | |
| (=) Total Appraised Value: | = | $484,817 | |
| (–) Senior Exemption Loss: | – | $0 | |
| (–) Exemption Loss: | – | $0 | |
| | | -------------------------- | |
| (=) Taxable Value: | = | $484,817 | |
Taxing Jurisdiction
| Owner: | BETH LANGESLAY LIVING TRUST | | |
| % Ownership: | 100.0000000000% | | |
| Total Value: | N/A | | |
| Tax Area: | 0111 - 1-50F1E1H2L1 |
| CE | COUNTY CURRENT EXPENSE | N/A | N/A | N/A | N/A | | |
| CNTYDD | DEVELOPMENTAL DISABILITIES | N/A | N/A | N/A | N/A | | |
| CNTYVET | VETERANS RELIEF | N/A | N/A | N/A | N/A | | |
| MENTAL | MENTAL HEALTH | N/A | N/A | N/A | N/A | | |
| ROADS | COUNTY ROADS | N/A | N/A | N/A | N/A | | |
| ROADSCU | COUNTY ROADS TO CUR EXP | N/A | N/A | N/A | N/A | | |
| HOSP2CASH | HOSP DIST #2 GENERAL | N/A | N/A | N/A | N/A | | |
| SCH50BOND | SCHOOL DIST #50 BOND 2016 | N/A | N/A | N/A | N/A | | |
| SCH50CP | SCHOOL DIST #50 CAP PROJ | N/A | N/A | N/A | N/A | | |
| SCH50MO | SCHOOL DIST #50 EP & O | N/A | N/A | N/A | N/A | | |
| CONSERVE | CONSERVATION FUTURES | N/A | N/A | N/A | N/A | | |
| EMS1 | FIRE DIST #1 EMS | N/A | N/A | N/A | N/A | | |
| FD1 | FIRE DIST #1 GENERAL | N/A | N/A | N/A | N/A | | |
| LIB1 | LIBRARY DIST #1 GENERAL | N/A | N/A | N/A | N/A | | |
| PORTPT | PORT OF PT GENERAL | N/A | N/A | N/A | N/A | | |
| PORTPTIDD | PORT OF PT IDD 2019 | N/A | N/A | N/A | N/A | | |
| PUD1 | PUD #1 GENERAL | N/A | N/A | N/A | N/A | | |
| STATE | STATE SCHOOL PART 1 | N/A | N/A | N/A | N/A | | |
| STATE2 | STATE SCHOOL PART 2 | N/A | N/A | N/A | N/A | | |
| | Total Tax Rate: | N/A | | | | | |
| | | | | Taxes w/Current Exemptions: | N/A | | |
| | | | | Taxes w/o Exemptions: | N/A | | |
Improvement / Building
| Improvement #1: | Residential Bldg | State Code: | 14 | 1345.0 sqft | Value: | $372,317 |
| Bathrooms (#): | 2 (FULL) | Bathrooms (#): | 1 (HALF) | | Bedrooms (#): | 2 | Exterior Wall: | SI/ST | | Fireplace: | SIN 1-GOOD | Floor Construction: | FRAME | | Foundation: | CONPR | Heating/Cooling: | ELBB | | Inside Verify: | YES-FIX | Roof Cover: | METAL |
|
| | Type | Description | Class CD | Sub Class CD | Year Built | Area |
| | MA | Main Area | 5 | D1S | 1984 | 1345.0 |
| | PATIO | House Patio | 5 | * | 1984 | 216.0 |
| | HWPOR | House Wood Porch | 5 | * | 1984 | 80.0 |
| | HBAL | House Balcony | 5 | * | 1984 | 40.0 |
| | HDECK | House Deck | 5 | * | 1984 | 120.0 |
| | DBSMT | Duplex Basement Garage | 5 | D1S | 1984 | 419.0 |
| | DBSMTU | Duplex Basement Unfinished | 4 | * | 1984 | 399.0 |
| | ASPHD | Asphalt Drive | 5 | * | 1984 | 210.0 |
Sketch
| No sketches available for this property. |
Property Image
Land
| 1 | 9653-4145S | Kala Point Bluffs Avg/Good Wtr Views | 0.0000 | 0.00 | 0.00 | 0.00 | 1.00 | $112,500 | $0 |
Roll Value History
| 2025 | N/A | N/A | N/A | N/A | N/A |
| 2024 | $372,317 | $112,500 | $0 | $484,817 | $484,817 |
| 2023 | $333,211 | $112,500 | $0 | $445,711 | $445,711 |
| 2022 | $291,071 | $97,500 | $0 | $388,571 | $388,571 |
| 2021 | $251,531 | $84,375 | $0 | $335,906 | $335,906 |
Deed and Sales History
| 1 | 10/28/2022 | SWD | Statutory Warranty Deed | CHARLENE J HALLOWELL | BETH LANGESLAY LIVING TRUST | | | $515,000.00 | 140069 | |
| 2 | 05/21/2020 | SWD | Statutory Warranty Deed | CYNTHIA CURRERI TRSTEE | CHARLENE J HALLOWELL | | | $289,000.00 | 134385 | |
| 3 | 09/21/2009 | QCD | Quit Claim Deed | CURRERI, CYNTHIA | CURRERI LIVING TRUST | 0 | 0 | $0.00 | 113709 | 0 |
| 4 | 06/23/2008 | SWD | Statutory Warranty Deed | FERSCH TRUSTEE, KENNETH E | CURRERI, CYNTHIA | | | $345,000.00 | 111492 | 0 |
| 5 | 04/06/2006 | QCD | Quit Claim Deed | FERSCH, KENNETH E/CONSTAN | FERSCH LIVING TR, KENNETH/CONS | | | $0.00 | 111491 | 0 |
| 6 | 04/06/2006 | QCD | Quit Claim Deed | FERSCH, KENNETH & CONSTAN | FERSCH, KENNETH & CONSTANCE | 0 | 0 | $0.00 | 107688 | 0 |
Payout Agreement
| No payout information available.. |